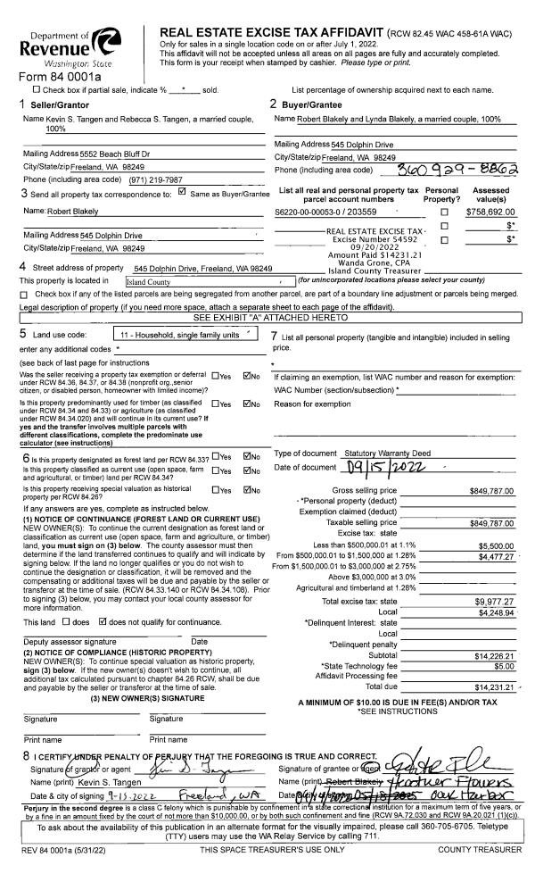
Property
Account |
| Property ID: | 203559 | Abbreviated Legal Description: | BUSH PT TERR LOT 53 |
| Geographic ID: | S6220-00-00053-0 | Agent Code: | |
| Type: | Real | | |
| Tax Area: | 710 - APPRAISER-S Whid Schl Dist, outside Langley, improved & 1 acre or less | Land Use Code | 11 |
| Open Space: | N | DFL | N |
| Historic Property: | N | Remodel Property: | N |
| Multi-Family Redevelopment: | N | | |
| Township: | | Section: | |
| Range: | |
Location |
| Address: | 545 DOLPHIN DR FREELAND, WA 98249 | Mapsco: | |
| Neighborhood: | Cycle 3 | Map ID: | 303 |
| Neighborhood CD: | 3 |
Owner |
| Name: | BLAKELY, LYNDA | Owner ID: | 312961 |
| Mailing Address: | 545 DOLPHIN DR FREELAND, WA 98249 | % Ownership: | 100.0000000000% |
| | | Exemptions: | |
Taxes and Assessment Details
Values
| (+) Improvement Homesite Value: | + | $0 | |
| (+) Improvement Non-Homesite Value: | + | $429,892 | |
| (+) Land Homesite Value: | + | $0 | |
| (+) Land Non-Homesite Value: | + | $380,000 | |
| (+) Curr Use (HS): | + | $0 | $0 |
| (+) Curr Use (NHS): | + | $0 | $0 |
| | | -------------------------- | |
| (=) Market Value: | = | $809,892 | |
| (–) Productivity Loss: | – | $0 | |
| | | -------------------------- | |
| (=) Subtotal: | = | $809,892 | |
| (+) Senior Appraised Value: | + | $0 | |
| (+) Non-Senior Appraised Value: | + | $809,892 | |
| | | -------------------------- | |
| (=) Total Appraised Value: | = | $809,892 | |
| (–) Senior Exemption Loss: | – | $0 | |
| (–) Exemption Loss: | – | $0 | |
| | | -------------------------- | |
| (=) Taxable Value: | = | $809,892 | |
Taxing Jurisdiction
| Owner: | BLAKELY, LYNDA | | |
| % Ownership: | 100.0000000000% | | |
| Total Value: | $809,892 | | |
| Tax Area: | 710 - APPRAISER-S Whid Schl Dist, outside Langley, improved & 1 acre or less |
| CF | Conservation Futures | 0.0313996660 | $809,892 | $809,892 | $25.43 | | |
| FIRE3 | Fire & Rescue Dist #3 S Whidbey GEN | 1.2130821753 | $809,892 | $809,892 | $982.47 | | |
| HOBOND | Hospital BOND | 0.1893405597 | $809,892 | $809,892 | $153.35 | | |
| HOGEN | Hospital GEN | 0.3848777722 | $809,892 | $809,892 | $311.71 | | |
| CE | County Current Expense | 0.3674210519 | $809,892 | $809,892 | $297.57 | | |
| CR | County Roads | 0.4614296361 | $809,892 | $809,892 | $373.71 | | |
| ISLANDEMS | Hospital GEN (EMS) | 0.4952018576 | $809,892 | $809,892 | $401.06 | | |
| LIB | Library Sno-Isle GEN | 0.3039084203 | $809,892 | $809,892 | $246.13 | | |
| PORTWHID | Port of S Whidbey GEN | 0.1086004714 | $809,892 | $809,892 | $87.95 | | |
| SCH206BOND | School 206 BOND | 0.5960237832 | $809,892 | $809,892 | $482.71 | | |
| SCH206CAP | School 206 CP | 0.3066144020 | $809,892 | $809,892 | $248.32 | | |
| SCH206MO | School 206 Enrichment | 0.4808755445 | $809,892 | $809,892 | $389.46 | | |
| ST | State School | 1.4761226122 | $809,892 | $809,892 | $1,195.50 | | |
| ST2 | State School Part 2 | 0.7953803475 | $809,892 | $809,892 | $644.17 | | |
| SWHIDPRBD | P & R S Whidbey BOND | 0.0144185398 | $809,892 | $809,892 | $11.68 | | |
| SWHIDPRBD3 | P & R S Whidbey BOND3 | 0.1483535547 | $809,892 | $809,892 | $120.15 | | |
| SWHIDPRMT | P & R S Whidbey GEN | 0.4600000000 | $809,892 | $809,892 | $372.55 | | |
| | Total Tax Rate: | 7.8330503944 | | | | | |
| | | | | Taxes w/Current Exemptions: | $6,343.92 | | |
| | | | | Taxes w/o Exemptions: | $6,343.92 | | |
Improvement / Building
| Improvement #1: | RESIDENTIAL | State Code: | Y | 1707.0 sqft | Value: | $429,892 |
| Bathrooms: | 2 | Bedrooms: | 2 | | Ceiling: | DRYWALL PAINTED | Exterior Wall/Cover: | CEMENT FIBER | | Floor Covering: | HARDWOOD/CARP 20-80 | Floor Structure: | WOOD W/SUBFLOOR | | Foundation: | CONCRETE | Heating: | FHA ELECTRIC | | Interior Finish: | DRYWALL PAINT | Plumbing Fixture Cnt: | 11 | | Roof Slope: | 4" IN 12" | Roof Structure/Cover: | CJ ASPHALT |
|
| | Type | Description | Class CD | Sub Class CD | Year Built | Area |
| | BAS | BASE/MAIN FLOOR | 4 | 0 | 2018 | 1707.0 |
| | OWP | OPEN WOOD PORCH W/STEPS | 4 | 0 | 2018 | 174.0 |
| | AGR | ATTACHED GARAGE | 4 | 0 | 2018 | 616.0 |
| | OP4 | OPEN PORCH W/CEILING-ROOF | 4 | 0 | 2018 | 78.0 |
| | OWC | OPEN WOOD PORCH W/STEPS/ROOF/C | 4 | 0 | 2018 | 208.5 |
Sketch
Property Image
Land
| 1 | 14 | SQ (08001-12000) | 0.0000 | 0.00 | 0.00 | 0.00 | 1.00 | $380,000 | $0 |
Roll Value History
| 2026 | N/A | N/A | N/A | N/A | N/A |
| 2025 | $429,892 | $380,000 | $0 | $809,892 | $809,892 |
| 2024 | $433,359 | $380,000 | $0 | $813,359 | $813,359 |
| 2023 | $436,826 | $380,000 | $0 | $816,826 | $816,826 |
| 2022 | $398,692 | $360,000 | $0 | $758,692 | $758,692 |
| 2021 | $350,342 | $170,000 | $0 | $520,342 | $520,342 |
| 2020 | $343,010 | $170,000 | $0 | $513,010 | $513,010 |
| 2019 | $251,598 | $180,000 | $0 | $431,598 | $431,598 |
| 2018 | $0 | $80,000 | $0 | $80,000 | $80,000 |
| 2017 | $0 | $80,000 | $0 | $80,000 | $80,000 |
| 2016 | $0 | $80,000 | $0 | $80,000 | $80,000 |
| 2015 | $0 | $80,000 | $0 | $80,000 | $80,000 |
| 2014 | $0 | $70,000 | $0 | $70,000 | $70,000 |
| 2013 | $0 | $72,000 | $0 | $72,000 | $72,000 |
| 2012 | $0 | $72,000 | $0 | $72,000 | $72,000 |
| 2011 | $0 | $72,000 | $0 | $72,000 | $72,000 |
| 2010 | $0 | $72,000 | $0 | $72,000 | $72,000 |
| 2009 | $0 | $65,400 | $0 | $65,400 | $65,400 |
| 2008 | $0 | $75,400 | $0 | $75,400 | $75,400 |
| 2007 | $0 | $54,000 | $0 | $54,000 | $54,000 |
Deed and Sales History
| 1 | 07/10/2024 | CPADC | Comm Prop Agmnt & Death Cert | BLAKELY, ROBERT | BLAKELY, LYNDA | | | | 89450 | |
| 2 | 09/15/2022 | WD | Warranty Deed | TANGEN, KEVIN S | BLAKELY, ROBERT | | | $849,787.00 | 54592 | 4551423 |
| 3 | 01/08/2018 | WD | Warranty Deed | FOX, LARRY L | TANGEN, KEVIN S | | | $95,000.00 | 32568 | 4437268 |
| 4 | 07/10/2009 | ESTSEPPROP | Establish Separate Property | FOX, LARRY L | FOX, LARRY L | | | $0.00 | 91562 | 4255977 |
| 5 | 07/10/2009 | WD | Warranty Deed | PIERSON, ULRICH | FOX, LARRY L | | | $95,000.00 | 91561 | 4255976 |
| 6 | 03/07/2006 | 2 | DNU - Superior Court Case | DIONESE, CONSTRUCTION | PIERSON, ULRICH | | | $0.00 | 70840 | 0 |
| 7 | 07/01/1979 | TRUSTEED | Trustee's Deed | PIERSON, ULRICH | DIONESE, CONSTRUCTION | | | $16,000.00 | 94122 | 357569 |
| 8 | 01/01/1900 | OTHER | Other - Misc. Documents | Unknown | PIERSON, ULRICH | | | $0.00 | 0 | 0 |
Payout Agreement
| No payout information available.. |