Property
Account |
| Property ID: | 203657 | Abbreviated Legal Description: | BUSH PT TRAC PK E/2 OF LOTS 3 & 2 FR 00002-0 & 00003-0 |
| Geographic ID: | S6225-00-00003-0 | Agent Code: | |
| Type: | Real | | |
| Tax Area: | 710 - APPRAISER-S Whid Schl Dist, outside Langley, improved & 1 acre or less | Land Use Code | 11 |
| Open Space: | N | DFL | N |
| Historic Property: | N | Remodel Property: | N |
| Multi-Family Redevelopment: | N | | |
| Township: | | Section: | |
| Range: | |
Location |
| Address: | 516 DOLPHIN DR FREELAND, WA 98249 | Mapsco: | |
| Neighborhood: | Cycle 3 | Map ID: | 303 |
| Neighborhood CD: | 3 |
Owner |
| Name: | JOHANSEN, CHRIS | Owner ID: | 305268 |
| Mailing Address: | MICHELLE JOHANSEN 3001 YALE DRIVE ANCHORAGE, AK 99508 | % Ownership: | 100.0000000000% |
| | | Exemptions: | |
Taxes and Assessment Details
Values
| (+) Improvement Homesite Value: | + | $0 | |
| (+) Improvement Non-Homesite Value: | + | $376,438 | |
| (+) Land Homesite Value: | + | $0 | |
| (+) Land Non-Homesite Value: | + | $370,000 | |
| (+) Curr Use (HS): | + | $0 | $0 |
| (+) Curr Use (NHS): | + | $0 | $0 |
| | | -------------------------- | |
| (=) Market Value: | = | $746,438 | |
| (–) Productivity Loss: | – | $0 | |
| | | -------------------------- | |
| (=) Subtotal: | = | $746,438 | |
| (+) Senior Appraised Value: | + | $0 | |
| (+) Non-Senior Appraised Value: | + | $746,438 | |
| | | -------------------------- | |
| (=) Total Appraised Value: | = | $746,438 | |
| (–) Senior Exemption Loss: | – | $0 | |
| (–) Exemption Loss: | – | $0 | |
| | | -------------------------- | |
| (=) Taxable Value: | = | $746,438 | |
Taxing Jurisdiction
| Owner: | JOHANSEN, CHRIS | | |
| % Ownership: | 100.0000000000% | | |
| Total Value: | $746,438 | | |
| Tax Area: | 710 - APPRAISER-S Whid Schl Dist, outside Langley, improved & 1 acre or less |
| CF | Conservation Futures | 0.0313996660 | $746,438 | $746,438 | $23.44 | | |
| FIRE3 | Fire & Rescue Dist #3 S Whidbey GEN | 1.2130821753 | $746,438 | $746,438 | $905.49 | | |
| HOBOND | Hospital BOND | 0.1893405597 | $746,438 | $746,438 | $141.33 | | |
| HOGEN | Hospital GEN | 0.3848777722 | $746,438 | $746,438 | $287.29 | | |
| CE | County Current Expense | 0.3674210519 | $746,438 | $746,438 | $274.26 | | |
| CR | County Roads | 0.4614296361 | $746,438 | $746,438 | $344.43 | | |
| ISLANDEMS | Hospital GEN (EMS) | 0.4952018576 | $746,438 | $746,438 | $369.64 | | |
| LIB | Library Sno-Isle GEN | 0.3039084203 | $746,438 | $746,438 | $226.85 | | |
| PORTWHID | Port of S Whidbey GEN | 0.1086004714 | $746,438 | $746,438 | $81.06 | | |
| SCH206BOND | School 206 BOND | 0.5960237832 | $746,438 | $746,438 | $444.89 | | |
| SCH206CAP | School 206 CP | 0.3066144020 | $746,438 | $746,438 | $228.87 | | |
| SCH206MO | School 206 Enrichment | 0.4808755445 | $746,438 | $746,438 | $358.94 | | |
| ST | State School | 1.4761226122 | $746,438 | $746,438 | $1,101.83 | | |
| ST2 | State School Part 2 | 0.7953803475 | $746,438 | $746,438 | $593.70 | | |
| SWHIDPRBD | P & R S Whidbey BOND | 0.0144185398 | $746,438 | $746,438 | $10.76 | | |
| SWHIDPRBD3 | P & R S Whidbey BOND3 | 0.1483535547 | $746,438 | $746,438 | $110.74 | | |
| SWHIDPRMT | P & R S Whidbey GEN | 0.4600000000 | $746,438 | $746,438 | $343.36 | | |
| | Total Tax Rate: | 7.8330503944 | | | | | |
| | | | | Taxes w/Current Exemptions: | $5,846.88 | | |
| | | | | Taxes w/o Exemptions: | $5,846.88 | | |
Improvement / Building
| Improvement #1: | RESIDENTIAL | State Code: | Y | 1622.1 sqft | Value: | $376,438 |
| Bathrooms: | 3 | Bedrooms: | 2 | | Ceiling: | DRYWALL PAINTED | Cooling: | HEAT PUMP/CONV/V | | Exterior Wall/Cover: | WOOD SIDING | Floor Covering: | CARPET/VINYL 80-20 | | Floor Structure: | WOOD W/SUBFLOOR | Foundation: | CONCRETE | | Interior Finish: | DRYWALL PAINT | Plumbing Fixture Cnt: | 12 | | Roof Slope: | 4" IN 12" | Roof Structure/Cover: | BEAM ASPHALT |
|
| | Type | Description | Class CD | Sub Class CD | Year Built | Area |
| | BAS | BASE/MAIN FLOOR | 4 | 0 | 1989 | 1622.1 |
| | AGR | ATTACHED GARAGE | 4 | 0 | 1989 | 720.0 |
| | OWP | OPEN WOOD PORCH W/STEPS | 4 | 0 | 1989 | 157.2 |
| | OWP | OPEN WOOD PORCH W/STEPS | 4 | 0 | 1989 | 412.6 |
| | OWC | OPEN WOOD PORCH W/STEPS/ROOF/C | 4 | 0 | 1989 | 11.6 |
Sketch
Property Image
Land
| 1 | 15 | SQ (12001-21780) | 0.4400 | 19166.40 | 0.00 | 0.00 | 1.00 | $370,000 | $0 |
Roll Value History
| 2026 | N/A | N/A | N/A | N/A | N/A |
| 2025 | $376,438 | $370,000 | $0 | $746,438 | $746,438 |
| 2024 | $381,071 | $370,000 | $0 | $751,071 | $751,071 |
| 2023 | $385,704 | $360,000 | $0 | $745,704 | $745,704 |
| 2022 | $286,884 | $360,000 | $0 | $646,884 | $646,884 |
| 2021 | $252,217 | $170,000 | $0 | $422,217 | $422,217 |
| 2020 | $245,500 | $170,000 | $0 | $415,500 | $415,500 |
| 2019 | $163,965 | $180,000 | $0 | $343,965 | $343,965 |
| 2018 | $164,496 | $130,000 | $0 | $294,496 | $294,496 |
| 2017 | $165,511 | $120,000 | $0 | $285,511 | $285,511 |
| 2016 | $167,632 | $120,000 | $0 | $287,632 | $287,632 |
| 2015 | $169,755 | $120,000 | $0 | $289,755 | $289,755 |
| 2014 | $171,877 | $72,250 | $0 | $244,127 | $244,127 |
| 2013 | $170,587 | $72,250 | $0 | $242,837 | $242,837 |
| 2012 | $172,852 | $72,250 | $0 | $245,102 | $245,102 |
| 2011 | $175,119 | $85,000 | $0 | $260,119 | $260,119 |
| 2010 | $185,995 | $85,000 | $0 | $270,995 | $270,995 |
| 2009 | $193,826 | $100,000 | $0 | $293,826 | $293,826 |
| 2008 | $196,139 | $135,000 | $0 | $331,139 | $331,139 |
| 2007 | $199,578 | $135,000 | $0 | $334,578 | $334,578 |
Deed and Sales History
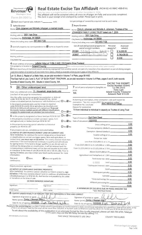
| 1 | 12/02/2025 | QCD | Quit Claim Deed | JOHANSEN, CHRIS | JOHANSEN FAMILY LIVING TRUST | | | $0.00 | 65645 | 4594317 |
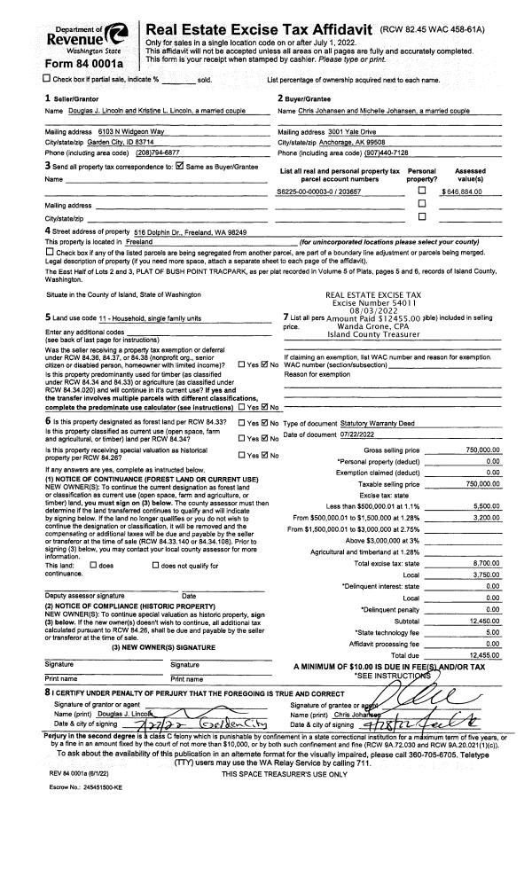
| 2 | 07/22/2022 | WD | Warranty Deed | LINCOLN, DOUGLAS J | JOHANSEN, CHRIS | | | $750,000.00 | 54011 | 4549070 |
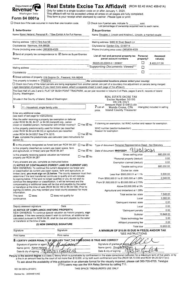
| 3 | 09/23/2021 | WD | Warranty Deed | MCDONALD, ELAINE L | LINCOLN, DOUGLAS J | | | $660,000.00 | 50195 | 4530060 |
| 4 | 02/23/2005 | 5 | DNU - Marriage License/Name Change | MCDONALD, JOHN W | MCDONALD, ELAINE L | | | $0.00 | 70485 | 0 |
| 5 | 10/01/1989 | WD | Warranty Deed | METSELAAR, CORNELIS | MCDONALD, JOHN W | | | $132,950.00 | 94708 | 89015312 |
| 6 | 01/01/1988 | OTHER | Other - Misc. Documents | METSELAAR, CORNELIS | METSELAAR, CORNELIS | | | $0.00 | 62470 | 88000274 |
| 7 | 03/01/1987 | WD | Warranty Deed | ZEBREA, JOHN | METSELAAR, CORNELIS | | | $15,000.00 | 70580 | 87003375 |
| 8 | 01/01/1900 | OTHER | Other - Misc. Documents | Unknown | ZEBREA, JOHN | | | $0.00 | 0 | 0 |
Payout Agreement
| No payout information available.. |