Property
Account |
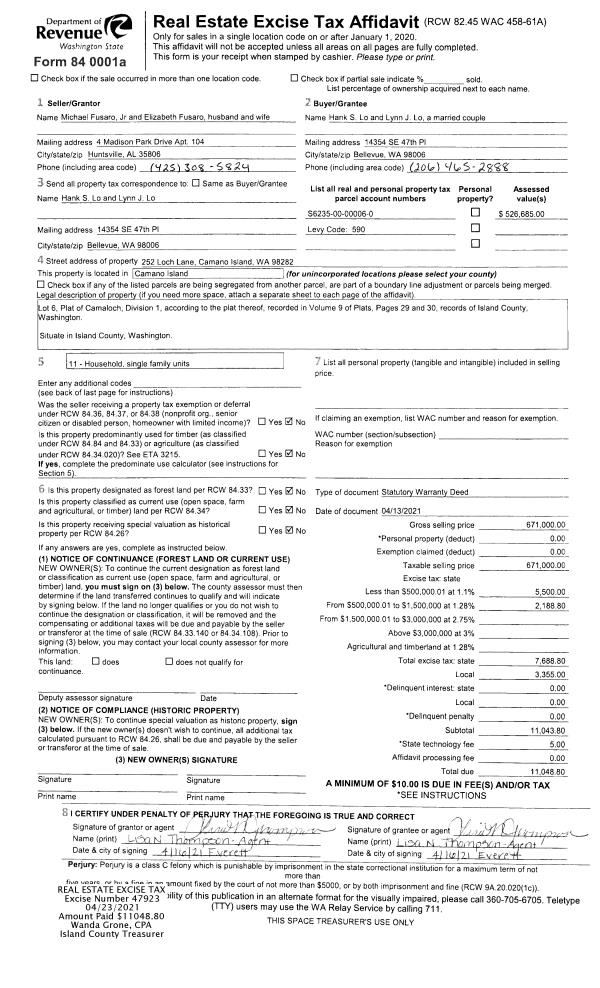
| Property ID: | 204549 | Abbreviated Legal Description: | CAMALOCH 1 LOT 6 |
| Geographic ID: | S6235-00-00006-0 | Agent Code: | |
| Type: | Real | | |
| Tax Area: | 590 - APPRAISER-Stan/Cam Schl Dist, Special Dist, improved & less than 1 acre | Land Use Code | 11 |
| Open Space: | N | DFL | N |
| Historic Property: | N | Remodel Property: | N |
| Multi-Family Redevelopment: | N | | |
| Township: | | Section: | |
| Range: | |
Location |
| Address: | 252 LOCH LN CAMANO ISLAND, WA 98282 | Mapsco: | |
| Neighborhood: | Cycle 5 | Map ID: | 995 |
| Neighborhood CD: | 5 |
Owner |
| Name: | LO, HANK S | Owner ID: | 299020 |
| Mailing Address: | LYNN J LO 14354 SE 47TH PL BELLEVUE, WA 98006 | % Ownership: | 100.0000000000% |
| | | Exemptions: | |
Taxes and Assessment Details
Values
| (+) Improvement Homesite Value: | + | $0 | |
| (+) Improvement Non-Homesite Value: | + | $491,131 | |
| (+) Land Homesite Value: | + | $0 | |
| (+) Land Non-Homesite Value: | + | $330,000 | |
| (+) Curr Use (HS): | + | $0 | $0 |
| (+) Curr Use (NHS): | + | $0 | $0 |
| | | -------------------------- | |
| (=) Market Value: | = | $821,131 | |
| (–) Productivity Loss: | – | $0 | |
| | | -------------------------- | |
| (=) Subtotal: | = | $821,131 | |
| (+) Senior Appraised Value: | + | $0 | |
| (+) Non-Senior Appraised Value: | + | $821,131 | |
| | | -------------------------- | |
| (=) Total Appraised Value: | = | $821,131 | |
| (–) Senior Exemption Loss: | – | $0 | |
| (–) Exemption Loss: | – | $0 | |
| | | -------------------------- | |
| (=) Taxable Value: | = | $821,131 | |
Taxing Jurisdiction
| Owner: | LO, HANK S | | |
| % Ownership: | 100.0000000000% | | |
| Total Value: | $821,131 | | |
| Tax Area: | 590 - APPRAISER-Stan/Cam Schl Dist, Special Dist, improved & less than 1 acre |
| CF | Conservation Futures | 0.0313996660 | $821,131 | $821,131 | $25.78 | | |
| EMS1 | Fire & Rescue Dist #1 Camano GEN (EMS) | 0.4998471806 | $821,131 | $821,131 | $410.44 | | |
| FIRE1 | Fire & Rescue Dist #1 Camano GEN | 1.2496603404 | $821,131 | $821,131 | $1,026.13 | | |
| FIRE1BOND | Fire & Rescue Dist #1 Camano BOND | 0.1630371212 | $821,131 | $821,131 | $133.87 | | |
| CE | County Current Expense | 0.3674210519 | $821,131 | $821,131 | $301.70 | | |
| CR | County Roads | 0.4614296361 | $821,131 | $821,131 | $378.89 | | |
| LIB | Library Sno-Isle GEN | 0.3039084203 | $821,131 | $821,131 | $249.55 | | |
| SCH205_401 | School 205-401 Enrichment | 1.3697998934 | $821,131 | $821,131 | $1,124.79 | | |
| SCH205BOND | School 205-401 BOND | 0.9354199323 | $821,131 | $821,131 | $768.10 | | |
| ST | State School | 1.4761226122 | $821,131 | $821,131 | $1,212.09 | | |
| ST2 | State School Part 2 | 0.7953803475 | $821,131 | $821,131 | $653.11 | | |
| | Total Tax Rate: | 7.6534262019 | | | | | |
| | | | | Taxes w/Current Exemptions: | $6,284.45 | | |
| | | | | Taxes w/o Exemptions: | $6,284.45 | | |
Improvement / Building
| Improvement #1: | RESIDENTIAL | State Code: | Y | 2313.4 sqft | Value: | $491,131 |
| Bathrooms: | 4 | Bedrooms: | 2 | | Ceiling: | DRYWALL PAINTED | Cooling: | HEAT PUMP/CONV/V | | Exterior Wall/Cover: | CEMENT FIBER | Floor Covering: | HARDWOOD/CARP 60-40 | | Floor Structure: | WOOD W/SUBFLOOR | Foundation: | CONCRETE | | Interior Finish: | DRYWALL PAINT | Plumbing Fixture Cnt: | 17 | | Roof Slope: | 8" IN 12" | Roof Structure/Cover: | CJ ASPHALT |
|
| | Type | Description | Class CD | Sub Class CD | Year Built | Area |
| | BAS | BASE/MAIN FLOOR | 4 | 0 | 2018 | 896.7 |
| | UPS | UPPER STORY | 4 | 0 | 2018 | 861.5 |
| | OWC | OPEN WOOD PORCH W/STEPS/ROOF/C | 4 | 0 | 2018 | 73.5 |
| | DWN | DOWNSTAIRS LIVING AREA | 4 | 0 | 2018 | 555.2 |
| | AGR | ATTACHED GARAGE | 4 | 0 | 2018 | 369.0 |
Sketch
Property Image
Land
| 1 | 14 | SQ (08001-12000) | 0.0000 | 0.00 | 0.00 | 0.00 | 1.00 | $330,000 | $0 |
Roll Value History
| 2026 | N/A | N/A | N/A | N/A | N/A |
| 2025 | $491,131 | $330,000 | $0 | $821,131 | $821,131 |
| 2024 | $495,091 | $320,000 | $0 | $815,091 | $815,091 |
| 2023 | $499,051 | $300,000 | $0 | $799,051 | $799,051 |
| 2022 | $455,491 | $280,000 | $0 | $735,491 | $735,491 |
| 2021 | $400,214 | $175,000 | $0 | $575,214 | $575,214 |
| 2020 | $391,685 | $135,000 | $0 | $526,685 | $526,685 |
| 2019 | $324,246 | $175,000 | $0 | $499,246 | $499,246 |
| 2018 | $52,924 | $100,000 | $0 | $152,924 | $152,924 |
| 2017 | $0 | $15,000 | $0 | $15,000 | $15,000 |
| 2016 | $0 | $15,000 | $0 | $15,000 | $15,000 |
| 2015 | $0 | $17,500 | $0 | $17,500 | $17,500 |
| 2014 | $0 | $17,500 | $0 | $17,500 | $17,500 |
| 2013 | $0 | $17,500 | $0 | $17,500 | $17,500 |
| 2012 | $0 | $25,000 | $0 | $25,000 | $25,000 |
| 2011 | $0 | $100,000 | $0 | $100,000 | $100,000 |
| 2010 | $0 | $100,000 | $0 | $100,000 | $100,000 |
| 2009 | $0 | $125,000 | $0 | $125,000 | $125,000 |
| 2008 | $0 | $150,000 | $0 | $150,000 | $150,000 |
| 2007 | $0 | $135,000 | $0 | $135,000 | $135,000 |
Deed and Sales History
| 1 | 04/23/2021 | WD | Warranty Deed | FUSARO JR, MICHAEL | LO, HANK S | | | $671,000.00 | 47923 | 4517295 |
| 2 | 04/24/2019 | WD | Warranty Deed | TITAN FRAMING, LLC | FUSARO JR, MICHAEL | | | $514,000.00 | 38204 | 4461995 |
| 3 | 03/29/2018 | QCD | Quit Claim Deed | GLASPY, JEFF | TITAN FRAMING, LLC | | | $0.00 | 33524 | 4441842 |
| 4 | 10/13/2015 | WD | Warranty Deed | ANDERSON, STEVEN G | GLASPY, JEFF | | | $22,500.00 | 21775 | 4387850 |
| 5 | 07/09/2013 | WD | Warranty Deed | REAL PROPERTY FUNDING GROUP LLC | ANDERSON, STEVEN G | | | $22,000.00 | 11997 | 4343991 |
| 6 | 02/27/2012 | TTAXD | Treasurer's Tax Deed | ISLAND COUNTY TREASURER | REAL PROPERTY FUNDING GROUP LLC | | | $0.00 | 6951 | 4310636 |
| 7 | 07/25/2006 | WD | Warranty Deed | SCHWAB, KELLEY | KIM NESJE CONSTRUCTION INC, | | | $70,000.00 | 63263 | 4177432 |
| 8 | 10/02/2003 | QCD | Quit Claim Deed | SHAUGHNESSY, THOMAS M | SCHWAB, KELLEY | | | $0.00 | 34431 | 4080911 |
| 9 | 03/01/1988 | WD | Warranty Deed | BOOTH, HAROLD W | SHAUGHNESSY, THOMAS M | | | $4,500.00 | 80988 | 88003807 |
| 10 | 06/01/1983 | QCD | Quit Claim Deed | AMERICAN, DISCOUNT C | BOOTH, HAROLD W | | | $2,500.00 | 31914 | 412030 |
| 11 | 03/01/1982 | CD | DNU - Correction Deed | RICHER, WALT & | AMERICAN, DISCOUNT C | | | $1.00 | 59402 | 394445 |
| 12 | 01/01/1900 | OTHER | Other - Misc. Documents | Unknown | RICHER, WALT & | | | $0.00 | 0 | 0 |
Payout Agreement
| No payout information available.. |