Property
Account |
| Property ID: | 204781 | Abbreviated Legal Description: | CAMALOCH 1 LOT 30 |
| Geographic ID: | S6235-00-00030-0 | Agent Code: | |
| Type: | Real | | |
| Tax Area: | 590 - APPRAISER-Stan/Cam Schl Dist, Special Dist, improved & less than 1 acre | Land Use Code | 11 |
| Open Space: | N | DFL | N |
| Historic Property: | N | Remodel Property: | N |
| Multi-Family Redevelopment: | N | | |
| Township: | | Section: | |
| Range: | |
Location |
| Address: | 313 LOCHWOOD DR CAMANO ISLAND, WA 98282 | Mapsco: | |
| Neighborhood: | Cycle 5 | Map ID: | 995 |
| Neighborhood CD: | 5 |
Owner |
| Name: | MOERING, GEORGE WALKER | Owner ID: | 309433 |
| Mailing Address: | BETTY CHRISTINEM MOERING 313 LOCHWOOD DR CAMANO ISLAND, WA 98282 | % Ownership: | 100.0000000000% |
| | | Exemptions: | |
Taxes and Assessment Details
Values
| (+) Improvement Homesite Value: | + | $0 | |
| (+) Improvement Non-Homesite Value: | + | $490,312 | |
| (+) Land Homesite Value: | + | $0 | |
| (+) Land Non-Homesite Value: | + | $330,000 | |
| (+) Curr Use (HS): | + | $0 | $0 |
| (+) Curr Use (NHS): | + | $0 | $0 |
| | | -------------------------- | |
| (=) Market Value: | = | $820,312 | |
| (–) Productivity Loss: | – | $0 | |
| | | -------------------------- | |
| (=) Subtotal: | = | $820,312 | |
| (+) Senior Appraised Value: | + | $0 | |
| (+) Non-Senior Appraised Value: | + | $820,312 | |
| | | -------------------------- | |
| (=) Total Appraised Value: | = | $820,312 | |
| (–) Senior Exemption Loss: | – | $0 | |
| (–) Exemption Loss: | – | $0 | |
| | | -------------------------- | |
| (=) Taxable Value: | = | $820,312 | |
Taxing Jurisdiction
| Owner: | MOERING, GEORGE WALKER | | |
| % Ownership: | 100.0000000000% | | |
| Total Value: | $820,312 | | |
| Tax Area: | 590 - APPRAISER-Stan/Cam Schl Dist, Special Dist, improved & less than 1 acre |
| CF | Conservation Futures | 0.0313996660 | $820,312 | $820,312 | $25.76 | | |
| EMS1 | Fire & Rescue Dist #1 Camano GEN (EMS) | 0.4998471806 | $820,312 | $820,312 | $410.03 | | |
| FIRE1 | Fire & Rescue Dist #1 Camano GEN | 1.2496603404 | $820,312 | $820,312 | $1,025.11 | | |
| FIRE1BOND | Fire & Rescue Dist #1 Camano BOND | 0.1630371212 | $820,312 | $820,312 | $133.74 | | |
| CE | County Current Expense | 0.3674210519 | $820,312 | $820,312 | $301.40 | | |
| CR | County Roads | 0.4614296361 | $820,312 | $820,312 | $378.52 | | |
| LIB | Library Sno-Isle GEN | 0.3039084203 | $820,312 | $820,312 | $249.30 | | |
| SCH205_401 | School 205-401 Enrichment | 1.3697998934 | $820,312 | $820,312 | $1,123.66 | | |
| SCH205BOND | School 205-401 BOND | 0.9354199323 | $820,312 | $820,312 | $767.34 | | |
| ST | State School | 1.4761226122 | $820,312 | $820,312 | $1,210.88 | | |
| ST2 | State School Part 2 | 0.7953803475 | $820,312 | $820,312 | $652.46 | | |
| | Total Tax Rate: | 7.6534262019 | | | | | |
| | | | | Taxes w/Current Exemptions: | $6,278.20 | | |
| | | | | Taxes w/o Exemptions: | $6,278.20 | | |
Improvement / Building
| Improvement #1: | RESIDENTIAL | State Code: | Y | 2330.3 sqft | Value: | $490,312 |
| Bathrooms: | 2.5 | Bedrooms: | 2 | | Ceiling: | DRYWALL PAINTED | Cooling: | HEAT PUMP/CONV/V | | Exterior Wall/Cover: | CEMENT FIBER | Floor Covering: | CARPET/VINYL 60-40 | | Floor Structure: | WOOD W/SUBFLOOR | Foundation: | CONCRETE | | Interior Finish: | DRYWALL PAINT | Plumbing Fixture Cnt: | 18 | | Roof Slope: | 5" IN 12" | Roof Structure/Cover: | CJ ASPHALT |
|
| | Type | Description | Class CD | Sub Class CD | Year Built | Area |
| | BAS | BASE/MAIN FLOOR | 4 | 0 | 2020 | 1213.8 |
| | AGR | ATTACHED GARAGE | 4 | 0 | 2020 | 609.5 |
| | OWP | OPEN WOOD PORCH W/STEPS | 4 | 0 | 2020 | 396.0 |
| | DWN | DOWNSTAIRS LIVING AREA | 4 | 0 | 2020 | 1116.5 |
| | OWC | OPEN WOOD PORCH W/STEPS/ROOF/C | 4 | 0 | 2020 | 70.0 |
Sketch
Property Image
Land
| 1 | 14 | SQ (08001-12000) | 0.0000 | 0.00 | 0.00 | 0.00 | 1.00 | $330,000 | $0 |
Roll Value History
| 2026 | N/A | N/A | N/A | N/A | N/A |
| 2025 | $490,312 | $330,000 | $0 | $820,312 | $820,312 |
| 2024 | $494,203 | $320,000 | $0 | $814,203 | $814,203 |
| 2023 | $499,393 | $300,000 | $0 | $799,393 | $799,393 |
| 2022 | $460,422 | $280,000 | $0 | $740,422 | $740,422 |
| 2021 | $355,564 | $175,000 | $0 | $530,564 | $530,564 |
| 2020 | $142,774 | $120,000 | $0 | $262,774 | $262,774 |
| 2019 | $0 | $120,000 | $0 | $120,000 | $120,000 |
| 2018 | $0 | $100,000 | $0 | $100,000 | $100,000 |
| 2017 | $0 | $100,000 | $0 | $100,000 | $100,000 |
| 2016 | $0 | $100,000 | $0 | $100,000 | $100,000 |
| 2015 | $0 | $80,000 | $0 | $80,000 | $80,000 |
| 2014 | $0 | $80,000 | $0 | $80,000 | $80,000 |
| 2013 | $0 | $80,000 | $0 | $80,000 | $80,000 |
| 2012 | $0 | $80,000 | $0 | $80,000 | $80,000 |
| 2011 | $0 | $100,000 | $0 | $100,000 | $100,000 |
| 2010 | $0 | $100,000 | $0 | $100,000 | $100,000 |
| 2009 | $0 | $125,000 | $0 | $125,000 | $125,000 |
| 2008 | $0 | $150,000 | $0 | $150,000 | $150,000 |
| 2007 | $0 | $40,000 | $0 | $40,000 | $40,000 |
Deed and Sales History
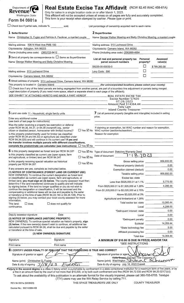
| 1 | 07/18/2023 | WD | Warranty Deed | FUGIER, CHRISTOPHER G | MOERING, GEORGE WALKER | | | $859,800.00 | 57420 | 4562701 |
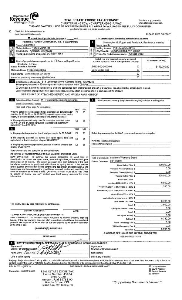
| 2 | 09/13/2020 | WD | Warranty Deed | HANSEN & HANSEN CONSTRUCTION, INC | FUGIER, CHRISTOPHER G | | | $600,000.00 | 45104 | 4498660 |
| 3 | 02/14/2020 | WD | Warranty Deed | HERNANDEZ, COLLEEN | HANSEN & HANSEN CONSTRUCTION, INC | | | $147,000.00 | 42187 | 4481732 |
| 4 | 06/30/2017 | WD | Warranty Deed | HIRST, GORDON B | HERNANDEZ, COLLEEN | | | $99,000.00 | 30089 | 4425718 |
| 5 | 04/01/1992 | WD | Warranty Deed | WINTER, DELORES M | HIRST, GORDON & | | | $25,000.00 | 21553 | 92007425 |
| 6 | 03/01/1991 | WD | Warranty Deed | VICK, DALE | WINTER, DELORES M | | | $10,000.00 | 10943 | 91004121 |
| 7 | 03/01/1968 | EXECUTORD | Executor Deed | CAMALOCH, ESTATES | VICK, DALE | | | $5,500.00 | 29771 | 204781 |
| 8 | 01/01/1900 | OTHER | Other - Misc. Documents | Unknown | CAMALOCH, ESTATES | | | $0.00 | 0 | 0 |
Payout Agreement
| No payout information available.. |