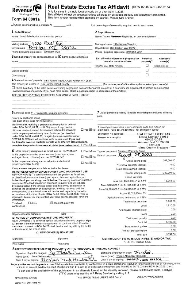
Property
Account |
| Property ID: | 20480 | Abbreviated Legal Description: | 25 - IN SE NE: BG NLN ST HWY & INTER WLN SE NE N290' E150' S TO NLN ST HWY SWLY TPB |
| Geographic ID: | R13216-356-4040 | Agent Code: | |
| Type: | Real | | |
| Tax Area: | 110 - APPRAISER-OH Schl Dist, outside OH, improved & 1 acre or less | Land Use Code | 11 |
| Open Space: | N | DFL | N |
| Historic Property: | N | Remodel Property: | N |
| Multi-Family Redevelopment: | N | | |
| Township: | 32 | Section: | 16 |
| Range: | R1 |
Location |
| Address: | | Mapsco: | |
| Neighborhood: | Cycle 1 | Map ID: | 131 |
| Neighborhood CD: | 1 |
Owner |
| Name: | SABALAUSKY, JANET | Owner ID: | 70904 |
| Mailing Address: | 1464 NATURE VIEW LN OAK HARBOR, WA 98277-8494 | % Ownership: | 100.0000000000% |
| | | Exemptions: | |
Taxes and Assessment Details
Values
| (+) Improvement Homesite Value: | + | $0 | |
| (+) Improvement Non-Homesite Value: | + | $168,932 | |
| (+) Land Homesite Value: | + | $0 | |
| (+) Land Non-Homesite Value: | + | $220,000 | |
| (+) Curr Use (HS): | + | $0 | $0 |
| (+) Curr Use (NHS): | + | $0 | $0 |
| | | -------------------------- | |
| (=) Market Value: | = | $388,932 | |
| (–) Productivity Loss: | – | $0 | |
| | | -------------------------- | |
| (=) Subtotal: | = | $388,932 | |
| (+) Senior Appraised Value: | + | $0 | |
| (+) Non-Senior Appraised Value: | + | $388,932 | |
| | | -------------------------- | |
| (=) Total Appraised Value: | = | $388,932 | |
| (–) Senior Exemption Loss: | – | $0 | |
| (–) Exemption Loss: | – | $0 | |
| | | -------------------------- | |
| (=) Taxable Value: | = | $388,932 | |
Taxing Jurisdiction
| Owner: | SABALAUSKY, JANET | | |
| % Ownership: | 100.0000000000% | | |
| Total Value: | $388,932 | | |
| Tax Area: | 110 - APPRAISER-OH Schl Dist, outside OH, improved & 1 acre or less |
| CF | Conservation Futures | 0.0313996660 | $388,932 | $388,932 | $12.21 | | |
| CEM1 | Cemetery #1 | 0.0040018856 | $388,932 | $388,932 | $1.56 | | |
| FIRE2 | Fire & Rescue Dist #2 N Whidbey GEN | 0.5381486274 | $388,932 | $388,932 | $209.30 | | |
| HOBOND | Hospital BOND | 0.1893405597 | $388,932 | $388,932 | $73.64 | | |
| HOGEN | Hospital GEN | 0.3848777722 | $388,932 | $388,932 | $149.69 | | |
| CE | County Current Expense | 0.3674210519 | $388,932 | $388,932 | $142.90 | | |
| CR | County Roads | 0.4614296361 | $388,932 | $388,932 | $179.46 | | |
| ISLANDEMS | Hospital GEN (EMS) | 0.4952018576 | $388,932 | $388,932 | $192.60 | | |
| LIB | Library Sno-Isle GEN | 0.3039084203 | $388,932 | $388,932 | $118.20 | | |
| NWHIDPRMT | P & R N Whidbey GEN | 0.1990272349 | $388,932 | $388,932 | $77.41 | | |
| SCH201MO | School 201 Enrichment | 2.3851112745 | $388,932 | $388,932 | $927.65 | | |
| ST | State School | 1.4761226122 | $388,932 | $388,932 | $574.11 | | |
| ST2 | State School Part 2 | 0.7953803475 | $388,932 | $388,932 | $309.35 | | |
| | Total Tax Rate: | 7.6313709459 | | | | | |
| | | | | Taxes w/Current Exemptions: | $2,968.08 | | |
| | | | | Taxes w/o Exemptions: | $2,968.08 | | |
Improvement / Building
| Improvement #1: | RESIDENTIAL | State Code: | Y | 889.0 sqft | Value: | $168,932 |
| Bathrooms: | 1 | Bedrooms: | 2 | | Ceiling: | DRYWALL PAINTED | Cooling: | HEAT PUMP/CONV/V | | Exterior Wall/Cover: | CEMENT FIBER | Floor Covering: | CARPET/VINYL 60-40 | | Floor Structure: | WOOD W/SUBFLOOR | Foundation: | CONCRETE BLOCKS | | Interior Finish: | DRYWALL PAINT | Plumbing Fixture Cnt: | 6 | | Roof Slope: | 8" IN 12" | Roof Structure/Cover: | CJ ASPHALT |
|
| | Type | Description | Class CD | Sub Class CD | Year Built | Area |
| | BAS | BASE/MAIN FLOOR | 3 | 0 | 1948 | 889.0 |
| | DGR | DETACHED GARAGE | 3 | 0 | 1948 | 864.0 |
| | UTY | STORAGE/UTILITY | 3 | 0 | 1948 | 21.0 |
| | UTY | STORAGE/UTILITY | 3 | 0 | 1948 | 300.0 |
Sketch
Property Image
Land
| 1 | 16 | AC (00.51-01.00) | 0.9000 | 39204.00 | 0.00 | 0.00 | 1.00 | $220,000 | $0 |
Roll Value History
| 2026 | N/A | N/A | N/A | N/A | N/A |
| 2025 | $168,932 | $220,000 | $0 | $388,932 | $388,932 |
| 2024 | $171,176 | $200,000 | $0 | $371,176 | $371,176 |
| 2023 | $187,909 | $200,000 | $0 | $387,909 | $387,909 |
| 2022 | $172,356 | $180,000 | $0 | $352,356 | $352,356 |
| 2021 | $151,791 | $135,000 | $0 | $286,791 | $286,791 |
| 2020 | $147,789 | $100,000 | $0 | $247,789 | $247,789 |
| 2019 | $103,960 | $160,000 | $0 | $263,960 | $263,960 |
| 2018 | $104,280 | $140,000 | $0 | $244,280 | $244,280 |
| 2017 | $70,193 | $120,000 | $0 | $190,193 | $190,193 |
| 2016 | $71,144 | $120,000 | $0 | $191,144 | $191,144 |
| 2015 | $72,093 | $90,000 | $0 | $162,093 | $162,093 |
| 2014 | $73,043 | $90,000 | $0 | $163,043 | $163,043 |
| 2013 | $73,993 | $102,000 | $0 | $175,993 | $175,993 |
| 2012 | $74,942 | $102,000 | $0 | $176,942 | $176,942 |
| 2011 | $76,606 | $120,000 | $0 | $196,606 | $196,606 |
| 2010 | $80,736 | $120,000 | $0 | $200,736 | $200,736 |
| 2009 | $83,370 | $108,000 | $0 | $191,370 | $191,370 |
| 2008 | $85,057 | $104,544 | $0 | $189,601 | $189,601 |
| 2007 | $86,885 | $104,544 | $0 | $191,429 | $191,429 |
Deed and Sales History
| 1 | 08/28/2025 | WD | Warranty Deed | SABALAUSKY, JANET | REYNOLDS, TRISTEN | | | $362,000.00 | 64953 | 4591445 |
| 2 | 10/20/2010 | EZ | Easement | SABALAUSKY, JANET | SABALAUSKY, JANET | | | $1,187.00 | 2787 | 4284277 |
| 3 | 11/22/2006 | EZ | Easement | SABALAUSKY, JANET | SABALAUSKY, JANET | | | $1,000.00 | 70732 | 4195564 |
| 4 | 12/22/2005 | WD | Warranty Deed | DIEM, CATHERINE | SABALAUSKY, JANET | | | $165,000.00 | 56376 | 4158011 |
| 5 | 04/08/2002 | TRUSTEED | Trustee's Deed | AMSLER, JAMES J | DIEM, CATHERINE | | | $83,725.00 | 24133 | 4034311 |
| 6 | 09/01/1993 | WD | Warranty Deed | KRUSE, JON & | AMSLER, JAMES J | | | $80,000.00 | 33841 | 93019915 |
| 7 | 12/01/1992 | PACD | Purchaser's Assignment | FLACK, ALAN | KRUSE, JON & | | | $30,700.00 | 24770 | 92023480 |
| 8 | 07/01/1989 | REC | Real Estate Contract | JENKINS, OSCAR H | FLACK, ALAN | | | $40,446.00 | 92691 | 89009120 |
| 9 | 06/01/1989 | QCD | Quit Claim Deed | WOODS, RODERICK M | JENKINS, OSCAR H | | | $0.00 | 92400 | 89008268 |
| 10 | 11/01/1988 | WD | Warranty Deed | JENKINS, OSCAR H | WOODS, RODERICK M | | | $44,000.00 | 84069 | 88015257 |
| 11 | 07/01/1982 | EXECUTORD | Executor Deed | FRUNT, ALFRED H | JENKINS, OSCAR H | | | $33,000.00 | 21734 | 398583 |
| 12 | 01/01/1900 | OTHER | Other - Misc. Documents | Unknown | FRUNT, ALFRED H | | | $0.00 | 0 | 0 |
Payout Agreement
| No payout information available.. |