Property
Account |
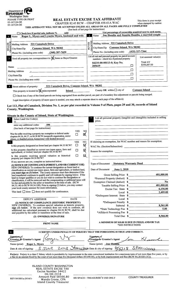
| Property ID: | 205619 | Abbreviated Legal Description: | CAMALOCH 1 LOT 113 |
| Geographic ID: | S6235-00-00113-0 | Agent Code: | |
| Type: | Real | | |
| Tax Area: | 590 - APPRAISER-Stan/Cam Schl Dist, Special Dist, improved & less than 1 acre | Land Use Code | 11 |
| Open Space: | N | DFL | N |
| Historic Property: | N | Remodel Property: | N |
| Multi-Family Redevelopment: | N | | |
| Township: | | Section: | |
| Range: | |
Location |
| Address: | 321 CAMALOCH DR CAMANO ISLAND, WA 98282 | Mapsco: | |
| Neighborhood: | Cycle 5 | Map ID: | 995 |
| Neighborhood CD: | 5 |
Owner |
| Name: | HAMLIN, JONATHAN | Owner ID: | 312820 |
| Mailing Address: | JUANITA HAMLIN 321 CAMALOCH DR CAMANO ISLAND, WA 98282 | % Ownership: | 100.0000000000% |
| | | Exemptions: | |
Taxes and Assessment Details
Values
| (+) Improvement Homesite Value: | + | $0 | |
| (+) Improvement Non-Homesite Value: | + | $487,567 | |
| (+) Land Homesite Value: | + | $0 | |
| (+) Land Non-Homesite Value: | + | $310,000 | |
| (+) Curr Use (HS): | + | $0 | $0 |
| (+) Curr Use (NHS): | + | $0 | $0 |
| | | -------------------------- | |
| (=) Market Value: | = | $797,567 | |
| (–) Productivity Loss: | – | $0 | |
| | | -------------------------- | |
| (=) Subtotal: | = | $797,567 | |
| (+) Senior Appraised Value: | + | $0 | |
| (+) Non-Senior Appraised Value: | + | $797,567 | |
| | | -------------------------- | |
| (=) Total Appraised Value: | = | $797,567 | |
| (–) Senior Exemption Loss: | – | $0 | |
| (–) Exemption Loss: | – | $0 | |
| | | -------------------------- | |
| (=) Taxable Value: | = | $797,567 | |
Taxing Jurisdiction
| Owner: | HAMLIN, JONATHAN | | |
| % Ownership: | 100.0000000000% | | |
| Total Value: | $797,567 | | |
| Tax Area: | 590 - APPRAISER-Stan/Cam Schl Dist, Special Dist, improved & less than 1 acre |
| CF | Conservation Futures | 0.0313996660 | $797,567 | $797,567 | $25.04 | | |
| EMS1 | Fire & Rescue Dist #1 Camano GEN (EMS) | 0.4998471806 | $797,567 | $797,567 | $398.66 | | |
| FIRE1 | Fire & Rescue Dist #1 Camano GEN | 1.2496603404 | $797,567 | $797,567 | $996.69 | | |
| FIRE1BOND | Fire & Rescue Dist #1 Camano BOND | 0.1630371212 | $797,567 | $797,567 | $130.03 | | |
| CE | County Current Expense | 0.3674210519 | $797,567 | $797,567 | $293.04 | | |
| CR | County Roads | 0.4614296361 | $797,567 | $797,567 | $368.02 | | |
| LIB | Library Sno-Isle GEN | 0.3039084203 | $797,567 | $797,567 | $242.39 | | |
| SCH205_401 | School 205-401 Enrichment | 1.3697998934 | $797,567 | $797,567 | $1,092.51 | | |
| SCH205BOND | School 205-401 BOND | 0.9354199323 | $797,567 | $797,567 | $746.06 | | |
| ST | State School | 1.4761226122 | $797,567 | $797,567 | $1,177.31 | | |
| ST2 | State School Part 2 | 0.7953803475 | $797,567 | $797,567 | $634.37 | | |
| | Total Tax Rate: | 7.6534262019 | | | | | |
| | | | | Taxes w/Current Exemptions: | $6,104.12 | | |
| | | | | Taxes w/o Exemptions: | $6,104.12 | | |
Improvement / Building
| Improvement #1: | RESIDENTIAL | State Code: | Y | 1603.0 sqft | Value: | $487,567 |
| Bathrooms: | 1.75 | Bedrooms: | 2 | | Ceiling: | DRYWALL PAINTED | Exterior Wall/Cover: | WOOD SIDING | | Floor Covering: | HARDWOOD/CARP 60-40 | Floor Structure: | WOOD W/SUBFLOOR | | Foundation: | CONCRETE | Heating: | FHA GAS | | Interior Finish: | DRYWALL PAINT | Plumbing Fixture Cnt: | 13 | | Roof Slope: | 4" IN 12" | Roof Structure/Cover: | CJ ASPHALT |
|
| | Type | Description | Class CD | Sub Class CD | Year Built | Area |
| | BAS | BASE/MAIN FLOOR | 4 | 0 | 1985 | 1603.0 |
| | UB8 | BASEMENT UNFINISHED 8" | 4 | 0 | 1985 | 216.0 |
| | OP4 | OPEN PORCH W/CEILING-ROOF | 4 | 0 | 1985 | 114.0 |
| | AGR | ATTACHED GARAGE | 4 | 0 | 1985 | 525.0 |
| | BGR | BASEMENT GARAGE | 4 | 0 | 1985 | 192.0 |
| | OWP | OPEN WOOD PORCH W/STEPS | 4 | 0 | 1985 | 468.0 |
Sketch
Property Image
Land
| 1 | 15 | SQ (12001-21780) | 0.0000 | 0.00 | 0.00 | 0.00 | 1.00 | $310,000 | $0 |
Roll Value History
| 2026 | N/A | N/A | N/A | N/A | N/A |
| 2025 | $487,567 | $310,000 | $0 | $797,567 | $797,567 |
| 2024 | $491,665 | $300,000 | $0 | $791,665 | $791,665 |
| 2023 | $496,034 | $260,000 | $0 | $756,034 | $756,034 |
| 2022 | $452,620 | $210,000 | $0 | $662,620 | $662,620 |
| 2021 | $390,574 | $200,000 | $0 | $590,574 | $590,574 |
| 2020 | $377,883 | $140,000 | $0 | $517,883 | $517,883 |
| 2019 | $276,928 | $200,000 | $0 | $476,928 | $476,928 |
| 2018 | $237,560 | $145,000 | $0 | $382,560 | $382,560 |
| 2017 | $238,887 | $120,000 | $0 | $358,887 | $358,887 |
| 2016 | $241,542 | $115,000 | $0 | $356,542 | $356,542 |
| 2015 | $237,897 | $115,000 | $0 | $352,897 | $352,897 |
| 2014 | $240,486 | $100,000 | $0 | $340,486 | $340,486 |
| 2013 | $243,075 | $100,000 | $0 | $343,075 | $343,075 |
| 2012 | $245,663 | $100,000 | $0 | $345,663 | $345,663 |
| 2011 | $248,253 | $125,000 | $0 | $373,253 | $373,253 |
| 2010 | $253,938 | $125,000 | $0 | $378,938 | $378,938 |
| 2009 | $268,683 | $150,000 | $0 | $418,683 | $418,683 |
| 2008 | $268,932 | $175,000 | $0 | $443,932 | $443,932 |
| 2007 | $171,723 | $150,000 | $0 | $321,723 | $321,723 |
Deed and Sales History
| 1 | 06/12/2024 | QCD | Quit Claim Deed | HAMLIN, JON | HAMLIN, JONATHAN | | | $0.00 | 60378 | 4573663 |
| 2 | 06/01/2018 | WD | Warranty Deed | MYERS, ROGER L | HAMLIN, JON | | | $481,000.00 | 34422 | 4445762 |
| 3 | 04/17/2007 | WD | Warranty Deed | HANSEN, CATHERINE I | MYERS, ROGER L | | | $395,000.00 | 71362 | 4200621 |
| 4 | 06/22/1998 | OTHER | Other - Misc. Documents | HANSEN, W B | HANSEN, CATHERINE I | | | $0.00 | 67898 | 0 |
| 5 | 06/01/1998 | OTHER | Other - Misc. Documents | Unknown | HANSEN, CATHERINE I | | | $0.00 | 67898 | 0 |
| 6 | 06/01/1984 | WD | Warranty Deed | SHOWLUND, LAWRENCE V | HANSEN, W B | | | $23,500.00 | 41923 | 84000185 |
| 7 | 01/01/1900 | OTHER | Other - Misc. Documents | HANSEN, CATHERINE I | SHOWLUND, LAWRENCE V | | | $0.00 | 0 | 0 |
Payout Agreement
| No payout information available.. |