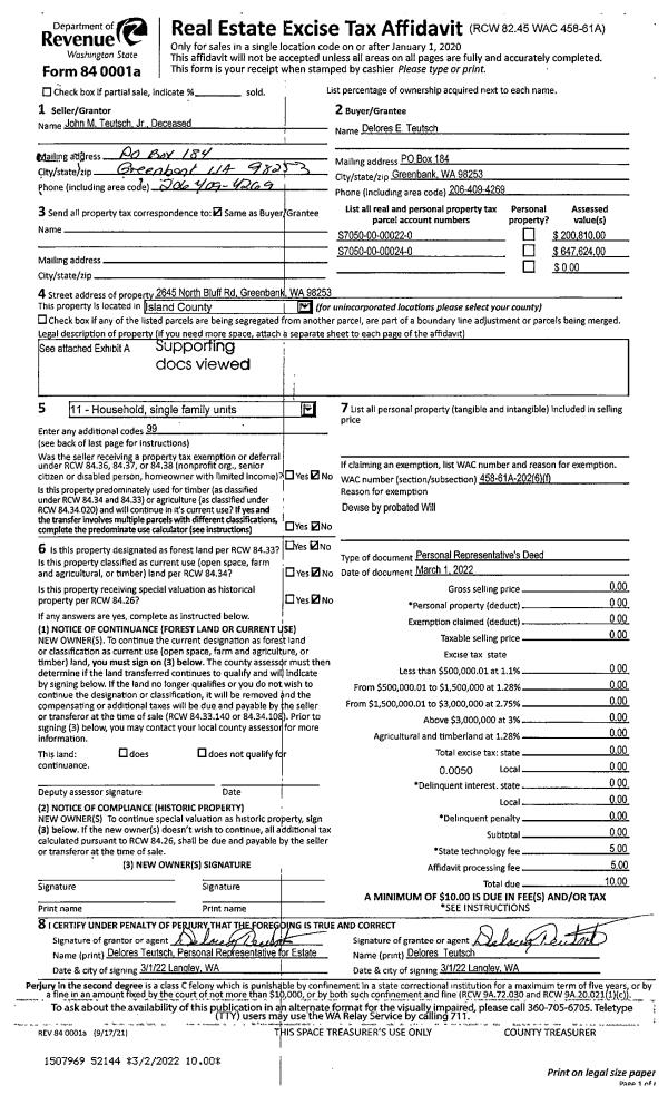
Property
Account |
| Property ID: | 205860 | Abbreviated Legal Description: | CAMALOCH 1 LOT 138 |
| Geographic ID: | S6235-00-00138-0 | Agent Code: | |
| Type: | Real | | |
| Tax Area: | 590 - APPRAISER-Stan/Cam Schl Dist, Special Dist, improved & less than 1 acre | Land Use Code | 11 |
| Open Space: | N | DFL | N |
| Historic Property: | N | Remodel Property: | N |
| Multi-Family Redevelopment: | N | | |
| Township: | | Section: | |
| Range: | |
Location |
| Address: | 284 DUNDEE DR CAMANO ISLAND, WA 98282 | Mapsco: | |
| Neighborhood: | Cycle 5 | Map ID: | 995 |
| Neighborhood CD: | 5 |
Owner |
| Name: | FORD, CHRISTINA | Owner ID: | 289035 |
| Mailing Address: | KEVIN A FORD 284 DUNDEE DR CAMANO ISLAND, WA 98282 | % Ownership: | 100.0000000000% |
| | | Exemptions: | |
Taxes and Assessment Details
Values
| (+) Improvement Homesite Value: | + | $0 | |
| (+) Improvement Non-Homesite Value: | + | $240,628 | |
| (+) Land Homesite Value: | + | $0 | |
| (+) Land Non-Homesite Value: | + | $260,000 | |
| (+) Curr Use (HS): | + | $0 | $0 |
| (+) Curr Use (NHS): | + | $0 | $0 |
| | | -------------------------- | |
| (=) Market Value: | = | $500,628 | |
| (–) Productivity Loss: | – | $0 | |
| | | -------------------------- | |
| (=) Subtotal: | = | $500,628 | |
| (+) Senior Appraised Value: | + | $0 | |
| (+) Non-Senior Appraised Value: | + | $500,628 | |
| | | -------------------------- | |
| (=) Total Appraised Value: | = | $500,628 | |
| (–) Senior Exemption Loss: | – | $0 | |
| (–) Exemption Loss: | – | $0 | |
| | | -------------------------- | |
| (=) Taxable Value: | = | $500,628 | |
Taxing Jurisdiction
| Owner: | FORD, CHRISTINA | | |
| % Ownership: | 100.0000000000% | | |
| Total Value: | $500,628 | | |
| Tax Area: | 590 - APPRAISER-Stan/Cam Schl Dist, Special Dist, improved & less than 1 acre |
| CF | Conservation Futures | 0.0313996660 | $500,628 | $500,628 | $15.72 | | |
| EMS1 | Fire & Rescue Dist #1 Camano GEN (EMS) | 0.4998471806 | $500,628 | $500,628 | $250.24 | | |
| FIRE1 | Fire & Rescue Dist #1 Camano GEN | 1.2496603404 | $500,628 | $500,628 | $625.61 | | |
| FIRE1BOND | Fire & Rescue Dist #1 Camano BOND | 0.1630371212 | $500,628 | $500,628 | $81.62 | | |
| CE | County Current Expense | 0.3674210519 | $500,628 | $500,628 | $183.94 | | |
| CR | County Roads | 0.4614296361 | $500,628 | $500,628 | $231.00 | | |
| LIB | Library Sno-Isle GEN | 0.3039084203 | $500,628 | $500,628 | $152.15 | | |
| SCH205_401 | School 205-401 Enrichment | 1.3697998934 | $500,628 | $500,628 | $685.76 | | |
| SCH205BOND | School 205-401 BOND | 0.9354199323 | $500,628 | $500,628 | $468.30 | | |
| ST | State School | 1.4761226122 | $500,628 | $500,628 | $738.99 | | |
| ST2 | State School Part 2 | 0.7953803475 | $500,628 | $500,628 | $398.19 | | |
| | Total Tax Rate: | 7.6534262019 | | | | | |
| | | | | Taxes w/Current Exemptions: | $3,831.52 | | |
| | | | | Taxes w/o Exemptions: | $3,831.52 | | |
Improvement / Building
| Improvement #1: | RESIDENTIAL | State Code: | Y | 1448.0 sqft | Value: | $240,628 |
| Bathrooms: | 1.75 | Bedrooms: | 2 | | Ceiling: | DRY WALL SPRAYED | Exterior Wall/Cover: | PLY/HARDBOARD T-111 | | Floor Covering: | CARPET/VINYL 20-80 | Floor Structure: | WOOD W/SUBFLOOR | | Foundation: | CONCRETE | Heating: | BASEBOARD ELECTRIC | | Interior Finish: | DRYWALL PAINT | Plumbing Fixture Cnt: | 9 | | Roof Slope: | 4" IN 12" | Roof Structure/Cover: | CJ ASPHALT |
|
| | Type | Description | Class CD | Sub Class CD | Year Built | Area |
| | BAS | BASE/MAIN FLOOR | 3 | 0 | 1982 | 1448.0 |
| | OP3 | OPEN PORCH W/ROOF | 3 | 0 | 1982 | 48.0 |
| | AGR | ATTACHED GARAGE | 3 | 0 | 1982 | 240.0 |
| | UTY | STORAGE/UTILITY | 3 | 0 | 1982 | 108.0 |
| | OWP | OPEN WOOD PORCH W/STEPS | 3 | 0 | 1982 | 261.0 |
| | CPD | OPEN CARPORT DIRT FLOOR | 3 | 0 | 1982 | 70.0 |
Sketch
Property Image
Land
| 1 | 14 | SQ (08001-12000) | 0.0000 | 0.00 | 0.00 | 0.00 | 1.00 | $260,000 | $0 |
Roll Value History
| 2026 | N/A | N/A | N/A | N/A | N/A |
| 2025 | $240,628 | $260,000 | $0 | $500,628 | $500,628 |
| 2024 | $248,856 | $250,000 | $0 | $498,856 | $498,856 |
| 2023 | $251,956 | $250,000 | $0 | $501,956 | $501,956 |
| 2022 | $230,958 | $210,000 | $0 | $440,958 | $440,958 |
| 2021 | $198,392 | $165,000 | $0 | $363,392 | $363,392 |
| 2020 | $193,259 | $135,000 | $0 | $328,259 | $328,259 |
| 2019 | $139,921 | $175,000 | $0 | $314,921 | $314,921 |
| 2018 | $146,209 | $145,000 | $0 | $291,209 | $291,209 |
| 2017 | $147,054 | $100,000 | $0 | $247,054 | $247,054 |
| 2016 | $148,745 | $85,000 | $0 | $233,745 | $233,745 |
| 2015 | $121,371 | $65,000 | $0 | $186,371 | $186,371 |
| 2014 | $123,008 | $55,000 | $0 | $178,008 | $178,008 |
| 2013 | $124,645 | $55,000 | $0 | $179,645 | $179,645 |
| 2012 | $126,282 | $60,000 | $0 | $186,282 | $186,282 |
| 2011 | $127,920 | $65,000 | $0 | $192,920 | $192,920 |
| 2010 | $134,024 | $76,000 | $0 | $210,024 | $210,024 |
| 2009 | $138,454 | $100,000 | $0 | $238,454 | $238,454 |
| 2008 | $140,222 | $125,000 | $0 | $265,222 | $265,222 |
| 2007 | $141,995 | $100,000 | $0 | $241,995 | $241,995 |
Deed and Sales History
| 1 | 03/05/2019 | WD | Warranty Deed | BROTHERTON, JUDITH JOY | FORD, CHRISTINA | | | $315,000.00 | 37819 | 4460246 |
| 2 | 10/29/2015 | WD | Warranty Deed | MULLEN, FORD P JR / JEANETTE | BROTHERTON, JUDITH JOY | | | $229,000.00 | 22031 | 4388867 |
| 3 | 03/01/1998 | WD | Warranty Deed | BANKS, CLAIRE O | MULLEN, FORD P | | | $125,000.00 | 81111 | 98006092 |
| 4 | 08/01/1997 | ESTSEPPROP | Establish Separate Property | BANKS, CLAIRE O | BANKS, CLAIRE O | | | $0.00 | 72848 | 97013535 |
| 5 | 02/01/1988 | PRD | Personal Representatives Deed | AMENDT, WILLIAM J | BANKS, CLAIRE O | | | $59,000.00 | 80404 | 88001697 |
| 6 | 09/01/1986 | PRD | Personal Representatives Deed | AMENDT, WILLIAM J | AMENDT, WILLIAM J | | | $0.00 | 62661 | 86012080 |
| 7 | 10/01/1983 | WD | Warranty Deed | KAELSON, KENNETH F | AMENDT, WILLIAM J | | | $71,200.00 | 32995 | 416079 |
| 8 | 03/01/1981 | EXECUTORD | Executor Deed | HALE, JAMES F | KAELSON, KENNETH F | | | $10,500.00 | 10837 | 380904 |
| 9 | 05/01/1978 | OTHER | Other - Misc. Documents | Unknown | HALE, JAMES F | | | $2,000.00 | 82924 | 334952 |
Payout Agreement
| No payout information available.. |