Property
Account |
| Property ID: | 206422 | Abbreviated Legal Description: | CAMALOCH 2 LOT 39 |
| Geographic ID: | S6235-02-00039-0 | Agent Code: | |
| Type: | Real | | |
| Tax Area: | 590 - APPRAISER-Stan/Cam Schl Dist, Special Dist, improved & less than 1 acre | Land Use Code | 11 |
| Open Space: | N | DFL | N |
| Historic Property: | N | Remodel Property: | N |
| Multi-Family Redevelopment: | N | | |
| Township: | | Section: | |
| Range: | |
Location |
| Address: | 250 MACKENZIE DR CAMANO ISLAND, WA 98282 | Mapsco: | |
| Neighborhood: | Cycle 5 | Map ID: | 995 |
| Neighborhood CD: | 5 |
Owner |
| Name: | DEBOER, TRYGVE | Owner ID: | 315099 |
| Mailing Address: | JOHN P DEBOER, JR KAIA ANNE DEBOER 250 MACKENZIE DR CAMANO ISLAND, WA 98282 | % Ownership: | 100.0000000000% |
| | | Exemptions: | |
Taxes and Assessment Details
Values
| (+) Improvement Homesite Value: | + | $0 | |
| (+) Improvement Non-Homesite Value: | + | $257,214 | |
| (+) Land Homesite Value: | + | $0 | |
| (+) Land Non-Homesite Value: | + | $260,000 | |
| (+) Curr Use (HS): | + | $0 | $0 |
| (+) Curr Use (NHS): | + | $0 | $0 |
| | | -------------------------- | |
| (=) Market Value: | = | $517,214 | |
| (–) Productivity Loss: | – | $0 | |
| | | -------------------------- | |
| (=) Subtotal: | = | $517,214 | |
| (+) Senior Appraised Value: | + | $0 | |
| (+) Non-Senior Appraised Value: | + | $517,214 | |
| | | -------------------------- | |
| (=) Total Appraised Value: | = | $517,214 | |
| (–) Senior Exemption Loss: | – | $0 | |
| (–) Exemption Loss: | – | $0 | |
| | | -------------------------- | |
| (=) Taxable Value: | = | $517,214 | |
Taxing Jurisdiction
| Owner: | DEBOER, TRYGVE | | |
| % Ownership: | 100.0000000000% | | |
| Total Value: | $517,214 | | |
| Tax Area: | 590 - APPRAISER-Stan/Cam Schl Dist, Special Dist, improved & less than 1 acre |
| CF | Conservation Futures | 0.0313996660 | $517,214 | $517,214 | $16.24 | | |
| EMS1 | Fire & Rescue Dist #1 Camano GEN (EMS) | 0.4998471806 | $517,214 | $517,214 | $258.53 | | |
| FIRE1 | Fire & Rescue Dist #1 Camano GEN | 1.2496603404 | $517,214 | $517,214 | $646.34 | | |
| FIRE1BOND | Fire & Rescue Dist #1 Camano BOND | 0.1630371212 | $517,214 | $517,214 | $84.33 | | |
| CE | County Current Expense | 0.3674210519 | $517,214 | $517,214 | $190.04 | | |
| CR | County Roads | 0.4614296361 | $517,214 | $517,214 | $238.66 | | |
| LIB | Library Sno-Isle GEN | 0.3039084203 | $517,214 | $517,214 | $157.19 | | |
| SCH205_401 | School 205-401 Enrichment | 1.3697998934 | $517,214 | $517,214 | $708.48 | | |
| SCH205BOND | School 205-401 BOND | 0.9354199323 | $517,214 | $517,214 | $483.81 | | |
| ST | State School | 1.4761226122 | $517,214 | $517,214 | $763.47 | | |
| ST2 | State School Part 2 | 0.7953803475 | $517,214 | $517,214 | $411.38 | | |
| | Total Tax Rate: | 7.6534262019 | | | | | |
| | | | | Taxes w/Current Exemptions: | $3,958.47 | | |
| | | | | Taxes w/o Exemptions: | $3,958.47 | | |
Improvement / Building
| Improvement #1: | RESIDENTIAL | State Code: | Y | 1318.0 sqft | Value: | $257,214 |
| Bathrooms: | 2 | Bedrooms: | 2 | | Ceiling: | DRY WALL SPRAYED | Exterior Wall/Cover: | PLY/HARDBOARD T-111 | | Floor Covering: | CARPET/VINYL 80-20 | Floor Structure: | WOOD W/SUBFLOOR | | Foundation: | CONCRETE | Heating: | FHA GAS | | Interior Finish: | DRYWALL PAINT | Plumbing Fixture Cnt: | 9 | | Roof Slope: | 4" IN 12" | Roof Structure/Cover: | CJ METAL |
|
| | Type | Description | Class CD | Sub Class CD | Year Built | Area |
| | BAS | BASE/MAIN FLOOR | 3 | 0 | 1973 | 1318.0 |
| | AGR | ATTACHED GARAGE | 3 | 0 | 1973 | 504.0 |
| | OP4 | OPEN PORCH W/CEILING-ROOF | 3 | 0 | 1973 | 190.0 |
Sketch
Property Image
Land
| 1 | 14 | SQ (08001-12000) | 0.0000 | 0.00 | 0.00 | 0.00 | 1.00 | $260,000 | $0 |
Roll Value History
| 2026 | N/A | N/A | N/A | N/A | N/A |
| 2025 | $257,214 | $260,000 | $0 | $517,214 | $517,214 |
| 2024 | $268,916 | $250,000 | $0 | $518,916 | $518,916 |
| 2023 | $272,443 | $250,000 | $0 | $522,443 | $522,443 |
| 2022 | $249,896 | $210,000 | $0 | $459,896 | $459,896 |
| 2021 | $206,466 | $165,000 | $0 | $371,466 | $371,466 |
| 2020 | $201,387 | $135,000 | $0 | $336,387 | $336,387 |
| 2019 | $145,289 | $175,000 | $0 | $320,289 | $320,289 |
| 2018 | $145,764 | $145,000 | $0 | $290,764 | $290,764 |
| 2017 | $146,717 | $100,000 | $0 | $246,717 | $246,717 |
| 2016 | $148,623 | $85,000 | $0 | $233,623 | $233,623 |
| 2015 | $126,257 | $65,000 | $0 | $191,257 | $191,257 |
| 2014 | $128,058 | $55,000 | $0 | $183,058 | $183,058 |
| 2013 | $129,859 | $55,000 | $0 | $184,859 | $184,859 |
| 2012 | $131,659 | $60,000 | $0 | $191,659 | $191,659 |
| 2011 | $133,460 | $65,000 | $0 | $198,460 | $198,460 |
| 2010 | $141,615 | $76,000 | $0 | $217,615 | $217,615 |
| 2009 | $133,418 | $100,000 | $0 | $233,418 | $233,418 |
| 2008 | $135,282 | $125,000 | $0 | $260,282 | $260,282 |
| 2007 | $137,545 | $99,602 | $0 | $237,147 | $237,147 |
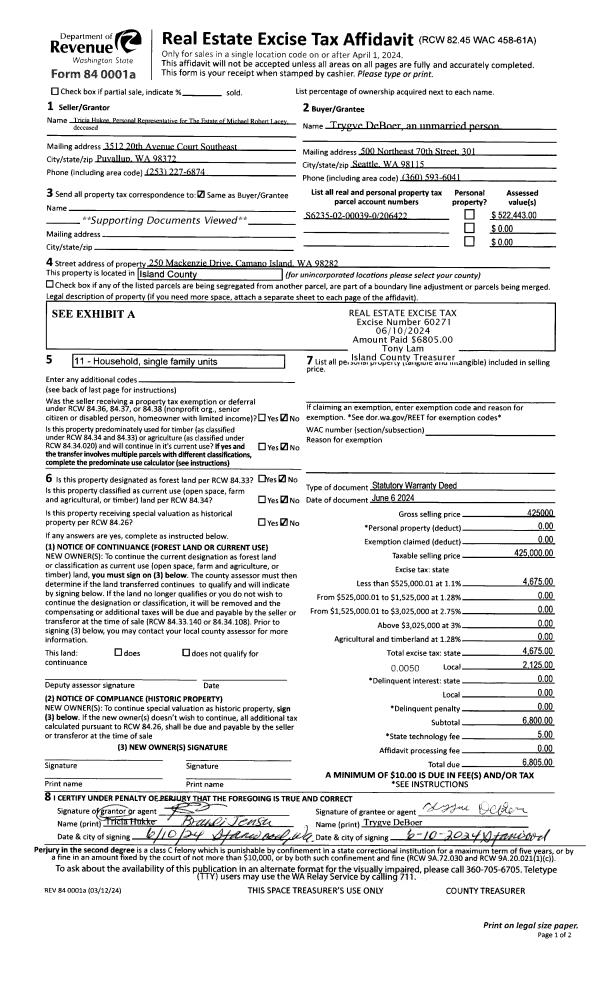
Deed and Sales History
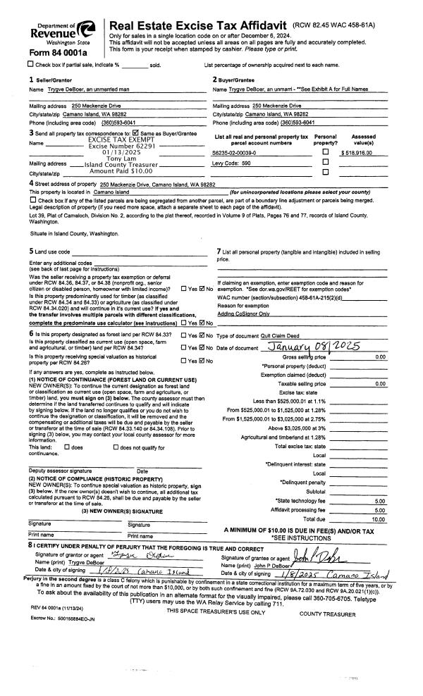
| 1 | 01/08/2025 | QCD | Quit Claim Deed | DEBOER, TRYGVE | DEBOER, TRYGVE | | | $0.00 | 62291 | 4581170 |
| 2 | 06/06/2024 | WD | Warranty Deed | ESTATE OF MICHAEL ROBER LACEY | DEBOER, TRYGVE | | | $425,000.00 | 60271 | 4573286 |
| 3 | 07/16/2010 | WD | Warranty Deed | O'BRYAN, EARL H | LACEY, MICHAEL ROBERT | | | $195,000.00 | 1792 | 4277400 |
| 4 | 10/24/2006 | ESTSEPPROP | Establish Separate Property | O'BRYAN, EARL H | O'BRYAN, EARL H | | | $0.00 | 34560 | 4185076 |
| 5 | 08/14/2006 | QCD | Quit Claim Deed | O'BRYAN, EARL H | O'BRYAN, EARL H | | | $0.00 | 63660 | 4179127 |
| 6 | 08/14/2006 | ESTSEPPROP | Establish Separate Property | O'BRYAN, EARL H | O'BRYAN, EARL H | | | $0.00 | 63536 | 4179127 |
| 7 | 09/01/1987 | WD | Warranty Deed | DOLVIN, T S | O'BRYAN, EARL H | | | $63,500.00 | 72734 | 87012338 |
| 8 | 01/01/1900 | OTHER | Other - Misc. Documents | Unknown | DOLVIN, T S | | | $0.00 | 0 | 0 |
Payout Agreement
| No payout information available.. |