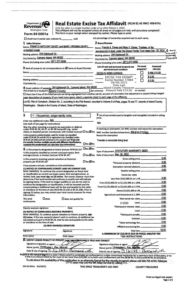
Property
Account |
| Property ID: | 206636 | Abbreviated Legal Description: | CAMALOCH 2 LOT 60 |
| Geographic ID: | S6235-02-00060-0 | Agent Code: | |
| Type: | Real | | |
| Tax Area: | 590 - APPRAISER-Stan/Cam Schl Dist, Special Dist, improved & less than 1 acre | Land Use Code | 11 |
| Open Space: | N | DFL | N |
| Historic Property: | N | Remodel Property: | N |
| Multi-Family Redevelopment: | N | | |
| Township: | | Section: | |
| Range: | |
Location |
| Address: | 254 EDINBURGH DR CAMANO ISLAND, WA 98282 | Mapsco: | |
| Neighborhood: | Cycle 5 | Map ID: | 995 |
| Neighborhood CD: | 5 |
Owner |
| Name: | DAVEY TTEE, FRANCIS A | Owner ID: | 309963 |
| Mailing Address: | MARY V DAVEY TTEE 254 EDINBURGH DR CAMANO ISLAND, WA 98282 | % Ownership: | 100.0000000000% |
| | | Exemptions: | |
Taxes and Assessment Details
Values
| (+) Improvement Homesite Value: | + | $0 | |
| (+) Improvement Non-Homesite Value: | + | $311,081 | |
| (+) Land Homesite Value: | + | $0 | |
| (+) Land Non-Homesite Value: | + | $260,000 | |
| (+) Curr Use (HS): | + | $0 | $0 |
| (+) Curr Use (NHS): | + | $0 | $0 |
| | | -------------------------- | |
| (=) Market Value: | = | $571,081 | |
| (–) Productivity Loss: | – | $0 | |
| | | -------------------------- | |
| (=) Subtotal: | = | $571,081 | |
| (+) Senior Appraised Value: | + | $0 | |
| (+) Non-Senior Appraised Value: | + | $571,081 | |
| | | -------------------------- | |
| (=) Total Appraised Value: | = | $571,081 | |
| (–) Senior Exemption Loss: | – | $0 | |
| (–) Exemption Loss: | – | $0 | |
| | | -------------------------- | |
| (=) Taxable Value: | = | $571,081 | |
Taxing Jurisdiction
| Owner: | DAVEY TTEE, FRANCIS A | | |
| % Ownership: | 100.0000000000% | | |
| Total Value: | $571,081 | | |
| Tax Area: | 590 - APPRAISER-Stan/Cam Schl Dist, Special Dist, improved & less than 1 acre |
| CF | Conservation Futures | 0.0313996660 | $571,081 | $571,081 | $17.93 | | |
| EMS1 | Fire & Rescue Dist #1 Camano GEN (EMS) | 0.4998471806 | $571,081 | $571,081 | $285.45 | | |
| FIRE1 | Fire & Rescue Dist #1 Camano GEN | 1.2496603404 | $571,081 | $571,081 | $713.66 | | |
| FIRE1BOND | Fire & Rescue Dist #1 Camano BOND | 0.1630371212 | $571,081 | $571,081 | $93.11 | | |
| CE | County Current Expense | 0.3674210519 | $571,081 | $571,081 | $209.83 | | |
| CR | County Roads | 0.4614296361 | $571,081 | $571,081 | $263.51 | | |
| LIB | Library Sno-Isle GEN | 0.3039084203 | $571,081 | $571,081 | $173.56 | | |
| SCH205_401 | School 205-401 Enrichment | 1.3697998934 | $571,081 | $571,081 | $782.27 | | |
| SCH205BOND | School 205-401 BOND | 0.9354199323 | $571,081 | $571,081 | $534.20 | | |
| ST | State School | 1.4761226122 | $571,081 | $571,081 | $842.99 | | |
| ST2 | State School Part 2 | 0.7953803475 | $571,081 | $571,081 | $454.23 | | |
| | Total Tax Rate: | 7.6534262019 | | | | | |
| | | | | Taxes w/Current Exemptions: | $4,370.74 | | |
| | | | | Taxes w/o Exemptions: | $4,370.74 | | |
Improvement / Building
| Improvement #1: | RESIDENTIAL | State Code: | Y | 1540.0 sqft | Value: | $311,081 |
| Bathrooms: | 2 | Bedrooms: | 2 | | Ceiling: | DRYWALL PAINTED | Exterior Wall/Cover: | PLY/HARDBOARD T-111 | | Floor Covering: | HARDWOOD/CARP 20-80 | Floor Structure: | WOOD W/SUBFLOOR | | Foundation: | CONCRETE | Heating: | FHA GAS | | Interior Finish: | DRYWALL PAINT | Plumbing Fixture Cnt: | 10 | | Roof Slope: | 4" IN 12" | Roof Structure/Cover: | CJ ASPHALT |
|
| | Type | Description | Class CD | Sub Class CD | Year Built | Area |
| | BAS | BASE/MAIN FLOOR | 3 | 0 | 1996 | 1540.0 |
| | AGR | ATTACHED GARAGE | 3 | 0 | 1996 | 462.0 |
| | OWP | OPEN WOOD PORCH W/STEPS | 3 | 0 | 1996 | 315.0 |
| | OWC | OPEN WOOD PORCH W/STEPS/ROOF/C | 3 | 0 | 1996 | 150.0 |
| | OWC | OPEN WOOD PORCH W/STEPS/ROOF/C | 3 | 0 | 1996 | 67.0 |
Sketch
Property Image
Land
| 1 | 14 | SQ (08001-12000) | 0.0000 | 0.00 | 0.00 | 0.00 | 1.00 | $260,000 | $0 |
Roll Value History
| 2026 | N/A | N/A | N/A | N/A | N/A |
| 2025 | $311,081 | $260,000 | $0 | $571,081 | $571,081 |
| 2024 | $314,818 | $250,000 | $0 | $564,818 | $564,818 |
| 2023 | $318,555 | $250,000 | $0 | $568,555 | $568,555 |
| 2022 | $278,310 | $210,000 | $0 | $488,310 | $488,310 |
| 2021 | $239,071 | $165,000 | $0 | $404,071 | $404,071 |
| 2020 | $232,823 | $135,000 | $0 | $367,823 | $199,700 |
| 2019 | $168,985 | $175,000 | $0 | $343,985 | $199,700 |
| 2018 | $169,493 | $145,000 | $0 | $314,493 | $199,700 |
| 2017 | $170,507 | $100,000 | $0 | $270,507 | $199,700 |
| 2016 | $172,539 | $85,000 | $0 | $257,539 | $199,700 |
| 2015 | $180,307 | $65,000 | $0 | $245,307 | $129,805 |
| 2014 | $182,463 | $55,000 | $0 | $237,463 | $199,700 |
| 2013 | $184,619 | $55,000 | $0 | $239,619 | $199,700 |
| 2012 | $186,777 | $60,000 | $0 | $246,777 | $199,700 |
| 2011 | $188,933 | $65,000 | $0 | $253,933 | $199,700 |
| 2010 | $197,227 | $76,000 | $0 | $273,227 | $199,700 |
| 2009 | $195,294 | $100,000 | $0 | $295,294 | $295,294 |
| 2008 | $197,991 | $125,000 | $0 | $322,991 | $199,700 |
| 2007 | $200,713 | $100,000 | $0 | $300,713 | $199,700 |
Deed and Sales History
| 1 | 12/30/2022 | WD | Warranty Deed | DAVEY, FRANCIS ANTHONY | DAVEY TTEE, FRANCIS A | | | $0.00 | 57884 | 4564358 |
| 2 | 08/18/2022 | WD | Warranty Deed | SCHOT, HARALD N. | DAVEY, FRANCIS ANTHONY | | | $625,000.00 | 54200 | 4549902 |
| 3 | 06/15/2021 | QCD | Quit Claim Deed | LEWIS-SCHOT, JULIE | SCHOT, HARALD N. | | | $0.00 | 48736 | 4522152 |
| 4 | 06/11/2021 | WD | Warranty Deed | GETTY, PATRICK H & E JOY | SCHOT, HARALD N. | | | $451,000.00 | 48735 | 4522151 |
| 5 | 04/01/1996 | WD | Warranty Deed | WADE-DAVIS, CONSTRUCTION I | GETTY, PATRICK H | | | $140,000.00 | 61324 | 96006751 |
| 6 | 09/01/1995 | QCD | Quit Claim Deed | WADE, MICHAEL L | WADE-DAVIS, CONSTRUCTION I | | | $32,000.00 | 61323 | 96006750 |
| 7 | 07/01/1988 | WD | Warranty Deed | WILDE, RICHARD J | WADE, MICHAEL L | | | $3,000.00 | 82110 | 88007780 |
| 8 | 08/01/1987 | WD | Warranty Deed | WILDE, RICHARD J | WILDE, RICHARD J | | | $1,200.00 | 72643 | 87011977 |
| 9 | 08/01/1987 | QCD | Quit Claim Deed | HAMES, G H | WILDE, RICHARD J | | | $0.00 | 72644 | 87011978 |
| 10 | 01/01/1900 | OTHER | Other - Misc. Documents | Unknown | HAMES, G H | | | $0.00 | 0 | 0 |
Payout Agreement
| No payout information available.. |