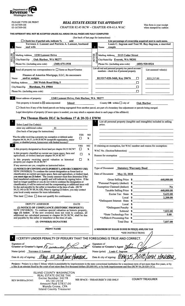
Property
Account |
| Property ID: | 20676 | Abbreviated Legal Description: | 51 HASTIE DC - BG NE CR SEC 17 S01*W3234' N88*W2681' S01*W243' S45*E2193.82' TO RD S43*W325.04' TPB N45* W1143.39' S44*W325' S45* E1148.77' N43*E325.05' TPB EX PT TO ST HWY AF#4133272 |
| Geographic ID: | R13217-028-3460 | Agent Code: | |
| Type: | Real | | |
| Tax Area: | 112 - APPRAISER-OH Schl Dist, outside OH, improved, greater than 1 acre | Land Use Code | 11 |
| Open Space: | N | DFL | N |
| Historic Property: | N | Remodel Property: | N |
| Multi-Family Redevelopment: | N | | |
| Township: | 32 | Section: | 17 |
| Range: | R1 |
Location |
| Address: | 1248 LAMONT DR OAK HARBOR, WA 98277 | Mapsco: | |
| Neighborhood: | Cycle 1 | Map ID: | 133 |
| Neighborhood CD: | 1 |
Owner |
| Name: | INGRAM, LOUIS C | Owner ID: | 285201 |
| Mailing Address: | TONI M RAY-INGRAM 1248 LAMONT DRIVE OAK HARBOR, WA 98277 | % Ownership: | 100.0000000000% |
| | | Exemptions: | |
Taxes and Assessment Details
Values
| (+) Improvement Homesite Value: | + | $0 | |
| (+) Improvement Non-Homesite Value: | + | $365,803 | |
| (+) Land Homesite Value: | + | $0 | |
| (+) Land Non-Homesite Value: | + | $290,000 | |
| (+) Curr Use (HS): | + | $0 | $0 |
| (+) Curr Use (NHS): | + | $0 | $0 |
| | | -------------------------- | |
| (=) Market Value: | = | $655,803 | |
| (–) Productivity Loss: | – | $0 | |
| | | -------------------------- | |
| (=) Subtotal: | = | $655,803 | |
| (+) Senior Appraised Value: | + | $0 | |
| (+) Non-Senior Appraised Value: | + | $655,803 | |
| | | -------------------------- | |
| (=) Total Appraised Value: | = | $655,803 | |
| (–) Senior Exemption Loss: | – | $0 | |
| (–) Exemption Loss: | – | $0 | |
| | | -------------------------- | |
| (=) Taxable Value: | = | $655,803 | |
Taxing Jurisdiction
| Owner: | INGRAM, LOUIS C | | |
| % Ownership: | 100.0000000000% | | |
| Total Value: | $655,803 | | |
| Tax Area: | 112 - APPRAISER-OH Schl Dist, outside OH, improved, greater than 1 acre |
| CF | Conservation Futures | 0.0313996660 | $655,803 | $655,803 | $20.59 | | |
| CEM1 | Cemetery #1 | 0.0040018856 | $655,803 | $655,803 | $2.62 | | |
| FIRE2 | Fire & Rescue Dist #2 N Whidbey GEN | 0.5381486274 | $655,803 | $655,803 | $352.92 | | |
| HOBOND | Hospital BOND | 0.1893405597 | $655,803 | $655,803 | $124.17 | | |
| HOGEN | Hospital GEN | 0.3848777722 | $655,803 | $655,803 | $252.40 | | |
| CE | County Current Expense | 0.3674210519 | $655,803 | $655,803 | $240.96 | | |
| CR | County Roads | 0.4614296361 | $655,803 | $655,803 | $302.61 | | |
| ISLANDEMS | Hospital GEN (EMS) | 0.4952018576 | $655,803 | $655,803 | $324.75 | | |
| LIB | Library Sno-Isle GEN | 0.3039084203 | $655,803 | $655,803 | $199.30 | | |
| NWHIDPRMT | P & R N Whidbey GEN | 0.1990272349 | $655,803 | $655,803 | $130.52 | | |
| SCH201MO | School 201 Enrichment | 2.3851112745 | $655,803 | $655,803 | $1,564.16 | | |
| ST | State School | 1.4761226122 | $655,803 | $655,803 | $968.05 | | |
| ST2 | State School Part 2 | 0.7953803475 | $655,803 | $655,803 | $521.61 | | |
| | Total Tax Rate: | 7.6313709459 | | | | | |
| | | | | Taxes w/Current Exemptions: | $5,004.66 | | |
| | | | | Taxes w/o Exemptions: | $5,004.66 | | |
Improvement / Building
| Improvement #1: | RESIDENTIAL | State Code: | Y | 1730.0 sqft | Value: | $365,803 |
| Bathrooms: | 1.75 | Bedrooms: | 3 | | Ceiling: | DRY WALL SPRAYED | Exterior Wall/Cover: | PLY/HARDBOARD T-111 | | Floor Covering: | CARPET/VINYL 60-40 | Floor Structure: | WOOD W/SUBFLOOR | | Foundation: | CONCRETE | Heating: | FHA GAS | | Interior Finish: | DRYWALL PAINT | Plumbing Fixture Cnt: | 9 | | Roof Slope: | 4" IN 12" | Roof Structure/Cover: | CJ ASPHALT |
|
| | Type | Description | Class CD | Sub Class CD | Year Built | Area |
| | BAS | BASE/MAIN FLOOR | 3 | 0 | 1977 | 1730.0 |
| | DGR | DETACHED GARAGE | 3 | 0 | 1977 | 784.0 |
| | UTY | STORAGE/UTILITY | 3 | 0 | 1977 | 1748.0 |
| | UTY | STORAGE/UTILITY | 3 | 0 | 1977 | 1176.0 |
| | OP3 | OPEN PORCH W/ROOF | 3 | 0 | 1977 | 80.0 |
Sketch
Property Image
Land
| 1 | 32 | AC (03.01-09.99) | 8.4500 | 368082.00 | 8.45 | 0.00 | 1.00 | $290,000 | $0 |
Roll Value History
| 2026 | N/A | N/A | N/A | N/A | N/A |
| 2025 | $365,803 | $290,000 | $0 | $655,803 | $655,803 |
| 2024 | $370,795 | $260,000 | $0 | $630,795 | $630,795 |
| 2023 | $363,724 | $250,000 | $0 | $613,724 | $613,724 |
| 2022 | $333,850 | $220,000 | $0 | $553,850 | $553,850 |
| 2021 | $294,212 | $190,000 | $0 | $484,212 | $484,212 |
| 2020 | $287,217 | $140,000 | $0 | $427,217 | $427,217 |
| 2019 | $212,412 | $200,000 | $0 | $412,412 | $412,412 |
| 2018 | $163,686 | $170,000 | $0 | $333,686 | $333,686 |
| 2017 | $161,217 | $160,000 | $0 | $321,217 | $321,217 |
| 2016 | $163,221 | $160,000 | $0 | $323,221 | $323,221 |
| 2015 | $165,226 | $135,000 | $0 | $300,226 | $300,226 |
| 2014 | $167,229 | $135,000 | $0 | $302,229 | $302,229 |
| 2013 | $169,232 | $93,714 | $0 | $262,946 | $262,946 |
| 2012 | $171,236 | $93,714 | $0 | $264,950 | $264,950 |
| 2011 | $182,564 | $104,049 | $0 | $286,613 | $286,613 |
| 2010 | $205,609 | $104,049 | $0 | $309,658 | $309,658 |
| 2009 | $213,461 | $152,279 | $0 | $365,740 | $365,740 |
| 2008 | $223,534 | $153,492 | $0 | $377,026 | $377,026 |
| 2007 | $227,108 | $153,492 | $0 | $380,600 | $380,600 |
Deed and Sales History
| 1 | 05/22/2018 | WD | Warranty Deed | LAMONT, TERRENCE J | INGRAM, LOUIS C | | | $440,000.00 | 34278 | 4445178 |
| 2 | 05/04/2005 | WD | Warranty Deed | LAMONT, TERRENCE J | LAMONT, TERRENCE J | | | $10,000.00 | 4133272 | 51953 |
| 3 | 01/01/1900 | OTHER | Other - Misc. Documents | Unknown | LAMONT, TERRENCE J | | | $0.00 | 0 | 0 |
Payout Agreement
| No payout information available.. |