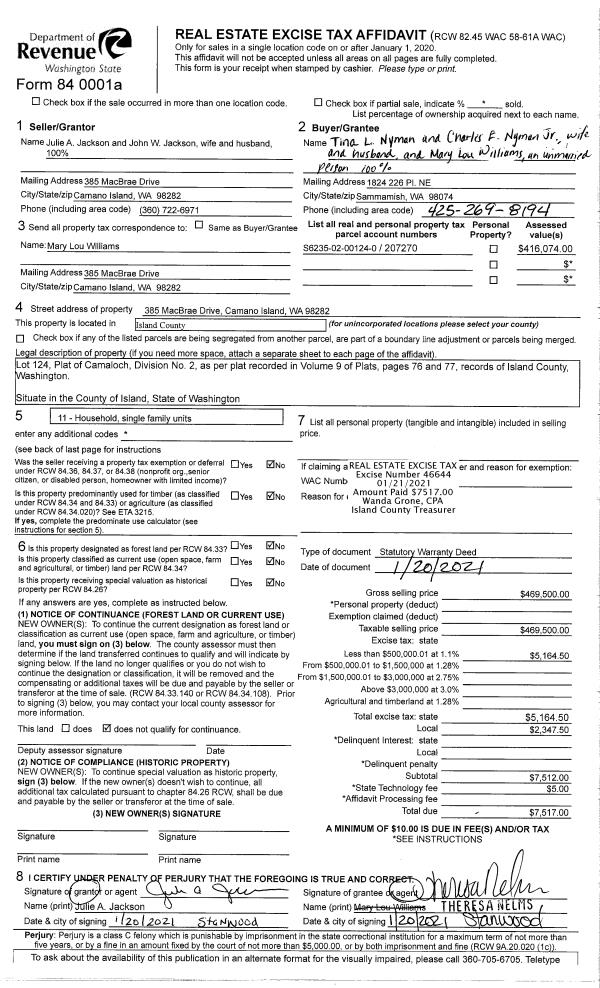
Property
Account |
| Property ID: | 207270 | Abbreviated Legal Description: | CAMALOCH 2 LOT 124 |
| Geographic ID: | S6235-02-00124-0 | Agent Code: | |
| Type: | Real | | |
| Tax Area: | 590 - APPRAISER-Stan/Cam Schl Dist, Special Dist, improved & less than 1 acre | Land Use Code | 11 |
| Open Space: | N | DFL | N |
| Historic Property: | N | Remodel Property: | N |
| Multi-Family Redevelopment: | N | | |
| Township: | | Section: | |
| Range: | |
Location |
| Address: | 385 MACBRAE DR CAMANO ISLAND, WA 98282 | Mapsco: | |
| Neighborhood: | Cycle 5 | Map ID: | 995 |
| Neighborhood CD: | 5 |
Owner |
| Name: | WILLIAMS, MARY LOU | Owner ID: | 297810 |
| Mailing Address: | CHARLES E NYMAN JR & TINA L NYMAN 385 MACBRAE DR CAMANO ISLAND, WA 98282 | % Ownership: | 100.0000000000% |
| | | Exemptions: | |
Taxes and Assessment Details
Values
| (+) Improvement Homesite Value: | + | $0 | |
| (+) Improvement Non-Homesite Value: | + | $355,582 | |
| (+) Land Homesite Value: | + | $0 | |
| (+) Land Non-Homesite Value: | + | $260,000 | |
| (+) Curr Use (HS): | + | $0 | $0 |
| (+) Curr Use (NHS): | + | $0 | $0 |
| | | -------------------------- | |
| (=) Market Value: | = | $615,582 | |
| (–) Productivity Loss: | – | $0 | |
| | | -------------------------- | |
| (=) Subtotal: | = | $615,582 | |
| (+) Senior Appraised Value: | + | $0 | |
| (+) Non-Senior Appraised Value: | + | $615,582 | |
| | | -------------------------- | |
| (=) Total Appraised Value: | = | $615,582 | |
| (–) Senior Exemption Loss: | – | $0 | |
| (–) Exemption Loss: | – | $0 | |
| | | -------------------------- | |
| (=) Taxable Value: | = | $615,582 | |
Taxing Jurisdiction
| Owner: | WILLIAMS, MARY LOU | | |
| % Ownership: | 100.0000000000% | | |
| Total Value: | $615,582 | | |
| Tax Area: | 590 - APPRAISER-Stan/Cam Schl Dist, Special Dist, improved & less than 1 acre |
| CF | Conservation Futures | 0.0313996660 | $615,582 | $615,582 | $19.33 | | |
| EMS1 | Fire & Rescue Dist #1 Camano GEN (EMS) | 0.4998471806 | $615,582 | $615,582 | $307.70 | | |
| FIRE1 | Fire & Rescue Dist #1 Camano GEN | 1.2496603404 | $615,582 | $615,582 | $769.27 | | |
| FIRE1BOND | Fire & Rescue Dist #1 Camano BOND | 0.1630371212 | $615,582 | $615,582 | $100.36 | | |
| CE | County Current Expense | 0.3674210519 | $615,582 | $615,582 | $226.18 | | |
| CR | County Roads | 0.4614296361 | $615,582 | $615,582 | $284.05 | | |
| LIB | Library Sno-Isle GEN | 0.3039084203 | $615,582 | $615,582 | $187.08 | | |
| SCH205_401 | School 205-401 Enrichment | 1.3697998934 | $615,582 | $615,582 | $843.22 | | |
| SCH205BOND | School 205-401 BOND | 0.9354199323 | $615,582 | $615,582 | $575.83 | | |
| ST | State School | 1.4761226122 | $615,582 | $615,582 | $908.67 | | |
| ST2 | State School Part 2 | 0.7953803475 | $615,582 | $615,582 | $489.62 | | |
| | Total Tax Rate: | 7.6534262019 | | | | | |
| | | | | Taxes w/Current Exemptions: | $4,711.31 | | |
| | | | | Taxes w/o Exemptions: | $4,711.31 | | |
Improvement / Building
| Improvement #1: | RESIDENTIAL | State Code: | Y | 1595.3 sqft | Value: | $355,582 |
| Bathrooms: | 2 | Bedrooms: | 2 | | Ceiling: | DRYWALL PAINTED | Exterior Wall/Cover: | WOOD SIDING | | Floor Covering: | HARDWOOD/CARP 20-80 | Floor Structure: | WOOD W/SUBFLOOR | | Foundation: | CONCRETE | Heating: | FHA GAS | | Interior Finish: | DRYWALL PAINT | Plumbing Fixture Cnt: | 12 | | Roof Slope: | 6" IN 12" | Roof Structure/Cover: | CJ ASPHALT |
|
| | Type | Description | Class CD | Sub Class CD | Year Built | Area |
| | BAS | BASE/MAIN FLOOR | 4 | 0 | 2001 | 1595.3 |
| | OP4 | OPEN PORCH W/CEILING-ROOF | 4 | 0 | 2001 | 15.9 |
| | AGR | ATTACHED GARAGE | 4 | 0 | 2001 | 546.0 |
Sketch
Property Image
Land
| 1 | 14 | SQ (08001-12000) | 0.0000 | 0.00 | 0.00 | 0.00 | 1.00 | $260,000 | $0 |
Roll Value History
| 2026 | N/A | N/A | N/A | N/A | N/A |
| 2025 | $355,582 | $260,000 | $0 | $615,582 | $615,582 |
| 2024 | $359,754 | $250,000 | $0 | $609,754 | $609,754 |
| 2023 | $363,925 | $250,000 | $0 | $613,925 | $613,925 |
| 2022 | $333,310 | $210,000 | $0 | $543,310 | $543,310 |
| 2021 | $289,323 | $165,000 | $0 | $454,323 | $454,323 |
| 2020 | $281,074 | $135,000 | $0 | $416,074 | $416,074 |
| 2019 | $202,759 | $175,000 | $0 | $377,759 | $377,759 |
| 2018 | $203,328 | $145,000 | $0 | $348,328 | $348,328 |
| 2017 | $204,420 | $100,000 | $0 | $304,420 | $304,420 |
| 2016 | $199,878 | $85,000 | $0 | $284,878 | $113,951 |
| 2015 | $186,348 | $65,000 | $0 | $251,348 | $100,539 |
| 2014 | $188,497 | $55,000 | $0 | $243,497 | $97,399 |
| 2013 | $190,648 | $55,000 | $0 | $245,648 | $98,259 |
| 2012 | $192,797 | $60,000 | $0 | $252,797 | $101,119 |
| 2011 | $194,947 | $65,000 | $0 | $259,947 | $259,947 |
| 2010 | $203,308 | $76,000 | $0 | $279,308 | $279,308 |
| 2009 | $217,572 | $100,000 | $0 | $317,572 | $317,572 |
| 2008 | $218,203 | $125,000 | $0 | $343,203 | $343,203 |
| 2007 | $221,003 | $100,000 | $0 | $321,003 | $321,003 |
Deed and Sales History
| 1 | 01/20/2021 | WD | Warranty Deed | JACKSON, JULIE A | WILLIAMS, MARY LOU | | | $469,500.00 | 46644 | 4508699 |
| 2 | 03/01/2017 | WD | Warranty Deed | WEGE, IONA A | JACKSON, JULIE A | | | $350,000.00 | 28300 | 4418232 |
| 3 | 04/09/2013 | QCD | Quit Claim Deed | WEGE, LESTER R | WEGE, IONA A | | | $0.00 | 11002 | 4337570 |
| 4 | 02/15/2002 | WD | Warranty Deed | NORTH PUGET CONSTRUCTION, | WEGE, LESTER R | | | $229,000.00 | 20694 | 4012262 |
| 5 | 07/24/1998 | WD | Warranty Deed | MATHISON, AJAY J | NORTH PUGET CONSTRUCTION, | | | $22,000.00 | 82898 | 98015253 |
| 6 | 01/01/1991 | WD | Warranty Deed | MARNELL, WILLIAM J | MATHISON, AJAY J | | | $11,000.00 | 10253 | 91001234 |
| 7 | 08/01/1990 | WD | Warranty Deed | SEARS, RICHARD B | MARNELL, WILLIAM J | | | $8,500.00 | 4571 | 90015129 |
| 8 | 11/01/1978 | OTHER | Other - Misc. Documents | NORTH, PUGET C | SEARS, RICHARD B | | | $5,500.00 | 90383 | 346501 |
| 9 | 01/01/1900 | OTHER | Other - Misc. Documents | Unknown | NORTH, PUGET C | | | $0.00 | 82898 | 98015253 |
Payout Agreement
| No payout information available.. |