Property
Account |
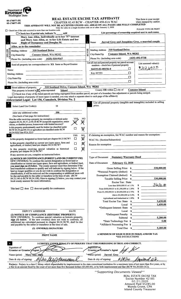
| Property ID: | 207591 | Abbreviated Legal Description: | CAMALOCH 2 LOT 156 D |
| Geographic ID: | S6235-02-00156-0 | Agent Code: | |
| Type: | Real | | |
| Tax Area: | 590 - APPRAISER-Stan/Cam Schl Dist, Special Dist, improved & less than 1 acre | Land Use Code | 11 |
| Open Space: | N | DFL | N |
| Historic Property: | N | Remodel Property: | N |
| Multi-Family Redevelopment: | N | | |
| Township: | | Section: | |
| Range: | |
Location |
| Address: | 310 SCOTLAND DR CAMANO ISLAND, WA 98282 | Mapsco: | |
| Neighborhood: | Cycle 5 | Map ID: | 995 |
| Neighborhood CD: | 5 |
Owner |
| Name: | GREY, JARROD | Owner ID: | 294122 |
| Mailing Address: | JOSEPHINE GREY 310 SCOTLAND DR CAMANO ISLAND, WA 98282 | % Ownership: | 100.0000000000% |
| | | Exemptions: | |
Taxes and Assessment Details
Values
| (+) Improvement Homesite Value: | + | $234,001 | |
| (+) Improvement Non-Homesite Value: | + | $0 | |
| (+) Land Homesite Value: | + | $260,000 | |
| (+) Land Non-Homesite Value: | + | $0 | |
| (+) Curr Use (HS): | + | $0 | $0 |
| (+) Curr Use (NHS): | + | $0 | $0 |
| | | -------------------------- | |
| (=) Market Value: | = | $494,001 | |
| (–) Productivity Loss: | – | $0 | |
| | | -------------------------- | |
| (=) Subtotal: | = | $494,001 | |
| (+) Senior Appraised Value: | + | $0 | |
| (+) Non-Senior Appraised Value: | + | $494,001 | |
| | | -------------------------- | |
| (=) Total Appraised Value: | = | $494,001 | |
| (–) Senior Exemption Loss: | – | $0 | |
| (–) Exemption Loss: | – | $0 | |
| | | -------------------------- | |
| (=) Taxable Value: | = | $494,001 | |
Taxing Jurisdiction
| Owner: | GREY, JARROD | | |
| % Ownership: | 100.0000000000% | | |
| Total Value: | $494,001 | | |
| Tax Area: | 590 - APPRAISER-Stan/Cam Schl Dist, Special Dist, improved & less than 1 acre |
| CF | Conservation Futures | 0.0313996660 | $494,001 | $494,001 | $15.51 | | |
| EMS1 | Fire & Rescue Dist #1 Camano GEN (EMS) | 0.4998471806 | $494,001 | $494,001 | $246.93 | | |
| FIRE1 | Fire & Rescue Dist #1 Camano GEN | 1.2496603404 | $494,001 | $494,001 | $617.33 | | |
| FIRE1BOND | Fire & Rescue Dist #1 Camano BOND | 0.1630371212 | $494,001 | $494,001 | $80.54 | | |
| CE | County Current Expense | 0.3674210519 | $494,001 | $494,001 | $181.51 | | |
| CR | County Roads | 0.4614296361 | $494,001 | $494,001 | $227.95 | | |
| LIB | Library Sno-Isle GEN | 0.3039084203 | $494,001 | $494,001 | $150.13 | | |
| SCH205_401 | School 205-401 Enrichment | 1.3697998934 | $494,001 | $494,001 | $676.68 | | |
| SCH205BOND | School 205-401 BOND | 0.9354199323 | $494,001 | $494,001 | $462.10 | | |
| ST | State School | 1.4761226122 | $494,001 | $494,001 | $729.21 | | |
| ST2 | State School Part 2 | 0.7953803475 | $494,001 | $494,001 | $392.92 | | |
| | Total Tax Rate: | 7.6534262019 | | | | | |
| | | | | Taxes w/Current Exemptions: | $3,780.81 | | |
| | | | | Taxes w/o Exemptions: | $3,780.81 | | |
Improvement / Building
| Improvement #1: | RESIDENTIAL | State Code: | Y | 1428.0 sqft | Value: | $234,001 |
| Bathrooms: | 1 | Bedrooms: | 2 | | Ceiling: | DRYWALL PAINTED | Exterior Wall/Cover: | WOOD SIDING | | Floor Covering: | CERAMIC TILE/CPT 40-60 | Floor Structure: | WOOD W/SUBFLOOR | | Foundation: | CONCRETE | Heating: | BASEBOARD ELECTRIC | | Interior Finish: | DRYWALL PAINT | Plumbing Fixture Cnt: | 6 | | Roof Slope: | 4" IN 12" | Roof Structure/Cover: | CJ ASPHALT |
|
| | Type | Description | Class CD | Sub Class CD | Year Built | Area |
| | BAS | BASE/MAIN FLOOR | 3 | 0 | 1975 | 1428.0 |
| | OCP | OPEN CARPORT | 3 | 0 | 1975 | 288.0 |
| | OWP | OPEN WOOD PORCH W/STEPS | 3 | 0 | 1975 | 142.0 |
| | OWP | OPEN WOOD PORCH W/STEPS | 3 | 0 | 1975 | 225.0 |
| | DGR | DETACHED GARAGE | 3 | 0 | 1975 | 532.0 |
Sketch
Property Image
Land
| 1 | 14 | SQ (08001-12000) | 0.0000 | 0.00 | 0.00 | 0.00 | 1.00 | $260,000 | $0 |
Roll Value History
| 2026 | N/A | N/A | N/A | N/A | N/A |
| 2025 | $234,001 | $260,000 | $0 | $494,001 | $494,001 |
| 2024 | $242,250 | $250,000 | $0 | $492,250 | $492,250 |
| 2023 | $245,512 | $250,000 | $0 | $495,512 | $495,512 |
| 2022 | $225,269 | $210,000 | $0 | $435,269 | $435,269 |
| 2021 | $190,749 | $165,000 | $0 | $355,749 | $355,749 |
| 2020 | $186,571 | $135,000 | $0 | $321,571 | $321,571 |
| 2019 | $137,697 | $175,000 | $0 | $312,697 | $95,620 |
| 2018 | $138,146 | $145,000 | $0 | $283,146 | $95,620 |
| 2017 | $139,050 | $100,000 | $0 | $239,050 | $95,620 |
| 2016 | $140,856 | $85,000 | $0 | $225,856 | $225,856 |
| 2015 | $128,796 | $65,000 | $0 | $193,796 | $193,796 |
| 2014 | $130,364 | $55,000 | $0 | $185,364 | $185,364 |
| 2013 | $131,933 | $55,000 | $0 | $186,933 | $186,933 |
| 2012 | $133,502 | $60,000 | $0 | $193,502 | $193,502 |
| 2011 | $135,070 | $65,000 | $0 | $200,070 | $200,070 |
| 2010 | $139,695 | $76,000 | $0 | $215,695 | $215,695 |
| 2009 | $138,207 | $100,000 | $0 | $238,207 | $238,207 |
| 2008 | $140,288 | $125,000 | $0 | $265,288 | $265,288 |
| 2007 | $140,933 | $100,000 | $0 | $240,933 | $240,933 |
Deed and Sales History
| 1 | 02/12/2020 | WD | Warranty Deed | ALLEN, MARY ANN | GREY, JARROD | | | $330,000.00 | 42185 | 4481707 |
| 2 | 09/10/2018 | QCD | Quit Claim Deed | ALLEN, MARY ANN | ALLEN, MARY ANN | | | $0.00 | 36087 | 4452517 |
| 3 | 05/14/2018 | QCD | Quit Claim Deed | ALLEN, MARY ANN | ALLEN, MARY ANN | | | $0.00 | 34242 | 4444971 |
| 4 | 02/10/2015 | QCD | Quit Claim Deed | ALLEN, CHARLES J | ALLEN, MARY ANN | | | $0.00 | 18506 | 4373421 |
| 5 | 05/30/2001 | QCD | Quit Claim Deed | ALLEN, CHARLES J | ALLEN, CHARLES J | | | $0.00 | 11936 | 20033529 |
| 6 | 03/08/2001 | QCD | Quit Claim Deed | ALLEN, CHARLES J | ALLEN, MARY ANN | | | $0.00 | 11937 | 20033528 |
| 7 | 06/01/1994 | WD | Warranty Deed | ALLEN, CHARLES J | ALLEN, CHARLES J | | | $118,000.00 | 42557 | 94014211 |
| 8 | 06/01/1994 | QCD | Quit Claim Deed | ALLEN, CHARLES J | ALLEN, CHARLES J | | | $0.00 | 42558 | 94014212 |
| 9 | 06/01/1994 | QCD | Quit Claim Deed | CALLAHAN, CHAROLENE M | ALLEN, CHARLES J | | | $0.00 | 42592 | 94014427 |
| 10 | 09/01/1993 | WD | Warranty Deed | CALLAHAN, CHAROLENE M | CALLAHAN, CHAROLENE M | | | $500.00 | 33588 | 93018676 |
| 11 | 11/01/1990 | QCD | Quit Claim Deed | CALLAHAN, MERLIN E | CALLAHAN, CHAROLENE M | | | $0.00 | 6086 | 90020711 |
| 12 | 01/01/1900 | OTHER | Other - Misc. Documents | Unknown | CALLAHAN, MERLIN E | | | $0.00 | 0 | 0 |
Payout Agreement
| No payout information available.. |