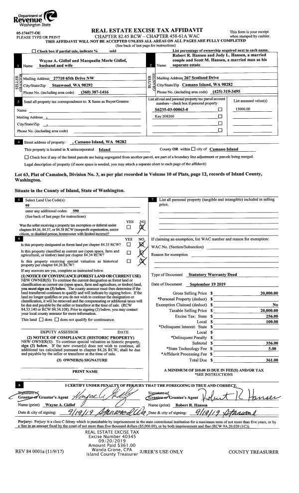
Property
Account |
| Property ID: | 208260 | Abbreviated Legal Description: | CAMALOCH 3 LOT 63 |
| Geographic ID: | S6235-03-00063-0 | Agent Code: | |
| Type: | Real | | |
| Tax Area: | 590 - APPRAISER-Stan/Cam Schl Dist, Special Dist, improved & less than 1 acre | Land Use Code | 99 |
| Open Space: | N | DFL | N |
| Historic Property: | N | Remodel Property: | N |
| Multi-Family Redevelopment: | N | | |
| Township: | | Section: | |
| Range: | |
Location |
| Address: | LOCHWOOD DR CAMANO ISLAND, WA 98282 | Mapsco: | |
| Neighborhood: | Cycle 5 | Map ID: | 995 |
| Neighborhood CD: | 5 |
Owner |
| Name: | HANSEN, ROBERT R | Owner ID: | 291835 |
| Mailing Address: | JUDY L HANSEN AND SCOTT M HANSEN 267 SCOTLAND DR CAMANO ISLAND, WA 98282 | % Ownership: | 100.0000000000% |
| | | Exemptions: | |
Taxes and Assessment Details
Values
| (+) Improvement Homesite Value: | + | $0 | |
| (+) Improvement Non-Homesite Value: | + | $0 | |
| (+) Land Homesite Value: | + | $0 | |
| (+) Land Non-Homesite Value: | + | $25,000 | |
| (+) Curr Use (HS): | + | $0 | $0 |
| (+) Curr Use (NHS): | + | $0 | $0 |
| | | -------------------------- | |
| (=) Market Value: | = | $25,000 | |
| (–) Productivity Loss: | – | $0 | |
| | | -------------------------- | |
| (=) Subtotal: | = | $25,000 | |
| (+) Senior Appraised Value: | + | $0 | |
| (+) Non-Senior Appraised Value: | + | $25,000 | |
| | | -------------------------- | |
| (=) Total Appraised Value: | = | $25,000 | |
| (–) Senior Exemption Loss: | – | $0 | |
| (–) Exemption Loss: | – | $0 | |
| | | -------------------------- | |
| (=) Taxable Value: | = | $25,000 | |
Taxing Jurisdiction
| Owner: | HANSEN, ROBERT R | | |
| % Ownership: | 100.0000000000% | | |
| Total Value: | $25,000 | | |
| Tax Area: | 590 - APPRAISER-Stan/Cam Schl Dist, Special Dist, improved & less than 1 acre |
| CF | Conservation Futures | 0.0313996660 | $25,000 | $25,000 | $0.78 | | |
| EMS1 | Fire & Rescue Dist #1 Camano GEN (EMS) | 0.4998471806 | $25,000 | $25,000 | $12.50 | | |
| FIRE1 | Fire & Rescue Dist #1 Camano GEN | 1.2496603404 | $25,000 | $25,000 | $31.24 | | |
| FIRE1BOND | Fire & Rescue Dist #1 Camano BOND | 0.1630371212 | $25,000 | $25,000 | $4.08 | | |
| CE | County Current Expense | 0.3674210519 | $25,000 | $25,000 | $9.19 | | |
| CR | County Roads | 0.4614296361 | $25,000 | $25,000 | $11.54 | | |
| LIB | Library Sno-Isle GEN | 0.3039084203 | $25,000 | $25,000 | $7.60 | | |
| SCH205_401 | School 205-401 Enrichment | 1.3697998934 | $25,000 | $25,000 | $34.24 | | |
| SCH205BOND | School 205-401 BOND | 0.9354199323 | $25,000 | $25,000 | $23.39 | | |
| ST | State School | 1.4761226122 | $25,000 | $25,000 | $36.90 | | |
| ST2 | State School Part 2 | 0.7953803475 | $25,000 | $25,000 | $19.88 | | |
| | Total Tax Rate: | 7.6534262019 | | | | | |
| | | | | Taxes w/Current Exemptions: | $191.34 | | |
| | | | | Taxes w/o Exemptions: | $191.34 | | |
Improvement / Building
Sketch
| No sketches available for this property. |
Property Image
Land
| 1 | 13 | SQ (06001-08000) | 0.0000 | 0.00 | 0.00 | 0.00 | 1.00 | $25,000 | $0 |
Roll Value History
| 2026 | N/A | N/A | N/A | N/A | N/A |
| 2025 | $0 | $25,000 | $0 | $25,000 | $25,000 |
| 2024 | $0 | $25,000 | $0 | $25,000 | $25,000 |
| 2023 | $0 | $25,000 | $0 | $25,000 | $25,000 |
| 2022 | $0 | $25,000 | $0 | $25,000 | $25,000 |
| 2021 | $0 | $20,000 | $0 | $20,000 | $20,000 |
| 2020 | $0 | $15,000 | $0 | $15,000 | $15,000 |
| 2019 | $0 | $15,000 | $0 | $15,000 | $15,000 |
| 2018 | $0 | $15,000 | $0 | $15,000 | $15,000 |
| 2017 | $0 | $15,000 | $0 | $15,000 | $15,000 |
| 2016 | $0 | $15,000 | $0 | $15,000 | $15,000 |
| 2015 | $0 | $17,500 | $0 | $17,500 | $17,500 |
| 2014 | $0 | $17,500 | $0 | $17,500 | $17,500 |
| 2013 | $0 | $17,500 | $0 | $17,500 | $17,500 |
| 2012 | $0 | $17,500 | $0 | $17,500 | $17,500 |
| 2011 | $0 | $25,000 | $0 | $25,000 | $25,000 |
| 2010 | $0 | $25,000 | $0 | $25,000 | $25,000 |
| 2009 | $0 | $31,250 | $0 | $31,250 | $31,250 |
| 2008 | $0 | $37,500 | $0 | $37,500 | $37,500 |
| 2007 | $0 | $40,000 | $0 | $40,000 | $40,000 |
Deed and Sales History
| 1 | 09/19/2019 | WD | Warranty Deed | GIDLOF, WAYNE A | HANSEN, ROBERT R | | | $20,000.00 | 40345 | 4471717 |
| 2 | 01/24/2000 | WD | Warranty Deed | JONES, ORAN N | GIDLOF, WAYNE A | | | $22,000.00 | 316 | 20001691 |
| 3 | 07/01/1993 | QCD | Quit Claim Deed | JONES, ORAN N | JONES, ORAN N | | | $6,500.00 | 32676 | 93013849 |
| 4 | 07/01/1990 | WD | Warranty Deed | BISHOP, MARION M | JONES, ORAN N | | | $13,000.00 | 4172 | 90013696 |
| 5 | 10/01/1986 | QCD | Quit Claim Deed | HUSSY, GERALDINE | BISHOP, MARION M | | | $2,000.00 | 63092 | 86013924 |
| 6 | 03/01/1984 | OTHER | Other - Misc. Documents | BISHOP, GERALDINE | HUSSY, GERALDINE | | | $0.00 | 60466 | 0 |
| 7 | 05/01/1983 | QCD | Quit Claim Deed | BISHOP, MARION M | BISHOP, GERALDINE | | | $0.00 | 32656 | 0 |
| 8 | 01/01/1900 | OTHER | Other - Misc. Documents | Unknown | BISHOP, MARION M | | | $0.00 | 0 | 0 |
Payout Agreement
| No payout information available.. |