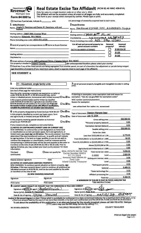
Property
Account |
| Property ID: | 208402 | Abbreviated Legal Description: | CAMALOCH 4 LOT 3 |
| Geographic ID: | S6235-04-00003-0 | Agent Code: | |
| Type: | Real | | |
| Tax Area: | 590 - APPRAISER-Stan/Cam Schl Dist, Special Dist, improved & less than 1 acre | Land Use Code | 11 |
| Open Space: | N | DFL | N |
| Historic Property: | N | Remodel Property: | N |
| Multi-Family Redevelopment: | N | | |
| Township: | | Section: | |
| Range: | |
Location |
| Address: | 449 LOCHWOOD DR CAMANO ISLAND, WA 98282 | Mapsco: | |
| Neighborhood: | Cycle 5 | Map ID: | 989 |
| Neighborhood CD: | 5 |
Owner |
| Name: | KIM, PETER | Owner ID: | 313174 |
| Mailing Address: | ESTER KIM 17901 41ST PL W LYNNWOOD, WA 98037 | % Ownership: | 100.0000000000% |
| | | Exemptions: | |
Taxes and Assessment Details
Values
| (+) Improvement Homesite Value: | + | $0 | |
| (+) Improvement Non-Homesite Value: | + | $276,206 | |
| (+) Land Homesite Value: | + | $0 | |
| (+) Land Non-Homesite Value: | + | $330,000 | |
| (+) Curr Use (HS): | + | $0 | $0 |
| (+) Curr Use (NHS): | + | $0 | $0 |
| | | -------------------------- | |
| (=) Market Value: | = | $606,206 | |
| (–) Productivity Loss: | – | $0 | |
| | | -------------------------- | |
| (=) Subtotal: | = | $606,206 | |
| (+) Senior Appraised Value: | + | $0 | |
| (+) Non-Senior Appraised Value: | + | $606,206 | |
| | | -------------------------- | |
| (=) Total Appraised Value: | = | $606,206 | |
| (–) Senior Exemption Loss: | – | $0 | |
| (–) Exemption Loss: | – | $0 | |
| | | -------------------------- | |
| (=) Taxable Value: | = | $606,206 | |
Taxing Jurisdiction
| Owner: | KIM, PETER | | |
| % Ownership: | 100.0000000000% | | |
| Total Value: | $606,206 | | |
| Tax Area: | 590 - APPRAISER-Stan/Cam Schl Dist, Special Dist, improved & less than 1 acre |
| CF | Conservation Futures | 0.0313996660 | $606,206 | $606,206 | $19.03 | | |
| EMS1 | Fire & Rescue Dist #1 Camano GEN (EMS) | 0.4998471806 | $606,206 | $606,206 | $303.01 | | |
| FIRE1 | Fire & Rescue Dist #1 Camano GEN | 1.2496603404 | $606,206 | $606,206 | $757.55 | | |
| FIRE1BOND | Fire & Rescue Dist #1 Camano BOND | 0.1630371212 | $606,206 | $606,206 | $98.83 | | |
| CE | County Current Expense | 0.3674210519 | $606,206 | $606,206 | $222.73 | | |
| CR | County Roads | 0.4614296361 | $606,206 | $606,206 | $279.72 | | |
| LIB | Library Sno-Isle GEN | 0.3039084203 | $606,206 | $606,206 | $184.23 | | |
| SCH205_401 | School 205-401 Enrichment | 1.3697998934 | $606,206 | $606,206 | $830.38 | | |
| SCH205BOND | School 205-401 BOND | 0.9354199323 | $606,206 | $606,206 | $567.06 | | |
| ST | State School | 1.4761226122 | $606,206 | $606,206 | $894.83 | | |
| ST2 | State School Part 2 | 0.7953803475 | $606,206 | $606,206 | $482.16 | | |
| | Total Tax Rate: | 7.6534262019 | | | | | |
| | | | | Taxes w/Current Exemptions: | $4,639.53 | | |
| | | | | Taxes w/o Exemptions: | $4,639.53 | | |
Improvement / Building
| Improvement #1: | RESIDENTIAL | State Code: | Y | 1980.0 sqft | Value: | $276,206 |
| Bathrooms: | 2 | Bedrooms: | 2 | | Ceiling: | TONGUE & GROOVE | Exterior Wall/Cover: | PLY/HARDBOARD T-111 | | Floor Covering: | CARPET/VINYL 80-20 | Floor Structure: | WOOD W/SUBFLOOR | | Foundation: | CONCRETE | Heating: | FHA GAS | | Interior Finish: | DRYWALL PAINT | Plumbing Fixture Cnt: | 9 | | Roof Slope: | 3" IN 12" | Roof Structure/Cover: | BEAM ASPHALT |
|
| | Type | Description | Class CD | Sub Class CD | Year Built | Area |
| | BAS | BASE/MAIN FLOOR | 3 | 0 | 1978 | 990.0 |
| | DWN | DOWNSTAIRS LIVING AREA | 3 | 0 | 1978 | 990.0 |
| | OWP | OPEN WOOD PORCH W/STEPS | 3 | 0 | 1978 | 925.0 |
Sketch
Property Image
Land
| 1 | 14 | SQ (08001-12000) | 0.0000 | 0.00 | 0.00 | 0.00 | 1.00 | $330,000 | $0 |
Roll Value History
| 2026 | N/A | N/A | N/A | N/A | N/A |
| 2025 | $276,206 | $330,000 | $0 | $606,206 | $606,206 |
| 2024 | $279,524 | $320,000 | $0 | $599,524 | $599,524 |
| 2023 | $282,841 | $300,000 | $0 | $582,841 | $582,841 |
| 2022 | $259,133 | $280,000 | $0 | $539,133 | $539,133 |
| 2021 | $196,323 | $175,000 | $0 | $371,323 | $371,323 |
| 2020 | $191,960 | $135,000 | $0 | $326,960 | $326,960 |
| 2019 | $147,172 | $175,000 | $0 | $322,172 | $322,172 |
| 2018 | $147,655 | $145,000 | $0 | $292,655 | $292,655 |
| 2017 | $148,621 | $125,000 | $0 | $273,621 | $273,621 |
| 2016 | $150,552 | $125,000 | $0 | $275,552 | $275,552 |
| 2015 | $120,757 | $95,000 | $0 | $215,757 | $215,757 |
| 2014 | $122,627 | $80,000 | $0 | $202,627 | $202,627 |
| 2013 | $124,498 | $80,000 | $0 | $204,498 | $204,498 |
| 2012 | $126,369 | $80,000 | $0 | $206,369 | $206,369 |
| 2011 | $128,239 | $100,000 | $0 | $228,239 | $228,239 |
| 2010 | $142,297 | $100,000 | $0 | $242,297 | $242,297 |
| 2009 | $146,389 | $125,000 | $0 | $271,389 | $271,389 |
| 2008 | $148,370 | $150,000 | $0 | $298,370 | $298,370 |
| 2007 | $150,350 | $135,000 | $0 | $285,350 | $285,350 |
Deed and Sales History
| 1 | 07/10/2024 | WD | Warranty Deed | DANIELSON, ANGELA N | KIM, PETER | | | $530,000.00 | 60655 | 4574633 |
| 2 | 06/20/2019 | WD | Warranty Deed | WARTELLE JTWROS, DIANE L | DANIELSON, ANGELA N | | | $339,624.00 | 39089 | 4465862 |
| 3 | 09/20/2005 | 5 | DNU - Marriage License/Name Change | WARTELLE, DIANE L | WARTELLE JTWROS, DIANE L | | | $0.00 | 55308 | 4151589 |
| 4 | 03/21/2002 | WD | Warranty Deed | HARMON, EUGENE W | WARTELLE, DIANE L | | | $199,950.00 | 21123 | 1045197 |
| 5 | 01/01/1900 | OTHER | Other - Misc. Documents | Unknown | HARMON, EUGENE W | | | $0.00 | 0 | 0 |
Payout Agreement
| No payout information available.. |