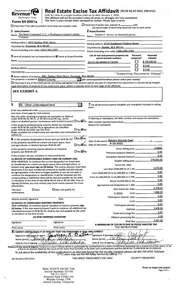
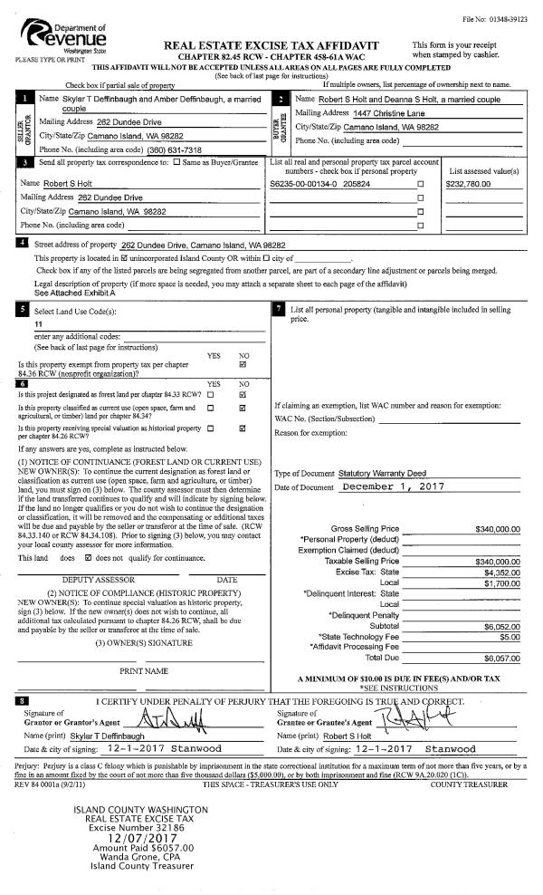
Property
Account |
| Property ID: | 208563 | Abbreviated Legal Description: | CAMALOCH 4 LOT 19 |
| Geographic ID: | S6235-04-00019-0 | Agent Code: | |
| Type: | Real | | |
| Tax Area: | 590 - APPRAISER-Stan/Cam Schl Dist, Special Dist, improved & less than 1 acre | Land Use Code | 11 |
| Open Space: | N | DFL | N |
| Historic Property: | N | Remodel Property: | N |
| Multi-Family Redevelopment: | N | | |
| Township: | | Section: | |
| Range: | |
Location |
| Address: | 298 MELROSE DR CAMANO ISLAND, WA 98282 | Mapsco: | |
| Neighborhood: | Cycle 5 | Map ID: | 989 |
| Neighborhood CD: | 5 |
Owner |
| Name: | TUCKER, BRITTANY | Owner ID: | 292988 |
| Mailing Address: | COREY TUCKER 298 MELROSE DR CAMANO ISLAND, WA 98282 | % Ownership: | 100.0000000000% |
| | | Exemptions: | |
Taxes and Assessment Details
Values
| (+) Improvement Homesite Value: | + | $0 | |
| (+) Improvement Non-Homesite Value: | + | $262,692 | |
| (+) Land Homesite Value: | + | $0 | |
| (+) Land Non-Homesite Value: | + | $260,000 | |
| (+) Curr Use (HS): | + | $0 | $0 |
| (+) Curr Use (NHS): | + | $0 | $0 |
| | | -------------------------- | |
| (=) Market Value: | = | $522,692 | |
| (–) Productivity Loss: | – | $0 | |
| | | -------------------------- | |
| (=) Subtotal: | = | $522,692 | |
| (+) Senior Appraised Value: | + | $0 | |
| (+) Non-Senior Appraised Value: | + | $522,692 | |
| | | -------------------------- | |
| (=) Total Appraised Value: | = | $522,692 | |
| (–) Senior Exemption Loss: | – | $0 | |
| (–) Exemption Loss: | – | $0 | |
| | | -------------------------- | |
| (=) Taxable Value: | = | $522,692 | |
Taxing Jurisdiction
| Owner: | TUCKER, BRITTANY | | |
| % Ownership: | 100.0000000000% | | |
| Total Value: | $522,692 | | |
| Tax Area: | 590 - APPRAISER-Stan/Cam Schl Dist, Special Dist, improved & less than 1 acre |
| CF | Conservation Futures | 0.0313996660 | $522,692 | $522,692 | $16.41 | | |
| EMS1 | Fire & Rescue Dist #1 Camano GEN (EMS) | 0.4998471806 | $522,692 | $522,692 | $261.27 | | |
| FIRE1 | Fire & Rescue Dist #1 Camano GEN | 1.2496603404 | $522,692 | $522,692 | $653.19 | | |
| FIRE1BOND | Fire & Rescue Dist #1 Camano BOND | 0.1630371212 | $522,692 | $522,692 | $85.22 | | |
| CE | County Current Expense | 0.3674210519 | $522,692 | $522,692 | $192.05 | | |
| CR | County Roads | 0.4614296361 | $522,692 | $522,692 | $241.19 | | |
| LIB | Library Sno-Isle GEN | 0.3039084203 | $522,692 | $522,692 | $158.85 | | |
| SCH205_401 | School 205-401 Enrichment | 1.3697998934 | $522,692 | $522,692 | $715.98 | | |
| SCH205BOND | School 205-401 BOND | 0.9354199323 | $522,692 | $522,692 | $488.94 | | |
| ST | State School | 1.4761226122 | $522,692 | $522,692 | $771.56 | | |
| ST2 | State School Part 2 | 0.7953803475 | $522,692 | $522,692 | $415.74 | | |
| | Total Tax Rate: | 7.6534262019 | | | | | |
| | | | | Taxes w/Current Exemptions: | $4,000.40 | | |
| | | | | Taxes w/o Exemptions: | $4,000.40 | | |
Improvement / Building
| Improvement #1: | RESIDENTIAL | State Code: | Y | 1088.0 sqft | Value: | $262,692 |
| Bathrooms: | 2 | Bedrooms: | 3 | | Ceiling: | DRYWALL PAINTED | Exterior Wall/Cover: | PLY/HARDBOARD T-111 | | Floor Covering: | CARPET/VINYL 60-40 | Floor Structure: | WOOD W/SUBFLOOR | | Foundation: | CONCRETE BLOCKS | Heating: | FHA GAS | | Interior Finish: | DRYWALL PAINT | Plumbing Fixture Cnt: | 9 | | Roof Slope: | 4" IN 12" | Roof Structure/Cover: | CJ ALUMINIUM HEAVY |
|
| | Type | Description | Class CD | Sub Class CD | Year Built | Area |
| | BAS | BASE/MAIN FLOOR | 3 | 0 | 1979 | 1088.0 |
| | OP4 | OPEN PORCH W/CEILING-ROOF | 3 | 0 | 1979 | 240.0 |
| | DGR | DETACHED GARAGE | 3 | 0 | 1979 | 540.0 |
| | OWP | OPEN WOOD PORCH W/STEPS | 3 | 0 | 1979 | 555.0 |
| | OWR | OPEN WOOD PORCH W/STEPS/ROOF | 3 | 0 | 1979 | 224.0 |
Sketch
Property Image
Land
| 1 | 14 | SQ (08001-12000) | 0.0000 | 0.00 | 0.00 | 0.00 | 1.00 | $260,000 | $0 |
Roll Value History
| 2026 | N/A | N/A | N/A | N/A | N/A |
| 2025 | $262,692 | $260,000 | $0 | $522,692 | $522,692 |
| 2024 | $265,926 | $250,000 | $0 | $515,926 | $515,926 |
| 2023 | $269,160 | $250,000 | $0 | $519,160 | $519,160 |
| 2022 | $246,663 | $210,000 | $0 | $456,663 | $456,663 |
| 2021 | $188,951 | $165,000 | $0 | $353,951 | $353,951 |
| 2020 | $183,735 | $135,000 | $0 | $318,735 | $318,735 |
| 2019 | $129,686 | $175,000 | $0 | $304,686 | $304,686 |
| 2018 | $130,095 | $145,000 | $0 | $275,095 | $275,095 |
| 2017 | $130,914 | $100,000 | $0 | $230,914 | $230,914 |
| 2016 | $132,549 | $85,000 | $0 | $217,549 | $217,549 |
| 2015 | $127,537 | $65,000 | $0 | $192,537 | $192,537 |
| 2014 | $129,220 | $55,000 | $0 | $184,220 | $184,220 |
| 2013 | $130,902 | $55,000 | $0 | $185,902 | $185,902 |
| 2012 | $132,584 | $60,000 | $0 | $192,584 | $192,584 |
| 2011 | $134,266 | $65,000 | $0 | $199,266 | $199,266 |
| 2010 | $139,891 | $76,000 | $0 | $215,891 | $215,891 |
| 2009 | $145,065 | $100,000 | $0 | $245,065 | $245,065 |
| 2008 | $146,889 | $125,000 | $0 | $271,889 | $271,889 |
| 2007 | $148,715 | $100,000 | $0 | $248,715 | $248,715 |
Deed and Sales History
| 1 | 12/17/2019 | WD | Warranty Deed | MCMANAMA, SEAN | TUCKER, BRITTANY | | | $330,100.00 | 41579 | 4478034 |
| 2 | 02/06/2018 | QCD | Quit Claim Deed | MCMANAMA, SEAN | MCMANAMA, SEAN | | | $0.00 | 32932 | 4439134 |
| 3 | 08/01/2016 | BARGSLD | Bargain And Sale Deed | ANDELIAN, MARIA E | MCMANAMA, SEAN | | | $210,000.00 | 25600 | 4404782 |
| 4 | 10/06/2010 | QCD | Quit Claim Deed | ANDELIAN TRUSTEE, MARIA E | ANDELIAN, MARIA E | | | $0.00 | 3337 | 4288278 |
| 5 | 05/12/2008 | OTHER | Other - Misc. Documents | ANDELIAN TRUSTEE, MARY E | ANDELIAN TRUSTEE, MARIA E | | | $0.00 | 80740 | 0 |
| 6 | 09/21/2006 | WD | Warranty Deed | ANDELIAN, BRADLEY | ANDELIAN TRUSTEE, MARY E | | | $175,000.00 | 64100 | 4182625 |
| 7 | 06/21/2005 | ESTSEPPROP | Establish Separate Property | ANDELIAN, BRADLEY | ANDELIAN, BRADLEY | | | $0.00 | 53728 | 4142750 |
| 8 | 10/30/2003 | WD | Warranty Deed | LAMB TRUSTEE, ROCKY R | ANDELIAN, BRADLEY | | | $170,000.00 | 35120 | 4082681 |
| 9 | 09/24/2002 | QCD | Quit Claim Deed | LAMB, ROCK R | LAMB TRUSTEE, ROCKY R | | | $0.00 | 24052 | 4033772 |
| 10 | 03/04/2002 | WD | Warranty Deed | MAUK, JAMES C & DOROTHY L | LAMB, ROCK R | | | $172,000.00 | 20915 | 4013739 |
| 11 | 03/04/2002 | WD | Warranty Deed | MAUK, JAMES C | MAUK, JAMES C & DOROTHY L | | | $172,000.00 | 20915 | 4013739 |
| 12 | 05/01/1996 | QCD | Quit Claim Deed | MAUK, JAMES C | MAUK, JAMES C | | | $0.00 | 61553 | 96007692 |
| 13 | 08/01/1988 | WD | Warranty Deed | MACMILLAN, ALLAN H | MAUK, JAMES C | | | $65,000.00 | 82591 | 88009767 |
| 14 | 06/01/1988 | TRUSTEED | Trustee's Deed | HUDSON, ROBERT D | MACMILLAN, ALLAN H | | | $0.00 | 82000 | 88007425 |
| 15 | 10/01/1983 | WD | Warranty Deed | MACMILLAN, ALLAN H | HUDSON, ROBERT D | | | $60,000.00 | 33164 | 416795 |
| 16 | 01/01/1900 | OTHER | Other - Misc. Documents | Unknown | MACMILLAN, ALLAN H | | | $0.00 | 0 | 0 |
Payout Agreement
| No payout information available.. |