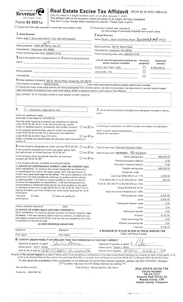
Property
Account |
| Property ID: | 208947 | Abbreviated Legal Description: | CAMALOCH 4 LOT 57 |
| Geographic ID: | S6235-04-00057-0 | Agent Code: | |
| Type: | Real | | |
| Tax Area: | 590 - APPRAISER-Stan/Cam Schl Dist, Special Dist, improved & less than 1 acre | Land Use Code | 11 |
| Open Space: | N | DFL | N |
| Historic Property: | N | Remodel Property: | N |
| Multi-Family Redevelopment: | N | | |
| Township: | | Section: | |
| Range: | |
Location |
| Address: | 332 LAUDER LN CAMANO ISLAND, WA 98282 | Mapsco: | |
| Neighborhood: | Cycle 5 | Map ID: | 989 |
| Neighborhood CD: | 5 |
Owner |
| Name: | GOODMAN, EMILY I | Owner ID: | 300809 |
| Mailing Address: | 332 LAUDER LN CAMANO ISLAND, WA 98282 | % Ownership: | 100.0000000000% |
| | | Exemptions: | |
Taxes and Assessment Details
Values
| (+) Improvement Homesite Value: | + | $0 | |
| (+) Improvement Non-Homesite Value: | + | $279,428 | |
| (+) Land Homesite Value: | + | $0 | |
| (+) Land Non-Homesite Value: | + | $260,000 | |
| (+) Curr Use (HS): | + | $0 | $0 |
| (+) Curr Use (NHS): | + | $0 | $0 |
| | | -------------------------- | |
| (=) Market Value: | = | $539,428 | |
| (–) Productivity Loss: | – | $0 | |
| | | -------------------------- | |
| (=) Subtotal: | = | $539,428 | |
| (+) Senior Appraised Value: | + | $0 | |
| (+) Non-Senior Appraised Value: | + | $539,428 | |
| | | -------------------------- | |
| (=) Total Appraised Value: | = | $539,428 | |
| (–) Senior Exemption Loss: | – | $0 | |
| (–) Exemption Loss: | – | $0 | |
| | | -------------------------- | |
| (=) Taxable Value: | = | $539,428 | |
Taxing Jurisdiction
| Owner: | GOODMAN, EMILY I | | |
| % Ownership: | 100.0000000000% | | |
| Total Value: | $539,428 | | |
| Tax Area: | 590 - APPRAISER-Stan/Cam Schl Dist, Special Dist, improved & less than 1 acre |
| CF | Conservation Futures | 0.0313996660 | $539,428 | $539,428 | $16.94 | | |
| EMS1 | Fire & Rescue Dist #1 Camano GEN (EMS) | 0.4998471806 | $539,428 | $539,428 | $269.63 | | |
| FIRE1 | Fire & Rescue Dist #1 Camano GEN | 1.2496603404 | $539,428 | $539,428 | $674.10 | | |
| FIRE1BOND | Fire & Rescue Dist #1 Camano BOND | 0.1630371212 | $539,428 | $539,428 | $87.95 | | |
| CE | County Current Expense | 0.3674210519 | $539,428 | $539,428 | $198.20 | | |
| CR | County Roads | 0.4614296361 | $539,428 | $539,428 | $248.91 | | |
| LIB | Library Sno-Isle GEN | 0.3039084203 | $539,428 | $539,428 | $163.94 | | |
| SCH205_401 | School 205-401 Enrichment | 1.3697998934 | $539,428 | $539,428 | $738.91 | | |
| SCH205BOND | School 205-401 BOND | 0.9354199323 | $539,428 | $539,428 | $504.59 | | |
| ST | State School | 1.4761226122 | $539,428 | $539,428 | $796.26 | | |
| ST2 | State School Part 2 | 0.7953803475 | $539,428 | $539,428 | $429.05 | | |
| | Total Tax Rate: | 7.6534262019 | | | | | |
| | | | | Taxes w/Current Exemptions: | $4,128.48 | | |
| | | | | Taxes w/o Exemptions: | $4,128.48 | | |
Improvement / Building
| Improvement #1: | RESIDENTIAL | State Code: | Y | 2240.0 sqft | Value: | $279,428 |
| Bathrooms: | 3 | Bedrooms: | 3 | | Ceiling: | DRYWALL PAINTED | Exterior Wall/Cover: | PLY/HARDBOARD T-111 | | Floor Covering: | CARPET/VINYL 60-40 | Floor Structure: | WOOD W/SUBFLOOR | | Foundation: | CONCRETE | Heating: | FHA ELECTRIC | | Interior Finish: | DRYWALL PAINT | Plumbing Fixture Cnt: | 12 | | Roof Slope: | 4" IN 12" | Roof Structure/Cover: | CJ ASPHALT |
|
| | Type | Description | Class CD | Sub Class CD | Year Built | Area |
| | BAS | BASE/MAIN FLOOR | 3 | 0 | 1979 | 1456.0 |
| | DWN | DOWNSTAIRS LIVING AREA | 3 | 0 | 1979 | 784.0 |
| | BGR | BASEMENT GARAGE | 3 | 0 | 1979 | 672.0 |
| | OWP | OPEN WOOD PORCH W/STEPS | 3 | 0 | 1979 | 336.0 |
| | OWP | OPEN WOOD PORCH W/STEPS | 3 | 0 | 1979 | 87.5 |
Sketch
Property Image
Land
| 1 | 14 | SQ (08001-12000) | 0.0000 | 0.00 | 0.00 | 0.00 | 1.00 | $260,000 | $0 |
Roll Value History
| 2026 | N/A | N/A | N/A | N/A | N/A |
| 2025 | $279,428 | $260,000 | $0 | $539,428 | $539,428 |
| 2024 | $283,242 | $250,000 | $0 | $533,242 | $533,242 |
| 2023 | $287,056 | $250,000 | $0 | $537,056 | $537,056 |
| 2022 | $263,377 | $210,000 | $0 | $473,377 | $473,377 |
| 2021 | $232,031 | $165,000 | $0 | $397,031 | $397,031 |
| 2020 | $226,411 | $135,000 | $0 | $361,411 | $361,411 |
| 2019 | $173,602 | $175,000 | $0 | $348,602 | $348,602 |
| 2018 | $174,149 | $145,000 | $0 | $319,149 | $319,149 |
| 2017 | $176,012 | $100,000 | $0 | $276,012 | $276,012 |
| 2016 | $178,297 | $85,000 | $0 | $263,297 | $263,297 |
| 2015 | $157,831 | $65,000 | $0 | $222,831 | $222,831 |
| 2014 | $160,021 | $55,000 | $0 | $215,021 | $215,021 |
| 2013 | $162,211 | $55,000 | $0 | $217,211 | $217,211 |
| 2012 | $164,401 | $60,000 | $0 | $224,401 | $224,401 |
| 2011 | $166,591 | $65,000 | $0 | $231,591 | $231,591 |
| 2010 | $181,164 | $76,000 | $0 | $257,164 | $257,164 |
| 2009 | $169,301 | $100,000 | $0 | $269,301 | $269,301 |
| 2008 | $171,469 | $125,000 | $0 | $296,469 | $296,469 |
| 2007 | $173,652 | $100,000 | $0 | $273,652 | $273,652 |
Deed and Sales History
| 1 | 08/11/2021 | QCD | Quit Claim Deed | GOODMAN, JEFFREY H | GOODMAN, EMILY I | | | $0.00 | 49716 | 4527302 |
| 2 | 05/26/2017 | WD | Warranty Deed | MURPHY, ZACHARY MICHAEL | GOODMAN, JEFFREY H | | | $325,000.00 | 29579 | 4423637 |
| 3 | 11/07/2014 | SPWARDEED | Special Warranty Deed | FEDERAL NATIONAL MORTGAGE ASSOCIATION | MURPHY, ZACHARY MICHAEL | | | $210,000.00 | 17488 | 4368177 |
| 4 | 02/21/2014 | TRUSTEED | Trustee's Deed | BECK, JACOB L | FEDERAL NATIONAL MORTGAGE ASSOCIATION | | | $177,266.00 | 14432 | 4355897 |
| 5 | 02/16/2007 | WD | Warranty Deed | DOWN, SANDRA | BECK, JACOB L | | | $287,950.00 | 70555 | 4194630 |
| 6 | 07/14/2003 | ESTSEPPROP | Establish Separate Property | PEARSON, SANDRA | DOWN, SANDRA | | | $0.00 | 33028 | 4066767 |
| 7 | 06/22/2001 | WD | Warranty Deed | BUGANSKI, SALLY J | PEARSON, SANDRA | | | $189,000.00 | 12343 | 20035786 |
| 8 | 02/01/1995 | WD | Warranty Deed | WHEELER, HAROLD & | BUGANSKI, SALLY J | | | $128,500.00 | 50589 | 95002866 |
| 9 | 09/01/1992 | QCD | Quit Claim Deed | WHEELER, HAROLD C | WHEELER, HAROLD & | | | $0.00 | 23902 | 92018907 |
| 10 | 01/01/1900 | OTHER | Other - Misc. Documents | Unknown | WHEELER, HAROLD C | | | $0.00 | 0 | 0 |
Payout Agreement
| No payout information available.. |