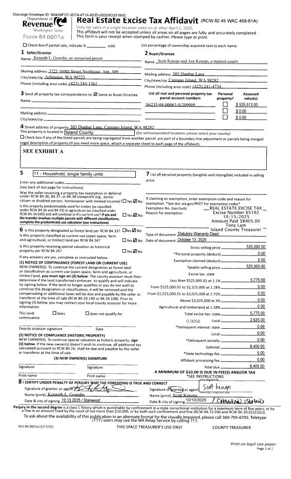
Property
Account |
| Property ID: | 209009 | Abbreviated Legal Description: | CAMALOCH 4 LOT 63 |
| Geographic ID: | S6235-04-00063-0 | Agent Code: | |
| Type: | Real | | |
| Tax Area: | 590 - APPRAISER-Stan/Cam Schl Dist, Special Dist, improved & less than 1 acre | Land Use Code | 11 |
| Open Space: | N | DFL | N |
| Historic Property: | N | Remodel Property: | N |
| Multi-Family Redevelopment: | N | | |
| Township: | | Section: | |
| Range: | |
Location |
| Address: | 305 DUNBAR LN CAMANO ISLAND, WA 98282 | Mapsco: | |
| Neighborhood: | Cycle 5 | Map ID: | 989 |
| Neighborhood CD: | 5 |
Owner |
| Name: | GOURDIN, KENNETH L | Owner ID: | 275867 |
| Mailing Address: | 305 DUNBAR LN CAMANO ISLAND, WA 98282 | % Ownership: | 100.0000000000% |
| | | Exemptions: | |
Taxes and Assessment Details
Values
| (+) Improvement Homesite Value: | + | $0 | |
| (+) Improvement Non-Homesite Value: | + | $265,513 | |
| (+) Land Homesite Value: | + | $0 | |
| (+) Land Non-Homesite Value: | + | $260,000 | |
| (+) Curr Use (HS): | + | $0 | $0 |
| (+) Curr Use (NHS): | + | $0 | $0 |
| | | -------------------------- | |
| (=) Market Value: | = | $525,513 | |
| (–) Productivity Loss: | – | $0 | |
| | | -------------------------- | |
| (=) Subtotal: | = | $525,513 | |
| (+) Senior Appraised Value: | + | $0 | |
| (+) Non-Senior Appraised Value: | + | $525,513 | |
| | | -------------------------- | |
| (=) Total Appraised Value: | = | $525,513 | |
| (–) Senior Exemption Loss: | – | $0 | |
| (–) Exemption Loss: | – | $0 | |
| | | -------------------------- | |
| (=) Taxable Value: | = | $525,513 | |
Taxing Jurisdiction
| Owner: | GOURDIN, KENNETH L | | |
| % Ownership: | 100.0000000000% | | |
| Total Value: | $525,513 | | |
| Tax Area: | 590 - APPRAISER-Stan/Cam Schl Dist, Special Dist, improved & less than 1 acre |
| CF | Conservation Futures | 0.0313996660 | $525,513 | $525,513 | $16.50 | | |
| EMS1 | Fire & Rescue Dist #1 Camano GEN (EMS) | 0.4998471806 | $525,513 | $525,513 | $262.68 | | |
| FIRE1 | Fire & Rescue Dist #1 Camano GEN | 1.2496603404 | $525,513 | $525,513 | $656.71 | | |
| FIRE1BOND | Fire & Rescue Dist #1 Camano BOND | 0.1630371212 | $525,513 | $525,513 | $85.68 | | |
| CE | County Current Expense | 0.3674210519 | $525,513 | $525,513 | $193.08 | | |
| CR | County Roads | 0.4614296361 | $525,513 | $525,513 | $242.49 | | |
| LIB | Library Sno-Isle GEN | 0.3039084203 | $525,513 | $525,513 | $159.71 | | |
| SCH205_401 | School 205-401 Enrichment | 1.3697998934 | $525,513 | $525,513 | $719.85 | | |
| SCH205BOND | School 205-401 BOND | 0.9354199323 | $525,513 | $525,513 | $491.58 | | |
| ST | State School | 1.4761226122 | $525,513 | $525,513 | $775.72 | | |
| ST2 | State School Part 2 | 0.7953803475 | $525,513 | $525,513 | $417.98 | | |
| | Total Tax Rate: | 7.6534262019 | | | | | |
| | | | | Taxes w/Current Exemptions: | $4,021.98 | | |
| | | | | Taxes w/o Exemptions: | $4,021.98 | | |
Improvement / Building
| Improvement #1: | RESIDENTIAL | State Code: | Y | 1296.0 sqft | Value: | $265,513 |
| Bathrooms: | 1.75 | Bedrooms: | 2 | | Ceiling: | TONGUE & GROOVE | Cooling: | HEAT PUMP/CONV/V | | Exterior Wall/Cover: | WOOD SIDING | Floor Covering: | CERAMIC TILE/CPT 40-60 | | Floor Structure: | WOOD W/SUBFLOOR | Foundation: | CONCRETE | | Interior Finish: | DRYWALL PAINT | Plumbing Fixture Cnt: | 9 | | Roof Slope: | 4" IN 12" | Roof Structure/Cover: | BEAM ASPHALT |
|
| | Type | Description | Class CD | Sub Class CD | Year Built | Area |
| | BAS | BASE/MAIN FLOOR | 3 | 0 | 1968 | 1296.0 |
| | AGR | ATTACHED GARAGE | 3 | 0 | 1968 | 496.0 |
| | OWP | OPEN WOOD PORCH W/STEPS | 3 | 0 | 1968 | 208.0 |
| | OWP | OPEN WOOD PORCH W/STEPS | 3 | 0 | 1968 | 124.0 |
Sketch
Property Image
Land
| 1 | 14 | SQ (08001-12000) | 0.0000 | 0.00 | 0.00 | 0.00 | 1.00 | $260,000 | $0 |
Roll Value History
| 2026 | N/A | N/A | N/A | N/A | N/A |
| 2025 | $265,513 | $260,000 | $0 | $525,513 | $525,513 |
| 2024 | $268,781 | $250,000 | $0 | $518,781 | $518,781 |
| 2023 | $272,049 | $250,000 | $0 | $522,049 | $522,049 |
| 2022 | $249,302 | $210,000 | $0 | $459,302 | $459,302 |
| 2021 | $209,067 | $165,000 | $0 | $374,067 | $374,067 |
| 2020 | $203,697 | $135,000 | $0 | $338,697 | $338,697 |
| 2019 | $146,587 | $175,000 | $0 | $321,587 | $321,587 |
| 2018 | $147,027 | $145,000 | $0 | $292,027 | $292,027 |
| 2017 | $147,908 | $100,000 | $0 | $247,908 | $247,908 |
| 2016 | $140,510 | $85,000 | $0 | $225,510 | $225,510 |
| 2015 | $145,681 | $65,000 | $0 | $210,681 | $210,681 |
| 2014 | $147,485 | $55,000 | $0 | $202,485 | $202,485 |
| 2013 | $149,287 | $55,000 | $0 | $204,287 | $204,287 |
| 2012 | $151,091 | $60,000 | $0 | $211,091 | $211,091 |
| 2011 | $152,893 | $65,000 | $0 | $217,893 | $217,893 |
| 2010 | $161,132 | $76,000 | $0 | $237,132 | $237,132 |
| 2009 | $157,436 | $100,000 | $0 | $257,436 | $257,436 |
| 2008 | $159,383 | $125,000 | $0 | $284,383 | $284,383 |
| 2007 | $161,368 | $100,000 | $0 | $261,368 | $261,368 |
Deed and Sales History
| 1 | 10/13/2025 | WD | Warranty Deed | GOURDIN, KENNETH L | KENOPS, SCOTT | | | $525,000.00 | 65162 | 4592241 |
| 2 | 06/23/2016 | WD | Warranty Deed | TEDROW, DARRYL J | GOURDIN, KENNETH L | | | $265,000.00 | 25000 | 4402148 |
| 3 | 08/01/2012 | CCOMPROP | Create Community Property | TIMMERMAN, KERI | TEDROW, DARRYL J | | | $0.00 | 8456 | 4320602 |
| 4 | 07/28/2005 | WD | Warranty Deed | TIMMERMAN, DONALD | TIMMERMAN, KERI | | | $262,000.00 | 53770 | 4142927 |
| 5 | 06/02/1999 | WD | Warranty Deed | THORNESS, ERIC D | TIMMERMAN, DONALD | | | $128,000.00 | 92212 | 99013691 |
| 6 | 07/01/1996 | WD | Warranty Deed | ROBERTS, SYLVESTER & | THORNESS, ERIC D | | | $86,400.00 | 62749 | 96013452 |
| 7 | 05/01/1992 | QCD | Quit Claim Deed | INGERSOLL, ELLEN L | ROBERTS, SYLVESTER & | | | $0.00 | 21949 | 92009309 |
| 8 | 04/01/1982 | CD | DNU - Correction Deed | INGERSOLL, MERLIN M | INGERSOLL, ELLEN L | | | $1.00 | 21039 | 395901 |
| 9 | 01/01/1900 | OTHER | Other - Misc. Documents | Unknown | INGERSOLL, MERLIN M | | | $0.00 | 0 | 0 |
Payout Agreement
| No payout information available.. |