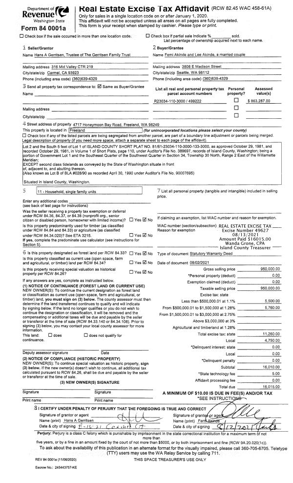
Property
Account |
| Property ID: | 20943 | Abbreviated Legal Description: | 12 HASTIE DC - BG NE CR MADDOX DC S318' E272' TPB E290' N297' E133.8' N316' W424' S613' TPB |
| Geographic ID: | R13217-234-1840 | Agent Code: | |
| Type: | Real | | |
| Tax Area: | 112 - APPRAISER-OH Schl Dist, outside OH, improved, greater than 1 acre | Land Use Code | 11 |
| Open Space: | N | DFL | N |
| Historic Property: | N | Remodel Property: | N |
| Multi-Family Redevelopment: | N | | |
| Township: | 32 | Section: | 17 |
| Range: | R1 |
Location |
| Address: | 1861 NUBIAN WAY OAK HARBOR, WA 98277 | Mapsco: | |
| Neighborhood: | Cycle 1 | Map ID: | 132 |
| Neighborhood CD: | 1 |
Owner |
| Name: | WAISENEN, JON LEE | Owner ID: | 300741 |
| Mailing Address: | LORI DIANE WAISANEN 1861 NUBIAN WAY OAK HARBOR, WA 98277 | % Ownership: | 100.0000000000% |
| | | Exemptions: | |
Taxes and Assessment Details
Values
| (+) Improvement Homesite Value: | + | N/A | |
| (+) Improvement Non-Homesite Value: | + | N/A | |
| (+) Land Homesite Value: | + | N/A | |
| (+) Land Non-Homesite Value: | + | N/A | Ag / Timber Use Value |
| (+) Curr Use (HS): | + | N/A | N/A |
| (+) Curr Use (NHS): | + | N/A | N/A |
| | | -------------------------- | |
| (=) Market Value: | = | N/A | |
| (–) Productivity Loss: | – | N/A | |
| | | -------------------------- | |
| (=) Subtotal: | = | N/A | |
| (+) Senior Appraised Value: | + | N/A | |
| (+) Non-Senior Appraised Value: | + | N/A | |
| | | -------------------------- | |
| (=) Total Appraised Value: | = | N/A | |
| (–) Senior Exemption Loss: | – | N/A | |
| (–) Exemption Loss: | – | N/A | |
| | | -------------------------- | |
| (=) Taxable Value: | = | N/A | |
Taxing Jurisdiction
| Owner: | WAISENEN, JON LEE | | |
| % Ownership: | 100.0000000000% | | |
| Total Value: | N/A | | |
| Tax Area: | 112 - APPRAISER-OH Schl Dist, outside OH, improved, greater than 1 acre |
| CF | Conservation Futures | N/A | N/A | N/A | N/A | | |
| WCD | Whidbey Conservation District | N/A | N/A | N/A | N/A | | |
| CEM1 | Cemetery #1 | N/A | N/A | N/A | N/A | | |
| FIRE2 | Fire & Rescue Dist #2 N Whidbey GEN | N/A | N/A | N/A | N/A | | |
| HOBOND | Hospital BOND | N/A | N/A | N/A | N/A | | |
| HOGEN | Hospital GEN | N/A | N/A | N/A | N/A | | |
| CE | County Current Expense | N/A | N/A | N/A | N/A | | |
| CR | County Roads | N/A | N/A | N/A | N/A | | |
| ISLANDEMS | Hospital GEN (EMS) | N/A | N/A | N/A | N/A | | |
| LIB | Library Sno-Isle GEN | N/A | N/A | N/A | N/A | | |
| NWHIDPRMT | P & R N Whidbey GEN | N/A | N/A | N/A | N/A | | |
| SCH201MO | School 201 Enrichment | N/A | N/A | N/A | N/A | | |
| ST | State School | N/A | N/A | N/A | N/A | | |
| ST2 | State School Part 2 | N/A | N/A | N/A | N/A | | |
| | Total Tax Rate: | N/A | | | | | |
| | | | | Taxes w/Current Exemptions: | N/A | | |
| | | | | Taxes w/o Exemptions: | N/A | | |
Improvement / Building
| Improvement #1: | MANUFACTURED HOME | State Code: | Y | 1536.0 sqft | Value: | N/A |
| Bathrooms: | 0 | Bedrooms: | 0 | | Ceiling: | PLASTER PAINTED | Cooling: | EVAP NO DUCT | | Exterior Wall/Cover: | VINYL | Floor Covering: | CARPET 100% | | Floor Structure: | SLAB ON GRADE | Foundation: | SLAB | | Heating: | FHA ELECTRIC | Interior Finish: | PLASTER | | Plumbing Fixture Cnt: | 1 | Roof Slope: | FLAT | | Roof Structure/Cover: | CJ ALUMINIUM HEAVY |   |   |
|
| | Type | Description | Class CD | Sub Class CD | Year Built | Area |
| | BAS | BASE/MAIN FLOOR | 4 | 0 | 1978 | 1536.0 |
| | oADR | ADD/ON/RM | 4 | 0 | 1978 | 552.0 |
| | oADR | ADD/ON/RM | 4 | 0 | 1978 | 144.0 |
| | ENP | ENCLOSED PORCH | 4 | 0 | 1978 | 110.0 |
| | DGR | DETACHED GARAGE | 4 | 0 | 1978 | 1152.0 |
| | DGR | DETACHED GARAGE | 4 | 0 | 1978 | 1256.0 |
| | CPD | OPEN CARPORT DIRT FLOOR | 4 | 0 | 1978 | 528.0 |
| | CPD | OPEN CARPORT DIRT FLOOR | 4 | 0 | 1978 | 480.0 |
| | OWP | OPEN WOOD PORCH W/STEPS | 4 | 0 | 1978 | 861.5 |
| | OWP | OPEN WOOD PORCH W/STEPS | 4 | 0 | 1978 | 240.0 |
Sketch
Property Image
Land
| 1 | HS | HOMESITE | 1.0000 | 43560.00 | 0.00 | 0.00 | 1.00 | N/A | N/A |
| 2 | 91 | UNDEVELOPED LAND-METES AND BOUNDS | 4.0500 | 176418.00 | 0.00 | 0.00 | 1.00 | N/A | N/A |
Roll Value History
| 2026 | N/A | N/A | N/A | N/A | N/A |
| 2025 | $124,699 | $290,000 | $0 | $414,699 | $414,699 |
| 2024 | $130,270 | $260,000 | $0 | $390,270 | $390,270 |
| 2023 | $110,601 | $250,000 | $0 | $360,601 | $360,601 |
| 2022 | $105,320 | $220,000 | $0 | $325,320 | $325,320 |
| 2021 | $96,443 | $190,000 | $0 | $286,443 | $286,443 |
| 2020 | $97,585 | $140,000 | $0 | $237,585 | $237,585 |
| 2019 | $82,948 | $200,000 | $0 | $282,948 | $282,948 |
| 2018 | $85,898 | $170,000 | $0 | $255,898 | $255,898 |
| 2017 | $71,239 | $160,000 | $0 | $231,239 | $231,239 |
| 2016 | $73,023 | $160,000 | $0 | $233,023 | $233,023 |
| 2015 | $74,806 | $135,000 | $0 | $209,806 | $209,806 |
| 2014 | $77,482 | $135,000 | $0 | $212,482 | $212,482 |
| 2013 | $79,265 | $122,715 | $0 | $201,980 | $201,980 |
| 2012 | $81,049 | $122,715 | $0 | $203,764 | $203,764 |
| 2011 | $93,649 | $136,350 | $0 | $229,999 | $229,999 |
| 2010 | $103,025 | $136,350 | $0 | $239,375 | $239,375 |
| 2009 | $138,870 | $161,600 | $0 | $300,470 | $300,470 |
| 2008 | $142,539 | $152,712 | $0 | $295,251 | $295,251 |
| 2007 | $145,438 | $152,712 | $0 | $298,150 | $298,150 |
Deed and Sales History
| 1 | 08/12/2021 | WD | Warranty Deed | WAISANEN, LORI DIANE | WAISENEN, JON LEE | | | $0.00 | 49645 | 4526920 |
| 2 | 08/12/2021 | MANHOME | Manufactured Home | REED, JAMES F | WAISANEN, LORI DIANE | | | $0.00 | 49606 | |
| 3 | 05/20/2021 | MANHOME | Manufactured Home | SANTERRE, TAMI M | WAISANEN, LORI DIANE | | | $97,000.00 | 48454 | |
| 4 | 03/31/2021 | MANHOME | Manufactured Home | REED, JAMES F | SANTERRE, TAMI M | | | $0.00 | 47658 | |
| 5 | 05/20/2021 | WD | Warranty Deed | SANTERRE, TAMI M | WAISANEN, LORI DIANE | | | $103,000.00 | 48452 | 4520487 |
|   | |
| 6 | 03/30/2021 | PRD | Personal Representatives Deed | REED, JAMES F | SANTERRE, TAMI M | | | $0.00 | 47657 | 4515681 |
| 7 | 01/01/1900 | OTHER | Other - Misc. Documents | Unknown | REED, JAMES F | | | $37,228.00 | 0 | 0 |
| 8 | 01/01/1900 | OTHER | Other - Misc. Documents | REED, JAMES F | REED, JAMES F | | | $0.00 | 0 | 0 |
Payout Agreement
| No payout information available.. |