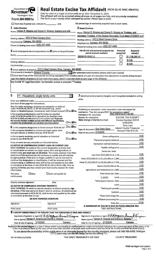
Property
Account |
| Property ID: | 209474 | Abbreviated Legal Description: | CAMANO N70' OF TR B & S10' OF TR A & W10' OF N40' OF S50' OF TR A, INCL ADJ TIDES |
| Geographic ID: | S6240-00-00A01-0 | Agent Code: | |
| Type: | Real | | |
| Tax Area: | 510 - APPRAISER-Stan/Cam Schl Dist, improved & 1 acre or less | Land Use Code | 11 |
| Open Space: | N | DFL | N |
| Historic Property: | N | Remodel Property: | N |
| Multi-Family Redevelopment: | N | | |
| Township: | | Section: | |
| Range: | |
Location |
| Address: | 1072 S WEST CAMANO DR CAMANO ISLAND, WA 98282 | Mapsco: | |
| Neighborhood: | Cycle 5 | Map ID: | 485 |
| Neighborhood CD: | 5 |
Owner |
| Name: | KINGMA TTEE, VERNON R | Owner ID: | 316628 |
| Mailing Address: | DONNA D KINGMA TTEE 5214 WEBER RD SNOHOMISH, WA 98290 | % Ownership: | 100.0000000000% |
| | | Exemptions: | |
Taxes and Assessment Details
Values
| (+) Improvement Homesite Value: | + | $0 | |
| (+) Improvement Non-Homesite Value: | + | $580,772 | |
| (+) Land Homesite Value: | + | $0 | |
| (+) Land Non-Homesite Value: | + | $551,200 | |
| (+) Curr Use (HS): | + | $0 | $0 |
| (+) Curr Use (NHS): | + | $0 | $0 |
| | | -------------------------- | |
| (=) Market Value: | = | $1,131,972 | |
| (–) Productivity Loss: | – | $0 | |
| | | -------------------------- | |
| (=) Subtotal: | = | $1,131,972 | |
| (+) Senior Appraised Value: | + | $0 | |
| (+) Non-Senior Appraised Value: | + | $1,131,972 | |
| | | -------------------------- | |
| (=) Total Appraised Value: | = | $1,131,972 | |
| (–) Senior Exemption Loss: | – | $0 | |
| (–) Exemption Loss: | – | $0 | |
| | | -------------------------- | |
| (=) Taxable Value: | = | $1,131,972 | |
Taxing Jurisdiction
| Owner: | KINGMA TTEE, VERNON R | | |
| % Ownership: | 100.0000000000% | | |
| Total Value: | $1,131,972 | | |
| Tax Area: | 510 - APPRAISER-Stan/Cam Schl Dist, improved & 1 acre or less |
| CF | Conservation Futures | 0.0313996660 | $1,131,972 | $1,131,972 | $35.54 | | |
| EMS1 | Fire & Rescue Dist #1 Camano GEN (EMS) | 0.4998471806 | $1,131,972 | $1,131,972 | $565.81 | | |
| FIRE1 | Fire & Rescue Dist #1 Camano GEN | 1.2496603404 | $1,131,972 | $1,131,972 | $1,414.58 | | |
| FIRE1BOND | Fire & Rescue Dist #1 Camano BOND | 0.1630371212 | $1,131,972 | $1,131,972 | $184.55 | | |
| CE | County Current Expense | 0.3674210519 | $1,131,972 | $1,131,972 | $415.91 | | |
| CR | County Roads | 0.4614296361 | $1,131,972 | $1,131,972 | $522.33 | | |
| LIB | Library Sno-Isle GEN | 0.3039084203 | $1,131,972 | $1,131,972 | $344.02 | | |
| SCH205_401 | School 205-401 Enrichment | 1.3697998934 | $1,131,972 | $1,131,972 | $1,550.58 | | |
| SCH205BOND | School 205-401 BOND | 0.9354199323 | $1,131,972 | $1,131,972 | $1,058.87 | | |
| ST | State School | 1.4761226122 | $1,131,972 | $1,131,972 | $1,670.93 | | |
| ST2 | State School Part 2 | 0.7953803475 | $1,131,972 | $1,131,972 | $900.35 | | |
| | Total Tax Rate: | 7.6534262019 | | | | | |
| | | | | Taxes w/Current Exemptions: | $8,663.47 | | |
| | | | | Taxes w/o Exemptions: | $8,663.47 | | |
Improvement / Building
| Improvement #1: | RESIDENTIAL | State Code: | Y | 3828.3 sqft | Value: | $580,772 |
| Bathrooms: | 2 | Bedrooms: | 2 | | Ceiling: | DRYWALL PAINTED | Exterior Wall/Cover: | PLY/HARDBOARD T-111 | | Floor Covering: | HARDWOOD/CARP 60-40 | Floor Structure: | WOOD W/SUBFLOOR | | Foundation: | CONCRETE | Heating: | FHA GAS | | Interior Finish: | DRYWALL PAINT | Plumbing Fixture Cnt: | 12 | | Roof Slope: | 6" IN 12" | Roof Structure/Cover: | CJ CONCRETE TILE |
|
| | Type | Description | Class CD | Sub Class CD | Year Built | Area |
| | BAS | BASE/MAIN FLOOR | 4 | 0 | 1994 | 1698.5 |
| | OP1 | OPEN PORCH SLAB | 4 | 0 | 1994 | 324.4 |
| | OP4 | OPEN PORCH W/CEILING-ROOF | 4 | 0 | 1994 | 120.0 |
| | AGR | ATTACHED GARAGE | 4 | 0 | 1994 | 462.0 |
| | OWP | OPEN WOOD PORCH W/STEPS | 4 | 0 | 1994 | 585.0 |
| | DWN | DOWNSTAIRS LIVING AREA | 4 | 0 | 1994 | 2129.8 |
| | UTY | STORAGE/UTILITY | 4 | 0 | 1994 | 80.0 |
| | UTY | STORAGE/UTILITY | 4 | 0 | 1994 | 288.0 |
Sketch
Property Image
Land
| 1 | HB | HIGH BLUFF | 0.3266 | 14226.70 | 80.00 | 0.00 | 1.00 | $550,000 | $0 |
| 2 | 55 | TIDES | 0.0000 | 0.00 | 0.00 | 0.00 | 1.00 | $1,200 | $0 |
Roll Value History
| 2026 | N/A | N/A | N/A | N/A | N/A |
| 2025 | $580,772 | $551,200 | $0 | $1,131,972 | $1,131,972 |
| 2024 | $588,100 | $551,200 | $0 | $1,139,300 | $1,139,300 |
| 2023 | $595,428 | $551,200 | $0 | $1,146,628 | $1,146,628 |
| 2022 | $545,812 | $501,200 | $0 | $1,047,012 | $1,047,012 |
| 2021 | $448,215 | $301,200 | $0 | $749,415 | $749,415 |
| 2020 | $438,529 | $301,200 | $0 | $739,729 | $739,729 |
| 2019 | $363,316 | $301,200 | $0 | $664,516 | $664,516 |
| 2018 | $364,435 | $301,200 | $0 | $665,635 | $665,635 |
| 2017 | $366,670 | $301,200 | $0 | $667,870 | $667,870 |
| 2016 | $371,142 | $301,200 | $0 | $672,342 | $672,342 |
| 2015 | $350,364 | $301,200 | $0 | $651,564 | $651,564 |
| 2014 | $354,756 | $301,200 | $0 | $655,956 | $655,956 |
| 2013 | $359,150 | $221,626 | $0 | $580,776 | $580,776 |
| 2012 | $363,542 | $221,426 | $0 | $584,968 | $584,968 |
| 2011 | $367,933 | $276,533 | $0 | $644,466 | $644,466 |
| 2010 | $343,900 | $337,016 | $0 | $680,916 | $680,916 |
| 2009 | $358,240 | $297,317 | $0 | $655,557 | $655,557 |
| 2008 | $363,460 | $369,954 | $0 | $733,414 | $733,414 |
| 2007 | $368,693 | $369,254 | $0 | $737,947 | $737,947 |
Deed and Sales History
| 1 | 02/13/2025 | QCD | Quit Claim Deed | KINGMA, VERNON R | KINGMA TTEE, VERNON R | | | $10.00 | 63576 | 4586273 |
| 2 | 01/31/2005 | BLA | DNU - Boundary Line Adjustment | KINGMA, VERNON R | KINGMA, VERNON R | | | $0.00 | 70468 | 4091546 |
| 3 | 02/13/2004 | WD | Warranty Deed | KINGMA, VERNON R | KINGMA, VERNON R | | | $12,500.00 | 40569 | 4091545 |
| 4 | 02/01/1991 | QCD | Quit Claim Deed | , | KINGMA, VERNON R | | | $1,000.00 | 10440 | 91002010 |
| 5 | 01/01/1900 | OTHER | Other - Misc. Documents | Unknown | , | | | $0.00 | 0 | 0 |
Payout Agreement
| No payout information available.. |