Property
Account |
| Property ID: | 209866 | Abbreviated Legal Description: | CAMANO PT LOT 12 BLK 3 DESC: BG MST WLY CR LOT 11 BLK 4 S46*W30' S43*E60' TPB S43*E 50' S46*W TO ML NWLY ALG ML TP S46*W FR TPB N46*E TPB TGW PT ADJ VAC OLD CAMANO CO RD TGW: PT LOT 11 BLK 4 DESC: BG MST WLY CR SD LOT S43*E60' TPB S43*E50' N47*E TO SWLY |
| Geographic ID: | S6240-00-04011-0 | Agent Code: | |
| Type: | Real | | |
| Tax Area: | 510 - APPRAISER-Stan/Cam Schl Dist, improved & 1 acre or less | Land Use Code | 11 |
| Open Space: | N | DFL | N |
| Historic Property: | N | Remodel Property: | N |
| Multi-Family Redevelopment: | N | | |
| Township: | | Section: | |
| Range: | |
Location |
| Address: | 1170 S WEST CAMANO DR CAMANO ISLAND, WA 98282 | Mapsco: | |
| Neighborhood: | Cycle 5 | Map ID: | 481 |
| Neighborhood CD: | 5 |
Owner |
| Name: | STRANNIGAN, GARY | Owner ID: | 311946 |
| Mailing Address: | BELINDA K STRANNIGAN 1170 SW CAMANO DR CAMANO ISLAND, WA 98282 | % Ownership: | 100.0000000000% |
| | | Exemptions: | |
Taxes and Assessment Details
Values
| (+) Improvement Homesite Value: | + | $0 | |
| (+) Improvement Non-Homesite Value: | + | $663,068 | |
| (+) Land Homesite Value: | + | $0 | |
| (+) Land Non-Homesite Value: | + | $650,000 | |
| (+) Curr Use (HS): | + | $0 | $0 |
| (+) Curr Use (NHS): | + | $0 | $0 |
| | | -------------------------- | |
| (=) Market Value: | = | $1,313,068 | |
| (–) Productivity Loss: | – | $0 | |
| | | -------------------------- | |
| (=) Subtotal: | = | $1,313,068 | |
| (+) Senior Appraised Value: | + | $0 | |
| (+) Non-Senior Appraised Value: | + | $1,313,068 | |
| | | -------------------------- | |
| (=) Total Appraised Value: | = | $1,313,068 | |
| (–) Senior Exemption Loss: | – | $0 | |
| (–) Exemption Loss: | – | $0 | |
| | | -------------------------- | |
| (=) Taxable Value: | = | $1,313,068 | |
Taxing Jurisdiction
| Owner: | STRANNIGAN, GARY | | |
| % Ownership: | 100.0000000000% | | |
| Total Value: | $1,313,068 | | |
| Tax Area: | 510 - APPRAISER-Stan/Cam Schl Dist, improved & 1 acre or less |
| CF | Conservation Futures | 0.0313996660 | $1,313,068 | $1,313,068 | $41.23 | | |
| EMS1 | Fire & Rescue Dist #1 Camano GEN (EMS) | 0.4998471806 | $1,313,068 | $1,313,068 | $656.33 | | |
| FIRE1 | Fire & Rescue Dist #1 Camano GEN | 1.2496603404 | $1,313,068 | $1,313,068 | $1,640.89 | | |
| FIRE1BOND | Fire & Rescue Dist #1 Camano BOND | 0.1630371212 | $1,313,068 | $1,313,068 | $214.08 | | |
| CE | County Current Expense | 0.3674210519 | $1,313,068 | $1,313,068 | $482.45 | | |
| CR | County Roads | 0.4614296361 | $1,313,068 | $1,313,068 | $605.89 | | |
| LIB | Library Sno-Isle GEN | 0.3039084203 | $1,313,068 | $1,313,068 | $399.05 | | |
| SCH205_401 | School 205-401 Enrichment | 1.3697998934 | $1,313,068 | $1,313,068 | $1,798.64 | | |
| SCH205BOND | School 205-401 BOND | 0.9354199323 | $1,313,068 | $1,313,068 | $1,228.27 | | |
| ST | State School | 1.4761226122 | $1,313,068 | $1,313,068 | $1,938.25 | | |
| ST2 | State School Part 2 | 0.7953803475 | $1,313,068 | $1,313,068 | $1,044.39 | | |
| | Total Tax Rate: | 7.6534262019 | | | | | |
| | | | | Taxes w/Current Exemptions: | $10,049.47 | | |
| | | | | Taxes w/o Exemptions: | $10,049.47 | | |
Improvement / Building
| Improvement #1: | RESIDENTIAL | State Code: | Y | 2227.0 sqft | Value: | $617,381 |
| Bathrooms: | 2 | Bedrooms: | 2 | | Ceiling: | DRYWALL PAINTED | Cooling: | HEAT PUMP/CONV/V | | Exterior Wall/Cover: | CEMENT FIBER | Floor Covering: | CARPET/VINYL 20-80 | | Floor Structure: | WOOD W/SUBFLOOR | Foundation: | CONCRETE | | Interior Finish: | DRYWALL PAINT | Plumbing Fixture Cnt: | 12 | | Roof Slope: | 6" IN 12" | Roof Structure/Cover: | CJ ASPHALT |
|
| | Type | Description | Class CD | Sub Class CD | Year Built | Area |
| | BAS | BASE/MAIN FLOOR | 5 | 0 | 2021 | 1569.0 |
| | UPS | UPPER STORY | 5 | 0 | 2021 | 658.0 |
| | UTY | STORAGE/UTILITY | 5 | 0 | 2021 | 120.0 |
| | UTY | STORAGE/UTILITY | 5 | 0 | 2021 | 80.0 |
| | OWC | OPEN WOOD PORCH W/STEPS/ROOF/C | 5 | 0 | 2021 | 220.0 |
| | OP4 | OPEN PORCH W/CEILING-ROOF | 5 | 0 | 2021 | 25.0 |
| | OWC | OPEN WOOD PORCH W/STEPS/ROOF/C | 5 | 0 | 2021 | 68.8 |
| | OWP | OPEN WOOD PORCH W/STEPS | 5 | 0 | 2021 | 170.0 |
| | OP2 | OPEN PORCH W/STEPS | 5 | 0 | 2021 | 320.0 |
| Improvement #2: | RESIDENTIAL | State Code: | Y | 0.0 sqft | Value: | $45,687 |
Sketch
Property Image
Land
| 1 | HB | HIGH BLUFF | 0.7799 | 33972.44 | 170.00 | 0.00 | 1.00 | $650,000 | $0 |
Roll Value History
| 2026 | N/A | N/A | N/A | N/A | N/A |
| 2025 | $663,068 | $650,000 | $0 | $1,313,068 | $1,313,068 |
| 2024 | $526,885 | $650,000 | $0 | $1,176,885 | $1,176,885 |
| 2023 | $532,207 | $650,000 | $0 | $1,182,207 | $1,182,207 |
| 2022 | $492,243 | $600,000 | $0 | $1,092,243 | $1,092,243 |
| 2021 | $439,020 | $500,000 | $0 | $939,020 | $939,020 |
| 2020 | $137,781 | $500,000 | $0 | $637,781 | $637,781 |
| 2019 | $98,818 | $500,000 | $0 | $598,818 | $598,818 |
| 2018 | $82,212 | $300,000 | $0 | $382,212 | $382,212 |
| 2017 | $82,841 | $300,000 | $0 | $382,841 | $382,841 |
| 2016 | $84,096 | $300,000 | $0 | $384,096 | $384,096 |
| 2015 | $58,279 | $300,000 | $0 | $358,279 | $358,279 |
| 2014 | $59,183 | $350,000 | $0 | $409,183 | $409,183 |
| 2013 | $60,088 | $319,882 | $0 | $379,970 | $379,970 |
| 2012 | $60,994 | $319,882 | $0 | $380,876 | $380,876 |
| 2011 | $61,899 | $399,853 | $0 | $461,752 | $461,752 |
| 2010 | $72,168 | $487,626 | $0 | $559,794 | $559,794 |
| 2009 | $70,270 | $524,330 | $0 | $594,600 | $594,600 |
| 2008 | $70,841 | $637,566 | $0 | $708,407 | $708,407 |
| 2007 | $70,984 | $638,852 | $0 | $709,835 | $709,835 |
Deed and Sales History
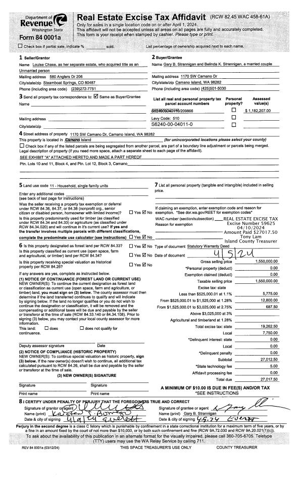
| 1 | 04/05/2024 | WD | Warranty Deed | CHASE, LOUISE | STRANNIGAN, GARY | | | $1,550,000.00 | 59625 | 4571121 |
| 2 | 05/30/2018 | WD | Warranty Deed | PRESCOTT, TRACY W | CHASE, LOUISE | | | $600,000.00 | 34576 | 4446377 |
| 3 | 11/19/2004 | WD | Warranty Deed | RITLAND, DAVID P | BARRALL, JANET L | | | $500,000.00 | 45623 | 4119637 |
| 4 | 03/07/1995 | WD | Warranty Deed | RITLAND, DAVID P | RITLAND, DAVID P | | | $0.00 | 20342 | 4009622 |
| 5 | 03/01/1995 | WD | Warranty Deed | REBO, LAWRENCE F | RITLAND, DAVID P | | | $205,000.00 | 51480 | 95006898 |
| 6 | 11/01/1988 | WD | Warranty Deed | MOORE, THOMAS E | REBO, LAWRENCE F | | | $105,000.00 | 83775 | 88014055 |
| 7 | 04/01/1985 | EZ | Easement | MOORE, THOMAS E | MOORE, THOMAS E | | | $0.00 | 51039 | 85004302 |
| 8 | 10/01/1976 | EXECUTORD | Executor Deed | BROHAMER, JESS L | MOORE, THOMAS E | | | $33,500.00 | 63731 | 0 |
| 9 | 01/01/1900 | OTHER | Other - Misc. Documents | Unknown | BROHAMER, JESS L | | | $0.00 | 0 | 0 |
Payout Agreement
| No payout information available.. |