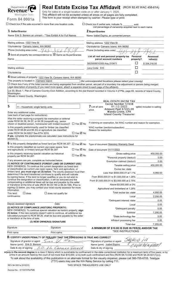
Property
Account |
| Property ID: | 210471 | Abbreviated Legal Description: | CCC 1 LOT 30 BLK 1 |
| Geographic ID: | S6250-00-01030-0 | Agent Code: | |
| Type: | Real | | |
| Tax Area: | 510 - APPRAISER-Stan/Cam Schl Dist, improved & 1 acre or less | Land Use Code | 11 |
| Open Space: | N | DFL | N |
| Historic Property: | N | Remodel Property: | N |
| Multi-Family Redevelopment: | N | | |
| Township: | | Section: | |
| Range: | |
Location |
| Address: | | Mapsco: | |
| Neighborhood: | Cycle 5 | Map ID: | 931 |
| Neighborhood CD: | 5 |
Owner |
| Name: | ESPINO, ISABEL | Owner ID: | 302641 |
| Mailing Address: | 1222 VIEW ST CAMANO ISLAND, WA 98282 | % Ownership: | 100.0000000000% |
| | | Exemptions: | |
Taxes and Assessment Details
Values
| (+) Improvement Homesite Value: | + | $0 | |
| (+) Improvement Non-Homesite Value: | + | $234,797 | |
| (+) Land Homesite Value: | + | $0 | |
| (+) Land Non-Homesite Value: | + | $250,000 | |
| (+) Curr Use (HS): | + | $0 | $0 |
| (+) Curr Use (NHS): | + | $0 | $0 |
| | | -------------------------- | |
| (=) Market Value: | = | $484,797 | |
| (–) Productivity Loss: | – | $0 | |
| | | -------------------------- | |
| (=) Subtotal: | = | $484,797 | |
| (+) Senior Appraised Value: | + | $0 | |
| (+) Non-Senior Appraised Value: | + | $484,797 | |
| | | -------------------------- | |
| (=) Total Appraised Value: | = | $484,797 | |
| (–) Senior Exemption Loss: | – | $0 | |
| (–) Exemption Loss: | – | $0 | |
| | | -------------------------- | |
| (=) Taxable Value: | = | $484,797 | |
Taxing Jurisdiction
| Owner: | ESPINO, ISABEL | | |
| % Ownership: | 100.0000000000% | | |
| Total Value: | $484,797 | | |
| Tax Area: | 510 - APPRAISER-Stan/Cam Schl Dist, improved & 1 acre or less |
| CF | Conservation Futures | 0.0313996660 | $484,797 | $484,797 | $15.22 | | |
| EMS1 | Fire & Rescue Dist #1 Camano GEN (EMS) | 0.4998471806 | $484,797 | $484,797 | $242.32 | | |
| FIRE1 | Fire & Rescue Dist #1 Camano GEN | 1.2496603404 | $484,797 | $484,797 | $605.83 | | |
| FIRE1BOND | Fire & Rescue Dist #1 Camano BOND | 0.1630371212 | $484,797 | $484,797 | $79.04 | | |
| CE | County Current Expense | 0.3674210519 | $484,797 | $484,797 | $178.12 | | |
| CR | County Roads | 0.4614296361 | $484,797 | $484,797 | $223.70 | | |
| LIB | Library Sno-Isle GEN | 0.3039084203 | $484,797 | $484,797 | $147.33 | | |
| SCH205_401 | School 205-401 Enrichment | 1.3697998934 | $484,797 | $484,797 | $664.07 | | |
| SCH205BOND | School 205-401 BOND | 0.9354199323 | $484,797 | $484,797 | $453.49 | | |
| ST | State School | 1.4761226122 | $484,797 | $484,797 | $715.62 | | |
| ST2 | State School Part 2 | 0.7953803475 | $484,797 | $484,797 | $385.60 | | |
| | Total Tax Rate: | 7.6534262019 | | | | | |
| | | | | Taxes w/Current Exemptions: | $3,710.34 | | |
| | | | | Taxes w/o Exemptions: | $3,710.34 | | |
Improvement / Building
| Improvement #1: | RESIDENTIAL | State Code: | Y | 1434.0 sqft | Value: | $234,797 |
| Bathrooms: | 2 | Bedrooms: | 3 | | Ceiling: | DRY WALL SPRAYED | Exterior Wall/Cover: | WOOD SIDING | | Floor Covering: | CARPET/VINYL 80-20 | Floor Structure: | WOOD W/SUBFLOOR | | Foundation: | CONCRETE | Heating: | WALL HEAT ELECTRIC | | Interior Finish: | DRYWALL PAINT | Plumbing Fixture Cnt: | 10 | | Roof Slope: | 6" IN 12" | Roof Structure/Cover: | CJ ASPHALT |
|
| | Type | Description | Class CD | Sub Class CD | Year Built | Area |
| | BAS | BASE/MAIN FLOOR | 3 | 0 | 2001 | 1050.0 |
| | BIG | BUILT IN GARAGE | 3 | 0 | 2001 | 432.0 |
| | OWP | OPEN WOOD PORCH W/STEPS | 3 | 0 | 2001 | 76.0 |
| | OWP | OPEN WOOD PORCH W/STEPS | 3 | 0 | 2001 | 200.0 |
| | DWN | DOWNSTAIRS LIVING AREA | 3 | 0 | 2001 | 384.0 |
Sketch
Property Image
Land
| 1 | 14 | SQ (08001-12000) | 0.0000 | 0.00 | 0.00 | 0.00 | 1.00 | $250,000 | $0 |
Roll Value History
| 2026 | N/A | N/A | N/A | N/A | N/A |
| 2025 | $234,797 | $250,000 | $0 | $484,797 | $484,797 |
| 2024 | $237,761 | $250,000 | $0 | $487,761 | $487,761 |
| 2023 | $240,723 | $210,000 | $0 | $450,723 | $450,723 |
| 2022 | $220,653 | $200,000 | $0 | $420,653 | $420,653 |
| 2021 | $194,216 | $140,000 | $0 | $334,216 | $334,216 |
| 2020 | $188,965 | $120,000 | $0 | $308,965 | $308,965 |
| 2019 | $135,852 | $170,000 | $0 | $305,852 | $305,852 |
| 2018 | $136,249 | $140,000 | $0 | $276,249 | $276,249 |
| 2017 | $137,047 | $90,000 | $0 | $227,047 | $227,047 |
| 2016 | $138,641 | $65,000 | $0 | $203,641 | $203,641 |
| 2015 | $131,221 | $50,000 | $0 | $181,221 | $181,221 |
| 2014 | $132,765 | $50,000 | $0 | $182,765 | $182,765 |
| 2013 | $134,309 | $56,000 | $0 | $190,309 | $190,309 |
| 2012 | $135,853 | $56,000 | $0 | $191,853 | $191,853 |
| 2011 | $137,397 | $70,000 | $0 | $207,397 | $207,397 |
| 2010 | $143,202 | $70,000 | $0 | $213,202 | $213,202 |
| 2009 | $146,271 | $100,000 | $0 | $246,271 | $246,271 |
| 2008 | $146,311 | $130,000 | $0 | $276,311 | $276,311 |
| 2007 | $147,895 | $118,000 | $0 | $265,895 | $265,895 |
Deed and Sales History
| 1 | 01/11/2022 | WD | Warranty Deed | BENSON JTWROS, ERIK D | ESPINO, ISABEL | | | $450,000.00 | 51638 | 4537784 |
| 2 | 08/21/2017 | QCD | Quit Claim Deed | BENSON, ERIK D | BENSON JTWROS, ERIK D | | | $0.00 | 30985 | 4429764 |
| 3 | 07/16/2008 | QCD | Quit Claim Deed | BENSON, ERIK D | BENSON, ERIK D | | | $0.00 | 81904 | 4233297 |
| 4 | 10/01/2004 | TRUSTEED | Trustee's Deed | VETERANS ADMINISTRATION, | BENSON, ERIK D | | | $178,554.00 | 45020 | 4116389 |
| 5 | 02/10/2004 | TRUSTEED | Trustee's Deed | WELLS FARGO HOME MORTGAGE INC, | VETERANS ADMINISTRATION, | | | $0.00 | 40684 | 4092187 |
| 6 | 02/10/2004 | TRUSTEED | Trustee's Deed | LEDFORD, CHARLES W | WELLS FARGO HOME MORTGAGE INC, | | | $138,365.00 | 40683 | 4092186 |
| 7 | 08/23/2001 | WD | Warranty Deed | KOCH, RICHARD M | LEDFORD, CHARLES W | | | $160,000.00 | 11852 | 20033167 |
| 8 | 04/25/2000 | WD | Warranty Deed | KLETT, HENRY R | KOCH, RICHARD M | | | $38,000.00 | 1536 | 20007468 |
| 9 | 01/01/1998 | WD | Warranty Deed | DELAP, FLETCHER G | KLETT, HENRY R | | | $32,000.00 | 80204 | 98000997 |
| 10 | 01/01/1900 | OTHER | Other - Misc. Documents | Unknown | DELAP, FLETCHER G | | | $0.00 | 0 | 0 |
Payout Agreement
| No payout information available.. |