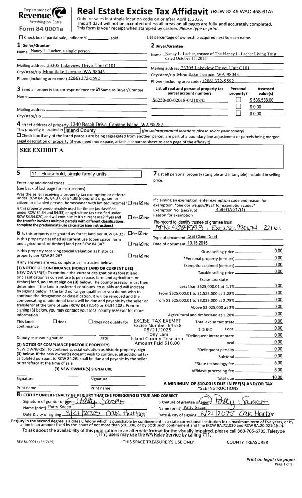
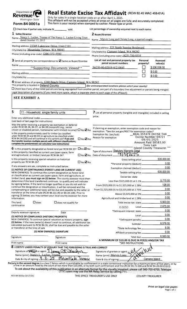
Property
Account |
| Property ID: | 210845 | Abbreviated Legal Description: | CCC 1 LOT 18 BLK 2 EX SELY 9' FOR RD DESC 79D305 AF#93209 |
| Geographic ID: | S6250-00-02018-0 | Agent Code: | |
| Type: | Real | | |
| Tax Area: | 510 - APPRAISER-Stan/Cam Schl Dist, improved & 1 acre or less | Land Use Code | 11 |
| Open Space: | N | DFL | N |
| Historic Property: | N | Remodel Property: | N |
| Multi-Family Redevelopment: | N | | |
| Township: | | Section: | |
| Range: | |
Location |
| Address: | 1240 BEACH DR CAMANO ISLAND, WA 98282 | Mapsco: | |
| Neighborhood: | Cycle 5 | Map ID: | 931 |
| Neighborhood CD: | 5 |
Owner |
| Name: | LACHER TRUSTEE, NANCY | Owner ID: | 272776 |
| Mailing Address: | 1240 BEACH DR CAMANO ISLAND, WA 98282 | % Ownership: | 100.0000000000% |
| | | Exemptions: | |
Taxes and Assessment Details
Values
| (+) Improvement Homesite Value: | + | $0 | |
| (+) Improvement Non-Homesite Value: | + | $226,538 | |
| (+) Land Homesite Value: | + | $0 | |
| (+) Land Non-Homesite Value: | + | $310,000 | |
| (+) Curr Use (HS): | + | $0 | $0 |
| (+) Curr Use (NHS): | + | $0 | $0 |
| | | -------------------------- | |
| (=) Market Value: | = | $536,538 | |
| (–) Productivity Loss: | – | $0 | |
| | | -------------------------- | |
| (=) Subtotal: | = | $536,538 | |
| (+) Senior Appraised Value: | + | $0 | |
| (+) Non-Senior Appraised Value: | + | $536,538 | |
| | | -------------------------- | |
| (=) Total Appraised Value: | = | $536,538 | |
| (–) Senior Exemption Loss: | – | $0 | |
| (–) Exemption Loss: | – | $0 | |
| | | -------------------------- | |
| (=) Taxable Value: | = | $536,538 | |
Taxing Jurisdiction
| Owner: | LACHER TRUSTEE, NANCY | | |
| % Ownership: | 100.0000000000% | | |
| Total Value: | $536,538 | | |
| Tax Area: | 510 - APPRAISER-Stan/Cam Schl Dist, improved & 1 acre or less |
| CF | Conservation Futures | 0.0313996660 | $536,538 | $536,538 | $16.85 | | |
| EMS1 | Fire & Rescue Dist #1 Camano GEN (EMS) | 0.4998471806 | $536,538 | $536,538 | $268.19 | | |
| FIRE1 | Fire & Rescue Dist #1 Camano GEN | 1.2496603404 | $536,538 | $536,538 | $670.49 | | |
| FIRE1BOND | Fire & Rescue Dist #1 Camano BOND | 0.1630371212 | $536,538 | $536,538 | $87.48 | | |
| CE | County Current Expense | 0.3674210519 | $536,538 | $536,538 | $197.14 | | |
| CR | County Roads | 0.4614296361 | $536,538 | $536,538 | $247.57 | | |
| LIB | Library Sno-Isle GEN | 0.3039084203 | $536,538 | $536,538 | $163.06 | | |
| SCH205_401 | School 205-401 Enrichment | 1.3697998934 | $536,538 | $536,538 | $734.95 | | |
| SCH205BOND | School 205-401 BOND | 0.9354199323 | $536,538 | $536,538 | $501.89 | | |
| ST | State School | 1.4761226122 | $536,538 | $536,538 | $792.00 | | |
| ST2 | State School Part 2 | 0.7953803475 | $536,538 | $536,538 | $426.75 | | |
| | Total Tax Rate: | 7.6534262019 | | | | | |
| | | | | Taxes w/Current Exemptions: | $4,106.37 | | |
| | | | | Taxes w/o Exemptions: | $4,106.37 | | |
Improvement / Building
| Improvement #1: | RESIDENTIAL | State Code: | Y | 2369.0 sqft | Value: | $226,538 |
| Bathrooms: | 2 | Bedrooms: | 3 | | Ceiling: | BEAM PAINTED | Exterior Wall/Cover: | PLY/HARDBOARD T-111 | | Floor Covering: | CARPET/VINYL 60-40 | Floor Structure: | WOOD W/SUBFLOOR | | Foundation: | CONCRETE | Heating: | BASEBOARD ELECTRIC | | Interior Finish: | DRYWALL PAINT | Plumbing Fixture Cnt: | 9 | | Roof Slope: | 3" IN 12" | Roof Structure/Cover: | BEAM BUILT-UP ROCK |
|
| | Type | Description | Class CD | Sub Class CD | Year Built | Area |
| | BAS | BASE/MAIN FLOOR | 3 | 0 | 1961 | 1180.0 |
| | DWN | DOWNSTAIRS LIVING AREA | 3 | 0 | 1961 | 1189.0 |
| | OP3 | OPEN PORCH W/ROOF | 3 | 0 | 1961 | 9.0 |
| | AGR | ATTACHED GARAGE | 3 | 0 | 1961 | 336.0 |
| | OWP | OPEN WOOD PORCH W/STEPS | 3 | 0 | 1961 | 492.0 |
| | UTY | STORAGE/UTILITY | 3 | 0 | 1961 | 126.0 |
Sketch
Property Image
Land
| 1 | 14 | SQ (08001-12000) | 0.0000 | 0.00 | 0.00 | 0.00 | 1.00 | $310,000 | $0 |
Roll Value History
| 2026 | N/A | N/A | N/A | N/A | N/A |
| 2025 | $226,538 | $310,000 | $0 | $536,538 | $536,538 |
| 2024 | $230,875 | $280,000 | $0 | $510,875 | $510,875 |
| 2023 | $234,584 | $275,000 | $0 | $509,584 | $509,584 |
| 2022 | $215,781 | $250,000 | $0 | $465,781 | $465,781 |
| 2021 | $175,403 | $180,000 | $0 | $355,403 | $355,403 |
| 2020 | $172,103 | $150,000 | $0 | $322,103 | $322,103 |
| 2019 | $133,190 | $200,000 | $0 | $333,190 | $333,190 |
| 2018 | $133,718 | $170,000 | $0 | $303,718 | $303,718 |
| 2017 | $134,770 | $125,000 | $0 | $259,770 | $259,770 |
| 2016 | $136,876 | $90,000 | $0 | $226,876 | $226,876 |
| 2015 | $102,212 | $50,000 | $0 | $152,212 | $152,212 |
| 2014 | $104,251 | $50,000 | $0 | $154,251 | $154,251 |
| 2013 | $106,287 | $56,000 | $0 | $162,287 | $162,287 |
| 2012 | $108,325 | $56,000 | $0 | $164,325 | $164,325 |
| 2011 | $110,364 | $70,000 | $0 | $180,364 | $180,364 |
| 2010 | $126,810 | $70,000 | $0 | $196,810 | $196,810 |
| 2009 | $132,034 | $90,000 | $0 | $222,034 | $222,034 |
| 2008 | $134,262 | $130,000 | $0 | $264,262 | $264,262 |
| 2007 | $136,462 | $118,000 | $0 | $254,462 | $254,462 |
Deed and Sales History
| 1 | 09/03/2025 | WD | Warranty Deed | LACHER TRUSTEE, NANCY | LONG, MARVIN | | | $535,000.00 | 64721 | 4590527 |
| 2 | 10/15/2015 | QCD | Quit Claim Deed | LACHER, NANCY | LACHER TRUSTEE, NANCY | | | $0.00 | 64558 | 4589921 |
| 3 | 10/15/2015 | TRUSTEED | Trustee's Deed | LACHER, NANCY | LACHER TRUSTEE, NANCY | | | $0.00 | 22161 | 4389593 |
| 4 | 02/08/2005 | PRD | Personal Representatives Deed | HURLEY, GERALDINE M | LACHER, NANCY | | | $0.00 | 50559 | 4125714 |
| 5 | 07/01/1996 | WD | Warranty Deed | ERICKSON, DARLENE F | HURLEY, GERALDINE M | | | $145,000.00 | 62752 | 96013458 |
| 6 | 09/01/1992 | OTHER | Other - Misc. Documents | ERICKSON, CARL A | ERICKSON, DARLENE F | | | $0.00 | 65048 | 0 |
| 7 | 01/01/1900 | OTHER | Other - Misc. Documents | Unknown | ERICKSON, CARL A | | | $0.00 | 0 | 0 |
Payout Agreement
| No payout information available.. |