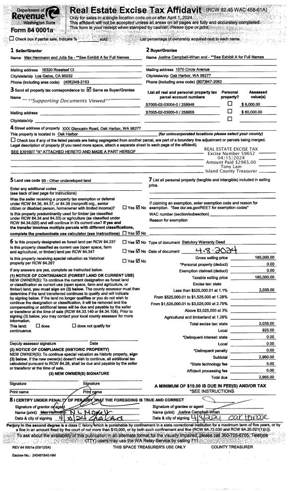
Property
Account |
| Property ID: | 211176 | Abbreviated Legal Description: | CCC 1 LOT 16 & PT LOT 15 BLK 4 LY NWLY OF LN 50' NWLY OF & PAR/TO SELY LN LOT 15 INCL ADJ TIDES TGW PT ADJ VAC BEACH DR |
| Geographic ID: | S6250-00-04016-0 | Agent Code: | |
| Type: | Real | | |
| Tax Area: | 510 - APPRAISER-Stan/Cam Schl Dist, improved & 1 acre or less | Land Use Code | 11 |
| Open Space: | N | DFL | N |
| Historic Property: | N | Remodel Property: | N |
| Multi-Family Redevelopment: | N | | |
| Township: | | Section: | |
| Range: | |
Location |
| Address: | 1259 BEACH DR CAMANO ISLAND, WA 98282 | Mapsco: | |
| Neighborhood: | Cycle 5 | Map ID: | 931 |
| Neighborhood CD: | 5 |
Owner |
| Name: | UNDERHILL-VODON TTEE, SHERRY | Owner ID: | 312435 |
| Mailing Address: | DIANE UNDERHILL TTEE 2824 SAILOR AVE VENTURA, CA 93001 | % Ownership: | 100.0000000000% |
| | | Exemptions: | |
Taxes and Assessment Details
Values
| (+) Improvement Homesite Value: | + | $0 | |
| (+) Improvement Non-Homesite Value: | + | $265,406 | |
| (+) Land Homesite Value: | + | $0 | |
| (+) Land Non-Homesite Value: | + | $1,025,600 | |
| (+) Curr Use (HS): | + | $0 | $0 |
| (+) Curr Use (NHS): | + | $0 | $0 |
| | | -------------------------- | |
| (=) Market Value: | = | $1,291,006 | |
| (–) Productivity Loss: | – | $0 | |
| | | -------------------------- | |
| (=) Subtotal: | = | $1,291,006 | |
| (+) Senior Appraised Value: | + | $0 | |
| (+) Non-Senior Appraised Value: | + | $1,291,006 | |
| | | -------------------------- | |
| (=) Total Appraised Value: | = | $1,291,006 | |
| (–) Senior Exemption Loss: | – | $0 | |
| (–) Exemption Loss: | – | $0 | |
| | | -------------------------- | |
| (=) Taxable Value: | = | $1,291,006 | |
Taxing Jurisdiction
| Owner: | UNDERHILL-VODON TTEE, SHERRY | | |
| % Ownership: | 100.0000000000% | | |
| Total Value: | $1,291,006 | | |
| Tax Area: | 510 - APPRAISER-Stan/Cam Schl Dist, improved & 1 acre or less |
| CF | Conservation Futures | 0.0313996660 | $1,291,006 | $1,291,006 | $40.54 | | |
| EMS1 | Fire & Rescue Dist #1 Camano GEN (EMS) | 0.4998471806 | $1,291,006 | $1,291,006 | $645.31 | | |
| FIRE1 | Fire & Rescue Dist #1 Camano GEN | 1.2496603404 | $1,291,006 | $1,291,006 | $1,613.32 | | |
| FIRE1BOND | Fire & Rescue Dist #1 Camano BOND | 0.1630371212 | $1,291,006 | $1,291,006 | $210.48 | | |
| CE | County Current Expense | 0.3674210519 | $1,291,006 | $1,291,006 | $474.34 | | |
| CR | County Roads | 0.4614296361 | $1,291,006 | $1,291,006 | $595.71 | | |
| LIB | Library Sno-Isle GEN | 0.3039084203 | $1,291,006 | $1,291,006 | $392.35 | | |
| SCH205_401 | School 205-401 Enrichment | 1.3697998934 | $1,291,006 | $1,291,006 | $1,768.42 | | |
| SCH205BOND | School 205-401 BOND | 0.9354199323 | $1,291,006 | $1,291,006 | $1,207.63 | | |
| ST | State School | 1.4761226122 | $1,291,006 | $1,291,006 | $1,905.68 | | |
| ST2 | State School Part 2 | 0.7953803475 | $1,291,006 | $1,291,006 | $1,026.84 | | |
| | Total Tax Rate: | 7.6534262019 | | | | | |
| | | | | Taxes w/Current Exemptions: | $9,880.62 | | |
| | | | | Taxes w/o Exemptions: | $9,880.62 | | |
Improvement / Building
| Improvement #1: | RESIDENTIAL | State Code: | Y | 1685.0 sqft | Value: | $265,406 |
| Bathrooms: | 2 | Bedrooms: | 3 | | Ceiling: | DRY WALL SPRAYED | Exterior Wall/Cover: | STUCCO | | Floor Covering: | CARPET/VINYL 80-20 | Floor Structure: | WOOD W/SUBFLOOR | | Foundation: | CONCRETE | Heating: | FHA ELECTRIC | | Interior Finish: | DRYWALL PAINT | Plumbing Fixture Cnt: | 9 | | Roof Slope: | 4" IN 12" | Roof Structure/Cover: | CJ CONCRETE TILE |
|
| | Type | Description | Class CD | Sub Class CD | Year Built | Area |
| | BAS | BASE/MAIN FLOOR | 3 | 0 | 1979 | 1157.0 |
| | OP1 | OPEN PORCH SLAB | 3 | 0 | 1979 | 142.0 |
| | OP1 | OPEN PORCH SLAB | 3 | 0 | 1979 | 918.0 |
| | UPS | UPPER STORY | 3 | 0 | 1979 | 528.0 |
| | BAI | BALCONY IRON RAIL | 3 | 0 | 1979 | 124.0 |
| | DGR | DETACHED GARAGE | 3 | 0 | 1979 | 680.0 |
Sketch
Property Image
Land
| 1 | LB | LOW BANK | 0.0000 | 0.00 | 70.00 | 0.00 | 1.00 | $1,025,000 | $0 |
| 2 | 55 | TIDES | 0.0000 | 0.00 | 70.00 | 0.00 | 1.00 | $600 | $0 |
Roll Value History
| 2026 | N/A | N/A | N/A | N/A | N/A |
| 2025 | $265,406 | $1,025,600 | $0 | $1,291,006 | $1,291,006 |
| 2024 | $269,473 | $1,025,600 | $0 | $1,295,073 | $1,295,073 |
| 2023 | $273,540 | $1,025,600 | $0 | $1,299,140 | $1,299,140 |
| 2022 | $251,378 | $1,000,600 | $0 | $1,251,978 | $1,251,978 |
| 2021 | $212,465 | $850,600 | $0 | $1,063,065 | $1,063,065 |
| 2020 | $207,919 | $825,600 | $0 | $1,033,519 | $1,033,519 |
| 2019 | $153,785 | $875,600 | $0 | $1,029,385 | $1,029,385 |
| 2018 | $154,357 | $475,600 | $0 | $629,957 | $629,957 |
| 2017 | $155,500 | $475,600 | $0 | $631,100 | $631,100 |
| 2016 | $157,786 | $400,600 | $0 | $558,386 | $558,386 |
| 2015 | $148,098 | $400,600 | $0 | $548,698 | $548,698 |
| 2014 | $149,989 | $400,600 | $0 | $550,589 | $550,589 |
| 2013 | $151,881 | $604,826 | $0 | $756,707 | $756,707 |
| 2012 | $153,772 | $604,826 | $0 | $758,598 | $758,598 |
| 2011 | $155,664 | $636,622 | $0 | $792,286 | $792,286 |
| 2010 | $167,189 | $636,622 | $0 | $803,811 | $803,811 |
| 2009 | $161,692 | $717,172 | $0 | $878,864 | $878,864 |
| 2008 | $163,844 | $866,614 | $0 | $1,030,458 | $1,030,458 |
| 2007 | $166,220 | $551,342 | $0 | $717,562 | $717,562 |
Deed and Sales History
| 1 | 12/19/2023 | WD | Warranty Deed | UNDERHILL-VONDON, SHERRY | UNDERHILL-VODON TTEE, SHERRY | | | $0.00 | 60018 | 4572531 |
| 2 | 03/29/2024 | WD | Warranty Deed | UNDERHILL, DIANE | UNDERHILL TTEE, DIANE M | | | $0.00 | 60017 | 4572530 |
| 3 | 12/19/2023 | WD | Warranty Deed | UNDERHILL, MERLE / BARBARA | UNDERHILL-VONDON, SHERRY | | | $0.00 | 60005 | 4572480 |
| 4 | 11/01/1992 | QCD | Quit Claim Deed | UNDERHILL, MERLE A | UNDERHILL, MERLE/BARBARA | | | $0.00 | 24688 | 92023163 |
| 5 | 10/01/1984 | WD | Warranty Deed | UNDERHILL, MERLE A | UNDERHILL, MERLE A | | | $172,000.00 | 43017 | 84004465 |
| 6 | 09/01/1984 | WD | Warranty Deed | MCNEELY, JAMES T | UNDERHILL, MERLE A | | | $0.00 | 43196 | 84005122 |
| 7 | 09/01/1969 | EXECUTORD | Executor Deed | CHASTEEN, EDWARD A | MCNEELY, JAMES T | | | $0.00 | 36334 | 0 |
| 8 | 01/01/1900 | OTHER | Other - Misc. Documents | Unknown | CHASTEEN, EDWARD A | | | $0.00 | 0 | 0 |
Payout Agreement
| No payout information available.. |