Property
Account |
| Property ID: | 211844 | Abbreviated Legal Description: | CCC 2 LOT 12 BLK 4 |
| Geographic ID: | S6250-02-04012-0 | Agent Code: | |
| Type: | Real | | |
| Tax Area: | 510 - APPRAISER-Stan/Cam Schl Dist, improved & 1 acre or less | Land Use Code | 11 |
| Open Space: | N | DFL | N |
| Historic Property: | N | Remodel Property: | N |
| Multi-Family Redevelopment: | N | | |
| Township: | | Section: | |
| Range: | |
Location |
| Address: | 1307 BEACH DR CAMANO ISLAND, WA 98282 | Mapsco: | |
| Neighborhood: | Cycle 5 | Map ID: | 932 |
| Neighborhood CD: | 5 |
Owner |
| Name: | WILDERMAN, RONALD CHARLES | Owner ID: | 297156 |
| Mailing Address: | BARBARA ANN WILDERMAN 1307 BEACH DR CAMANO ISLAND, WA 98282 | % Ownership: | 100.0000000000% |
| | | Exemptions: | |
Taxes and Assessment Details
Values
| (+) Improvement Homesite Value: | + | $0 | |
| (+) Improvement Non-Homesite Value: | + | $750,040 | |
| (+) Land Homesite Value: | + | $0 | |
| (+) Land Non-Homesite Value: | + | $1,025,600 | |
| (+) Curr Use (HS): | + | $0 | $0 |
| (+) Curr Use (NHS): | + | $0 | $0 |
| | | -------------------------- | |
| (=) Market Value: | = | $1,775,640 | |
| (–) Productivity Loss: | – | $0 | |
| | | -------------------------- | |
| (=) Subtotal: | = | $1,775,640 | |
| (+) Senior Appraised Value: | + | $0 | |
| (+) Non-Senior Appraised Value: | + | $1,775,640 | |
| | | -------------------------- | |
| (=) Total Appraised Value: | = | $1,775,640 | |
| (–) Senior Exemption Loss: | – | $0 | |
| (–) Exemption Loss: | – | $0 | |
| | | -------------------------- | |
| (=) Taxable Value: | = | $1,775,640 | |
Taxing Jurisdiction
| Owner: | WILDERMAN, RONALD CHARLES | | |
| % Ownership: | 100.0000000000% | | |
| Total Value: | $1,775,640 | | |
| Tax Area: | 510 - APPRAISER-Stan/Cam Schl Dist, improved & 1 acre or less |
| CF | Conservation Futures | 0.0313996660 | $1,775,640 | $1,775,640 | $55.75 | | |
| EMS1 | Fire & Rescue Dist #1 Camano GEN (EMS) | 0.4998471806 | $1,775,640 | $1,775,640 | $887.55 | | |
| FIRE1 | Fire & Rescue Dist #1 Camano GEN | 1.2496603404 | $1,775,640 | $1,775,640 | $2,218.95 | | |
| FIRE1BOND | Fire & Rescue Dist #1 Camano BOND | 0.1630371212 | $1,775,640 | $1,775,640 | $289.50 | | |
| CE | County Current Expense | 0.3674210519 | $1,775,640 | $1,775,640 | $652.41 | | |
| CR | County Roads | 0.4614296361 | $1,775,640 | $1,775,640 | $819.33 | | |
| LIB | Library Sno-Isle GEN | 0.3039084203 | $1,775,640 | $1,775,640 | $539.63 | | |
| SCH205_401 | School 205-401 Enrichment | 1.3697998934 | $1,775,640 | $1,775,640 | $2,432.27 | | |
| SCH205BOND | School 205-401 BOND | 0.9354199323 | $1,775,640 | $1,775,640 | $1,660.97 | | |
| ST | State School | 1.4761226122 | $1,775,640 | $1,775,640 | $2,621.06 | | |
| ST2 | State School Part 2 | 0.7953803475 | $1,775,640 | $1,775,640 | $1,412.31 | | |
| | Total Tax Rate: | 7.6534262019 | | | | | |
| | | | | Taxes w/Current Exemptions: | $13,589.73 | | |
| | | | | Taxes w/o Exemptions: | $13,589.73 | | |
Improvement / Building
| Improvement #1: | RESIDENTIAL | State Code: | Y | 3343.0 sqft | Value: | $750,040 |
| Bathrooms: | 2.5 | Bedrooms: | 0 | | Ceiling: | DRYWALL PAINTED | Cooling: | HEAT PUMP/CONV/V | | Exterior Wall/Cover: | PLY/HARDBOARD T-111 | Floor Covering: | CERAMIC TILE/CPT 40-60 | | Floor Structure: | WOOD W/SUBFLOOR | Foundation: | CONCRETE | | Interior Finish: | DRYWALL PAINT | Plumbing Fixture Cnt: | 11 | | Roof Slope: | 4" IN 12" | Roof Structure/Cover: | BEAM ALUMINUM HEAVY |
|
| | Type | Description | Class CD | Sub Class CD | Year Built | Area |
| | BAS | BASE/MAIN FLOOR | 5 | 0 | 2017 | 1978.0 |
| | AGR | ATTACHED GARAGE | 5 | 0 | 2017 | 604.0 |
| | UPS | UPPER STORY | 5 | 0 | 2017 | 1365.0 |
| | OP4 | OPEN PORCH W/CEILING-ROOF | 5 | 0 | 2017 | 96.0 |
| | OWP | OPEN WOOD PORCH W/STEPS | 5 | 0 | 2017 | 192.0 |
Sketch
Property Image
Land
| 1 | LB | LOW BANK | 0.0000 | 0.00 | 60.00 | 0.00 | 1.00 | $1,025,000 | $0 |
| 2 | 55 | TIDES | 0.0000 | 0.00 | 60.00 | 0.00 | 1.00 | $600 | $0 |
Roll Value History
| 2026 | N/A | N/A | N/A | N/A | N/A |
| 2025 | $750,040 | $1,025,600 | $0 | $1,775,640 | $1,775,640 |
| 2024 | $756,188 | $1,025,600 | $0 | $1,781,788 | $1,781,788 |
| 2023 | $762,335 | $1,025,600 | $0 | $1,787,935 | $1,787,935 |
| 2022 | $695,881 | $1,000,600 | $0 | $1,696,481 | $1,696,481 |
| 2021 | $395,336 | $850,600 | $0 | $1,245,936 | $1,245,936 |
| 2020 | $387,865 | $825,600 | $0 | $1,213,465 | $1,213,465 |
| 2019 | $337,185 | $875,600 | $0 | $1,212,785 | $1,212,785 |
| 2018 | $238,047 | $475,600 | $0 | $713,647 | $713,647 |
| 2017 | $87,714 | $475,600 | $0 | $563,314 | $563,314 |
| 2016 | $89,084 | $400,600 | $0 | $489,684 | $489,684 |
| 2015 | $75,380 | $400,600 | $0 | $475,980 | $475,980 |
| 2014 | $76,749 | $400,600 | $0 | $477,349 | $477,349 |
| 2013 | $78,120 | $528,990 | $0 | $607,110 | $607,110 |
| 2012 | $79,491 | $528,990 | $0 | $608,481 | $608,481 |
| 2011 | $80,861 | $556,800 | $0 | $637,661 | $637,661 |
| 2010 | $89,270 | $556,800 | $0 | $646,070 | $646,070 |
| 2009 | $93,322 | $627,252 | $0 | $720,574 | $720,574 |
| 2008 | $94,697 | $757,959 | $0 | $852,656 | $852,656 |
| 2007 | $96,073 | $482,220 | $0 | $578,293 | $578,293 |
Deed and Sales History
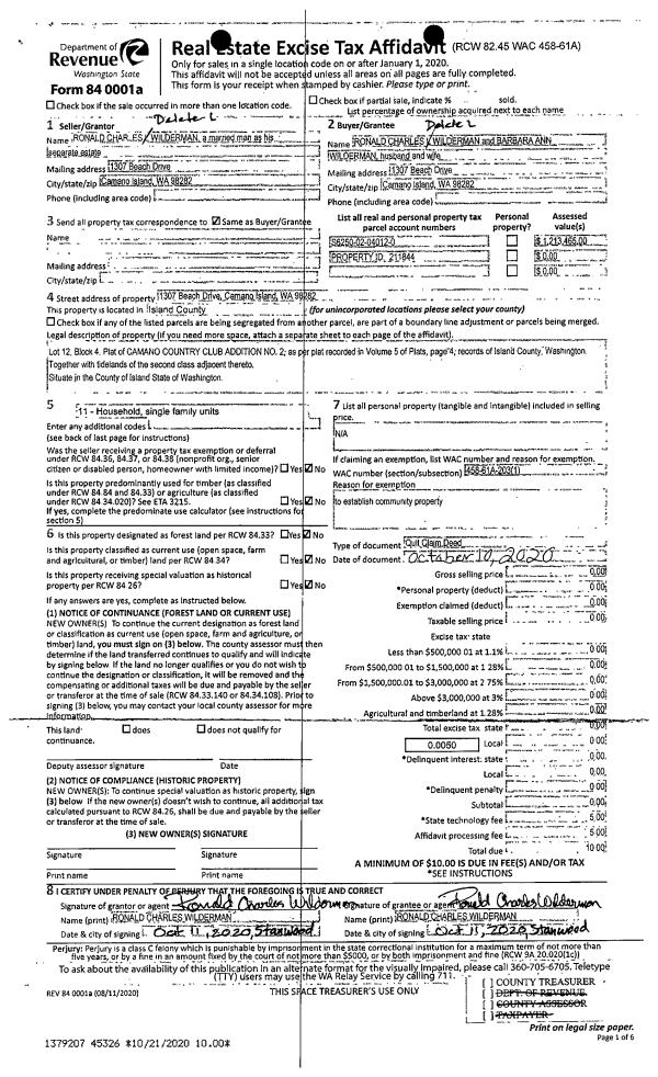
| 1 | 10/10/2020 | QCD | Quit Claim Deed | WILDERMAN, RONALD CHARLES L | WILDERMAN, RONALD CHARLES | | | $0.00 | 45326 | 4500043 |
| 2 | 12/11/2003 | QCD | Quit Claim Deed | WILDERMAN, ZELMA L | WILDERMAN, RONALD CHARLES L | | | $0.00 | 35637 | 4086261 |
| 3 | 11/01/1980 | REC | Real Estate Contract | WILDERMAN, MRS J | WILDERMAN, ZELMA L | | | $0.00 | 58954 | 0 |
| 4 | 01/01/1900 | OTHER | Other - Misc. Documents | Unknown | WILDERMAN, MRS J | | | $0.00 | 0 | 0 |
Payout Agreement
| No payout information available.. |