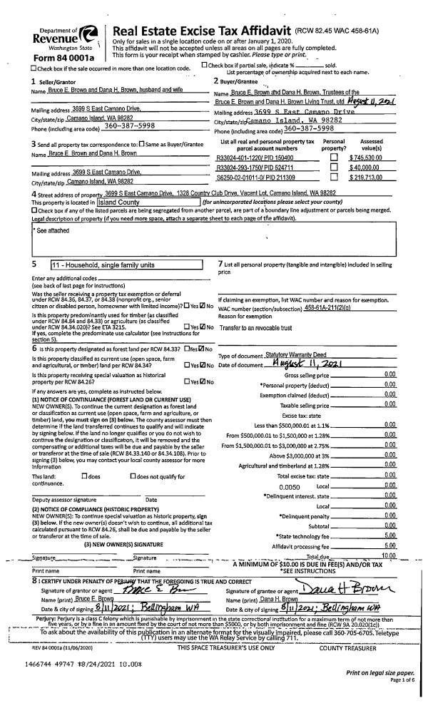
Property
Account |
| Property ID: | 211880 | Abbreviated Legal Description: | CCC 3 LOT 1 BLK 1 |
| Geographic ID: | S6250-03-01001-0 | Agent Code: | |
| Type: | Real | | |
| Tax Area: | 510 - APPRAISER-Stan/Cam Schl Dist, improved & 1 acre or less | Land Use Code | 11 |
| Open Space: | N | DFL | N |
| Historic Property: | N | Remodel Property: | N |
| Multi-Family Redevelopment: | N | | |
| Township: | | Section: | |
| Range: | |
Location |
| Address: | 1414 COUNTRY CLUB DR CAMANO ISLAND, WA 98282 | Mapsco: | |
| Neighborhood: | Cycle 5 | Map ID: | 930 |
| Neighborhood CD: | 5 |
Owner |
| Name: | CLISE, RICHARD H | Owner ID: | 299980 |
| Mailing Address: | 1410 COUNTRY CLUB DR CAMANO ISLAND, WA 98282 | % Ownership: | 100.0000000000% |
| | | Exemptions: | |
Taxes and Assessment Details
Values
| (+) Improvement Homesite Value: | + | $0 | |
| (+) Improvement Non-Homesite Value: | + | $242,794 | |
| (+) Land Homesite Value: | + | $0 | |
| (+) Land Non-Homesite Value: | + | $390,000 | |
| (+) Curr Use (HS): | + | $0 | $0 |
| (+) Curr Use (NHS): | + | $0 | $0 |
| | | -------------------------- | |
| (=) Market Value: | = | $632,794 | |
| (–) Productivity Loss: | – | $0 | |
| | | -------------------------- | |
| (=) Subtotal: | = | $632,794 | |
| (+) Senior Appraised Value: | + | $0 | |
| (+) Non-Senior Appraised Value: | + | $632,794 | |
| | | -------------------------- | |
| (=) Total Appraised Value: | = | $632,794 | |
| (–) Senior Exemption Loss: | – | $0 | |
| (–) Exemption Loss: | – | $0 | |
| | | -------------------------- | |
| (=) Taxable Value: | = | $632,794 | |
Taxing Jurisdiction
| Owner: | CLISE, RICHARD H | | |
| % Ownership: | 100.0000000000% | | |
| Total Value: | $632,794 | | |
| Tax Area: | 510 - APPRAISER-Stan/Cam Schl Dist, improved & 1 acre or less |
| CF | Conservation Futures | 0.0313996660 | $632,794 | $632,794 | $19.87 | | |
| EMS1 | Fire & Rescue Dist #1 Camano GEN (EMS) | 0.4998471806 | $632,794 | $632,794 | $316.30 | | |
| FIRE1 | Fire & Rescue Dist #1 Camano GEN | 1.2496603404 | $632,794 | $632,794 | $790.78 | | |
| FIRE1BOND | Fire & Rescue Dist #1 Camano BOND | 0.1630371212 | $632,794 | $632,794 | $103.17 | | |
| CE | County Current Expense | 0.3674210519 | $632,794 | $632,794 | $232.50 | | |
| CR | County Roads | 0.4614296361 | $632,794 | $632,794 | $291.99 | | |
| LIB | Library Sno-Isle GEN | 0.3039084203 | $632,794 | $632,794 | $192.31 | | |
| SCH205_401 | School 205-401 Enrichment | 1.3697998934 | $632,794 | $632,794 | $866.80 | | |
| SCH205BOND | School 205-401 BOND | 0.9354199323 | $632,794 | $632,794 | $591.93 | | |
| ST | State School | 1.4761226122 | $632,794 | $632,794 | $934.08 | | |
| ST2 | State School Part 2 | 0.7953803475 | $632,794 | $632,794 | $503.31 | | |
| | Total Tax Rate: | 7.6534262019 | | | | | |
| | | | | Taxes w/Current Exemptions: | $4,843.04 | | |
| | | | | Taxes w/o Exemptions: | $4,843.04 | | |
Improvement / Building
| Improvement #1: | RESIDENTIAL | State Code: | Y | 2240.0 sqft | Value: | $242,794 |
| Bathrooms: | 2 | Bedrooms: | 3 | | Ceiling: | DRYWALL PAINTED | Exterior Wall/Cover: | WOOD SIDING | | Floor Covering: | CARPET/VINYL 80-20 | Floor Structure: | WOOD W/SUBFLOOR | | Foundation: | CONCRETE | Heating: | BASEBOARD ELECTRIC | | Interior Finish: | DRYWALL PAINT | Plumbing Fixture Cnt: | 9 | | Roof Slope: | 3" IN 12" | Roof Structure/Cover: | CJ ASPHALT |
|
| | Type | Description | Class CD | Sub Class CD | Year Built | Area |
| | BAS | BASE/MAIN FLOOR | 3 | 0 | 1962 | 1120.0 |
| | DWN | DOWNSTAIRS LIVING AREA | 3 | 0 | 1962 | 1120.0 |
| | OP1 | OPEN PORCH SLAB | 3 | 0 | 1962 | 240.0 |
| | OCP | OPEN CARPORT | 3 | 0 | 1962 | 332.0 |
| | UTY | STORAGE/UTILITY | 3 | 0 | 1962 | 28.0 |
| | OWP | OPEN WOOD PORCH W/STEPS | 3 | 0 | 1962 | 63.0 |
| | OWR | OPEN WOOD PORCH W/STEPS/ROOF | 3 | 0 | 1962 | 240.0 |
Sketch
Property Image
Land
| 1 | 14 | SQ (08001-12000) | 0.0000 | 0.00 | 0.00 | 0.00 | 1.00 | $390,000 | $0 |
Roll Value History
| 2026 | N/A | N/A | N/A | N/A | N/A |
| 2025 | $242,794 | $390,000 | $0 | $632,794 | $632,794 |
| 2024 | $251,611 | $360,000 | $0 | $611,611 | $611,611 |
| 2023 | $255,000 | $330,000 | $0 | $585,000 | $585,000 |
| 2022 | $233,977 | $300,000 | $0 | $533,977 | $533,977 |
| 2021 | $184,794 | $200,000 | $0 | $384,794 | $384,794 |
| 2020 | $180,917 | $180,000 | $0 | $360,917 | $360,917 |
| 2019 | $139,020 | $230,000 | $0 | $369,020 | $369,020 |
| 2018 | $139,507 | $200,000 | $0 | $339,507 | $339,507 |
| 2017 | $140,482 | $200,000 | $0 | $340,482 | $340,482 |
| 2016 | $142,434 | $110,000 | $0 | $252,434 | $252,434 |
| 2015 | $137,216 | $80,000 | $0 | $217,216 | $217,216 |
| 2014 | $139,120 | $80,000 | $0 | $219,120 | $219,120 |
| 2013 | $141,023 | $80,000 | $0 | $221,023 | $221,023 |
| 2012 | $142,927 | $86,304 | $0 | $229,231 | $229,231 |
| 2011 | $144,833 | $107,880 | $0 | $252,713 | $252,713 |
| 2010 | $156,278 | $107,880 | $0 | $264,158 | $264,158 |
| 2009 | $132,670 | $90,000 | $0 | $222,670 | $222,670 |
| 2008 | $134,593 | $118,000 | $0 | $252,593 | $252,593 |
| 2007 | $136,516 | $118,000 | $0 | $254,516 | $254,516 |
Deed and Sales History
| 1 | 06/28/2021 | WD | Warranty Deed | POTTER, ALAN | CLISE, RICHARD H | | | $630,000.00 | 48899 | 4523022 |
| 2 | 09/17/2008 | WD | Warranty Deed | MILLER, J MICHAEL | POTTER, ALAN | | | $367,000.00 | 82549 | 4237493 |
| 3 | 09/16/1998 | WD | Warranty Deed | KRIEGER, RICHARD G | MILLER, J MICHAEL | | | $150,000.00 | 83701 | 98019340 |
| 4 | 08/01/1993 | WD | Warranty Deed | BROWN, W J | KRIEGER, RICHARD G | | | $137,500.00 | 33393 | 93017574 |
| 5 | 01/01/1900 | OTHER | Other - Misc. Documents | Unknown | BROWN, W J | | | $0.00 | 0 | 0 |
Payout Agreement
| No payout information available.. |