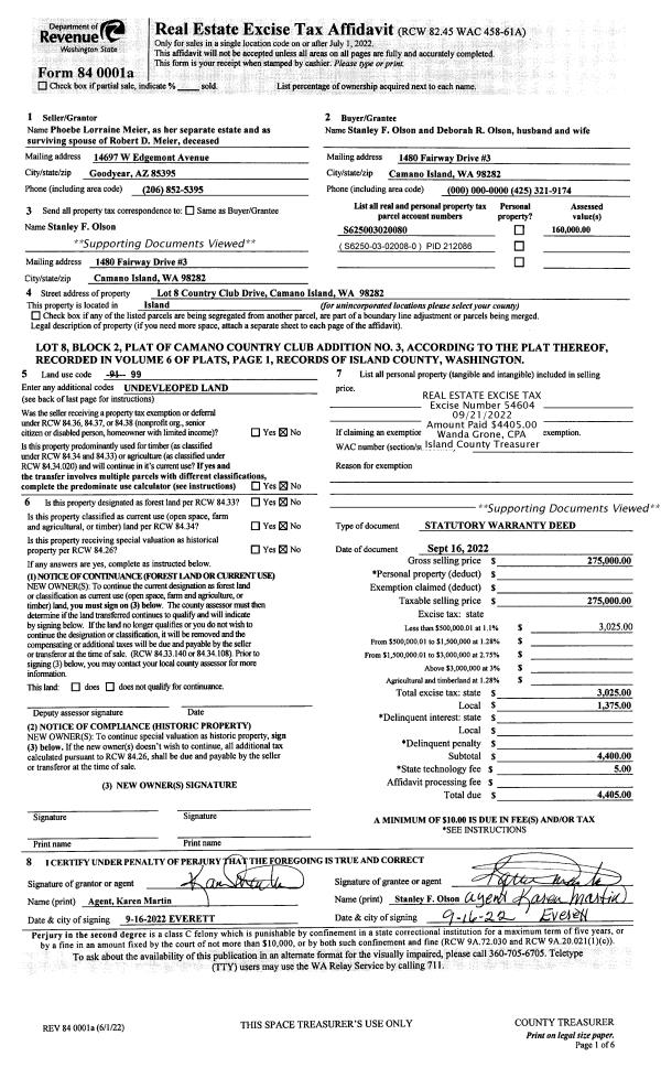
Property
Account |
| Property ID: | 212086 | Abbreviated Legal Description: | CCC 3 LOT 8 BLK 2 |
| Geographic ID: | S6250-03-02008-0 | Agent Code: | |
| Type: | Real | | |
| Tax Area: | 519 - APPRAISER-Stan/Cam Schl Dist, vacant & 50 acres or less | Land Use Code | 99 |
| Open Space: | N | DFL | N |
| Historic Property: | N | Remodel Property: | N |
| Multi-Family Redevelopment: | N | | |
| Township: | | Section: | |
| Range: | |
Location |
| Address: | 1375 COUNTRY CLUB DR CAMANO ISLAND, WA 98282 | Mapsco: | |
| Neighborhood: | Cycle 5 | Map ID: | 932 |
| Neighborhood CD: | 5 |
Owner |
| Name: | OLSON, STANLEY F | Owner ID: | 306088 |
| Mailing Address: | DEBORAH R OLSON 1480 FAIRWAY DR #3 CAMANO ISLAND, WA 98282 | % Ownership: | 100.0000000000% |
| | | Exemptions: | |
Taxes and Assessment Details
Values
| (+) Improvement Homesite Value: | + | $0 | |
| (+) Improvement Non-Homesite Value: | + | $0 | |
| (+) Land Homesite Value: | + | $0 | |
| (+) Land Non-Homesite Value: | + | $170,000 | |
| (+) Curr Use (HS): | + | $0 | $0 |
| (+) Curr Use (NHS): | + | $0 | $0 |
| | | -------------------------- | |
| (=) Market Value: | = | $170,000 | |
| (–) Productivity Loss: | – | $0 | |
| | | -------------------------- | |
| (=) Subtotal: | = | $170,000 | |
| (+) Senior Appraised Value: | + | $0 | |
| (+) Non-Senior Appraised Value: | + | $170,000 | |
| | | -------------------------- | |
| (=) Total Appraised Value: | = | $170,000 | |
| (–) Senior Exemption Loss: | – | $0 | |
| (–) Exemption Loss: | – | $0 | |
| | | -------------------------- | |
| (=) Taxable Value: | = | $170,000 | |
Taxing Jurisdiction
| Owner: | OLSON, STANLEY F | | |
| % Ownership: | 100.0000000000% | | |
| Total Value: | $170,000 | | |
| Tax Area: | 519 - APPRAISER-Stan/Cam Schl Dist, vacant & 50 acres or less |
| CF | Conservation Futures | 0.0313996660 | $170,000 | $170,000 | $5.34 | | |
| EMS1 | Fire & Rescue Dist #1 Camano GEN (EMS) | 0.4998471806 | $170,000 | $170,000 | $84.97 | | |
| CE | County Current Expense | 0.3674210519 | $170,000 | $170,000 | $62.46 | | |
| CR | County Roads | 0.4614296361 | $170,000 | $170,000 | $78.44 | | |
| LIB | Library Sno-Isle GEN | 0.3039084203 | $170,000 | $170,000 | $51.66 | | |
| SCH205_401 | School 205-401 Enrichment | 1.3697998934 | $170,000 | $170,000 | $232.87 | | |
| SCH205BOND | School 205-401 BOND | 0.9354199323 | $170,000 | $170,000 | $159.02 | | |
| ST | State School | 1.4761226122 | $170,000 | $170,000 | $250.94 | | |
| ST2 | State School Part 2 | 0.7953803475 | $170,000 | $170,000 | $135.21 | | |
| | Total Tax Rate: | 6.2407287403 | | | | | |
| | | | | Taxes w/Current Exemptions: | $1,060.91 | | |
| | | | | Taxes w/o Exemptions: | $1,060.91 | | |
Improvement / Building
Sketch
| No sketches available for this property. |
Property Image
Land
| 1 | MB | MEDIUM BANK | 0.0000 | 0.00 | 75.00 | 0.00 | 1.00 | $170,000 | $0 |
Roll Value History
| 2026 | N/A | N/A | N/A | N/A | N/A |
| 2025 | $0 | $170,000 | $0 | $170,000 | $170,000 |
| 2024 | $0 | $170,000 | $0 | $170,000 | $170,000 |
| 2023 | $0 | $170,000 | $0 | $170,000 | $170,000 |
| 2022 | $0 | $160,000 | $0 | $160,000 | $160,000 |
| 2021 | $0 | $155,000 | $0 | $155,000 | $155,000 |
| 2020 | $0 | $155,000 | $0 | $155,000 | $155,000 |
| 2019 | $0 | $155,000 | $0 | $155,000 | $155,000 |
| 2018 | $0 | $155,000 | $0 | $155,000 | $155,000 |
| 2017 | $0 | $155,000 | $0 | $155,000 | $155,000 |
| 2016 | $0 | $155,000 | $0 | $155,000 | $155,000 |
| 2015 | $0 | $150,000 | $0 | $150,000 | $150,000 |
| 2014 | $0 | $150,000 | $0 | $150,000 | $150,000 |
| 2013 | $0 | $185,384 | $0 | $185,384 | $185,384 |
| 2012 | $0 | $185,384 | $0 | $185,384 | $185,384 |
| 2011 | $0 | $205,982 | $0 | $205,982 | $205,982 |
| 2010 | $0 | $205,982 | $0 | $205,982 | $205,982 |
| 2009 | $0 | $187,256 | $0 | $187,256 | $187,256 |
| 2008 | $0 | $224,708 | $0 | $224,708 | $224,708 |
| 2007 | $0 | $131,080 | $0 | $131,080 | $131,080 |
Deed and Sales History
| 1 | 09/16/2022 | WD | Warranty Deed | MEIER, ROBERT D | OLSON, STANLEY F | | | $275,000.00 | 54604 | 4551480 |
| 2 | 12/01/1978 | OTHER | Other - Misc. Documents | Unknown | MEIER, ROBERT D | | | $0.00 | 90066 | 347409 |
Payout Agreement
| No payout information available.. |