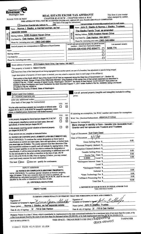
Property
Account |
| Property ID: | 212111 | Abbreviated Legal Description: | CCC 4 LOT 1 BLK 3 |
| Geographic ID: | S6250-04-03001-0 | Agent Code: | |
| Type: | Real | | |
| Tax Area: | 510 - APPRAISER-Stan/Cam Schl Dist, improved & 1 acre or less | Land Use Code | 11 |
| Open Space: | N | DFL | N |
| Historic Property: | N | Remodel Property: | N |
| Multi-Family Redevelopment: | N | | |
| Township: | | Section: | |
| Range: | |
Location |
| Address: | 1588 COUNTRY CLUB DR CAMANO ISLAND, WA 98282 | Mapsco: | |
| Neighborhood: | Cycle 5 | Map ID: | 930 |
| Neighborhood CD: | 5 |
Owner |
| Name: | GRAGG, WILLIAM A | Owner ID: | 288164 |
| Mailing Address: | HOLLY M GRAGG 1588 COUNTRY CLUB DR CAMANO ISLAND, WA 98282 | % Ownership: | 100.0000000000% |
| | | Exemptions: | |
Taxes and Assessment Details
Values
| (+) Improvement Homesite Value: | + | $0 | |
| (+) Improvement Non-Homesite Value: | + | $328,788 | |
| (+) Land Homesite Value: | + | $0 | |
| (+) Land Non-Homesite Value: | + | $310,000 | |
| (+) Curr Use (HS): | + | $0 | $0 |
| (+) Curr Use (NHS): | + | $0 | $0 |
| | | -------------------------- | |
| (=) Market Value: | = | $638,788 | |
| (–) Productivity Loss: | – | $0 | |
| | | -------------------------- | |
| (=) Subtotal: | = | $638,788 | |
| (+) Senior Appraised Value: | + | $0 | |
| (+) Non-Senior Appraised Value: | + | $638,788 | |
| | | -------------------------- | |
| (=) Total Appraised Value: | = | $638,788 | |
| (–) Senior Exemption Loss: | – | $0 | |
| (–) Exemption Loss: | – | $0 | |
| | | -------------------------- | |
| (=) Taxable Value: | = | $638,788 | |
Taxing Jurisdiction
| Owner: | GRAGG, WILLIAM A | | |
| % Ownership: | 100.0000000000% | | |
| Total Value: | $638,788 | | |
| Tax Area: | 510 - APPRAISER-Stan/Cam Schl Dist, improved & 1 acre or less |
| CF | Conservation Futures | 0.0313996660 | $638,788 | $638,788 | $20.06 | | |
| EMS1 | Fire & Rescue Dist #1 Camano GEN (EMS) | 0.4998471806 | $638,788 | $638,788 | $319.30 | | |
| FIRE1 | Fire & Rescue Dist #1 Camano GEN | 1.2496603404 | $638,788 | $638,788 | $798.27 | | |
| FIRE1BOND | Fire & Rescue Dist #1 Camano BOND | 0.1630371212 | $638,788 | $638,788 | $104.15 | | |
| CE | County Current Expense | 0.3674210519 | $638,788 | $638,788 | $234.70 | | |
| CR | County Roads | 0.4614296361 | $638,788 | $638,788 | $294.76 | | |
| LIB | Library Sno-Isle GEN | 0.3039084203 | $638,788 | $638,788 | $194.13 | | |
| SCH205_401 | School 205-401 Enrichment | 1.3697998934 | $638,788 | $638,788 | $875.01 | | |
| SCH205BOND | School 205-401 BOND | 0.9354199323 | $638,788 | $638,788 | $597.54 | | |
| ST | State School | 1.4761226122 | $638,788 | $638,788 | $942.93 | | |
| ST2 | State School Part 2 | 0.7953803475 | $638,788 | $638,788 | $508.08 | | |
| | Total Tax Rate: | 7.6534262019 | | | | | |
| | | | | Taxes w/Current Exemptions: | $4,888.93 | | |
| | | | | Taxes w/o Exemptions: | $4,888.93 | | |
Improvement / Building
| Improvement #1: | RESIDENTIAL | State Code: | Y | 1251.0 sqft | Value: | $328,788 |
| Bathrooms: | 2 | Bedrooms: | 3 | | Ceiling: | DRYWALL PAINTED | Cooling: | HEAT PUMP/CONV/V | | Exterior Wall/Cover: | CEMENT FIBER | Floor Covering: | CARPET/VINYL 20-80 | | Floor Structure: | WOOD W/SUBFLOOR | Foundation: | CONCRETE | | Interior Finish: | DRYWALL PAINT | Plumbing Fixture Cnt: | 11 | | Roof Slope: | 3" IN 12" | Roof Structure/Cover: | BEAM ALUMINUM HEAVY |
|
| | Type | Description | Class CD | Sub Class CD | Year Built | Area |
| | BAS | BASE/MAIN FLOOR | 4 | 0 | 2019 | 1007.0 |
| | UPS | UPPER STORY | 4 | 0 | 2019 | 244.0 |
| | AGR | ATTACHED GARAGE | 4 | 0 | 2019 | 240.0 |
| | OWP | OPEN WOOD PORCH W/STEPS | 4 | 0 | 2019 | 270.0 |
Sketch
Property Image
Land
| 1 | 14 | SQ (08001-12000) | 0.0000 | 0.00 | 0.00 | 0.00 | 1.00 | $310,000 | $0 |
Roll Value History
| 2026 | N/A | N/A | N/A | N/A | N/A |
| 2025 | $328,788 | $310,000 | $0 | $638,788 | $638,788 |
| 2024 | $331,439 | $280,000 | $0 | $611,439 | $611,439 |
| 2023 | $334,091 | $275,000 | $0 | $609,091 | $609,091 |
| 2022 | $304,923 | $250,000 | $0 | $554,923 | $554,923 |
| 2021 | $267,933 | $180,000 | $0 | $447,933 | $447,933 |
| 2020 | $261,749 | $150,000 | $0 | $411,749 | $411,749 |
| 2019 | $187,607 | $200,000 | $0 | $387,607 | $387,607 |
| 2018 | $0 | $50,000 | $0 | $50,000 | $50,000 |
| 2017 | $0 | $50,000 | $0 | $50,000 | $50,000 |
| 2016 | $0 | $45,000 | $0 | $45,000 | $45,000 |
| 2015 | $0 | $45,000 | $0 | $45,000 | $45,000 |
| 2014 | $0 | $45,000 | $0 | $45,000 | $45,000 |
| 2013 | $0 | $46,000 | $0 | $46,000 | $46,000 |
| 2012 | $0 | $46,000 | $0 | $46,000 | $46,000 |
| 2011 | $0 | $46,000 | $0 | $46,000 | $46,000 |
| 2010 | $0 | $46,000 | $0 | $46,000 | $46,000 |
| 2009 | $0 | $70,000 | $0 | $70,000 | $70,000 |
| 2008 | $0 | $120,000 | $0 | $120,000 | $120,000 |
| 2007 | $0 | $85,000 | $0 | $85,000 | $85,000 |
Deed and Sales History
| 1 | 11/27/2018 | WD | Warranty Deed | BOOTS GENERAL CONTRACTING, INC | GRAGG, WILLIAM A | | | $379,000.00 | 36915 | 4456181 |
| 2 | 03/05/2018 | WD | Warranty Deed | SUNDSTROM, ARNOLD J | BOOTS GENERAL CONTRACTING, INC | | | $60,000.00 | 33207 | 4440409 |
| 3 | 12/19/2014 | SPWARDEED | Special Warranty Deed | SUNDSTROM, EDWIN A | SUNDSTROM, ARNOLD J | | | $37,500.00 | 17993 | 4370607 |
| 4 | 11/01/1987 | QCD | Quit Claim Deed | SUNDSTROM, EDWIN A | SUNDSTROM, EDWIN A | | | $0.00 | 73586 | 87015648 |
| 5 | 09/01/1986 | WD | Warranty Deed | LEITCH, ROBERT S | SUNDSTROM, EDWIN A | | | $5,000.00 | 62546 | 86011530 |
| 6 | 04/01/1981 | CD | DNU - Correction Deed | LEITCH, ROBERT S | LEITCH, ROBERT S | | | $0.00 | 21371 | 397181 |
| 7 | 01/01/1900 | OTHER | Other - Misc. Documents | Unknown | LEITCH, ROBERT S | | | $0.00 | 0 | 0 |
Payout Agreement
| No payout information available.. |