Property
Account |
| Property ID: | 21274 | Abbreviated Legal Description: | 39 HASTIE DC - W391' OF SD DLC BG 814.2' S OF NW CR SD DLC E1160' S406.72' W1160' N406.72' TPB TGW ALL PROP LY BETW SLN ABOVE DESC TR & NLN CO RD |
| Geographic ID: | R13217-426-1130 | Agent Code: | |
| Type: | Real | | |
| Tax Area: | 112 - APPRAISER-OH Schl Dist, outside OH, improved, greater than 1 acre | Land Use Code | 11 |
| Open Space: | N | DFL | N |
| Historic Property: | N | Remodel Property: | N |
| Multi-Family Redevelopment: | N | | |
| Township: | 32 | Section: | 17 |
| Range: | R1 |
Location |
| Address: | 1920 HASTIE LAKE RD OAK HARBOR, WA 98277 | Mapsco: | |
| Neighborhood: | Cycle 1 | Map ID: | 134 |
| Neighborhood CD: | 1 |
Owner |
| Name: | LAIBLIN, ERIN M | Owner ID: | 305284 |
| Mailing Address: | JEFFREY G. LAIBLIN 1920 HASTIE LAKE RD OAK HARBOR, WA 98277 | % Ownership: | 100.0000000000% |
| | | Exemptions: | |
Taxes and Assessment Details
Values
| (+) Improvement Homesite Value: | + | $0 | |
| (+) Improvement Non-Homesite Value: | + | $516,893 | |
| (+) Land Homesite Value: | + | $0 | |
| (+) Land Non-Homesite Value: | + | $290,000 | |
| (+) Curr Use (HS): | + | $0 | $0 |
| (+) Curr Use (NHS): | + | $0 | $0 |
| | | -------------------------- | |
| (=) Market Value: | = | $806,893 | |
| (–) Productivity Loss: | – | $0 | |
| | | -------------------------- | |
| (=) Subtotal: | = | $806,893 | |
| (+) Senior Appraised Value: | + | $0 | |
| (+) Non-Senior Appraised Value: | + | $806,893 | |
| | | -------------------------- | |
| (=) Total Appraised Value: | = | $806,893 | |
| (–) Senior Exemption Loss: | – | $0 | |
| (–) Exemption Loss: | – | $0 | |
| | | -------------------------- | |
| (=) Taxable Value: | = | $806,893 | |
Taxing Jurisdiction
| Owner: | LAIBLIN, ERIN M | | |
| % Ownership: | 100.0000000000% | | |
| Total Value: | $806,893 | | |
| Tax Area: | 112 - APPRAISER-OH Schl Dist, outside OH, improved, greater than 1 acre |
| CF | Conservation Futures | 0.0313996660 | $806,893 | $806,893 | $25.34 | | |
| CEM1 | Cemetery #1 | 0.0040018856 | $806,893 | $806,893 | $3.23 | | |
| FIRE2 | Fire & Rescue Dist #2 N Whidbey GEN | 0.5381486274 | $806,893 | $806,893 | $434.23 | | |
| HOBOND | Hospital BOND | 0.1893405597 | $806,893 | $806,893 | $152.78 | | |
| HOGEN | Hospital GEN | 0.3848777722 | $806,893 | $806,893 | $310.56 | | |
| CE | County Current Expense | 0.3674210519 | $806,893 | $806,893 | $296.47 | | |
| CR | County Roads | 0.4614296361 | $806,893 | $806,893 | $372.32 | | |
| ISLANDEMS | Hospital GEN (EMS) | 0.4952018576 | $806,893 | $806,893 | $399.57 | | |
| LIB | Library Sno-Isle GEN | 0.3039084203 | $806,893 | $806,893 | $245.22 | | |
| NWHIDPRMT | P & R N Whidbey GEN | 0.1990272349 | $806,893 | $806,893 | $160.59 | | |
| SCH201MO | School 201 Enrichment | 2.3851112745 | $806,893 | $806,893 | $1,924.53 | | |
| ST | State School | 1.4761226122 | $806,893 | $806,893 | $1,191.07 | | |
| ST2 | State School Part 2 | 0.7953803475 | $806,893 | $806,893 | $641.79 | | |
| | Total Tax Rate: | 7.6313709459 | | | | | |
| | | | | Taxes w/Current Exemptions: | $6,157.70 | | |
| | | | | Taxes w/o Exemptions: | $6,157.70 | | |
Improvement / Building
| Improvement #1: | RESIDENTIAL | State Code: | Y | 2240.0 sqft | Value: | $516,893 |
| Bathrooms: | 1.75 | Bedrooms: | 3 | | Ceiling: | DRYWALL PAINTED | Exterior Wall/Cover: | CEMENT FIBER | | Floor Covering: | HARDWOOD/CARP 60-40 | Floor Structure: | WOOD W/SUBFLOOR | | Foundation: | CONCRETE | Heating: | FHA GAS | | Interior Finish: | DRYWALL PAINT | Plumbing Fixture Cnt: | 10 | | Roof Slope: | 6" IN 12" | Roof Structure/Cover: | CJ ASPHALT |
|
| | Type | Description | Class CD | Sub Class CD | Year Built | Area |
| | BAS | BASE/MAIN FLOOR | 4 | 0 | 1999 | 2240.0 |
| | ATU | ATTIC UNFINISHED | 4 | 0 | 1999 | 640.0 |
| | AGR | ATTACHED GARAGE | 4 | 0 | 1999 | 634.5 |
| | OWC | OPEN WOOD PORCH W/STEPS/ROOF/C | 4 | 0 | 1999 | 146.5 |
| | DGR | DETACHED GARAGE | 4 | 0 | 1999 | 224.0 |
| | DGR | DETACHED GARAGE | 4 | 0 | 1999 | 1200.0 |
Sketch
Property Image
Land
| 1 | 32 | AC (03.01-09.99) | 3.6600 | 0.00 | 0.00 | 0.00 | 1.00 | $290,000 | $0 |
Roll Value History
| 2026 | N/A | N/A | N/A | N/A | N/A |
| 2025 | $516,893 | $290,000 | $0 | $806,893 | $806,893 |
| 2024 | $523,253 | $260,000 | $0 | $783,253 | $783,253 |
| 2023 | $529,615 | $250,000 | $0 | $779,615 | $779,615 |
| 2022 | $413,427 | $220,000 | $0 | $633,427 | $633,427 |
| 2021 | $363,888 | $190,000 | $0 | $553,888 | $553,888 |
| 2020 | $355,318 | $140,000 | $0 | $495,318 | $495,318 |
| 2019 | $274,937 | $200,000 | $0 | $474,937 | $474,937 |
| 2018 | $275,744 | $170,000 | $0 | $445,744 | $445,744 |
| 2017 | $274,236 | $160,000 | $0 | $434,236 | $434,236 |
| 2016 | $276,957 | $160,000 | $0 | $436,957 | $436,957 |
| 2015 | $279,679 | $120,000 | $0 | $399,679 | $399,679 |
| 2014 | $282,400 | $120,000 | $0 | $402,400 | $402,400 |
| 2013 | $285,121 | $88,938 | $0 | $374,059 | $374,059 |
| 2012 | $287,843 | $88,938 | $0 | $376,781 | $376,781 |
| 2011 | $319,138 | $98,820 | $0 | $417,958 | $417,958 |
| 2010 | $316,333 | $98,820 | $0 | $415,153 | $415,153 |
| 2009 | $295,437 | $117,120 | $0 | $412,557 | $412,557 |
| 2008 | $305,185 | $140,193 | $0 | $445,378 | $445,378 |
| 2007 | $305,892 | $140,193 | $0 | $446,085 | $446,085 |
Deed and Sales History
| 1 | 08/03/2022 | WD | Warranty Deed | OLIVER, CYNTHIA MERRILL | LAIBLIN, ERIN M | | | $758,000.00 | 54026 | 4549147 |
| 2 | 11/29/2021 | QCD | Quit Claim Deed | OLIVER, CYNTHIA | OLIVER, CYNTHIA MERRILL | | | $0.00 | 51343 | 4536055 |
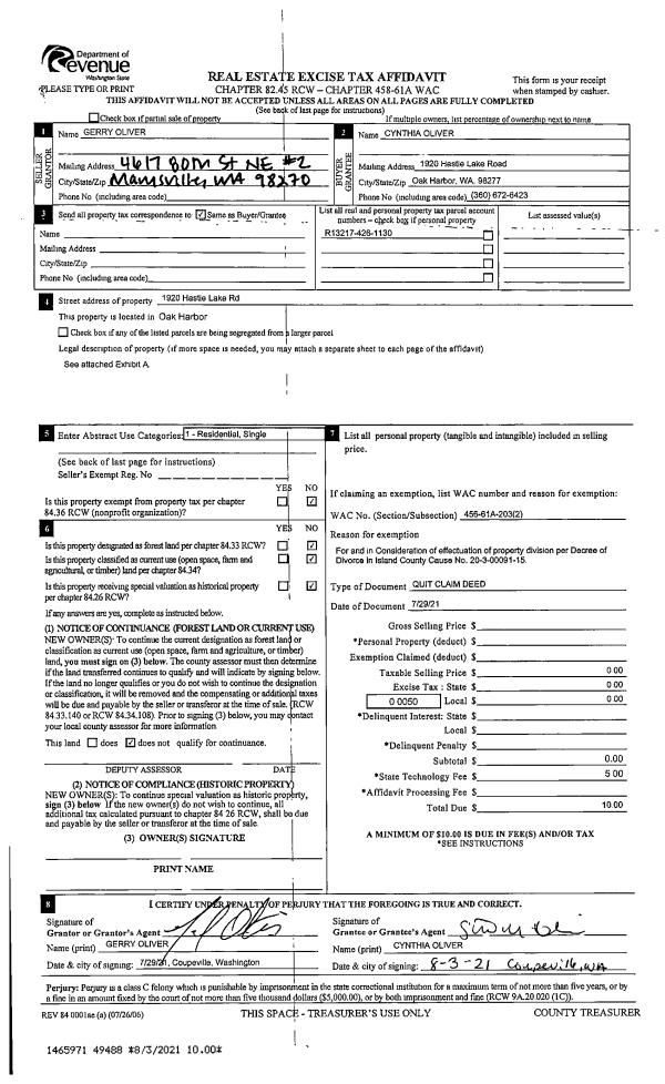
| 3 | 07/29/2021 | QCD | Quit Claim Deed | OLIVER, GERRY | OLIVER, CYNTHIA | | | $0.00 | 49488 | 2526081 |
| 4 | 06/05/2019 | WD | Warranty Deed | FROMME, SCOTT W | OLIVER, GERRY | | | $440,000.00 | 39331 | 4466823 |
| 5 | 09/23/2004 | WD | Warranty Deed | REUBLE, SANDRA P | FROMME, SCOTT W | | | $339,500.00 | 44454 | 4113526 |
| 6 | 05/07/2003 | ESTSEPPROP | Establish Separate Property | LUPTON, SANDRA P | REUBLE, SANDRA P | | | $0.00 | 31993 | 4058719 |
| 7 | 08/20/1999 | WD | Warranty Deed | SELLGREN & CARYL, | LUPTON, SANDRA P | | | $219,000.00 | 93542 | 99020256 |
| 8 | 07/29/1998 | WD | Warranty Deed | CLOUD, DAVID W | SELLGREN & CARYL, | | | $50,000.00 | 83080 | 98016083 |
| 9 | 01/01/1997 | WD | Warranty Deed | MORGAN, HUBERT L | CLOUD, DAVID W | | | $55,000.00 | 70348 | 97001469 |
| 10 | 03/01/1979 | REC | Real Estate Contract | SELLGREN, & C | MORGAN, HUBERT L | | | $12,505.00 | 91044 | 348718 |
| 11 | 01/01/1900 | OTHER | Other - Misc. Documents | Unknown | SELLGREN, & C | | | $0.00 | 83080 | 98016083 |
Payout Agreement
| No payout information available.. |