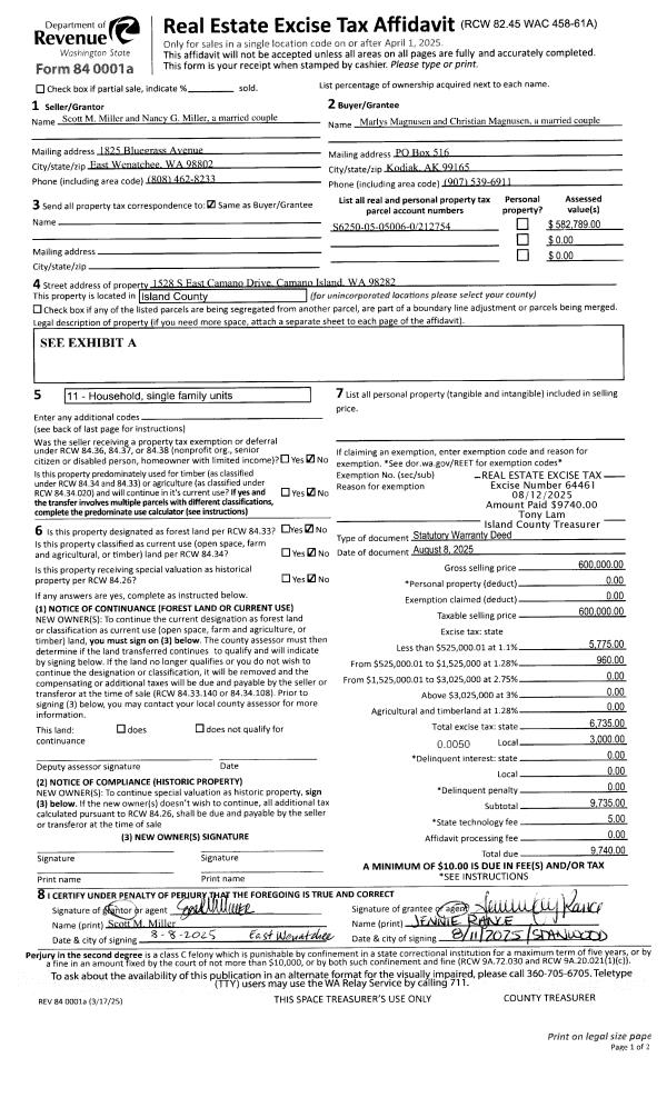
Property
Account |
| Property ID: | 212754 | Abbreviated Legal Description: | CCC 5 LOT 6 BLK 5 |
| Geographic ID: | S6250-05-05006-0 | Agent Code: | |
| Type: | Real | | |
| Tax Area: | 510 - APPRAISER-Stan/Cam Schl Dist, improved & 1 acre or less | Land Use Code | 11 |
| Open Space: | N | DFL | N |
| Historic Property: | N | Remodel Property: | N |
| Multi-Family Redevelopment: | N | | |
| Township: | | Section: | |
| Range: | |
Location |
| Address: | 1528 S EAST CAMANO DR CAMANO ISLAND, WA 98282 | Mapsco: | |
| Neighborhood: | Cycle 5 | Map ID: | 930 |
| Neighborhood CD: | 5 |
Owner |
| Name: | MILLER, SCOTT M | Owner ID: | 281759 |
| Mailing Address: | NANCY G MILLER 1825 BLUEGRASS AVENUE SE EAST WENATCHEE, WA 98802 | % Ownership: | 100.0000000000% |
| | | Exemptions: | |
Taxes and Assessment Details
Values
| (+) Improvement Homesite Value: | + | $0 | |
| (+) Improvement Non-Homesite Value: | + | $332,789 | |
| (+) Land Homesite Value: | + | $0 | |
| (+) Land Non-Homesite Value: | + | $250,000 | |
| (+) Curr Use (HS): | + | $0 | $0 |
| (+) Curr Use (NHS): | + | $0 | $0 |
| | | -------------------------- | |
| (=) Market Value: | = | $582,789 | |
| (–) Productivity Loss: | – | $0 | |
| | | -------------------------- | |
| (=) Subtotal: | = | $582,789 | |
| (+) Senior Appraised Value: | + | $0 | |
| (+) Non-Senior Appraised Value: | + | $582,789 | |
| | | -------------------------- | |
| (=) Total Appraised Value: | = | $582,789 | |
| (–) Senior Exemption Loss: | – | $0 | |
| (–) Exemption Loss: | – | $0 | |
| | | -------------------------- | |
| (=) Taxable Value: | = | $582,789 | |
Taxing Jurisdiction
| Owner: | MILLER, SCOTT M | | |
| % Ownership: | 100.0000000000% | | |
| Total Value: | $582,789 | | |
| Tax Area: | 510 - APPRAISER-Stan/Cam Schl Dist, improved & 1 acre or less |
| CF | Conservation Futures | 0.0313996660 | $582,789 | $582,789 | $18.30 | | |
| EMS1 | Fire & Rescue Dist #1 Camano GEN (EMS) | 0.4998471806 | $582,789 | $582,789 | $291.31 | | |
| FIRE1 | Fire & Rescue Dist #1 Camano GEN | 1.2496603404 | $582,789 | $582,789 | $728.29 | | |
| FIRE1BOND | Fire & Rescue Dist #1 Camano BOND | 0.1630371212 | $582,789 | $582,789 | $95.02 | | |
| CE | County Current Expense | 0.3674210519 | $582,789 | $582,789 | $214.13 | | |
| CR | County Roads | 0.4614296361 | $582,789 | $582,789 | $268.92 | | |
| LIB | Library Sno-Isle GEN | 0.3039084203 | $582,789 | $582,789 | $177.11 | | |
| SCH205_401 | School 205-401 Enrichment | 1.3697998934 | $582,789 | $582,789 | $798.30 | | |
| SCH205BOND | School 205-401 BOND | 0.9354199323 | $582,789 | $582,789 | $545.15 | | |
| ST | State School | 1.4761226122 | $582,789 | $582,789 | $860.27 | | |
| ST2 | State School Part 2 | 0.7953803475 | $582,789 | $582,789 | $463.54 | | |
| | Total Tax Rate: | 7.6534262019 | | | | | |
| | | | | Taxes w/Current Exemptions: | $4,460.34 | | |
| | | | | Taxes w/o Exemptions: | $4,460.34 | | |
Improvement / Building
| Improvement #1: | RESIDENTIAL | State Code: | Y | 1413.0 sqft | Value: | $332,789 |
| Bathrooms: | 1.75 | Bedrooms: | 2 | | Ceiling: | DRYWALL PAINTED | Exterior Wall/Cover: | CEMENT FIBER | | Floor Covering: | CARPET/VINYL 60-40 | Floor Structure: | WOOD W/SUBFLOOR | | Foundation: | CONCRETE | Heating: | FHA GAS | | Interior Finish: | DRYWALL PAINT | Plumbing Fixture Cnt: | 9 | | Roof Slope: | 6" IN 12" | Roof Structure/Cover: | CJ ASPHALT |
|
| | Type | Description | Class CD | Sub Class CD | Year Built | Area |
| | BAS | BASE/MAIN FLOOR | 4 | 0 | 2017 | 1413.0 |
| | AGR | ATTACHED GARAGE | 4 | 0 | 2017 | 506.0 |
| | OP4 | OPEN PORCH W/CEILING-ROOF | 4 | 0 | 2017 | 88.0 |
Sketch
Property Image
Land
| 1 | 14 | SQ (08001-12000) | 0.0000 | 0.00 | 0.00 | 0.00 | 1.00 | $250,000 | $0 |
Roll Value History
| 2026 | N/A | N/A | N/A | N/A | N/A |
| 2025 | $332,789 | $250,000 | $0 | $582,789 | $582,789 |
| 2024 | $335,517 | $250,000 | $0 | $585,517 | $585,517 |
| 2023 | $338,246 | $210,000 | $0 | $548,246 | $548,246 |
| 2022 | $308,756 | $200,000 | $0 | $508,756 | $508,756 |
| 2021 | $270,640 | $140,000 | $0 | $410,640 | $410,640 |
| 2020 | $262,347 | $120,000 | $0 | $382,347 | $382,347 |
| 2019 | $194,571 | $170,000 | $0 | $364,571 | $364,571 |
| 2018 | $195,066 | $140,000 | $0 | $335,066 | $335,066 |
| 2017 | $198,037 | $50,000 | $0 | $248,037 | $248,037 |
| 2016 | $0 | $45,000 | $0 | $45,000 | $45,000 |
| 2015 | $0 | $45,000 | $0 | $45,000 | $45,000 |
| 2014 | $0 | $45,000 | $0 | $45,000 | $45,000 |
| 2013 | $0 | $46,000 | $0 | $46,000 | $46,000 |
| 2012 | $0 | $46,000 | $0 | $46,000 | $46,000 |
| 2011 | $0 | $46,000 | $0 | $46,000 | $46,000 |
| 2010 | $0 | $46,000 | $0 | $46,000 | $46,000 |
| 2009 | $0 | $48,960 | $0 | $48,960 | $48,960 |
| 2008 | $0 | $85,000 | $0 | $85,000 | $85,000 |
| 2007 | $0 | $75,000 | $0 | $75,000 | $75,000 |
Deed and Sales History
| 1 | 08/08/2025 | WD | Warranty Deed | MILLER, SCOTT M | MAGNUSEN, MARLYS | | | $600,000.00 | 64461 | 4589503 |
| 2 | 08/24/2017 | WD | Warranty Deed | N.W. BUILDERS, INC. | MILLER, SCOTT M | | | $369,000.00 | 30935 | 4429443 |
| 3 | 09/14/2016 | WD | Warranty Deed | CHAMBERS, THELMA JEAN | N.W. BUILDERS, INC. | | | $40,000.00 | 26148 | 4407450 |
| 4 | 04/24/2006 | QCD | Quit Claim Deed | CHAMBERS, THELMA J | CHAMBERS, THELMA JEAN | | | $0.00 | 61953 | 4169422 |
| 5 | 12/01/1992 | QCD | Quit Claim Deed | CHAMBERS, JOSEPH & | CHAMBERS, THELMA J | | | $0.00 | 24924 | 92024227 |
| 6 | 03/01/1979 | OTHER | Other - Misc. Documents | Unknown | CHAMBERS, JOSEPH & | | | $0.00 | 91310 | 349636 |
Payout Agreement
| No payout information available.. |