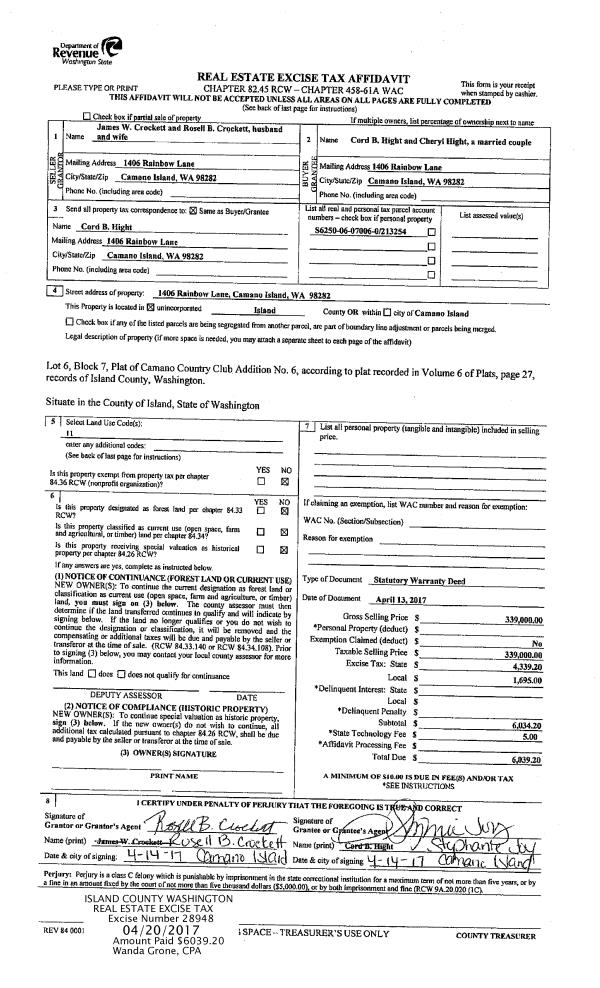
Property
Account |
| Property ID: | 213254 | Abbreviated Legal Description: | CCC 6 LOT 6 BLK 7 |
| Geographic ID: | S6250-06-07006-0 | Agent Code: | |
| Type: | Real | | |
| Tax Area: | 510 - APPRAISER-Stan/Cam Schl Dist, improved & 1 acre or less | Land Use Code | 11 |
| Open Space: | N | DFL | N |
| Historic Property: | N | Remodel Property: | N |
| Multi-Family Redevelopment: | N | | |
| Township: | | Section: | |
| Range: | |
Location |
| Address: | 1406 RAINBOW LN CAMANO ISLAND, WA 98282 | Mapsco: | |
| Neighborhood: | Cycle 5 | Map ID: | 930 |
| Neighborhood CD: | 5 |
Owner |
| Name: | HIGHT, CORD B | Owner ID: | 279528 |
| Mailing Address: | CHERYL HIGHT 1406 RAINBOW LN CAMANO ISLAND, WA 98282 | % Ownership: | 100.0000000000% |
| | | Exemptions: | |
Taxes and Assessment Details
Values
| (+) Improvement Homesite Value: | + | $0 | |
| (+) Improvement Non-Homesite Value: | + | $218,985 | |
| (+) Land Homesite Value: | + | $0 | |
| (+) Land Non-Homesite Value: | + | $390,000 | |
| (+) Curr Use (HS): | + | $0 | $0 |
| (+) Curr Use (NHS): | + | $0 | $0 |
| | | -------------------------- | |
| (=) Market Value: | = | $608,985 | |
| (–) Productivity Loss: | – | $0 | |
| | | -------------------------- | |
| (=) Subtotal: | = | $608,985 | |
| (+) Senior Appraised Value: | + | $0 | |
| (+) Non-Senior Appraised Value: | + | $608,985 | |
| | | -------------------------- | |
| (=) Total Appraised Value: | = | $608,985 | |
| (–) Senior Exemption Loss: | – | $0 | |
| (–) Exemption Loss: | – | $0 | |
| | | -------------------------- | |
| (=) Taxable Value: | = | $608,985 | |
Taxing Jurisdiction
| Owner: | HIGHT, CORD B | | |
| % Ownership: | 100.0000000000% | | |
| Total Value: | $608,985 | | |
| Tax Area: | 510 - APPRAISER-Stan/Cam Schl Dist, improved & 1 acre or less |
| CF | Conservation Futures | 0.0313996660 | $608,985 | $608,985 | $19.12 | | |
| EMS1 | Fire & Rescue Dist #1 Camano GEN (EMS) | 0.4998471806 | $608,985 | $608,985 | $304.40 | | |
| FIRE1 | Fire & Rescue Dist #1 Camano GEN | 1.2496603404 | $608,985 | $608,985 | $761.02 | | |
| FIRE1BOND | Fire & Rescue Dist #1 Camano BOND | 0.1630371212 | $608,985 | $608,985 | $99.29 | | |
| CE | County Current Expense | 0.3674210519 | $608,985 | $608,985 | $223.75 | | |
| CR | County Roads | 0.4614296361 | $608,985 | $608,985 | $281.00 | | |
| LIB | Library Sno-Isle GEN | 0.3039084203 | $608,985 | $608,985 | $185.08 | | |
| SCH205_401 | School 205-401 Enrichment | 1.3697998934 | $608,985 | $608,985 | $834.19 | | |
| SCH205BOND | School 205-401 BOND | 0.9354199323 | $608,985 | $608,985 | $569.66 | | |
| ST | State School | 1.4761226122 | $608,985 | $608,985 | $898.94 | | |
| ST2 | State School Part 2 | 0.7953803475 | $608,985 | $608,985 | $484.37 | | |
| | Total Tax Rate: | 7.6534262019 | | | | | |
| | | | | Taxes w/Current Exemptions: | $4,660.82 | | |
| | | | | Taxes w/o Exemptions: | $4,660.82 | | |
Improvement / Building
| Improvement #1: | RESIDENTIAL | State Code: | Y | 1326.0 sqft | Value: | $218,985 |
| Bathrooms: | 2 | Bedrooms: | 2 | | Ceiling: | DRYWALL PAINTED | Cooling: | HEAT PUMP/CONV/V | | Exterior Wall/Cover: | (NONE) | Floor Covering: | CARPET/VINYL 80-20 | | Floor Structure: | WOOD W/SUBFLOOR | Foundation: | CONCRETE | | Interior Finish: | DRYWALL PAINT | Plumbing Fixture Cnt: | 9 | | Roof Slope: | 6" IN 12" | Roof Structure/Cover: | CJ ASPHALT |
|
| | Type | Description | Class CD | Sub Class CD | Year Built | Area |
| | BAS | BASE/MAIN FLOOR | 3 | 0 | 1994 | 1326.0 |
| | BGR | BASEMENT GARAGE | 3 | 0 | 1994 | 782.0 |
| | OWP | OPEN WOOD PORCH W/STEPS | 3 | 0 | 1994 | 272.0 |
| | OWP | OPEN WOOD PORCH W/STEPS | 3 | 0 | 1994 | 48.0 |
Sketch
Property Image
Land
| 1 | 14 | SQ (08001-12000) | 0.0000 | 0.00 | 0.00 | 0.00 | 1.00 | $390,000 | $0 |
Roll Value History
| 2026 | N/A | N/A | N/A | N/A | N/A |
| 2025 | $218,985 | $390,000 | $0 | $608,985 | $608,985 |
| 2024 | $221,681 | $360,000 | $0 | $581,681 | $581,681 |
| 2023 | $272,778 | $330,000 | $0 | $602,778 | $602,778 |
| 2022 | $249,967 | $300,000 | $0 | $549,967 | $136,453 |
| 2021 | $201,774 | $200,000 | $0 | $401,774 | $136,453 |
| 2020 | $196,384 | $180,000 | $0 | $376,384 | $136,453 |
| 2019 | $140,710 | $230,000 | $0 | $370,710 | $136,453 |
| 2018 | $141,133 | $200,000 | $0 | $341,133 | $136,453 |
| 2017 | $141,978 | $200,000 | $0 | $341,978 | $341,978 |
| 2016 | $143,668 | $110,000 | $0 | $253,668 | $253,668 |
| 2015 | $148,440 | $80,000 | $0 | $228,440 | $228,440 |
| 2014 | $150,305 | $80,000 | $0 | $230,305 | $230,305 |
| 2013 | $152,170 | $80,000 | $0 | $232,170 | $232,170 |
| 2012 | $154,036 | $86,304 | $0 | $240,340 | $240,340 |
| 2011 | $155,901 | $107,880 | $0 | $263,781 | $263,781 |
| 2010 | $165,657 | $107,880 | $0 | $273,537 | $273,537 |
| 2009 | $174,495 | $130,000 | $0 | $304,495 | $304,495 |
| 2008 | $176,720 | $146,000 | $0 | $322,720 | $322,720 |
| 2007 | $178,945 | $146,000 | $0 | $324,945 | $324,945 |
Deed and Sales History
| 1 | 04/13/2017 | WD | Warranty Deed | CROCKETT, JAMES W | HIGHT, CORD B | | | $339,000.00 | 28948 | 4421028 |
| 2 | 05/12/2009 | PRD | Personal Representatives Deed | SIEBECK, KATHLEEN M | CROCKETT, JAMES W | | | $269,000.00 | 91159 | 4252413 |
| 3 | 08/02/2001 | WD | Warranty Deed | GELINAS, HAROLD R | SIEBECK, KATHLEEN M | | | $210,000.00 | 13122 | 20040624 |
| 4 | 04/14/1999 | QCD | Quit Claim Deed | GELINAS, HAROLD R | GELINAS, HAROLD R | | | $0.00 | 91430 | 99009361 |
| 5 | 09/01/1992 | WD | Warranty Deed | GELINAS, HAROLD R | GELINAS, HAROLD R | | | $33,000.00 | 23945 | 92019179 |
| 6 | 09/01/1992 | QCD | Quit Claim Deed | RANDALL, WILLIAM J | GELINAS, HAROLD R | | | $0.00 | 23944 | 92019178 |
| 7 | 01/01/1900 | OTHER | Other - Misc. Documents | Unknown | RANDALL, WILLIAM J | | | $0.00 | 0 | 0 |
Payout Agreement
| No payout information available.. |