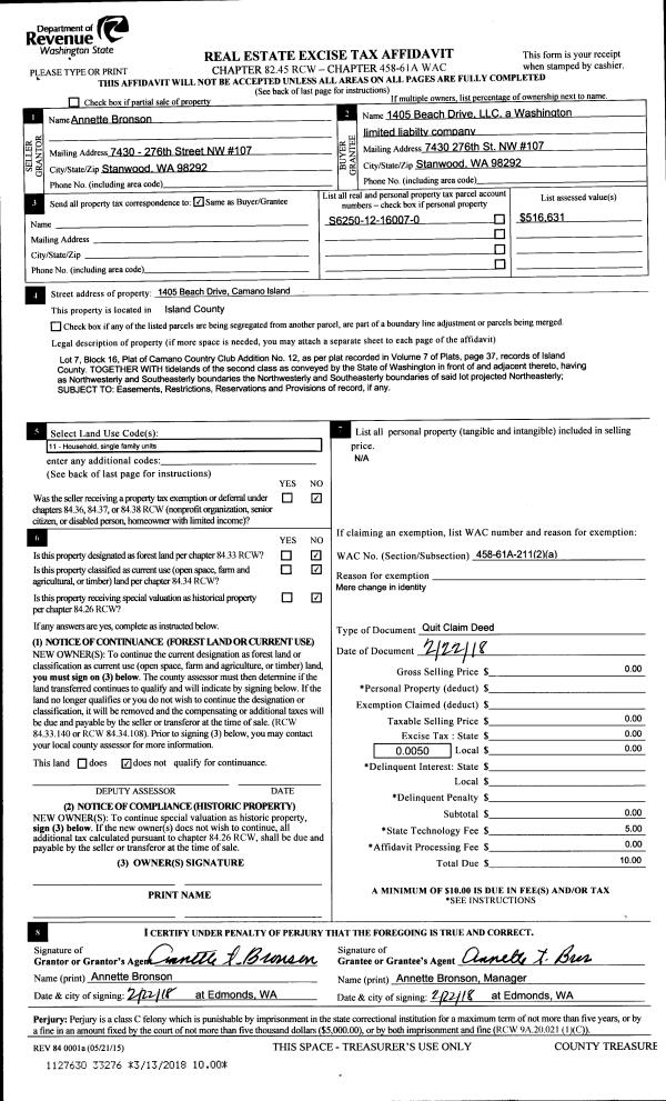
Property
Account |
| Property ID: | 214477 | Abbreviated Legal Description: | CCC 12 LOT 7 BLK 16 INCL ADJ TIDES |
| Geographic ID: | S6250-12-16007-0 | Agent Code: | |
| Type: | Real | | |
| Tax Area: | 510 - APPRAISER-Stan/Cam Schl Dist, improved & 1 acre or less | Land Use Code | 11 |
| Open Space: | N | DFL | N |
| Historic Property: | N | Remodel Property: | N |
| Multi-Family Redevelopment: | N | | |
| Township: | | Section: | |
| Range: | |
Location |
| Address: | 1405 BEACH DR CAMANO ISLAND, WA 98282 | Mapsco: | |
| Neighborhood: | Cycle 5 | Map ID: | 930 |
| Neighborhood CD: | 5 |
Owner |
| Name: | ZUNKER, HANS | Owner ID: | 309444 |
| Mailing Address: | GEORGIALEE ZUNKER 14281 212TH DR NE WOODINVILLE, WA 98077 | % Ownership: | 100.0000000000% |
| | | Exemptions: | |
Taxes and Assessment Details
Values
| (+) Improvement Homesite Value: | + | $0 | |
| (+) Improvement Non-Homesite Value: | + | $227,331 | |
| (+) Land Homesite Value: | + | $0 | |
| (+) Land Non-Homesite Value: | + | $1,025,600 | |
| (+) Curr Use (HS): | + | $0 | $0 |
| (+) Curr Use (NHS): | + | $0 | $0 |
| | | -------------------------- | |
| (=) Market Value: | = | $1,252,931 | |
| (–) Productivity Loss: | – | $0 | |
| | | -------------------------- | |
| (=) Subtotal: | = | $1,252,931 | |
| (+) Senior Appraised Value: | + | $0 | |
| (+) Non-Senior Appraised Value: | + | $1,252,931 | |
| | | -------------------------- | |
| (=) Total Appraised Value: | = | $1,252,931 | |
| (–) Senior Exemption Loss: | – | $0 | |
| (–) Exemption Loss: | – | $0 | |
| | | -------------------------- | |
| (=) Taxable Value: | = | $1,252,931 | |
Taxing Jurisdiction
| Owner: | ZUNKER, HANS | | |
| % Ownership: | 100.0000000000% | | |
| Total Value: | $1,252,931 | | |
| Tax Area: | 510 - APPRAISER-Stan/Cam Schl Dist, improved & 1 acre or less |
| CF | Conservation Futures | 0.0313996660 | $1,252,931 | $1,252,931 | $39.34 | | |
| EMS1 | Fire & Rescue Dist #1 Camano GEN (EMS) | 0.4998471806 | $1,252,931 | $1,252,931 | $626.27 | | |
| FIRE1 | Fire & Rescue Dist #1 Camano GEN | 1.2496603404 | $1,252,931 | $1,252,931 | $1,565.74 | | |
| FIRE1BOND | Fire & Rescue Dist #1 Camano BOND | 0.1630371212 | $1,252,931 | $1,252,931 | $204.27 | | |
| CE | County Current Expense | 0.3674210519 | $1,252,931 | $1,252,931 | $460.35 | | |
| CR | County Roads | 0.4614296361 | $1,252,931 | $1,252,931 | $578.14 | | |
| LIB | Library Sno-Isle GEN | 0.3039084203 | $1,252,931 | $1,252,931 | $380.78 | | |
| SCH205_401 | School 205-401 Enrichment | 1.3697998934 | $1,252,931 | $1,252,931 | $1,716.26 | | |
| SCH205BOND | School 205-401 BOND | 0.9354199323 | $1,252,931 | $1,252,931 | $1,172.02 | | |
| ST | State School | 1.4761226122 | $1,252,931 | $1,252,931 | $1,849.48 | | |
| ST2 | State School Part 2 | 0.7953803475 | $1,252,931 | $1,252,931 | $996.56 | | |
| | Total Tax Rate: | 7.6534262019 | | | | | |
| | | | | Taxes w/Current Exemptions: | $9,589.21 | | |
| | | | | Taxes w/o Exemptions: | $9,589.21 | | |
Improvement / Building
| Improvement #1: | RESIDENTIAL | State Code: | Y | 1461.0 sqft | Value: | $227,331 |
| Bathrooms: | 2 | Bedrooms: | 3 | | Ceiling: | BEAM PAINTED | Cooling: | HEAT PUMP/CONV/V | | Exterior Wall/Cover: | PLY/HARDBOARD T-111 | Floor Covering: | CARPET/VINYL 80-20 | | Floor Structure: | WOOD W/SUBFLOOR | Foundation: | CONCRETE | | Interior Finish: | DRYWALL PAINT | Plumbing Fixture Cnt: | 9 | | Roof Slope: | 4" IN 12" | Roof Structure/Cover: | BEAM ASPHALT |
|
| | Type | Description | Class CD | Sub Class CD | Year Built | Area |
| | BAS | BASE/MAIN FLOOR | 3 | 0 | 1969 | 1461.0 |
| | AGR | ATTACHED GARAGE | 3 | 0 | 1969 | 675.0 |
| | OWP | OPEN WOOD PORCH W/STEPS | 3 | 0 | 1969 | 346.0 |
| | ENP | ENCLOSED PORCH | 3 | 0 | 1969 | 50.0 |
Sketch
Property Image
Land
| 1 | LB | LOW BANK | 0.0000 | 0.00 | 60.00 | 0.00 | 1.00 | $1,025,000 | $0 |
| 2 | 55 | TIDES | 0.0000 | 0.00 | 60.00 | 0.00 | 1.00 | $600 | $0 |
Roll Value History
| 2026 | N/A | N/A | N/A | N/A | N/A |
| 2025 | $227,331 | $1,025,600 | $0 | $1,252,931 | $1,252,931 |
| 2024 | $226,794 | $1,025,600 | $0 | $1,252,394 | $1,252,394 |
| 2023 | $216,526 | $1,025,600 | $0 | $1,242,126 | $1,242,126 |
| 2022 | $199,163 | $1,000,600 | $0 | $1,199,763 | $1,199,763 |
| 2021 | $157,132 | $850,600 | $0 | $1,007,732 | $1,007,732 |
| 2020 | $153,935 | $825,600 | $0 | $979,535 | $979,535 |
| 2019 | $112,807 | $875,600 | $0 | $988,407 | $988,407 |
| 2018 | $113,268 | $475,600 | $0 | $588,868 | $588,868 |
| 2017 | $114,189 | $475,600 | $0 | $589,789 | $589,789 |
| 2016 | $116,031 | $400,600 | $0 | $516,631 | $516,631 |
| 2015 | $109,979 | $400,600 | $0 | $510,579 | $510,579 |
| 2014 | $111,819 | $400,600 | $0 | $512,419 | $512,419 |
| 2013 | $113,662 | $528,990 | $0 | $642,652 | $642,652 |
| 2012 | $115,504 | $528,990 | $0 | $644,494 | $644,494 |
| 2011 | $117,346 | $556,800 | $0 | $674,146 | $674,146 |
| 2010 | $127,685 | $556,800 | $0 | $684,485 | $684,485 |
| 2009 | $131,619 | $627,252 | $0 | $758,871 | $758,871 |
| 2008 | $136,966 | $757,959 | $0 | $894,925 | $894,925 |
| 2007 | $138,978 | $482,220 | $0 | $621,198 | $621,198 |
Deed and Sales History
| 1 | 07/24/2023 | BARGSLD | Bargain And Sale Deed | 1405 BEACH DRIVE, LLC | ZUNKER, HANS | | | $1,350,000.00 | 57434 | 4562757 |
| 2 | 02/22/2018 | QCD | Quit Claim Deed | BRONSON, ANNETTE | 1405 BEACH DRIVE, LLC | | | $0.00 | 33276 | 4440696 |
| 3 | 02/22/2018 | PRD | Personal Representatives Deed | BRONSON, ETHEL M | BRONSON, ANNETTE | | | $0.00 | 33275 | 4440695 |
| 4 | 07/08/2004 | WD | Warranty Deed | LILLYWHITE, JACK W | BRONSON, ETHEL M | | | $604,000.00 | 43153 | 4106755 |
| 5 | 02/01/1995 | WD | Warranty Deed | HENDERSON, BRUCE & | LILLYWHITE, JACK W | | | $375,000.00 | 50734 | 95003432 |
| 6 | 11/01/1990 | WD | Warranty Deed | HOWELL, ALBERT G | HENDERSON, BRUCE & | | | $315,000.00 | 6193 | 90021257 |
| 7 | 06/01/1989 | QCD | Quit Claim Deed | HOWELL, ALBERT G | HOWELL, ALBERT G | | | $0.00 | 92671 | 89009061 |
| 8 | 05/01/1987 | WD | Warranty Deed | RUSSELL, BRYANT W | HOWELL, ALBERT G | | | $161,000.00 | 71396 | 87006780 |
| 9 | 01/01/1900 | OTHER | Other - Misc. Documents | Unknown | RUSSELL, BRYANT W | | | $0.00 | 0 | 0 |
Payout Agreement
| No payout information available.. |