Property
Account |
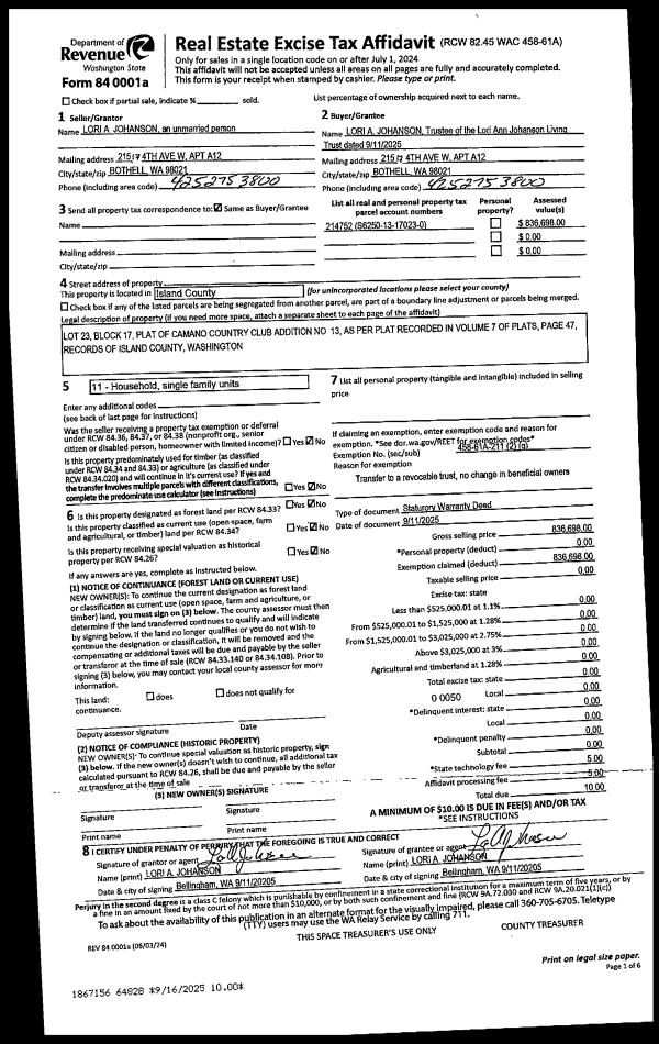
| Property ID: | 214752 | Abbreviated Legal Description: | CCC 13 LOT 23 BLK 17 |
| Geographic ID: | S6250-13-17023-0 | Agent Code: | |
| Type: | Real | | |
| Tax Area: | 510 - APPRAISER-Stan/Cam Schl Dist, improved & 1 acre or less | Land Use Code | 11 |
| Open Space: | N | DFL | N |
| Historic Property: | N | Remodel Property: | N |
| Multi-Family Redevelopment: | N | | |
| Township: | | Section: | |
| Range: | |
Location |
| Address: | 1783 CASCADE VIEW DR CAMANO ISLAND, WA 98282 | Mapsco: | |
| Neighborhood: | Cycle 5 | Map ID: | 935 |
| Neighborhood CD: | 5 |
Owner |
| Name: | JOHANSON, LORI A | Owner ID: | 294119 |
| Mailing Address: | 21519 4TH AVE W, APT A12 BOTHELL, WA 98021 | % Ownership: | 100.0000000000% |
| | | Exemptions: | |
Taxes and Assessment Details
Values
| (+) Improvement Homesite Value: | + | $0 | |
| (+) Improvement Non-Homesite Value: | + | $311,698 | |
| (+) Land Homesite Value: | + | $0 | |
| (+) Land Non-Homesite Value: | + | $525,000 | |
| (+) Curr Use (HS): | + | $0 | $0 |
| (+) Curr Use (NHS): | + | $0 | $0 |
| | | -------------------------- | |
| (=) Market Value: | = | $836,698 | |
| (–) Productivity Loss: | – | $0 | |
| | | -------------------------- | |
| (=) Subtotal: | = | $836,698 | |
| (+) Senior Appraised Value: | + | $0 | |
| (+) Non-Senior Appraised Value: | + | $836,698 | |
| | | -------------------------- | |
| (=) Total Appraised Value: | = | $836,698 | |
| (–) Senior Exemption Loss: | – | $0 | |
| (–) Exemption Loss: | – | $0 | |
| | | -------------------------- | |
| (=) Taxable Value: | = | $836,698 | |
Taxing Jurisdiction
| Owner: | JOHANSON, LORI A | | |
| % Ownership: | 100.0000000000% | | |
| Total Value: | $836,698 | | |
| Tax Area: | 510 - APPRAISER-Stan/Cam Schl Dist, improved & 1 acre or less |
| CF | Conservation Futures | 0.0313996660 | $836,698 | $836,698 | $26.27 | | |
| EMS1 | Fire & Rescue Dist #1 Camano GEN (EMS) | 0.4998471806 | $836,698 | $836,698 | $418.22 | | |
| FIRE1 | Fire & Rescue Dist #1 Camano GEN | 1.2496603404 | $836,698 | $836,698 | $1,045.59 | | |
| FIRE1BOND | Fire & Rescue Dist #1 Camano BOND | 0.1630371212 | $836,698 | $836,698 | $136.41 | | |
| CE | County Current Expense | 0.3674210519 | $836,698 | $836,698 | $307.42 | | |
| CR | County Roads | 0.4614296361 | $836,698 | $836,698 | $386.08 | | |
| LIB | Library Sno-Isle GEN | 0.3039084203 | $836,698 | $836,698 | $254.28 | | |
| SCH205_401 | School 205-401 Enrichment | 1.3697998934 | $836,698 | $836,698 | $1,146.11 | | |
| SCH205BOND | School 205-401 BOND | 0.9354199323 | $836,698 | $836,698 | $782.66 | | |
| ST | State School | 1.4761226122 | $836,698 | $836,698 | $1,235.07 | | |
| ST2 | State School Part 2 | 0.7953803475 | $836,698 | $836,698 | $665.49 | | |
| | Total Tax Rate: | 7.6534262019 | | | | | |
| | | | | Taxes w/Current Exemptions: | $6,403.60 | | |
| | | | | Taxes w/o Exemptions: | $6,403.60 | | |
Improvement / Building
| Improvement #1: | RESIDENTIAL | State Code: | Y | 1812.0 sqft | Value: | $311,698 |
| Bathrooms: | 2 | Bedrooms: | 2 | | Ceiling: | TONGUE & GROOVE | Exterior Wall/Cover: | PLY/HARDBOARD T-111 | | Floor Covering: | HARDWOOD/CARP 20-80 | Floor Structure: | WOOD W/SUBFLOOR | | Foundation: | CONCRETE | Heating: | WALL HEAT ELECTRIC | | Interior Finish: | DRYWALL PAINT | Plumbing Fixture Cnt: | 9 | | Roof Slope: | 6" IN 12" | Roof Structure/Cover: | CJ ASPHALT |
|
| | Type | Description | Class CD | Sub Class CD | Year Built | Area |
| | BAS | BASE/MAIN FLOOR | 3 | 0 | 1990 | 1812.0 |
| | AGR | ATTACHED GARAGE | 3 | 0 | 1990 | 576.0 |
| | OWP | OPEN WOOD PORCH W/STEPS | 3 | 0 | 1990 | 70.6 |
| | OWP | OPEN WOOD PORCH W/STEPS | 3 | 0 | 1990 | 968.0 |
| | OWR | OPEN WOOD PORCH W/STEPS/ROOF | 3 | 0 | 1990 | 240.0 |
Sketch
Property Image
Land
| 1 | HB | HIGH BLUFF | 0.0000 | 0.00 | 76.00 | 0.00 | 1.00 | $525,000 | $0 |
Roll Value History
| 2026 | N/A | N/A | N/A | N/A | N/A |
| 2025 | $311,698 | $525,000 | $0 | $836,698 | $836,698 |
| 2024 | $315,631 | $525,000 | $0 | $840,631 | $840,631 |
| 2023 | $319,563 | $500,000 | $0 | $819,563 | $819,563 |
| 2022 | $292,939 | $550,000 | $0 | $842,939 | $842,939 |
| 2021 | $239,239 | $290,000 | $0 | $529,239 | $529,239 |
| 2020 | $233,576 | $290,000 | $0 | $523,576 | $523,576 |
| 2019 | $174,671 | $325,000 | $0 | $499,671 | $499,671 |
| 2018 | $175,223 | $300,000 | $0 | $475,223 | $475,223 |
| 2017 | $176,326 | $275,000 | $0 | $451,326 | $451,326 |
| 2016 | $178,529 | $200,000 | $0 | $378,529 | $378,529 |
| 2015 | $185,685 | $200,000 | $0 | $385,685 | $385,685 |
| 2014 | $223,813 | $200,000 | $0 | $423,813 | $423,813 |
| 2013 | $226,770 | $207,100 | $0 | $433,870 | $433,870 |
| 2012 | $229,727 | $207,100 | $0 | $436,827 | $436,827 |
| 2011 | $232,685 | $218,000 | $0 | $450,685 | $450,685 |
| 2010 | $242,120 | $218,000 | $0 | $460,120 | $460,120 |
| 2009 | $256,323 | $326,999 | $0 | $583,322 | $583,322 |
| 2008 | $259,619 | $354,745 | $0 | $614,364 | $614,364 |
| 2007 | $262,991 | $336,909 | $0 | $599,900 | $599,900 |
Deed and Sales History
| 1 | 09/11/2025 | WD | Warranty Deed | JOHANSON, LORI A | LORI ANN JOHANSON LIVING TRUST | | | $0.00 | 64828 | 4591013 |
| 2 | 04/29/2020 | QCD | Quit Claim Deed | JOHANSON, BRET | JOHANSON, LORI A | | | $0.00 | 42924 | 4486066 |
| 3 | 02/03/2014 | WD | Warranty Deed | DAUGHERTY, ROBERT L | JOHANSON, BRET | | | $365,000.00 | 14209 | 4354875 |
|   | |
| 4 | 07/16/2003 | QCD | Quit Claim Deed | MCCUSKER JTWROS, CAROLE S | DAUGHERTY, ROBERT L | | | $0.00 | 33958 | 4073790 |
| 5 | 04/11/2003 | QCD | Quit Claim Deed | MCCUSKER JTWROS, CAROLE S | MCCUSKER JTWROS, CAROLE S | | | $0.00 | 33904 | 4072423 |
| 6 | 04/01/2003 | QCD | Quit Claim Deed | MCCUSKER, ROBERT M | MCCUSKER JTWROS, CAROLE S | | | $0.00 | 31612 | 4055591 |
| 7 | 01/01/1990 | WD | Warranty Deed | PAULSON, ELEANOR R | MCCUSKER, ROBERT M | | | $29,000.00 | 638 | 90002062 |
| 8 | 01/01/1900 | OTHER | Other - Misc. Documents | Unknown | PAULSON, ELEANOR R | | | $0.00 | 0 | 0 |
Payout Agreement
| No payout information available.. |