Property
Account |
| Property ID: | 214967 | Abbreviated Legal Description: | CCC 13 LOT 22 BLK 18 |
| Geographic ID: | S6250-13-18022-0 | Agent Code: | |
| Type: | Real | | |
| Tax Area: | 510 - APPRAISER-Stan/Cam Schl Dist, improved & 1 acre or less | Land Use Code | 11 |
| Open Space: | N | DFL | N |
| Historic Property: | N | Remodel Property: | N |
| Multi-Family Redevelopment: | N | | |
| Township: | | Section: | |
| Range: | |
Location |
| Address: | 1782 CASCADE VIEW DR CAMANO IS, WA 98282 | Mapsco: | |
| Neighborhood: | Cycle 5 | Map ID: | 935 |
| Neighborhood CD: | 5 |
Owner |
| Name: | TREVINO, AUSTIN JAMES | Owner ID: | 308953 |
| Mailing Address: | KEISHIA LYNN PARDILLO TREVINO TAMARA D ROSS 1776 CASCADE VIEW DR CAMANO ISLAND, WA 98282 | % Ownership: | 100.0000000000% |
| | | Exemptions: | |
Taxes and Assessment Details
Values
| (+) Improvement Homesite Value: | + | $0 | |
| (+) Improvement Non-Homesite Value: | + | $302,298 | |
| (+) Land Homesite Value: | + | $0 | |
| (+) Land Non-Homesite Value: | + | $250,000 | |
| (+) Curr Use (HS): | + | $0 | $0 |
| (+) Curr Use (NHS): | + | $0 | $0 |
| | | -------------------------- | |
| (=) Market Value: | = | $552,298 | |
| (–) Productivity Loss: | – | $0 | |
| | | -------------------------- | |
| (=) Subtotal: | = | $552,298 | |
| (+) Senior Appraised Value: | + | $0 | |
| (+) Non-Senior Appraised Value: | + | $552,298 | |
| | | -------------------------- | |
| (=) Total Appraised Value: | = | $552,298 | |
| (–) Senior Exemption Loss: | – | $0 | |
| (–) Exemption Loss: | – | $0 | |
| | | -------------------------- | |
| (=) Taxable Value: | = | $552,298 | |
Taxing Jurisdiction
| Owner: | TREVINO, AUSTIN JAMES | | |
| % Ownership: | 100.0000000000% | | |
| Total Value: | $552,298 | | |
| Tax Area: | 510 - APPRAISER-Stan/Cam Schl Dist, improved & 1 acre or less |
| CF | Conservation Futures | 0.0313996660 | $552,298 | $552,298 | $17.34 | | |
| EMS1 | Fire & Rescue Dist #1 Camano GEN (EMS) | 0.4998471806 | $552,298 | $552,298 | $276.06 | | |
| FIRE1 | Fire & Rescue Dist #1 Camano GEN | 1.2496603404 | $552,298 | $552,298 | $690.18 | | |
| FIRE1BOND | Fire & Rescue Dist #1 Camano BOND | 0.1630371212 | $552,298 | $552,298 | $90.05 | | |
| CE | County Current Expense | 0.3674210519 | $552,298 | $552,298 | $202.93 | | |
| CR | County Roads | 0.4614296361 | $552,298 | $552,298 | $254.85 | | |
| LIB | Library Sno-Isle GEN | 0.3039084203 | $552,298 | $552,298 | $167.85 | | |
| SCH205_401 | School 205-401 Enrichment | 1.3697998934 | $552,298 | $552,298 | $756.54 | | |
| SCH205BOND | School 205-401 BOND | 0.9354199323 | $552,298 | $552,298 | $516.63 | | |
| ST | State School | 1.4761226122 | $552,298 | $552,298 | $815.26 | | |
| ST2 | State School Part 2 | 0.7953803475 | $552,298 | $552,298 | $439.29 | | |
| | Total Tax Rate: | 7.6534262019 | | | | | |
| | | | | Taxes w/Current Exemptions: | $4,226.98 | | |
| | | | | Taxes w/o Exemptions: | $4,226.98 | | |
Improvement / Building
| Improvement #1: | RESIDENTIAL | State Code: | Y | 1402.5 sqft | Value: | $302,298 |
| Bathrooms: | 2 | Bedrooms: | 2 | | Ceiling: | DRYWALL PAINTED | Exterior Wall/Cover: | PLY/HARDBOARD T-111 | | Floor Covering: | CARPET/VINYL 20-80 | Floor Structure: | WOOD W/SUBFLOOR | | Foundation: | CONCRETE | Heating: | FHA GAS | | Interior Finish: | DRYWALL PAINT | Plumbing Fixture Cnt: | 9 | | Roof Slope: | 5" IN 12" | Roof Structure/Cover: | CJ ASPHALT |
|
| | Type | Description | Class CD | Sub Class CD | Year Built | Area |
| | BAS | BASE/MAIN FLOOR | 3 | 0 | 2023 | 1402.5 |
| | AGR | ATTACHED GARAGE | 3 | 0 | 2023 | 552.0 |
| | OWP | OPEN WOOD PORCH W/STEPS | 3 | 0 | 2023 | 95.0 |
| | OWP | OPEN WOOD PORCH W/STEPS | 3 | 0 | 2023 | 112.0 |
Sketch
Property Image
Land
| 1 | 14 | SQ (08001-12000) | 0.0000 | 0.00 | 0.00 | 0.00 | 1.00 | $250,000 | $0 |
Roll Value History
| 2026 | N/A | N/A | N/A | N/A | N/A |
| 2025 | $302,298 | $250,000 | $0 | $552,298 | $552,298 |
| 2024 | $307,793 | $250,000 | $0 | $557,793 | $557,793 |
| 2023 | $314,075 | $210,000 | $0 | $524,075 | $524,075 |
| 2022 | $0 | $100,000 | $0 | $100,000 | $100,000 |
| 2021 | $0 | $80,000 | $0 | $80,000 | $80,000 |
| 2020 | $0 | $80,000 | $0 | $80,000 | $80,000 |
| 2019 | $0 | $60,000 | $0 | $60,000 | $60,000 |
| 2018 | $0 | $50,000 | $0 | $50,000 | $50,000 |
| 2017 | $0 | $50,000 | $0 | $50,000 | $50,000 |
| 2016 | $0 | $45,000 | $0 | $45,000 | $45,000 |
| 2015 | $0 | $45,000 | $0 | $45,000 | $45,000 |
| 2014 | $0 | $45,000 | $0 | $45,000 | $45,000 |
| 2013 | $0 | $46,000 | $0 | $46,000 | $46,000 |
| 2012 | $0 | $46,000 | $0 | $46,000 | $46,000 |
| 2011 | $0 | $46,000 | $0 | $46,000 | $46,000 |
| 2010 | $0 | $46,000 | $0 | $46,000 | $46,000 |
| 2009 | $0 | $43,200 | $0 | $43,200 | $43,200 |
| 2008 | $0 | $75,000 | $0 | $75,000 | $75,000 |
| 2007 | $0 | $75,000 | $0 | $75,000 | $75,000 |
Deed and Sales History
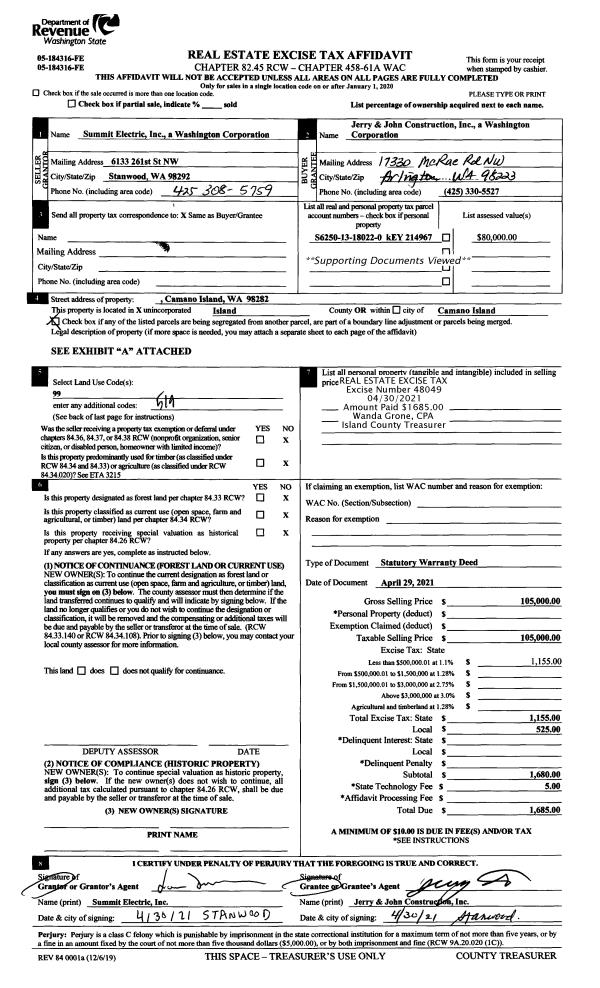
| 1 | 05/24/2023 | WD | Warranty Deed | JERRY & JOHN CONSTRUCTION | TREVINO, AUSTIN JAMES | | | $600,000.00 | 56987 | 4560961 |
| 2 | 04/29/2021 | WD | Warranty Deed | SUMMIT ELECTRIC INC. | JERRY & JOHN CONSTRUCTION | | | $105,000.00 | 48049 | 4517958 |
| 3 | 02/11/2003 | WD | Warranty Deed | JOHNSON, LORRAINE E | INC, SUMMIT ELECTRIC | | | $45,000.00 | 30627 | 4047942 |
| 4 | 02/01/1998 | OTHER | Other - Misc. Documents | JOHNSON, MILTON O | JOHNSON, LORRAINE E | | | $0.00 | 67767 | 0 |
| 5 | 07/01/1985 | EXECUTORD | Executor Deed | JOHNSON, HARVEY C | JOHNSON, MILTON O | | | $0.00 | 51899 | 85007292 |
| 6 | 01/01/1900 | OTHER | Other - Misc. Documents | Unknown | JOHNSON, HARVEY C | | | $0.00 | 0 | 0 |
Payout Agreement
| No payout information available.. |