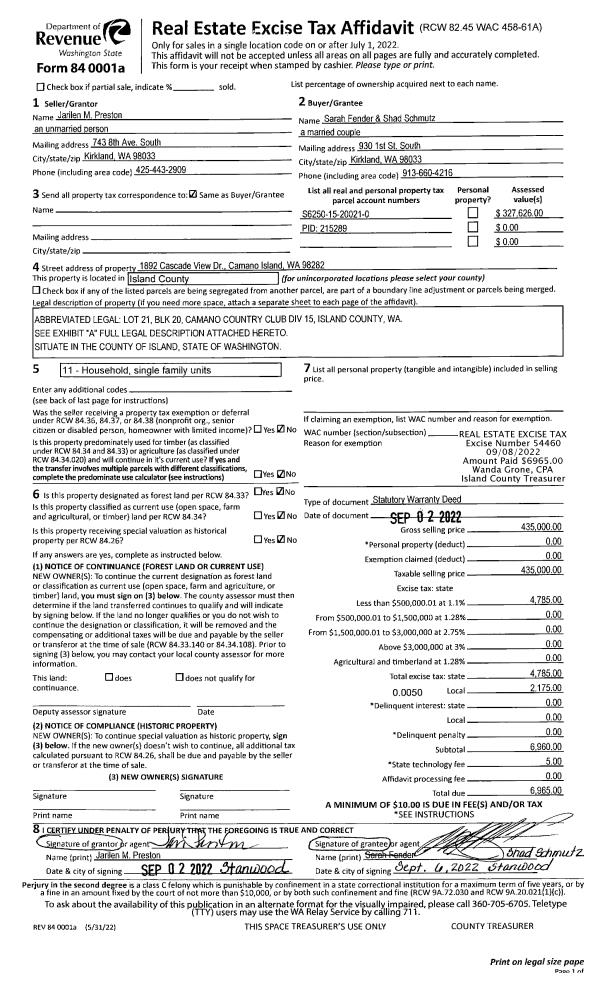
Property
Account |
| Property ID: | 215289 | Abbreviated Legal Description: | CCC 15 LOT 21 BLK 20 |
| Geographic ID: | S6250-15-20021-0 | Agent Code: | |
| Type: | Real | | |
| Tax Area: | 510 - APPRAISER-Stan/Cam Schl Dist, improved & 1 acre or less | Land Use Code | 11 |
| Open Space: | N | DFL | N |
| Historic Property: | N | Remodel Property: | N |
| Multi-Family Redevelopment: | N | | |
| Township: | | Section: | |
| Range: | |
Location |
| Address: | 1892 CASCADE VIEW DR CAMANO ISLAND, WA 98282 | Mapsco: | |
| Neighborhood: | Cycle 5 | Map ID: | 933 |
| Neighborhood CD: | 5 |
Owner |
| Name: | DAUL TTEE, SHEREE | Owner ID: | 317268 |
| Mailing Address: | TY DAUL TTEE 1212 VIEW ST CAMANO ISLAND, WA 98282 | % Ownership: | 100.0000000000% |
| | | Exemptions: | |
Taxes and Assessment Details
Values
| (+) Improvement Homesite Value: | + | $0 | |
| (+) Improvement Non-Homesite Value: | + | $132,799 | |
| (+) Land Homesite Value: | + | $0 | |
| (+) Land Non-Homesite Value: | + | $250,000 | |
| (+) Curr Use (HS): | + | $0 | $0 |
| (+) Curr Use (NHS): | + | $0 | $0 |
| | | -------------------------- | |
| (=) Market Value: | = | $382,799 | |
| (–) Productivity Loss: | – | $0 | |
| | | -------------------------- | |
| (=) Subtotal: | = | $382,799 | |
| (+) Senior Appraised Value: | + | $0 | |
| (+) Non-Senior Appraised Value: | + | $382,799 | |
| | | -------------------------- | |
| (=) Total Appraised Value: | = | $382,799 | |
| (–) Senior Exemption Loss: | – | $0 | |
| (–) Exemption Loss: | – | $0 | |
| | | -------------------------- | |
| (=) Taxable Value: | = | $382,799 | |
Taxing Jurisdiction
| Owner: | DAUL TTEE, SHEREE | | |
| % Ownership: | 100.0000000000% | | |
| Total Value: | $382,799 | | |
| Tax Area: | 510 - APPRAISER-Stan/Cam Schl Dist, improved & 1 acre or less |
| CF | Conservation Futures | 0.0313996660 | $382,799 | $382,799 | $12.02 | | |
| EMS1 | Fire & Rescue Dist #1 Camano GEN (EMS) | 0.4998471806 | $382,799 | $382,799 | $191.34 | | |
| FIRE1 | Fire & Rescue Dist #1 Camano GEN | 1.2496603404 | $382,799 | $382,799 | $478.37 | | |
| FIRE1BOND | Fire & Rescue Dist #1 Camano BOND | 0.1630371212 | $382,799 | $382,799 | $62.41 | | |
| CE | County Current Expense | 0.3674210519 | $382,799 | $382,799 | $140.65 | | |
| CR | County Roads | 0.4614296361 | $382,799 | $382,799 | $176.63 | | |
| LIB | Library Sno-Isle GEN | 0.3039084203 | $382,799 | $382,799 | $116.34 | | |
| SCH205_401 | School 205-401 Enrichment | 1.3697998934 | $382,799 | $382,799 | $524.36 | | |
| SCH205BOND | School 205-401 BOND | 0.9354199323 | $382,799 | $382,799 | $358.08 | | |
| ST | State School | 1.4761226122 | $382,799 | $382,799 | $565.06 | | |
| ST2 | State School Part 2 | 0.7953803475 | $382,799 | $382,799 | $304.47 | | |
| | Total Tax Rate: | 7.6534262019 | | | | | |
| | | | | Taxes w/Current Exemptions: | $2,929.73 | | |
| | | | | Taxes w/o Exemptions: | $2,929.73 | | |
Improvement / Building
| Improvement #1: | RESIDENTIAL | State Code: | Y | 1008.0 sqft | Value: | $132,799 |
| Bathrooms: | 1 | Bedrooms: | 2 | | Ceiling: | BEAM PAINTED | Exterior Wall/Cover: | PLY/HARDBOARD T-111 | | Floor Covering: | CARPET/VINYL 80-20 | Floor Structure: | WOOD W/SUBFLOOR | | Foundation: | CONCRETE | Heating: | BASEBOARD ELECTRIC | | Interior Finish: | DRYWALL PAINT | Plumbing Fixture Cnt: | 6 | | Roof Slope: | 3" IN 12" | Roof Structure/Cover: | BEAM BUILT-UP ROCK |
|
| | Type | Description | Class CD | Sub Class CD | Year Built | Area |
| | BAS | BASE/MAIN FLOOR | 3 | 0 | 1969 | 1008.0 |
| | ENP | ENCLOSED PORCH | 3 | 0 | 1969 | 336.0 |
| | AGR | ATTACHED GARAGE | 3 | 0 | 1969 | 364.0 |
| | OWP | OPEN WOOD PORCH W/STEPS | 3 | 0 | 1969 | 369.0 |
Sketch
Property Image
Land
| 1 | 14 | SQ (08001-12000) | 0.0000 | 0.00 | 0.00 | 0.00 | 1.00 | $250,000 | $0 |
Roll Value History
| 2026 | N/A | N/A | N/A | N/A | N/A |
| 2025 | $132,799 | $250,000 | $0 | $382,799 | $382,799 |
| 2024 | $135,749 | $250,000 | $0 | $385,749 | $385,749 |
| 2023 | $138,347 | $210,000 | $0 | $348,347 | $348,347 |
| 2022 | $127,626 | $200,000 | $0 | $327,626 | $327,626 |
| 2021 | $104,845 | $140,000 | $0 | $244,845 | $244,845 |
| 2020 | $102,894 | $120,000 | $0 | $222,894 | $222,894 |
| 2019 | $73,690 | $170,000 | $0 | $243,690 | $243,690 |
| 2018 | $74,037 | $140,000 | $0 | $214,037 | $214,037 |
| 2017 | $74,729 | $90,000 | $0 | $164,729 | $164,729 |
| 2016 | $76,112 | $65,000 | $0 | $141,112 | $141,112 |
| 2015 | $68,286 | $50,000 | $0 | $118,286 | $118,286 |
| 2014 | $69,569 | $50,000 | $0 | $119,569 | $119,569 |
| 2013 | $70,851 | $50,000 | $0 | $120,851 | $120,851 |
| 2012 | $72,133 | $56,000 | $0 | $128,133 | $128,133 |
| 2011 | $73,415 | $70,000 | $0 | $143,415 | $143,415 |
| 2010 | $79,314 | $70,000 | $0 | $149,314 | $149,314 |
| 2009 | $82,992 | $100,000 | $0 | $182,992 | $182,992 |
| 2008 | $84,951 | $117,313 | $0 | $202,264 | $202,264 |
| 2007 | $85,485 | $118,051 | $0 | $203,536 | $203,536 |
Deed and Sales History
| 1 | 06/26/2025 | WD | Warranty Deed | FENDER, SARAH | DAUL TTEE, SHEREE | | | $620,000.00 | 64054 | 4587814 |
| 2 | 09/02/2022 | WD | Warranty Deed | PRESTON, JARILEN M | FENDER, SARAH | | | $435,000.00 | 54460 | 4550896 |
| 3 | 10/10/2008 | QCD | Quit Claim Deed | KITTLE, FLORENCE MARIE | PRESTON, JARILEN M | | | $0.00 | 82668 | 4238194 |
| 4 | 03/23/1999 | OTHER | Other - Misc. Documents | Unknown | KITTLE, FLORENCE MARIE | | | $0.00 | 68206 | 0 |
Payout Agreement
| No payout information available.. |