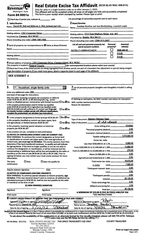
Property
Account |
| Property ID: | 216019 | Abbreviated Legal Description: | CCC 17 LOT 9 BLK 16 |
| Geographic ID: | S6250-17-16009-0 | Agent Code: | |
| Type: | Real | | |
| Tax Area: | 510 - APPRAISER-Stan/Cam Schl Dist, improved & 1 acre or less | Land Use Code | 11 |
| Open Space: | N | DFL | N |
| Historic Property: | N | Remodel Property: | N |
| Multi-Family Redevelopment: | N | | |
| Township: | | Section: | |
| Range: | |
Location |
| Address: | 1391 CRESTVIEW DR CAMANO ISLAND, WA 98282 | Mapsco: | |
| Neighborhood: | Cycle 5 | Map ID: | 931 |
| Neighborhood CD: | 5 |
Owner |
| Name: | HAWKINS, JONATHAN | Owner ID: | 303273 |
| Mailing Address: | ANN MECKLENBURG 2512 EAST MADISON ST APT. 402 SEATTLE, WA 98112 | % Ownership: | 100.0000000000% |
| | | Exemptions: | |
Taxes and Assessment Details
Values
| (+) Improvement Homesite Value: | + | $0 | |
| (+) Improvement Non-Homesite Value: | + | $577,153 | |
| (+) Land Homesite Value: | + | $0 | |
| (+) Land Non-Homesite Value: | + | $390,000 | |
| (+) Curr Use (HS): | + | $0 | $0 |
| (+) Curr Use (NHS): | + | $0 | $0 |
| | | -------------------------- | |
| (=) Market Value: | = | $967,153 | |
| (–) Productivity Loss: | – | $0 | |
| | | -------------------------- | |
| (=) Subtotal: | = | $967,153 | |
| (+) Senior Appraised Value: | + | $0 | |
| (+) Non-Senior Appraised Value: | + | $967,153 | |
| | | -------------------------- | |
| (=) Total Appraised Value: | = | $967,153 | |
| (–) Senior Exemption Loss: | – | $0 | |
| (–) Exemption Loss: | – | $0 | |
| | | -------------------------- | |
| (=) Taxable Value: | = | $967,153 | |
Taxing Jurisdiction
| Owner: | HAWKINS, JONATHAN | | |
| % Ownership: | 100.0000000000% | | |
| Total Value: | $967,153 | | |
| Tax Area: | 510 - APPRAISER-Stan/Cam Schl Dist, improved & 1 acre or less |
| CF | Conservation Futures | 0.0313996660 | $967,153 | $967,153 | $30.37 | | |
| EMS1 | Fire & Rescue Dist #1 Camano GEN (EMS) | 0.4998471806 | $967,153 | $967,153 | $483.43 | | |
| FIRE1 | Fire & Rescue Dist #1 Camano GEN | 1.2496603404 | $967,153 | $967,153 | $1,208.61 | | |
| FIRE1BOND | Fire & Rescue Dist #1 Camano BOND | 0.1630371212 | $967,153 | $967,153 | $157.68 | | |
| CE | County Current Expense | 0.3674210519 | $967,153 | $967,153 | $355.35 | | |
| CR | County Roads | 0.4614296361 | $967,153 | $967,153 | $446.27 | | |
| LIB | Library Sno-Isle GEN | 0.3039084203 | $967,153 | $967,153 | $293.93 | | |
| SCH205_401 | School 205-401 Enrichment | 1.3697998934 | $967,153 | $967,153 | $1,324.81 | | |
| SCH205BOND | School 205-401 BOND | 0.9354199323 | $967,153 | $967,153 | $904.69 | | |
| ST | State School | 1.4761226122 | $967,153 | $967,153 | $1,427.64 | | |
| ST2 | State School Part 2 | 0.7953803475 | $967,153 | $967,153 | $769.25 | | |
| | Total Tax Rate: | 7.6534262019 | | | | | |
| | | | | Taxes w/Current Exemptions: | $7,402.03 | | |
| | | | | Taxes w/o Exemptions: | $7,402.03 | | |
Improvement / Building
| Improvement #1: | RESIDENTIAL | State Code: | Y | 2657.0 sqft | Value: | $577,153 |
| Bathrooms: | 2.5 | Bedrooms: | 3 | | Ceiling: | TONGUE & GROOVE | Cooling: | HEAT PUMP/CONV/V | | Exterior Wall/Cover: | SHINGLE | Floor Covering: | HARDWOOD/CARP 60-40 | | Floor Structure: | WOOD W/SUBFLOOR | Foundation: | CONCRETE | | Interior Finish: | DRYWALL PAINT | Plumbing Fixture Cnt: | 14 | | Roof Slope: | 5" IN 12" | Roof Structure/Cover: | CJ ALUMINIUM HEAVY |
|
| | Type | Description | Class CD | Sub Class CD | Year Built | Area |
| | BAS | BASE/MAIN FLOOR | 4 | 0 | 2001 | 1551.0 |
| | AGR | ATTACHED GARAGE | 4 | 0 | 2001 | 564.0 |
| | OWP | OPEN WOOD PORCH W/STEPS | 4 | 0 | 2001 | 500.0 |
| | OWP | OPEN WOOD PORCH W/STEPS | 4 | 0 | 2001 | 328.0 |
| | DWN | DOWNSTAIRS LIVING AREA | 4 | 0 | 2001 | 1106.0 |
| | OWC | OPEN WOOD PORCH W/STEPS/ROOF/C | 4 | 0 | 2001 | 160.0 |
| | OP1 | OPEN PORCH SLAB | 4 | 0 | 2001 | 287.0 |
Sketch
Property Image
Land
| 1 | 15 | SQ (12001-21780) | 0.0000 | 0.00 | 0.00 | 0.00 | 1.00 | $390,000 | $0 |
Roll Value History
| 2026 | N/A | N/A | N/A | N/A | N/A |
| 2025 | $577,153 | $390,000 | $0 | $967,153 | $967,153 |
| 2024 | $584,086 | $360,000 | $0 | $944,086 | $944,086 |
| 2023 | $591,019 | $330,000 | $0 | $921,019 | $921,019 |
| 2022 | $497,965 | $300,000 | $0 | $797,965 | $797,965 |
| 2021 | $388,484 | $200,000 | $0 | $588,484 | $588,484 |
| 2020 | $378,766 | $180,000 | $0 | $558,766 | $558,766 |
| 2019 | $285,050 | $230,000 | $0 | $515,050 | $515,050 |
| 2018 | $285,885 | $200,000 | $0 | $485,885 | $485,885 |
| 2017 | $287,557 | $200,000 | $0 | $487,557 | $487,557 |
| 2016 | $290,901 | $130,000 | $0 | $420,901 | $420,901 |
| 2015 | $282,372 | $130,000 | $0 | $412,372 | $412,372 |
| 2014 | $285,673 | $130,000 | $0 | $415,673 | $415,673 |
| 2013 | $288,973 | $130,000 | $0 | $418,973 | $418,973 |
| 2012 | $292,275 | $138,384 | $0 | $430,659 | $430,659 |
| 2011 | $295,576 | $172,980 | $0 | $468,556 | $468,556 |
| 2010 | $305,575 | $172,980 | $0 | $478,555 | $478,555 |
| 2009 | $312,312 | $200,000 | $0 | $512,312 | $512,312 |
| 2008 | $324,227 | $230,000 | $0 | $554,227 | $554,227 |
| 2007 | $327,805 | $146,000 | $0 | $473,805 | $473,805 |
Deed and Sales History
| 1 | 02/22/2022 | WD | Warranty Deed | HULL, DARRELL M | HAWKINS, JONATHAN | | | $1,510,000.00 | 52055 | 4540276 |
| 2 | 05/12/2000 | WD | Warranty Deed | SHOEMAKER, C E | HULL, DARRELL M | | | $69,000.00 | 1841 | 20008935 |
| 3 | 02/01/1993 | WD | Warranty Deed | HAZELTON, ROBERT M | SHOEMAKER, C E | | | $50,000.00 | 30715 | 93003709 |
| 4 | 01/01/1900 | OTHER | Other - Misc. Documents | Unknown | HAZELTON, ROBERT M | | | $0.00 | 0 | 0 |
Payout Agreement
| No payout information available.. |