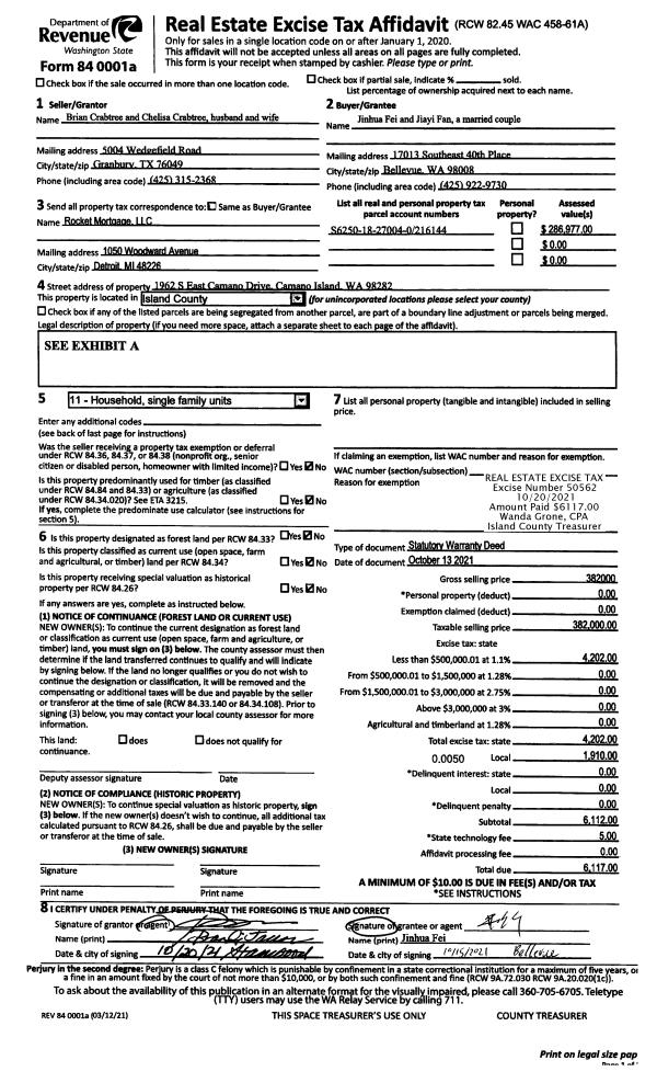
Property
Account |
| Property ID: | 216144 | Abbreviated Legal Description: | CCC 18 LOT 4 BLK 27 |
| Geographic ID: | S6250-18-27004-0 | Agent Code: | |
| Type: | Real | | |
| Tax Area: | 510 - APPRAISER-Stan/Cam Schl Dist, improved & 1 acre or less | Land Use Code | 11 |
| Open Space: | N | DFL | N |
| Historic Property: | N | Remodel Property: | N |
| Multi-Family Redevelopment: | N | | |
| Township: | | Section: | |
| Range: | |
Location |
| Address: | 1962 S EAST CAMANO DR CAMANO ISLAND, WA 98282 | Mapsco: | |
| Neighborhood: | Cycle 5 | Map ID: | 933 |
| Neighborhood CD: | 5 |
Owner |
| Name: | FEI, JINHUA | Owner ID: | 301661 |
| Mailing Address: | JIAYI FAN 17013 SE 40TH PL BELLEVUE, WA 98008 | % Ownership: | 100.0000000000% |
| | | Exemptions: | |
Taxes and Assessment Details
Values
| (+) Improvement Homesite Value: | + | $0 | |
| (+) Improvement Non-Homesite Value: | + | $200,061 | |
| (+) Land Homesite Value: | + | $0 | |
| (+) Land Non-Homesite Value: | + | $250,000 | |
| (+) Curr Use (HS): | + | $0 | $0 |
| (+) Curr Use (NHS): | + | $0 | $0 |
| | | -------------------------- | |
| (=) Market Value: | = | $450,061 | |
| (–) Productivity Loss: | – | $0 | |
| | | -------------------------- | |
| (=) Subtotal: | = | $450,061 | |
| (+) Senior Appraised Value: | + | $0 | |
| (+) Non-Senior Appraised Value: | + | $450,061 | |
| | | -------------------------- | |
| (=) Total Appraised Value: | = | $450,061 | |
| (–) Senior Exemption Loss: | – | $0 | |
| (–) Exemption Loss: | – | $0 | |
| | | -------------------------- | |
| (=) Taxable Value: | = | $450,061 | |
Taxing Jurisdiction
| Owner: | FEI, JINHUA | | |
| % Ownership: | 100.0000000000% | | |
| Total Value: | $450,061 | | |
| Tax Area: | 510 - APPRAISER-Stan/Cam Schl Dist, improved & 1 acre or less |
| CF | Conservation Futures | 0.0313996660 | $450,061 | $450,061 | $14.13 | | |
| EMS1 | Fire & Rescue Dist #1 Camano GEN (EMS) | 0.4998471806 | $450,061 | $450,061 | $224.96 | | |
| FIRE1 | Fire & Rescue Dist #1 Camano GEN | 1.2496603404 | $450,061 | $450,061 | $562.42 | | |
| FIRE1BOND | Fire & Rescue Dist #1 Camano BOND | 0.1630371212 | $450,061 | $450,061 | $73.38 | | |
| CE | County Current Expense | 0.3674210519 | $450,061 | $450,061 | $165.36 | | |
| CR | County Roads | 0.4614296361 | $450,061 | $450,061 | $207.67 | | |
| LIB | Library Sno-Isle GEN | 0.3039084203 | $450,061 | $450,061 | $136.78 | | |
| SCH205_401 | School 205-401 Enrichment | 1.3697998934 | $450,061 | $450,061 | $616.49 | | |
| SCH205BOND | School 205-401 BOND | 0.9354199323 | $450,061 | $450,061 | $421.00 | | |
| ST | State School | 1.4761226122 | $450,061 | $450,061 | $664.35 | | |
| ST2 | State School Part 2 | 0.7953803475 | $450,061 | $450,061 | $357.97 | | |
| | Total Tax Rate: | 7.6534262019 | | | | | |
| | | | | Taxes w/Current Exemptions: | $3,444.51 | | |
| | | | | Taxes w/o Exemptions: | $3,444.51 | | |
Improvement / Building
| Improvement #1: | RESIDENTIAL | State Code: | Y | 1024.0 sqft | Value: | $200,061 |
| Bathrooms: | 1 | Bedrooms: | 2 | | Ceiling: | DRYWALL PAINTED | Exterior Wall/Cover: | PLY/HARDBOARD T-111 | | Floor Covering: | HARDWOOD/CARP 60-40 | Floor Structure: | WOOD W/SUBFLOOR | | Foundation: | CONCRETE | Heating: | WALL HEAT ELECTRIC | | Interior Finish: | DRYWALL PAINT | Plumbing Fixture Cnt: | 7 | | Roof Slope: | 4" IN 12" | Roof Structure/Cover: | CJ ASPHALT |
|
| | Type | Description | Class CD | Sub Class CD | Year Built | Area |
| | BAS | BASE/MAIN FLOOR | 3 | 0 | 1991 | 1024.0 |
| | OP4 | OPEN PORCH W/CEILING-ROOF | 3 | 0 | 1991 | 64.0 |
| | OP4 | OPEN PORCH W/CEILING-ROOF | 3 | 0 | 1991 | 160.0 |
| | AGR | ATTACHED GARAGE | 3 | 0 | 1991 | 480.0 |
| | oFN1 | WD FNC 6' | 3 | 0 | 1991 | 0.0 |
Sketch
Property Image
Land
| 1 | 14 | SQ (08001-12000) | 0.0000 | 0.00 | 0.00 | 0.00 | 1.00 | $250,000 | $0 |
Roll Value History
| 2026 | N/A | N/A | N/A | N/A | N/A |
| 2025 | $200,061 | $250,000 | $0 | $450,061 | $450,061 |
| 2024 | $202,516 | $250,000 | $0 | $452,516 | $452,516 |
| 2023 | $204,971 | $210,000 | $0 | $414,971 | $414,971 |
| 2022 | $187,880 | $200,000 | $0 | $387,880 | $387,880 |
| 2021 | $146,977 | $140,000 | $0 | $286,977 | $286,977 |
| 2020 | $143,075 | $120,000 | $0 | $263,075 | $263,075 |
| 2019 | $101,035 | $170,000 | $0 | $271,035 | $271,035 |
| 2018 | $101,344 | $140,000 | $0 | $241,344 | $241,344 |
| 2017 | $101,962 | $90,000 | $0 | $191,962 | $191,962 |
| 2016 | $103,198 | $65,000 | $0 | $168,198 | $168,198 |
| 2015 | $93,563 | $50,000 | $0 | $143,563 | $143,563 |
| 2014 | $94,799 | $50,000 | $0 | $144,799 | $144,799 |
| 2013 | $96,036 | $50,000 | $0 | $146,036 | $146,036 |
| 2012 | $97,271 | $56,000 | $0 | $153,271 | $153,271 |
| 2011 | $98,508 | $70,000 | $0 | $168,508 | $168,508 |
| 2010 | $100,057 | $70,000 | $0 | $170,057 | $170,057 |
| 2009 | $110,639 | $90,000 | $0 | $200,639 | $200,639 |
| 2008 | $112,169 | $100,000 | $0 | $212,169 | $212,169 |
| 2007 | $113,746 | $100,000 | $0 | $213,746 | $213,746 |
Deed and Sales History
| 1 | 10/13/2021 | WD | Warranty Deed | CRABTREE, BRIAN L | FEI, JINHUA | | | $382,000.00 | 50562 | 4531843 |
| 2 | 10/11/2005 | 5 | DNU - Marriage License/Name Change | CRABTREE, BRIAN L | CRABTREE, BRIAN L | | | $0.00 | 55301 | 4151490 |
| 3 | 10/01/1991 | WD | Warranty Deed | JOHNSON, DAVID B | CRABTREE, BRIAN L | | | $92,950.00 | 13788 | 91016168 |
| 4 | 09/01/1990 | WD | Warranty Deed | TAYLOR, ANNETTE C | JOHNSON, DAVID B | | | $18,500.00 | 5571 | 90018638 |
| 5 | 06/01/1990 | WD | Warranty Deed | VIANCOUR, ALBERT D | TAYLOR, ANNETTE C | | | $12,000.00 | 3520 | 90011414 |
| 6 | 01/01/1900 | OTHER | Other - Misc. Documents | Unknown | VIANCOUR, ALBERT D | | | $0.00 | 0 | 0 |
Payout Agreement
| No payout information available.. |