Property
Account |
| Property ID: | 216251 | Abbreviated Legal Description: | CCC 18 LOT 15 BLK 27 |
| Geographic ID: | S6250-18-27015-0 | Agent Code: | |
| Type: | Real | | |
| Tax Area: | 510 - APPRAISER-Stan/Cam Schl Dist, improved & 1 acre or less | Land Use Code | 11 |
| Open Space: | N | DFL | N |
| Historic Property: | N | Remodel Property: | N |
| Multi-Family Redevelopment: | N | | |
| Township: | | Section: | |
| Range: | |
Location |
| Address: | 1906 S EAST CAMANO DR CAMANO ISLAND, WA 98282 | Mapsco: | |
| Neighborhood: | Cycle 5 | Map ID: | 933 |
| Neighborhood CD: | 5 |
Owner |
| Name: | BLACKSTOCK, EARL G III | Owner ID: | 282396 |
| Mailing Address: | ROBIN J BLACKSTOCK 1906 S EAST CAMANO DR CAMANO ISLAND, WA 98282 | % Ownership: | 100.0000000000% |
| | | Exemptions: | |
Taxes and Assessment Details
Values
| (+) Improvement Homesite Value: | + | $0 | |
| (+) Improvement Non-Homesite Value: | + | $350,471 | |
| (+) Land Homesite Value: | + | $0 | |
| (+) Land Non-Homesite Value: | + | $250,000 | |
| (+) Curr Use (HS): | + | $0 | $0 |
| (+) Curr Use (NHS): | + | $0 | $0 |
| | | -------------------------- | |
| (=) Market Value: | = | $600,471 | |
| (–) Productivity Loss: | – | $0 | |
| | | -------------------------- | |
| (=) Subtotal: | = | $600,471 | |
| (+) Senior Appraised Value: | + | $0 | |
| (+) Non-Senior Appraised Value: | + | $600,471 | |
| | | -------------------------- | |
| (=) Total Appraised Value: | = | $600,471 | |
| (–) Senior Exemption Loss: | – | $0 | |
| (–) Exemption Loss: | – | $0 | |
| | | -------------------------- | |
| (=) Taxable Value: | = | $600,471 | |
Taxing Jurisdiction
| Owner: | BLACKSTOCK, EARL G III | | |
| % Ownership: | 100.0000000000% | | |
| Total Value: | $600,471 | | |
| Tax Area: | 510 - APPRAISER-Stan/Cam Schl Dist, improved & 1 acre or less |
| CF | Conservation Futures | 0.0313996660 | $600,471 | $600,471 | $18.85 | | |
| EMS1 | Fire & Rescue Dist #1 Camano GEN (EMS) | 0.4998471806 | $600,471 | $600,471 | $300.14 | | |
| FIRE1 | Fire & Rescue Dist #1 Camano GEN | 1.2496603404 | $600,471 | $600,471 | $750.38 | | |
| FIRE1BOND | Fire & Rescue Dist #1 Camano BOND | 0.1630371212 | $600,471 | $600,471 | $97.90 | | |
| CE | County Current Expense | 0.3674210519 | $600,471 | $600,471 | $220.63 | | |
| CR | County Roads | 0.4614296361 | $600,471 | $600,471 | $277.08 | | |
| LIB | Library Sno-Isle GEN | 0.3039084203 | $600,471 | $600,471 | $182.49 | | |
| SCH205_401 | School 205-401 Enrichment | 1.3697998934 | $600,471 | $600,471 | $822.53 | | |
| SCH205BOND | School 205-401 BOND | 0.9354199323 | $600,471 | $600,471 | $561.69 | | |
| ST | State School | 1.4761226122 | $600,471 | $600,471 | $886.37 | | |
| ST2 | State School Part 2 | 0.7953803475 | $600,471 | $600,471 | $477.60 | | |
| | Total Tax Rate: | 7.6534262019 | | | | | |
| | | | | Taxes w/Current Exemptions: | $4,595.66 | | |
| | | | | Taxes w/o Exemptions: | $4,595.66 | | |
Improvement / Building
| Improvement #1: | RESIDENTIAL | State Code: | Y | 1500.0 sqft | Value: | $350,471 |
| Bathrooms: | 2 | Bedrooms: | 2 | | Ceiling: | DRYWALL PAINTED | Exterior Wall/Cover: | CEMENT FIBER | | Floor Covering: | CARPET/VINYL 20-80 | Floor Structure: | WOOD W/SUBFLOOR | | Foundation: | CONCRETE | Heating: | FHA GAS | | Interior Finish: | DRYWALL PAINT | Plumbing Fixture Cnt: | 9 | | Roof Slope: | 6" IN 12" | Roof Structure/Cover: | CJ ASPHALT |
|
| | Type | Description | Class CD | Sub Class CD | Year Built | Area |
| | BAS | BASE/MAIN FLOOR | 4 | 0 | 2017 | 1500.0 |
| | AGR | ATTACHED GARAGE | 4 | 0 | 2017 | 484.0 |
| | OWC | OPEN WOOD PORCH W/STEPS/ROOF/C | 4 | 0 | 2017 | 144.0 |
Sketch
Property Image
Land
| 1 | 14 | SQ (08001-12000) | 0.0000 | 0.00 | 0.00 | 0.00 | 1.00 | $250,000 | $0 |
Roll Value History
| 2026 | N/A | N/A | N/A | N/A | N/A |
| 2025 | $350,471 | $250,000 | $0 | $600,471 | $600,471 |
| 2024 | $353,320 | $250,000 | $0 | $603,320 | $603,320 |
| 2023 | $356,169 | $210,000 | $0 | $566,169 | $566,169 |
| 2022 | $325,094 | $200,000 | $0 | $525,094 | $525,094 |
| 2021 | $282,692 | $140,000 | $0 | $422,692 | $422,692 |
| 2020 | $274,163 | $120,000 | $0 | $394,163 | $394,163 |
| 2019 | $203,978 | $170,000 | $0 | $373,978 | $373,978 |
| 2018 | $204,498 | $140,000 | $0 | $344,498 | $344,498 |
| 2017 | $155,702 | $50,000 | $0 | $205,702 | $205,702 |
| 2016 | $0 | $45,000 | $0 | $45,000 | $45,000 |
| 2015 | $0 | $2,000 | $0 | $2,000 | $2,000 |
| 2014 | $0 | $5,000 | $0 | $5,000 | $5,000 |
| 2013 | $0 | $5,000 | $0 | $5,000 | $5,000 |
| 2012 | $0 | $3,000 | $0 | $3,000 | $3,000 |
| 2011 | $0 | $3,000 | $0 | $3,000 | $3,000 |
| 2010 | $0 | $3,000 | $0 | $3,000 | $3,000 |
| 2009 | $0 | $7,465 | $0 | $7,465 | $7,465 |
| 2008 | $0 | $22,500 | $0 | $22,500 | $22,500 |
| 2007 | $0 | $22,500 | $0 | $22,500 | $22,500 |
Deed and Sales History
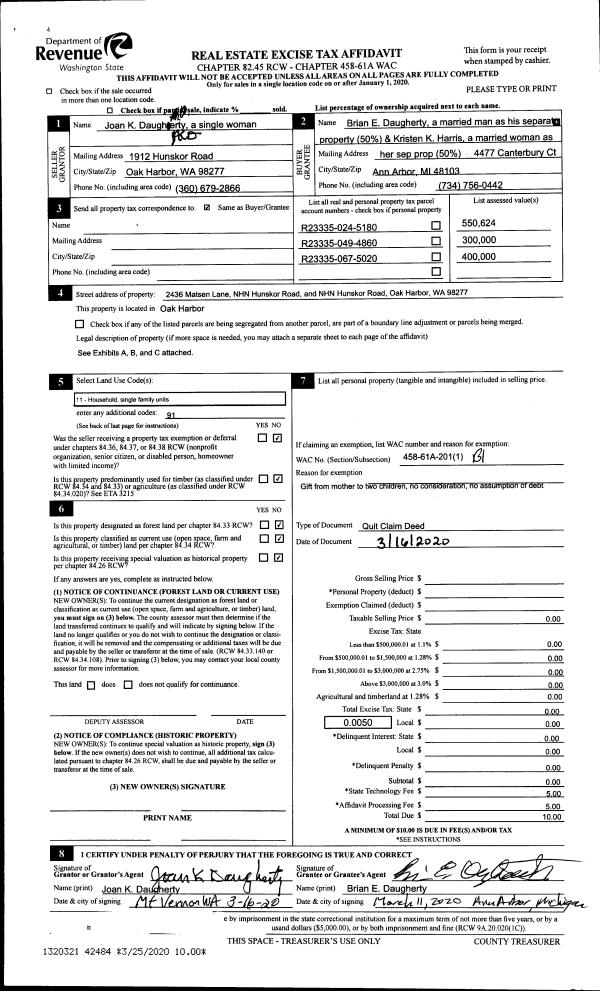
| 1 | 12/23/2019 | QCD | Quit Claim Deed | BLACKSTOCK, EARL G III | BLACKSTOCK, EARL G III | | | $0.00 | 41715 | 4478749 |
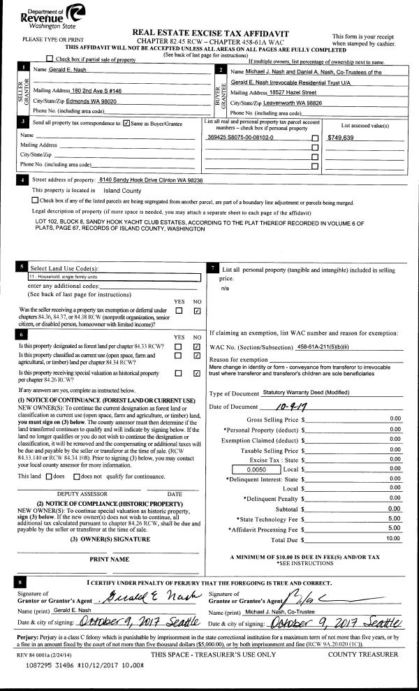
| 2 | 10/11/2017 | WD | Warranty Deed | NW BUILDERS INC | BLACKSTOCK, EARL G III | | | $379,000.00 | 31485 | 4431953 |
| 3 | 01/25/2017 | WD | Warranty Deed | WANGSNESS, NORMAN M | NW BUILDERS INC | | | $38,000.00 | 27932 | 4416261 |
| 4 | 10/08/1998 | QCD | Quit Claim Deed | WANGSNESS, HOWARD N | WANGSNESS, NORMAN M | | | $0.00 | 84062 | 98023866 |
| 5 | 08/01/1995 | WD | Warranty Deed | METCALF, PEGGY M | WANGSNESS, HOWARD N | | | $12,000.00 | 52825 | 95013016 |
| 6 | 07/01/1988 | TTAXD | Treasurer's Tax Deed | DIETRICH, WILLIAM K | METCALF, PEGGY M | | | $0.00 | 62746 | 88008795 |
| 7 | 03/01/1978 | TRUSTEED | Trustee's Deed | Unknown | DIETRICH, WILLIAM K | | | $5,000.00 | 80944 | 0 |
Payout Agreement
| No payout information available.. |