Property
Account |
| Property ID: | 216395 | Abbreviated Legal Description: | CCC 18 LOTS 29 & 30 BLK 27 |
| Geographic ID: | S6250-18-27029-0 | Agent Code: | |
| Type: | Real | | |
| Tax Area: | 510 - APPRAISER-Stan/Cam Schl Dist, improved & 1 acre or less | Land Use Code | 11 |
| Open Space: | N | DFL | N |
| Historic Property: | N | Remodel Property: | N |
| Multi-Family Redevelopment: | N | | |
| Township: | | Section: | |
| Range: | |
Location |
| Address: | 1961 EDGEWOOD DR CAMANO ISLAND, WA 98282 | Mapsco: | |
| Neighborhood: | Cycle 5 | Map ID: | 933 |
| Neighborhood CD: | 5 |
Owner |
| Name: | BROWN, ASHLEY | Owner ID: | 299076 |
| Mailing Address: | SHAWN BROWN 1035 NEW MORNING RD CAMANO ISLAND, WA 98282 | % Ownership: | 100.0000000000% |
| | | Exemptions: | |
Taxes and Assessment Details
Values
| (+) Improvement Homesite Value: | + | $0 | |
| (+) Improvement Non-Homesite Value: | + | $309,724 | |
| (+) Land Homesite Value: | + | $0 | |
| (+) Land Non-Homesite Value: | + | $250,000 | |
| (+) Curr Use (HS): | + | $0 | $0 |
| (+) Curr Use (NHS): | + | $0 | $0 |
| | | -------------------------- | |
| (=) Market Value: | = | $559,724 | |
| (–) Productivity Loss: | – | $0 | |
| | | -------------------------- | |
| (=) Subtotal: | = | $559,724 | |
| (+) Senior Appraised Value: | + | $0 | |
| (+) Non-Senior Appraised Value: | + | $559,724 | |
| | | -------------------------- | |
| (=) Total Appraised Value: | = | $559,724 | |
| (–) Senior Exemption Loss: | – | $0 | |
| (–) Exemption Loss: | – | $0 | |
| | | -------------------------- | |
| (=) Taxable Value: | = | $559,724 | |
Taxing Jurisdiction
| Owner: | BROWN, ASHLEY | | |
| % Ownership: | 100.0000000000% | | |
| Total Value: | $559,724 | | |
| Tax Area: | 510 - APPRAISER-Stan/Cam Schl Dist, improved & 1 acre or less |
| CF | Conservation Futures | 0.0313996660 | $559,724 | $559,724 | $17.58 | | |
| EMS1 | Fire & Rescue Dist #1 Camano GEN (EMS) | 0.4998471806 | $559,724 | $559,724 | $279.78 | | |
| FIRE1 | Fire & Rescue Dist #1 Camano GEN | 1.2496603404 | $559,724 | $559,724 | $699.46 | | |
| FIRE1BOND | Fire & Rescue Dist #1 Camano BOND | 0.1630371212 | $559,724 | $559,724 | $91.26 | | |
| CE | County Current Expense | 0.3674210519 | $559,724 | $559,724 | $205.65 | | |
| CR | County Roads | 0.4614296361 | $559,724 | $559,724 | $258.27 | | |
| LIB | Library Sno-Isle GEN | 0.3039084203 | $559,724 | $559,724 | $170.10 | | |
| SCH205_401 | School 205-401 Enrichment | 1.3697998934 | $559,724 | $559,724 | $766.71 | | |
| SCH205BOND | School 205-401 BOND | 0.9354199323 | $559,724 | $559,724 | $523.58 | | |
| ST | State School | 1.4761226122 | $559,724 | $559,724 | $826.22 | | |
| ST2 | State School Part 2 | 0.7953803475 | $559,724 | $559,724 | $445.19 | | |
| | Total Tax Rate: | 7.6534262019 | | | | | |
| | | | | Taxes w/Current Exemptions: | $4,283.80 | | |
| | | | | Taxes w/o Exemptions: | $4,283.80 | | |
Improvement / Building
| Improvement #1: | RESIDENTIAL | State Code: | Y | 1527.0 sqft | Value: | $309,724 |
| Bathrooms: | 2 | Bedrooms: | 2 | | Ceiling: | DRYWALL PAINTED | Cooling: | HEAT PUMP/CONV/V | | Exterior Wall/Cover: | CEMENT FIBER | Floor Covering: | CARPET/VINYL 80-20 | | Floor Structure: | WOOD W/SUBFLOOR | Foundation: | CONCRETE | | Interior Finish: | DRYWALL PAINT | Plumbing Fixture Cnt: | 10 | | Roof Slope: | 5" IN 12" | Roof Structure/Cover: | CJ ASPHALT |
|
| | Type | Description | Class CD | Sub Class CD | Year Built | Area |
| | BAS | BASE/MAIN FLOOR | 3 | 0 | 1991 | 1527.0 |
| | OP4 | OPEN PORCH W/CEILING-ROOF | 3 | 0 | 1991 | 20.0 |
| | AGR | ATTACHED GARAGE | 3 | 0 | 1991 | 552.0 |
| | OWR | OPEN WOOD PORCH W/STEPS/ROOF | 3 | 0 | 1991 | 512.0 |
Sketch
Property Image
Land
| 1 | 15 | SQ (12001-21780) | 0.0000 | 0.00 | 0.00 | 0.00 | 1.00 | $250,000 | $0 |
Roll Value History
| 2026 | N/A | N/A | N/A | N/A | N/A |
| 2025 | $309,724 | $250,000 | $0 | $559,724 | $559,724 |
| 2024 | $313,358 | $250,000 | $0 | $563,358 | $563,358 |
| 2023 | $316,992 | $210,000 | $0 | $526,992 | $526,992 |
| 2022 | $290,323 | $200,000 | $0 | $490,323 | $490,323 |
| 2021 | $238,156 | $140,000 | $0 | $378,156 | $378,156 |
| 2020 | $231,880 | $120,000 | $0 | $351,880 | $351,880 |
| 2019 | $168,020 | $170,000 | $0 | $338,020 | $338,020 |
| 2018 | $168,512 | $140,000 | $0 | $308,512 | $308,512 |
| 2017 | $145,638 | $90,000 | $0 | $235,638 | $235,638 |
| 2016 | $147,458 | $65,000 | $0 | $212,458 | $212,458 |
| 2015 | $142,320 | $50,000 | $0 | $192,320 | $192,320 |
| 2014 | $144,176 | $50,000 | $0 | $194,176 | $194,176 |
| 2013 | $146,032 | $50,000 | $0 | $196,032 | $196,032 |
| 2012 | $147,888 | $56,000 | $0 | $203,888 | $203,888 |
| 2011 | $149,743 | $70,000 | $0 | $219,743 | $219,743 |
| 2010 | $156,017 | $70,000 | $0 | $226,017 | $226,017 |
| 2009 | $166,715 | $90,000 | $0 | $256,715 | $256,715 |
| 2008 | $168,834 | $125,000 | $0 | $293,834 | $293,834 |
| 2007 | $171,015 | $100,000 | $0 | $271,015 | $271,015 |
Deed and Sales History
| 1 | 04/23/2021 | WD | Warranty Deed | FINSEN, DAN J | BROWN, ASHLEY | | | $550,000.00 | 47968 | 4517599 |
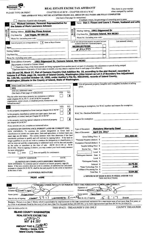
| 2 | 04/24/2017 | WD | Warranty Deed | JOHNSON, MARK LAWRENCE | FINSEN, DAN J | | | $291,000.00 | 29160 | 4421902 |
| 3 | 06/08/2015 | QCD | Quit Claim Deed | JOHNSEN, MARK LAWRENCE | JOHNSON, MARK LAWRENCE | | | $0.00 | 23125 | 4393966 |
| 4 | 09/08/2014 | WD | Warranty Deed | KOEHN, LESLIE D | JOHNSEN, MARK LAWRENCE | | | $199,900.00 | 16840 | 4365702 |
| 5 | 05/30/2014 | CPADC | Comm Prop Agmnt & Death Cert | KOEHN, ARNOLD H & LESLIE D | KOEHN, LESLIE D | | | | 84947 | 4354833 |
| 6 | 06/01/1991 | WD | Warranty Deed | TOUSLEY, KIRK L | KOEHN, ARNOLD H | | | $20,000.00 | 12104 | 91008908 |
| 7 | 10/01/1990 | OTHER | Other - Misc. Documents | TOUSLEY, KIRK L | TOUSLEY, KIRK L | | | $0.00 | 63910 | 90019440 |
| 8 | 01/01/1900 | OTHER | Other - Misc. Documents | Unknown | TOUSLEY, KIRK L | | | $0.00 | 0 | 0 |
Payout Agreement
| No payout information available.. |