Property
Account |
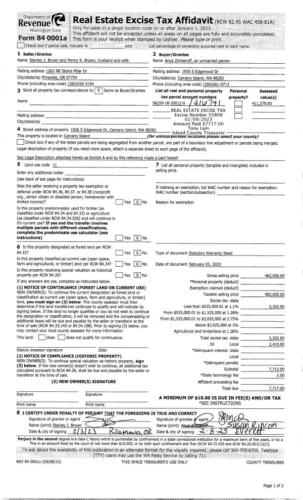
| Property ID: | 216741 | Abbreviated Legal Description: | CCC 18 LOT 12 BLK 30 |
| Geographic ID: | S6250-18-30012-0 | Agent Code: | |
| Type: | Real | | |
| Tax Area: | 510 - APPRAISER-Stan/Cam Schl Dist, improved & 1 acre or less | Land Use Code | 11 |
| Open Space: | N | DFL | N |
| Historic Property: | N | Remodel Property: | N |
| Multi-Family Redevelopment: | N | | |
| Township: | | Section: | |
| Range: | |
Location |
| Address: | 1936 EDGEWOOD DR CAMANO ISLAND, WA 98282 | Mapsco: | |
| Neighborhood: | Cycle 5 | Map ID: | 933 |
| Neighborhood CD: | 5 |
Owner |
| Name: | ZIMBEROFF, ANYA | Owner ID: | 307539 |
| Mailing Address: | 1386 BONNIE LN CAMANO ISLAND, WA 98282 | % Ownership: | 100.0000000000% |
| | | Exemptions: | |
Taxes and Assessment Details
Values
| (+) Improvement Homesite Value: | + | $0 | |
| (+) Improvement Non-Homesite Value: | + | $237,303 | |
| (+) Land Homesite Value: | + | $0 | |
| (+) Land Non-Homesite Value: | + | $250,000 | |
| (+) Curr Use (HS): | + | $0 | $0 |
| (+) Curr Use (NHS): | + | $0 | $0 |
| | | -------------------------- | |
| (=) Market Value: | = | $487,303 | |
| (–) Productivity Loss: | – | $0 | |
| | | -------------------------- | |
| (=) Subtotal: | = | $487,303 | |
| (+) Senior Appraised Value: | + | $0 | |
| (+) Non-Senior Appraised Value: | + | $487,303 | |
| | | -------------------------- | |
| (=) Total Appraised Value: | = | $487,303 | |
| (–) Senior Exemption Loss: | – | $0 | |
| (–) Exemption Loss: | – | $0 | |
| | | -------------------------- | |
| (=) Taxable Value: | = | $487,303 | |
Taxing Jurisdiction
| Owner: | ZIMBEROFF, ANYA | | |
| % Ownership: | 100.0000000000% | | |
| Total Value: | $487,303 | | |
| Tax Area: | 510 - APPRAISER-Stan/Cam Schl Dist, improved & 1 acre or less |
| CF | Conservation Futures | 0.0313996660 | $487,303 | $487,303 | $15.30 | | |
| EMS1 | Fire & Rescue Dist #1 Camano GEN (EMS) | 0.4998471806 | $487,303 | $487,303 | $243.58 | | |
| FIRE1 | Fire & Rescue Dist #1 Camano GEN | 1.2496603404 | $487,303 | $487,303 | $608.96 | | |
| FIRE1BOND | Fire & Rescue Dist #1 Camano BOND | 0.1630371212 | $487,303 | $487,303 | $79.45 | | |
| CE | County Current Expense | 0.3674210519 | $487,303 | $487,303 | $179.05 | | |
| CR | County Roads | 0.4614296361 | $487,303 | $487,303 | $224.86 | | |
| LIB | Library Sno-Isle GEN | 0.3039084203 | $487,303 | $487,303 | $148.10 | | |
| SCH205_401 | School 205-401 Enrichment | 1.3697998934 | $487,303 | $487,303 | $667.51 | | |
| SCH205BOND | School 205-401 BOND | 0.9354199323 | $487,303 | $487,303 | $455.83 | | |
| ST | State School | 1.4761226122 | $487,303 | $487,303 | $719.32 | | |
| ST2 | State School Part 2 | 0.7953803475 | $487,303 | $487,303 | $387.59 | | |
| | Total Tax Rate: | 7.6534262019 | | | | | |
| | | | | Taxes w/Current Exemptions: | $3,729.55 | | |
| | | | | Taxes w/o Exemptions: | $3,729.55 | | |
Improvement / Building
| Improvement #1: | RESIDENTIAL | State Code: | Y | 1104.0 sqft | Value: | $237,303 |
| Bathrooms: | 2 | Bedrooms: | 3 | | Ceiling: | DRYWALL PAINTED | Exterior Wall/Cover: | PLY/HARDBOARD T-111 | | Floor Covering: | SOFTWOOD 100% | Floor Structure: | WOOD W/SUBFLOOR | | Foundation: | CONCRETE | Heating: | FHA ELECTRIC | | Interior Finish: | DRYWALL PAINT | Plumbing Fixture Cnt: | 9 | | Roof Slope: | 4" IN 12" | Roof Structure/Cover: | CJ ASPHALT |
|
| | Type | Description | Class CD | Sub Class CD | Year Built | Area |
| | BAS | BASE/MAIN FLOOR | 3 | 0 | 1995 | 1104.0 |
| | OP1 | OPEN PORCH SLAB | 3 | 0 | 1995 | 100.0 |
| | OP3 | OPEN PORCH W/ROOF | 3 | 0 | 1995 | 18.0 |
| | AGR | ATTACHED GARAGE | 3 | 0 | 1995 | 480.0 |
Sketch
Property Image
Land
| 1 | 14 | SQ (08001-12000) | 0.0000 | 0.00 | 0.00 | 0.00 | 1.00 | $250,000 | $0 |
Roll Value History
| 2026 | N/A | N/A | N/A | N/A | N/A |
| 2025 | $237,303 | $250,000 | $0 | $487,303 | $487,303 |
| 2024 | $240,152 | $250,000 | $0 | $490,152 | $490,152 |
| 2023 | $243,002 | $210,000 | $0 | $453,002 | $453,002 |
| 2022 | $211,379 | $200,000 | $0 | $411,379 | $411,379 |
| 2021 | $173,149 | $140,000 | $0 | $313,149 | $313,149 |
| 2020 | $168,301 | $120,000 | $0 | $288,301 | $288,301 |
| 2019 | $118,805 | $170,000 | $0 | $288,805 | $288,805 |
| 2018 | $119,161 | $140,000 | $0 | $259,161 | $259,161 |
| 2017 | $119,875 | $90,000 | $0 | $209,875 | $209,875 |
| 2016 | $121,303 | $65,000 | $0 | $186,303 | $186,303 |
| 2015 | $109,638 | $50,000 | $0 | $159,638 | $159,638 |
| 2014 | $111,008 | $50,000 | $0 | $161,008 | $161,008 |
| 2013 | $112,381 | $50,000 | $0 | $162,381 | $162,381 |
| 2012 | $113,751 | $56,000 | $0 | $169,751 | $169,751 |
| 2011 | $115,124 | $70,000 | $0 | $185,124 | $185,124 |
| 2010 | $118,391 | $70,000 | $0 | $188,391 | $188,391 |
| 2009 | $133,891 | $90,000 | $0 | $223,891 | $223,891 |
| 2008 | $135,688 | $100,000 | $0 | $235,688 | $235,688 |
| 2007 | $137,486 | $100,000 | $0 | $237,486 | $237,486 |
Deed and Sales History
| 1 | 02/03/2023 | WD | Warranty Deed | BROWN, STANLEY J / PENNEY R | ZIMBEROFF, ANYA | | | $482,000.00 | 55806 | 4556541 |
| 2 | 09/01/1995 | WD | Warranty Deed | JOHNSON, DAVID B | BROWN, STANLEY J | | | $117,500.00 | 53287 | 95015183 |
| 3 | 12/01/1994 | WD | Warranty Deed | REBHUHN, JOAN C | JOHNSON, DAVID B | | | $23,500.00 | 44894 | 94024973 |
| 4 | 06/01/1981 | QCD | Quit Claim Deed | REBHUHN, GREGORY R | REBHUHN, JOAN C | | | $0.00 | 51603 | 85006435 |
| 5 | 01/01/1900 | OTHER | Other - Misc. Documents | Unknown | REBHUHN, GREGORY R | | | $0.00 | 0 | 0 |
Payout Agreement
| No payout information available.. |