Property
Account |
| Property ID: | 217009 | Abbreviated Legal Description: | CCC 19 LOT 6 BLK 32 |
| Geographic ID: | S6250-19-32006-0 | Agent Code: | |
| Type: | Real | | |
| Tax Area: | 510 - APPRAISER-Stan/Cam Schl Dist, improved & 1 acre or less | Land Use Code | 11 |
| Open Space: | N | DFL | N |
| Historic Property: | N | Remodel Property: | N |
| Multi-Family Redevelopment: | N | | |
| Township: | | Section: | |
| Range: | |
Location |
| Address: | 1847 EDGEWOOD DR CAMANO ISLAND, WA 98282 | Mapsco: | |
| Neighborhood: | Cycle 5 | Map ID: | 933 |
| Neighborhood CD: | 5 |
Owner |
| Name: | VANHORN, TROY LEE | Owner ID: | 297261 |
| Mailing Address: | VICTORIA LYNN VANHORN 1847 EDGEWOOD DR CAMANO ISLAND, WA 98282 | % Ownership: | 100.0000000000% |
| | | Exemptions: | |
Taxes and Assessment Details
Values
| (+) Improvement Homesite Value: | + | $0 | |
| (+) Improvement Non-Homesite Value: | + | $314,554 | |
| (+) Land Homesite Value: | + | $0 | |
| (+) Land Non-Homesite Value: | + | $390,000 | |
| (+) Curr Use (HS): | + | $0 | $0 |
| (+) Curr Use (NHS): | + | $0 | $0 |
| | | -------------------------- | |
| (=) Market Value: | = | $704,554 | |
| (–) Productivity Loss: | – | $0 | |
| | | -------------------------- | |
| (=) Subtotal: | = | $704,554 | |
| (+) Senior Appraised Value: | + | $0 | |
| (+) Non-Senior Appraised Value: | + | $704,554 | |
| | | -------------------------- | |
| (=) Total Appraised Value: | = | $704,554 | |
| (–) Senior Exemption Loss: | – | $0 | |
| (–) Exemption Loss: | – | $0 | |
| | | -------------------------- | |
| (=) Taxable Value: | = | $704,554 | |
Taxing Jurisdiction
| Owner: | VANHORN, TROY LEE | | |
| % Ownership: | 100.0000000000% | | |
| Total Value: | $704,554 | | |
| Tax Area: | 510 - APPRAISER-Stan/Cam Schl Dist, improved & 1 acre or less |
| CF | Conservation Futures | 0.0313996660 | $704,554 | $704,554 | $22.12 | | |
| EMS1 | Fire & Rescue Dist #1 Camano GEN (EMS) | 0.4998471806 | $704,554 | $704,554 | $352.17 | | |
| FIRE1 | Fire & Rescue Dist #1 Camano GEN | 1.2496603404 | $704,554 | $704,554 | $880.45 | | |
| FIRE1BOND | Fire & Rescue Dist #1 Camano BOND | 0.1630371212 | $704,554 | $704,554 | $114.87 | | |
| CE | County Current Expense | 0.3674210519 | $704,554 | $704,554 | $258.87 | | |
| CR | County Roads | 0.4614296361 | $704,554 | $704,554 | $325.10 | | |
| LIB | Library Sno-Isle GEN | 0.3039084203 | $704,554 | $704,554 | $214.12 | | |
| SCH205_401 | School 205-401 Enrichment | 1.3697998934 | $704,554 | $704,554 | $965.10 | | |
| SCH205BOND | School 205-401 BOND | 0.9354199323 | $704,554 | $704,554 | $659.05 | | |
| ST | State School | 1.4761226122 | $704,554 | $704,554 | $1,040.01 | | |
| ST2 | State School Part 2 | 0.7953803475 | $704,554 | $704,554 | $560.39 | | |
| | Total Tax Rate: | 7.6534262019 | | | | | |
| | | | | Taxes w/Current Exemptions: | $5,392.25 | | |
| | | | | Taxes w/o Exemptions: | $5,392.25 | | |
Improvement / Building
| Improvement #1: | RESIDENTIAL | State Code: | Y | 1659.0 sqft | Value: | $314,554 |
| Bathrooms: | 2 | Bedrooms: | 2 | | Ceiling: | DRY WALL SPRAYED | Exterior Wall/Cover: | WOOD SIDING | | Floor Covering: | CARPET/VINYL 80-20 | Floor Structure: | WOOD W/SUBFLOOR | | Foundation: | CONCRETE | Heating: | FHA GAS | | Interior Finish: | DRYWALL PAINT | Plumbing Fixture Cnt: | 9 | | Roof Slope: | 4" IN 12" | Roof Structure/Cover: | CJ ASPHALT |
|
| | Type | Description | Class CD | Sub Class CD | Year Built | Area |
| | BAS | BASE/MAIN FLOOR | 3 | 0 | 1977 | 1659.0 |
| | OP4 | OPEN PORCH W/CEILING-ROOF | 3 | 0 | 1977 | 16.0 |
| | AGR | ATTACHED GARAGE | 3 | 0 | 1977 | 650.0 |
| | OWP | OPEN WOOD PORCH W/STEPS | 3 | 0 | 1977 | 376.0 |
| | OWP | OPEN WOOD PORCH W/STEPS | 3 | 0 | 1977 | 106.0 |
| | ENP | ENCLOSED PORCH | 3 | 0 | 1977 | 144.0 |
Sketch
Property Image
Land
| 1 | 14 | SQ (08001-12000) | 0.0000 | 0.00 | 0.00 | 0.00 | 1.00 | $390,000 | $0 |
Roll Value History
| 2026 | N/A | N/A | N/A | N/A | N/A |
| 2025 | $314,554 | $390,000 | $0 | $704,554 | $704,554 |
| 2024 | $318,334 | $360,000 | $0 | $678,334 | $678,334 |
| 2023 | $322,112 | $330,000 | $0 | $652,112 | $652,112 |
| 2022 | $295,097 | $300,000 | $0 | $595,097 | $595,097 |
| 2021 | $259,576 | $200,000 | $0 | $459,576 | $459,576 |
| 2020 | $195,608 | $180,000 | $0 | $375,608 | $375,608 |
| 2019 | $144,013 | $230,000 | $0 | $374,013 | $374,013 |
| 2018 | $144,533 | $200,000 | $0 | $344,533 | $344,533 |
| 2017 | $145,574 | $200,000 | $0 | $345,574 | $345,574 |
| 2016 | $147,652 | $110,000 | $0 | $257,652 | $257,652 |
| 2015 | $136,583 | $80,000 | $0 | $216,583 | $216,583 |
| 2014 | $138,712 | $80,000 | $0 | $218,712 | $218,712 |
| 2013 | $140,841 | $80,000 | $0 | $220,841 | $220,841 |
| 2012 | $142,969 | $86,304 | $0 | $229,273 | $229,273 |
| 2011 | $145,095 | $107,880 | $0 | $252,975 | $252,975 |
| 2010 | $157,703 | $107,880 | $0 | $265,583 | $265,583 |
| 2009 | $165,754 | $130,000 | $0 | $295,754 | $295,754 |
| 2008 | $168,024 | $146,000 | $0 | $314,024 | $314,024 |
| 2007 | $170,292 | $146,000 | $0 | $316,292 | $316,292 |
Deed and Sales History
| 1 | 10/27/2020 | WD | Warranty Deed | THOMPSON, LYNETTE P | VANHORN, TROY LEE | | | $465,500.00 | 45431 | 4500687 |
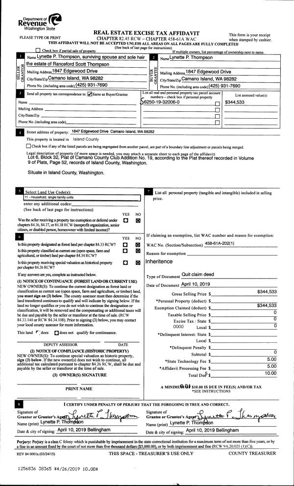
| 2 | 05/02/2019 | QCD | Quit Claim Deed | THOMPSON, RANCEFORD S | THOMPSON, LYNETTE P | | | $0.00 | 38365 | 4462709 |
| 3 | 11/03/1999 | WD | Warranty Deed | SHUMAN, HOWARD H | THOMPSON, RANCEFORD S | | | $171,000.00 | 94676 | 99026099 |
| 4 | 02/01/1993 | WD | Warranty Deed | KOHL, EDNA D | SHUMAN, HOWARD H | | | $150,000.00 | 30541 | 93002953 |
| 5 | 10/01/1991 | OTHER | Other - Misc. Documents | KOHL, HARRY W | KOHL, EDNA D | | | $0.00 | 64505 | 91004166 |
| 6 | 01/01/1900 | OTHER | Other - Misc. Documents | Unknown | KOHL, HARRY W | | | $0.00 | 0 | 0 |
Payout Agreement
| No payout information available.. |