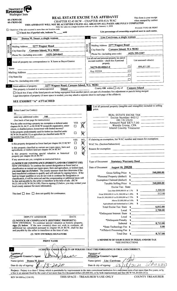
Property
Account |
| Property ID: | 217704 | Abbreviated Legal Description: | CCC 20 LOT 11 BLK 36 |
| Geographic ID: | S6250-20-36011-0 | Agent Code: | |
| Type: | Real | | |
| Tax Area: | 510 - APPRAISER-Stan/Cam Schl Dist, improved & 1 acre or less | Land Use Code | 11 |
| Open Space: | N | DFL | N |
| Historic Property: | N | Remodel Property: | N |
| Multi-Family Redevelopment: | N | | |
| Township: | | Section: | |
| Range: | |
Location |
| Address: | 1852 ELHARDT ST CAMANO ISLAND, WA 98282 | Mapsco: | |
| Neighborhood: | Cycle 5 | Map ID: | 933 |
| Neighborhood CD: | 5 |
Owner |
| Name: | COOPER, GREGORY T. | Owner ID: | 306242 |
| Mailing Address: | 1852 S ELHARDT CAMANO ISLAND, WA 98282 | % Ownership: | 100.0000000000% |
| | | Exemptions: | |
Taxes and Assessment Details
Values
| (+) Improvement Homesite Value: | + | $0 | |
| (+) Improvement Non-Homesite Value: | + | $433,423 | |
| (+) Land Homesite Value: | + | $0 | |
| (+) Land Non-Homesite Value: | + | $250,000 | |
| (+) Curr Use (HS): | + | $0 | $0 |
| (+) Curr Use (NHS): | + | $0 | $0 |
| | | -------------------------- | |
| (=) Market Value: | = | $683,423 | |
| (–) Productivity Loss: | – | $0 | |
| | | -------------------------- | |
| (=) Subtotal: | = | $683,423 | |
| (+) Senior Appraised Value: | + | $0 | |
| (+) Non-Senior Appraised Value: | + | $683,423 | |
| | | -------------------------- | |
| (=) Total Appraised Value: | = | $683,423 | |
| (–) Senior Exemption Loss: | – | $0 | |
| (–) Exemption Loss: | – | $0 | |
| | | -------------------------- | |
| (=) Taxable Value: | = | $683,423 | |
Taxing Jurisdiction
| Owner: | COOPER, GREGORY T. | | |
| % Ownership: | 100.0000000000% | | |
| Total Value: | $683,423 | | |
| Tax Area: | 510 - APPRAISER-Stan/Cam Schl Dist, improved & 1 acre or less |
| CF | Conservation Futures | 0.0313996660 | $683,423 | $683,423 | $21.46 | | |
| EMS1 | Fire & Rescue Dist #1 Camano GEN (EMS) | 0.4998471806 | $683,423 | $683,423 | $341.61 | | |
| FIRE1 | Fire & Rescue Dist #1 Camano GEN | 1.2496603404 | $683,423 | $683,423 | $854.05 | | |
| FIRE1BOND | Fire & Rescue Dist #1 Camano BOND | 0.1630371212 | $683,423 | $683,423 | $111.42 | | |
| CE | County Current Expense | 0.3674210519 | $683,423 | $683,423 | $251.10 | | |
| CR | County Roads | 0.4614296361 | $683,423 | $683,423 | $315.35 | | |
| LIB | Library Sno-Isle GEN | 0.3039084203 | $683,423 | $683,423 | $207.70 | | |
| SCH205_401 | School 205-401 Enrichment | 1.3697998934 | $683,423 | $683,423 | $936.15 | | |
| SCH205BOND | School 205-401 BOND | 0.9354199323 | $683,423 | $683,423 | $639.29 | | |
| ST | State School | 1.4761226122 | $683,423 | $683,423 | $1,008.82 | | |
| ST2 | State School Part 2 | 0.7953803475 | $683,423 | $683,423 | $543.58 | | |
| | Total Tax Rate: | 7.6534262019 | | | | | |
| | | | | Taxes w/Current Exemptions: | $5,230.53 | | |
| | | | | Taxes w/o Exemptions: | $5,230.53 | | |
Improvement / Building
| Improvement #1: | RESIDENTIAL | State Code: | Y | 2378.0 sqft | Value: | $433,423 |
| Bathrooms: | 3 | Bedrooms: | 2 | | Ceiling: | DRYWALL PAINTED | Exterior Wall/Cover: | WOOD SIDING | | Floor Covering: | HARDWOOD/CARP 80-20 | Floor Structure: | WOOD W/SUBFLOOR | | Foundation: | CONCRETE | Heating: | WALL HEAT ELECTRIC | | Interior Finish: | DRYWALL PAINT | Plumbing Fixture Cnt: | 14 | | Roof Slope: | 6" IN 12" | Roof Structure/Cover: | CJ WOOD SHAKES |
|
| | Type | Description | Class CD | Sub Class CD | Year Built | Area |
| | BAS | BASE/MAIN FLOOR | 4 | 0 | 1990 | 1682.0 |
| | UPS | UPPER STORY | 4 | 0 | 1990 | 696.0 |
| | OWP | OPEN WOOD PORCH W/STEPS | 4 | 0 | 1990 | 250.0 |
| | OWP | OPEN WOOD PORCH W/STEPS | 4 | 0 | 1990 | 464.0 |
Sketch
Property Image
Land
| 1 | 14 | SQ (08001-12000) | 0.0000 | 0.00 | 0.00 | 0.00 | 1.00 | $250,000 | $0 |
Roll Value History
| 2026 | N/A | N/A | N/A | N/A | N/A |
| 2025 | $433,423 | $250,000 | $0 | $683,423 | $683,423 |
| 2024 | $438,757 | $250,000 | $0 | $688,757 | $688,757 |
| 2023 | $444,091 | $210,000 | $0 | $654,091 | $654,091 |
| 2022 | $406,943 | $200,000 | $0 | $606,943 | $606,943 |
| 2021 | $352,651 | $140,000 | $0 | $492,651 | $492,651 |
| 2020 | $249,960 | $120,000 | $0 | $369,960 | $369,960 |
| 2019 | $192,179 | $170,000 | $0 | $362,179 | $362,179 |
| 2018 | $192,802 | $140,000 | $0 | $332,802 | $332,802 |
| 2017 | $194,044 | $90,000 | $0 | $284,044 | $284,044 |
| 2016 | $196,532 | $65,000 | $0 | $261,532 | $261,532 |
| 2015 | $169,778 | $50,000 | $0 | $219,778 | $219,778 |
| 2014 | $172,074 | $50,000 | $0 | $222,074 | $222,074 |
| 2013 | $174,367 | $50,000 | $0 | $224,367 | $224,367 |
| 2012 | $176,662 | $56,000 | $0 | $232,662 | $232,662 |
| 2011 | $178,955 | $70,000 | $0 | $248,955 | $248,955 |
| 2010 | $190,422 | $70,000 | $0 | $260,422 | $260,422 |
| 2009 | $186,020 | $90,000 | $0 | $276,020 | $276,020 |
| 2008 | $188,221 | $100,000 | $0 | $288,221 | $288,221 |
| 2007 | $190,423 | $100,000 | $0 | $290,423 | $290,423 |
Deed and Sales History
| 1 | 09/08/2022 | WD | Warranty Deed | CHA, JUNG H | COOPER, GREGORY T. | | | $590,000.00 | 54620 | 4551540 |
| 2 | 07/01/2020 | WD | Warranty Deed | KNOPES, MARK A | CHA, JUNG H | | | $409,000.00 | 43631 | 4490381 |
| 3 | 06/22/2016 | WD | Warranty Deed | DEFOLO, AARON M | KNOPES, MARK A | | | $252,820.00 | 24935 | 4401861 |
| 4 | 01/08/2014 | DECREE | Divorce Decree/Legal Separation | DEFOLO, AARON M | DEFOLO, AARON M | | | $0.00 | 14775 | 4357394 |
| 5 | 05/19/1999 | WD | Warranty Deed | FREDRICKSON, CHRISTOPHER E | DEFOLO, AARON M | | | $164,900.00 | 91992 | 99012611 |
| 6 | 04/01/1994 | WD | Warranty Deed | HANSON, JESSIE R | FREDRICKSON, CHRISTOPHER E | | | $165,000.00 | 41679 | 94010035 |
| 7 | 01/01/1992 | QCD | Quit Claim Deed | BROWN, JOHN R | HANSON, JESSIE R | | | $8,759.00 | 23145 | 92015282 |
| 8 | 01/01/1991 | WD | Warranty Deed | HEFLEY, BILLY J | BROWN, JOHN R | | | $139,950.00 | 10252 | 91001232 |
| 9 | 02/01/1990 | WD | Warranty Deed | HILSON, GERALD D | HEFLEY, BILLY J | | | $10,000.00 | 1183 | 90003794 |
| 10 | 01/01/1900 | OTHER | Other - Misc. Documents | Unknown | HILSON, GERALD D | | | $0.00 | 0 | 0 |
Payout Agreement
| No payout information available.. |