Property
Account |
| Property ID: | 218197 | Abbreviated Legal Description: | CCC 21 LOT 13 BLK 39 |
| Geographic ID: | S6250-21-39013-0 | Agent Code: | |
| Type: | Real | | |
| Tax Area: | 510 - APPRAISER-Stan/Cam Schl Dist, improved & 1 acre or less | Land Use Code | 11 |
| Open Space: | N | DFL | N |
| Historic Property: | N | Remodel Property: | N |
| Multi-Family Redevelopment: | N | | |
| Township: | | Section: | |
| Range: | |
Location |
| Address: | 1499 CAROL ST CAMANO ISLAND, WA 98282 | Mapsco: | |
| Neighborhood: | Cycle 5 | Map ID: | 930 |
| Neighborhood CD: | 5 |
Owner |
| Name: | CAROTHERS, CORINNE | Owner ID: | 316213 |
| Mailing Address: | SAM WHITE 4110 N C ST SPOKANE, WA 99205 | % Ownership: | 100.0000000000% |
| | | Exemptions: | |
Taxes and Assessment Details
Values
| (+) Improvement Homesite Value: | + | $0 | |
| (+) Improvement Non-Homesite Value: | + | $320,949 | |
| (+) Land Homesite Value: | + | $0 | |
| (+) Land Non-Homesite Value: | + | $390,000 | |
| (+) Curr Use (HS): | + | $0 | $0 |
| (+) Curr Use (NHS): | + | $0 | $0 |
| | | -------------------------- | |
| (=) Market Value: | = | $710,949 | |
| (–) Productivity Loss: | – | $0 | |
| | | -------------------------- | |
| (=) Subtotal: | = | $710,949 | |
| (+) Senior Appraised Value: | + | $0 | |
| (+) Non-Senior Appraised Value: | + | $710,949 | |
| | | -------------------------- | |
| (=) Total Appraised Value: | = | $710,949 | |
| (–) Senior Exemption Loss: | – | $0 | |
| (–) Exemption Loss: | – | $0 | |
| | | -------------------------- | |
| (=) Taxable Value: | = | $710,949 | |
Taxing Jurisdiction
| Owner: | CAROTHERS, CORINNE | | |
| % Ownership: | 100.0000000000% | | |
| Total Value: | $710,949 | | |
| Tax Area: | 510 - APPRAISER-Stan/Cam Schl Dist, improved & 1 acre or less |
| CF | Conservation Futures | 0.0313996660 | $710,949 | $710,949 | $22.32 | | |
| EMS1 | Fire & Rescue Dist #1 Camano GEN (EMS) | 0.4998471806 | $710,949 | $710,949 | $355.37 | | |
| FIRE1 | Fire & Rescue Dist #1 Camano GEN | 1.2496603404 | $710,949 | $710,949 | $888.44 | | |
| FIRE1BOND | Fire & Rescue Dist #1 Camano BOND | 0.1630371212 | $710,949 | $710,949 | $115.91 | | |
| CE | County Current Expense | 0.3674210519 | $710,949 | $710,949 | $261.22 | | |
| CR | County Roads | 0.4614296361 | $710,949 | $710,949 | $328.05 | | |
| LIB | Library Sno-Isle GEN | 0.3039084203 | $710,949 | $710,949 | $216.06 | | |
| SCH205_401 | School 205-401 Enrichment | 1.3697998934 | $710,949 | $710,949 | $973.86 | | |
| SCH205BOND | School 205-401 BOND | 0.9354199323 | $710,949 | $710,949 | $665.04 | | |
| ST | State School | 1.4761226122 | $710,949 | $710,949 | $1,049.45 | | |
| ST2 | State School Part 2 | 0.7953803475 | $710,949 | $710,949 | $565.47 | | |
| | Total Tax Rate: | 7.6534262019 | | | | | |
| | | | | Taxes w/Current Exemptions: | $5,441.19 | | |
| | | | | Taxes w/o Exemptions: | $5,441.19 | | |
Improvement / Building
| Improvement #1: | RESIDENTIAL | State Code: | Y | 2024.0 sqft | Value: | $320,949 |
| Bathrooms: | 2.75 | Bedrooms: | 2 | | Ceiling: | DRYWALL PAINTED | Exterior Wall/Cover: | WOOD SIDING | | Floor Covering: | CARPET/VINYL 80-20 | Floor Structure: | WOOD W/SUBFLOOR | | Foundation: | CONCRETE | Heating: | FHA ELECTRIC | | Interior Finish: | DRYWALL PAINT | Plumbing Fixture Cnt: | 11 | | Roof Slope: | 5" IN 12" | Roof Structure/Cover: | CJ ASPHALT |
|
| | Type | Description | Class CD | Sub Class CD | Year Built | Area |
| | BAS | BASE/MAIN FLOOR | 3 | 0 | 1989 | 1496.0 |
| | UB8 | BASEMENT UNFINISHED 8" | 3 | 0 | 1989 | 968.0 |
| | DWN | DOWNSTAIRS LIVING AREA | 3 | 0 | 1989 | 528.0 |
| | AGR | ATTACHED GARAGE | 3 | 0 | 1989 | 576.0 |
| | OWP | OPEN WOOD PORCH W/STEPS | 3 | 0 | 1989 | 616.0 |
Sketch
Property Image
Land
| 1 | 14 | SQ (08001-12000) | 0.0000 | 0.00 | 0.00 | 0.00 | 1.00 | $390,000 | $0 |
Roll Value History
| 2026 | N/A | N/A | N/A | N/A | N/A |
| 2025 | $320,949 | $390,000 | $0 | $710,949 | $710,949 |
| 2024 | $308,801 | $360,000 | $0 | $668,801 | $668,801 |
| 2023 | $312,851 | $330,000 | $0 | $642,851 | $642,851 |
| 2022 | $286,971 | $300,000 | $0 | $586,971 | $586,971 |
| 2021 | $233,597 | $200,000 | $0 | $433,597 | $433,597 |
| 2020 | $228,139 | $180,000 | $0 | $408,139 | $408,139 |
| 2019 | $174,038 | $230,000 | $0 | $404,038 | $404,038 |
| 2018 | $174,616 | $200,000 | $0 | $374,616 | $374,616 |
| 2017 | $175,772 | $200,000 | $0 | $375,772 | $64,524 |
| 2016 | $178,085 | $110,000 | $0 | $288,085 | $64,524 |
| 2015 | $162,146 | $80,000 | $0 | $242,146 | $64,524 |
| 2014 | $164,332 | $80,000 | $0 | $244,332 | $64,524 |
| 2013 | $166,518 | $80,000 | $0 | $246,518 | $64,524 |
| 2012 | $168,704 | $86,304 | $0 | $255,008 | $64,524 |
| 2011 | $170,889 | $107,880 | $0 | $278,769 | $64,524 |
| 2010 | $179,485 | $107,880 | $0 | $287,365 | $64,524 |
| 2009 | $178,707 | $130,000 | $0 | $308,707 | $64,524 |
| 2008 | $180,877 | $150,000 | $0 | $330,877 | $64,524 |
| 2007 | $183,068 | $146,000 | $0 | $329,068 | $64,524 |
Deed and Sales History
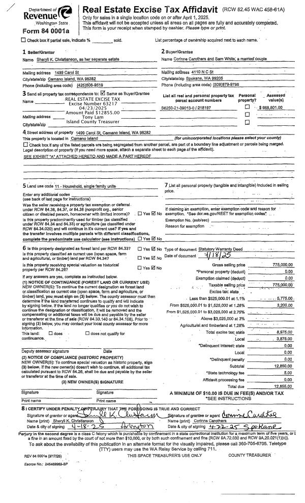
| 1 | 04/18/2025 | WD | Warranty Deed | CHRISTIANSON, SHERYLL K | CAROTHERS, CORINNE | | | $775,000.00 | 63217 | 4584852 |
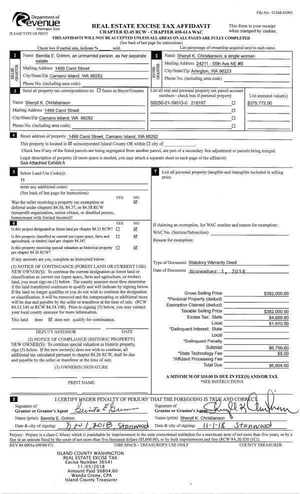
| 2 | 11/01/2018 | WD | Warranty Deed | GRIMM, BERNITA E | CHRISTIANSON, SHERYLL K | | | $382,000.00 | 36541 | 4454545 |
| 3 | 02/26/2018 | TOD | Transfer On Death Deed | GRIMM, WILLIAM T | GRIMM, BERNITA E | | | | 87736 | |
Payout Agreement
| No payout information available.. |