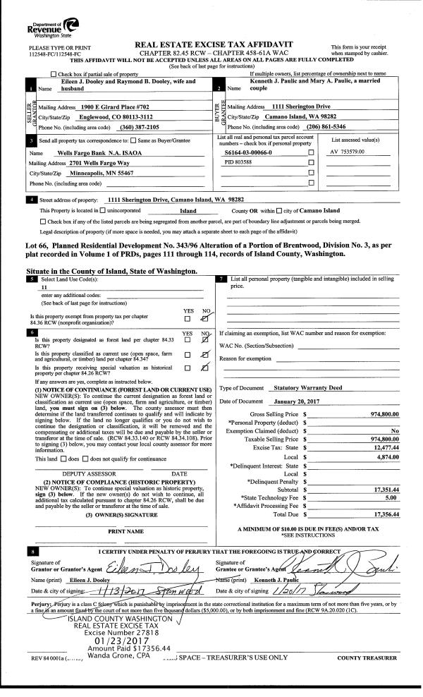
Property
Account |
| Property ID: | 218375 | Abbreviated Legal Description: | CCC 21 LOT 9 BLK 40 |
| Geographic ID: | S6250-21-40009-0 | Agent Code: | |
| Type: | Real | | |
| Tax Area: | 510 - APPRAISER-Stan/Cam Schl Dist, improved & 1 acre or less | Land Use Code | 11 |
| Open Space: | N | DFL | N |
| Historic Property: | N | Remodel Property: | N |
| Multi-Family Redevelopment: | N | | |
| Township: | | Section: | |
| Range: | |
Location |
| Address: | 1522 CAROL ST CAMANO ISLAND, WA 98282 | Mapsco: | |
| Neighborhood: | Cycle 5 | Map ID: | 930 |
| Neighborhood CD: | 5 |
Owner |
| Name: | WALSH JR, DONALD W | Owner ID: | 278126 |
| Mailing Address: | VIVIAN R WALSH 1522 CAROL DR CAMANO ISLAND, WA 98282 | % Ownership: | 100.0000000000% |
| | | Exemptions: | SNR/DSBL |
Taxes and Assessment Details
Values
| (+) Improvement Homesite Value: | + | $266,248 | |
| (+) Improvement Non-Homesite Value: | + | $0 | |
| (+) Land Homesite Value: | + | $250,000 | |
| (+) Land Non-Homesite Value: | + | $0 | |
| (+) Curr Use (HS): | + | $0 | $0 |
| (+) Curr Use (NHS): | + | $0 | $0 |
| | | -------------------------- | |
| (=) Market Value: | = | $516,248 | |
| (–) Productivity Loss: | – | $0 | |
| | | -------------------------- | |
| (=) Subtotal: | = | $516,248 | |
| (+) Senior Appraised Value: | + | $294,963 | |
| (+) Non-Senior Appraised Value: | + | $0 | |
| | | -------------------------- | |
| (=) Total Appraised Value: | = | $294,963 | |
| (–) Senior Exemption Loss: | – | $176,978 | |
| (–) Exemption Loss: | – | $0 | |
| | | -------------------------- | |
| (=) Taxable Value: | = | $117,985 | |
Taxing Jurisdiction
| Owner: | WALSH JR, DONALD W | | |
| % Ownership: | 100.0000000000% | | |
| Total Value: | $516,248 | | |
| Tax Area: | 510 - APPRAISER-Stan/Cam Schl Dist, improved & 1 acre or less |
| CF | Conservation Futures | 0.0313996660 | $516,248 | $117,985 | $3.70 | | |
| EMS1 | Fire & Rescue Dist #1 Camano GEN (EMS) | 0.4998471806 | $516,248 | $117,985 | $58.97 | | |
| FIRE1 | Fire & Rescue Dist #1 Camano GEN | 1.2496603404 | $516,248 | $117,985 | $147.44 | | |
| FIRE1BOND | Fire & Rescue Dist #1 Camano BOND | 0.0000000000 | $516,248 | $0 | $0.00 | | |
| CE | County Current Expense | 0.3674210519 | $516,248 | $117,985 | $43.35 | | |
| CR | County Roads | 0.4614296361 | $516,248 | $117,985 | $54.44 | | |
| LIB | Library Sno-Isle GEN | 0.3039084203 | $516,248 | $117,985 | $35.86 | | |
| SCH205_401 | School 205-401 Enrichment | 0.0000000000 | $516,248 | $0 | $0.00 | | |
| SCH205BOND | School 205-401 BOND | 0.0000000000 | $516,248 | $0 | $0.00 | | |
| ST | State School | 1.4761226122 | $516,248 | $117,985 | $174.16 | | |
| ST2 | State School Part 2 | 0.0000000000 | $516,248 | $0 | $0.00 | | |
| | Total Tax Rate: | 4.3897889075 | | | | | |
| | | | | Taxes w/Current Exemptions: | $517.92 | | |
| | | | | Taxes w/o Exemptions: | $3,951.07 | | |
Improvement / Building
| Improvement #1: | RESIDENTIAL | State Code: | Y | 1964.3 sqft | Value: | $266,248 |
| Bathrooms: | 2 | Bedrooms: | 2 | | Ceiling: | DRYWALL PAINTED | Cooling: | HEAT PUMP/CONV/V | | Exterior Wall/Cover: | CEMENT FIBER | Floor Covering: | CARPET/VINYL 80-20 | | Floor Structure: | WOOD W/SUBFLOOR | Foundation: | CONCRETE | | Interior Finish: | DRYWALL PAINT | Plumbing Fixture Cnt: | 9 | | Roof Slope: | 4" IN 12" | Roof Structure/Cover: | CJ ASPHALT |
|
| | Type | Description | Class CD | Sub Class CD | Year Built | Area |
| | BAS | BASE/MAIN FLOOR | 3 | 0 | 1989 | 1964.3 |
| | OP4 | OPEN PORCH W/CEILING-ROOF | 3 | 0 | 1989 | 28.8 |
| | OWP | OPEN WOOD PORCH W/STEPS | 3 | 0 | 1989 | 180.5 |
Sketch
Property Image
Land
| 1 | 14 | SQ (08001-12000) | 0.0000 | 0.00 | 0.00 | 0.00 | 1.00 | $250,000 | $0 |
Roll Value History
| 2026 | N/A | N/A | N/A | N/A | N/A |
| 2025 | $266,248 | $250,000 | $0 | $516,248 | $117,985 |
| 2024 | $269,695 | $250,000 | $0 | $519,695 | $117,985 |
| 2023 | $273,141 | $210,000 | $0 | $483,141 | $117,985 |
| 2022 | $250,442 | $200,000 | $0 | $450,442 | $224,963 |
| 2021 | $206,935 | $140,000 | $0 | $346,935 | $224,963 |
| 2020 | $202,168 | $120,000 | $0 | $322,168 | $224,963 |
| 2019 | $154,469 | $170,000 | $0 | $324,469 | $224,963 |
| 2018 | $154,963 | $140,000 | $0 | $294,963 | $224,963 |
| 2017 | $155,671 | $90,000 | $0 | $245,671 | $245,671 |
| 2016 | $154,132 | $65,000 | $0 | $219,132 | $219,132 |
| 2015 | $144,684 | $60,000 | $0 | $204,684 | $204,684 |
| 2014 | $146,635 | $60,000 | $0 | $206,635 | $206,635 |
| 2013 | $148,586 | $60,000 | $0 | $208,586 | $208,586 |
| 2012 | $150,537 | $60,000 | $0 | $210,537 | $210,537 |
| 2011 | $152,488 | $75,000 | $0 | $227,488 | $227,488 |
| 2010 | $158,269 | $75,000 | $0 | $233,269 | $233,269 |
| 2009 | $164,656 | $100,000 | $0 | $264,656 | $264,656 |
| 2008 | $166,705 | $118,000 | $0 | $284,705 | $284,705 |
| 2007 | $168,754 | $118,000 | $0 | $286,754 | $286,754 |
Deed and Sales History
| 1 | 12/27/2016 | WD | Warranty Deed | WHITE, VERN S | WALSH JR, DONALD W | | | $239,500.00 | 27621 | 4414628 |
| 2 | 10/07/2003 | 5 | DNU - Marriage License/Name Change | ULLENBRUCH, PATRICIA A | WHITE, VERN S | | | $0.00 | 34697 | 4079590 |
| 3 | 05/01/1996 | WD | Warranty Deed | STRANSKY, DAN G | ULLENBRUCH, PATRICIA A | | | $137,500.00 | 61794 | 96008960 |
| 4 | 04/01/1990 | WD | Warranty Deed | THOM, ALLEN J | STRANSKY, DAN G | | | $115,000.00 | 2539 | 90008163 |
| 5 | 08/01/1989 | WD | Warranty Deed | SWAN, GLENN | THOM, ALLEN J | | | $13,500.00 | 93285 | 89011027 |
Payout Agreement
| No payout information available.. |