Property
Account |
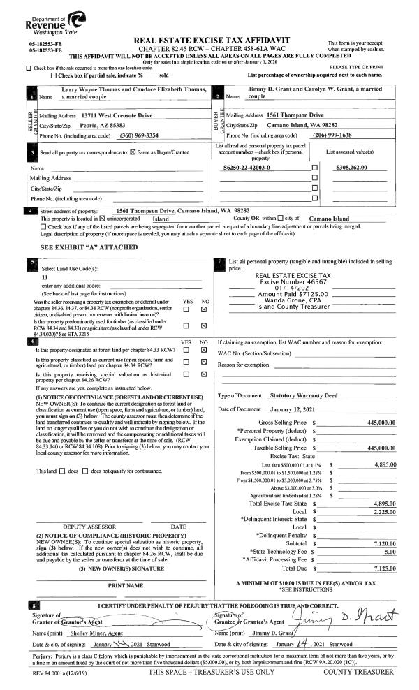
| Property ID: | 218525 | Abbreviated Legal Description: | CCC 22 LOT 3 BLK 42 |
| Geographic ID: | S6250-22-42003-0 | Agent Code: | |
| Type: | Real | | |
| Tax Area: | 510 - APPRAISER-Stan/Cam Schl Dist, improved & 1 acre or less | Land Use Code | 11 |
| Open Space: | N | DFL | N |
| Historic Property: | N | Remodel Property: | N |
| Multi-Family Redevelopment: | N | | |
| Township: | | Section: | |
| Range: | |
Location |
| Address: | 1561 THOMPSON DR CAMANO ISLAND, WA 98282 | Mapsco: | |
| Neighborhood: | Cycle 5 | Map ID: | 930 |
| Neighborhood CD: | 5 |
Owner |
| Name: | GRANT, JIMMY D | Owner ID: | 297737 |
| Mailing Address: | CAROLYN W GRANT 1561 THOMPSON DR CAMANO ISLAND, WA 98282 | % Ownership: | 100.0000000000% |
| | | Exemptions: | |
Taxes and Assessment Details
Values
| (+) Improvement Homesite Value: | + | $0 | |
| (+) Improvement Non-Homesite Value: | + | $274,751 | |
| (+) Land Homesite Value: | + | $0 | |
| (+) Land Non-Homesite Value: | + | $250,000 | |
| (+) Curr Use (HS): | + | $0 | $0 |
| (+) Curr Use (NHS): | + | $0 | $0 |
| | | -------------------------- | |
| (=) Market Value: | = | $524,751 | |
| (–) Productivity Loss: | – | $0 | |
| | | -------------------------- | |
| (=) Subtotal: | = | $524,751 | |
| (+) Senior Appraised Value: | + | $0 | |
| (+) Non-Senior Appraised Value: | + | $524,751 | |
| | | -------------------------- | |
| (=) Total Appraised Value: | = | $524,751 | |
| (–) Senior Exemption Loss: | – | $0 | |
| (–) Exemption Loss: | – | $0 | |
| | | -------------------------- | |
| (=) Taxable Value: | = | $524,751 | |
Taxing Jurisdiction
| Owner: | GRANT, JIMMY D | | |
| % Ownership: | 100.0000000000% | | |
| Total Value: | $524,751 | | |
| Tax Area: | 510 - APPRAISER-Stan/Cam Schl Dist, improved & 1 acre or less |
| CF | Conservation Futures | 0.0313996660 | $524,751 | $524,751 | $16.48 | | |
| EMS1 | Fire & Rescue Dist #1 Camano GEN (EMS) | 0.4998471806 | $524,751 | $524,751 | $262.30 | | |
| FIRE1 | Fire & Rescue Dist #1 Camano GEN | 1.2496603404 | $524,751 | $524,751 | $655.76 | | |
| FIRE1BOND | Fire & Rescue Dist #1 Camano BOND | 0.1630371212 | $524,751 | $524,751 | $85.55 | | |
| CE | County Current Expense | 0.3674210519 | $524,751 | $524,751 | $192.80 | | |
| CR | County Roads | 0.4614296361 | $524,751 | $524,751 | $242.14 | | |
| LIB | Library Sno-Isle GEN | 0.3039084203 | $524,751 | $524,751 | $159.48 | | |
| SCH205_401 | School 205-401 Enrichment | 1.3697998934 | $524,751 | $524,751 | $718.80 | | |
| SCH205BOND | School 205-401 BOND | 0.9354199323 | $524,751 | $524,751 | $490.86 | | |
| ST | State School | 1.4761226122 | $524,751 | $524,751 | $774.60 | | |
| ST2 | State School Part 2 | 0.7953803475 | $524,751 | $524,751 | $417.38 | | |
| | Total Tax Rate: | 7.6534262019 | | | | | |
| | | | | Taxes w/Current Exemptions: | $4,016.15 | | |
| | | | | Taxes w/o Exemptions: | $4,016.15 | | |
Improvement / Building
| Improvement #1: | RESIDENTIAL | State Code: | Y | 1456.0 sqft | Value: | $274,751 |
| Bathrooms: | 1.75 | Bedrooms: | 3 | | Ceiling: | DRYWALL PAINTED | Cooling: | HEAT PUMP/CONV/V | | Exterior Wall/Cover: | PLY/HARDBOARD T-111 | Floor Covering: | CARPET/VINYL 80-20 | | Floor Structure: | WOOD W/SUBFLOOR | Foundation: | CONCRETE | | Interior Finish: | DRYWALL PAINT | Plumbing Fixture Cnt: | 9 | | Roof Slope: | 4" IN 12" | Roof Structure/Cover: | CJ ASPHALT |
|
| | Type | Description | Class CD | Sub Class CD | Year Built | Area |
| | BAS | BASE/MAIN FLOOR | 3 | 0 | 1991 | 1456.0 |
| | OP4 | OPEN PORCH W/CEILING-ROOF | 3 | 0 | 1991 | 20.0 |
| | AGR | ATTACHED GARAGE | 3 | 0 | 1991 | 504.0 |
| | OWP | OPEN WOOD PORCH W/STEPS | 3 | 0 | 1991 | 416.0 |
| | UTY | STORAGE/UTILITY | 3 | 0 | 1991 | 112.0 |
Sketch
Property Image
Land
| 1 | 14 | SQ (08001-12000) | 0.0000 | 0.00 | 0.00 | 0.00 | 1.00 | $250,000 | $0 |
Roll Value History
| 2026 | N/A | N/A | N/A | N/A | N/A |
| 2025 | $274,751 | $250,000 | $0 | $524,751 | $524,751 |
| 2024 | $278,051 | $250,000 | $0 | $528,051 | $528,051 |
| 2023 | $281,351 | $210,000 | $0 | $491,351 | $491,351 |
| 2022 | $257,742 | $200,000 | $0 | $457,742 | $457,742 |
| 2021 | $212,656 | $140,000 | $0 | $352,656 | $352,656 |
| 2020 | $188,262 | $120,000 | $0 | $308,262 | $308,262 |
| 2019 | $135,097 | $170,000 | $0 | $305,097 | $305,097 |
| 2018 | $135,512 | $140,000 | $0 | $275,512 | $275,512 |
| 2017 | $124,401 | $90,000 | $0 | $214,401 | $214,401 |
| 2016 | $125,995 | $65,000 | $0 | $190,995 | $190,995 |
| 2015 | $119,088 | $50,000 | $0 | $169,088 | $169,088 |
| 2014 | $120,664 | $50,000 | $0 | $170,664 | $170,664 |
| 2013 | $122,241 | $50,000 | $0 | $172,241 | $172,241 |
| 2012 | $123,817 | $56,000 | $0 | $179,817 | $179,817 |
| 2011 | $125,394 | $70,000 | $0 | $195,394 | $195,394 |
| 2010 | $130,605 | $70,000 | $0 | $200,605 | $200,605 |
| 2009 | $143,973 | $90,000 | $0 | $233,973 | $233,973 |
| 2008 | $145,786 | $118,000 | $0 | $263,786 | $263,786 |
| 2007 | $147,600 | $118,000 | $0 | $265,600 | $265,600 |
Deed and Sales History
| 1 | 01/12/2021 | WD | Warranty Deed | THOMAS, LARRY WAYNE | GRANT, JIMMY D | | | $445,000.00 | 46567 | 4058124 |
| 2 | 10/19/2017 | WD | Warranty Deed | SCHOBER, JOAN M | THOMAS, LARRY WAYNE | | | $285,000.00 | 31630 | 4432695 |
| 3 | 11/01/1993 | WD | Warranty Deed | NELSON, RALPH A | SCHOBER, JOAN M | | | $133,500.00 | 34418 | 93023076 |
| 4 | 11/01/1991 | WD | Warranty Deed | ROMAN, E E | NELSON, RALPH A | | | $122,950.00 | 13985 | 91016982 |
| 5 | 02/01/1990 | WD | Warranty Deed | BONAVENTURE, LANDS L | ROMAN, E E | | | $12,500.00 | 1255 | 90004011 |
| 6 | 04/01/1979 | OTHER | Other - Misc. Documents | Unknown | BONAVENTURE, LANDS L | | | $9,000.00 | 92340 | 352474 |
Payout Agreement
| No payout information available.. |