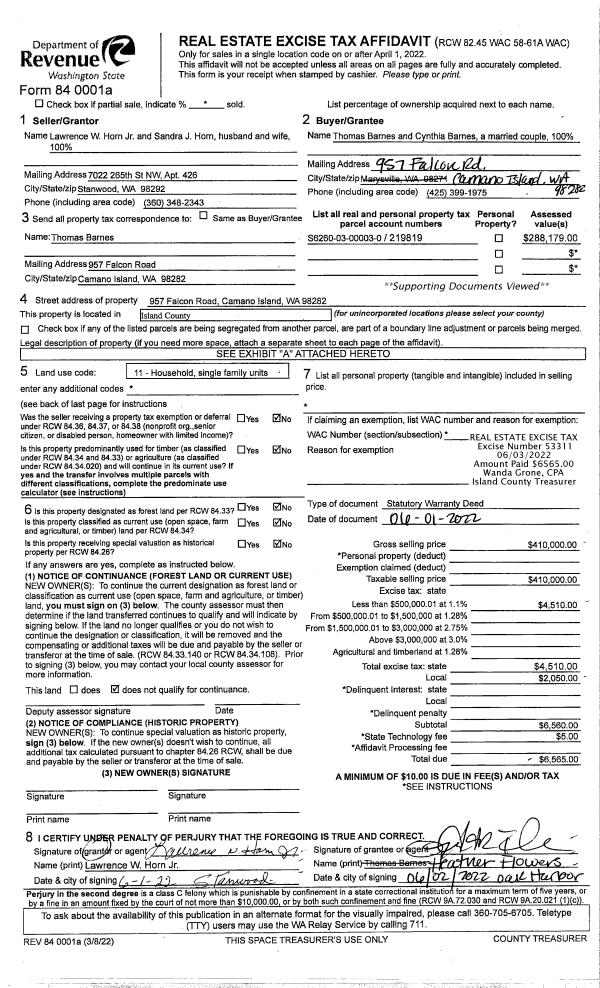
Property
Account |
| Property ID: | 219819 | Abbreviated Legal Description: | CAMANO HTS 3 LOTS 3 & 4 |
| Geographic ID: | S6260-03-00003-0 | Agent Code: | |
| Type: | Real | | |
| Tax Area: | 510 - APPRAISER-Stan/Cam Schl Dist, improved & 1 acre or less | Land Use Code | 11 |
| Open Space: | N | DFL | N |
| Historic Property: | N | Remodel Property: | N |
| Multi-Family Redevelopment: | N | | |
| Township: | | Section: | |
| Range: | |
Location |
| Address: | 957 FALCON RD CAMANO ISLAND, WA 98282 | Mapsco: | |
| Neighborhood: | Cycle 5 | Map ID: | 483 |
| Neighborhood CD: | 5 |
Owner |
| Name: | BARNES, THOMAS | Owner ID: | 304527 |
| Mailing Address: | CYNTHIA BARNES 957 FALCON RD CAMANO ISLAND, WA 98282 | % Ownership: | 100.0000000000% |
| | | Exemptions: | |
Taxes and Assessment Details
Values
| (+) Improvement Homesite Value: | + | $0 | |
| (+) Improvement Non-Homesite Value: | + | $224,824 | |
| (+) Land Homesite Value: | + | $0 | |
| (+) Land Non-Homesite Value: | + | $210,000 | |
| (+) Curr Use (HS): | + | $0 | $0 |
| (+) Curr Use (NHS): | + | $0 | $0 |
| | | -------------------------- | |
| (=) Market Value: | = | $434,824 | |
| (–) Productivity Loss: | – | $0 | |
| | | -------------------------- | |
| (=) Subtotal: | = | $434,824 | |
| (+) Senior Appraised Value: | + | $0 | |
| (+) Non-Senior Appraised Value: | + | $434,824 | |
| | | -------------------------- | |
| (=) Total Appraised Value: | = | $434,824 | |
| (–) Senior Exemption Loss: | – | $0 | |
| (–) Exemption Loss: | – | $0 | |
| | | -------------------------- | |
| (=) Taxable Value: | = | $434,824 | |
Taxing Jurisdiction
| Owner: | BARNES, THOMAS | | |
| % Ownership: | 100.0000000000% | | |
| Total Value: | $434,824 | | |
| Tax Area: | 510 - APPRAISER-Stan/Cam Schl Dist, improved & 1 acre or less |
| CF | Conservation Futures | 0.0313996660 | $434,824 | $434,824 | $13.65 | | |
| EMS1 | Fire & Rescue Dist #1 Camano GEN (EMS) | 0.4998471806 | $434,824 | $434,824 | $217.35 | | |
| FIRE1 | Fire & Rescue Dist #1 Camano GEN | 1.2496603404 | $434,824 | $434,824 | $543.38 | | |
| FIRE1BOND | Fire & Rescue Dist #1 Camano BOND | 0.1630371212 | $434,824 | $434,824 | $70.89 | | |
| CE | County Current Expense | 0.3674210519 | $434,824 | $434,824 | $159.76 | | |
| CR | County Roads | 0.4614296361 | $434,824 | $434,824 | $200.64 | | |
| LIB | Library Sno-Isle GEN | 0.3039084203 | $434,824 | $434,824 | $132.15 | | |
| SCH205_401 | School 205-401 Enrichment | 1.3697998934 | $434,824 | $434,824 | $595.62 | | |
| SCH205BOND | School 205-401 BOND | 0.9354199323 | $434,824 | $434,824 | $406.74 | | |
| ST | State School | 1.4761226122 | $434,824 | $434,824 | $641.85 | | |
| ST2 | State School Part 2 | 0.7953803475 | $434,824 | $434,824 | $345.85 | | |
| | Total Tax Rate: | 7.6534262019 | | | | | |
| | | | | Taxes w/Current Exemptions: | $3,327.88 | | |
| | | | | Taxes w/o Exemptions: | $3,327.88 | | |
Improvement / Building
| Improvement #1: | MANUFACTURED HOME | State Code: | Y | 2376.0 sqft | Value: | $224,824 |
| Bathrooms: | 0 | Bedrooms: | 0 | | Ceiling: | PLASTER PAINTED | Cooling: | EVAP NO DUCT | | Exterior Wall/Cover: | VINYL | Floor Covering: | CARPET 100% | | Floor Structure: | SLAB ON GRADE | Foundation: | SLAB | | Heating: | FHA ELECTRIC | Interior Finish: | PLASTER | | Plumbing Fixture Cnt: | 1 | Roof Slope: | FLAT | | Roof Structure/Cover: | CJ ALUMINIUM HEAVY |   |   |
|
| | Type | Description | Class CD | Sub Class CD | Year Built | Area |
| | BAS | BASE/MAIN FLOOR | 4 | 0 | 1975 | 2376.0 |
| | DGR | DETACHED GARAGE | 4 | 0 | 1975 | 720.0 |
| | OWR | OPEN WOOD PORCH W/STEPS/ROOF | 4 | 0 | 1975 | 256.0 |
| | OWP | OPEN WOOD PORCH W/STEPS | 4 | 0 | 1975 | 464.0 |
| | CPD | OPEN CARPORT DIRT FLOOR | 4 | 0 | 1975 | 2376.0 |
| | UTY | STORAGE/UTILITY | 4 | 0 | 1975 | 300.0 |
Sketch
Property Image
Land
| 1 | 15 | SQ (12001-21780) | 0.3900 | 16988.40 | 0.00 | 0.00 | 1.00 | $210,000 | $0 |
Roll Value History
| 2026 | N/A | N/A | N/A | N/A | N/A |
| 2025 | $224,824 | $210,000 | $0 | $434,824 | $434,824 |
| 2024 | $231,248 | $210,000 | $0 | $441,248 | $441,248 |
| 2023 | $203,888 | $210,000 | $0 | $413,888 | $413,888 |
| 2022 | $189,675 | $210,000 | $0 | $399,675 | $399,675 |
| 2021 | $148,179 | $140,000 | $0 | $288,179 | $288,179 |
| 2020 | $147,579 | $120,000 | $0 | $267,579 | $267,579 |
| 2019 | $119,193 | $140,000 | $0 | $259,193 | $259,193 |
| 2018 | $122,136 | $100,000 | $0 | $222,136 | $222,136 |
| 2017 | $125,078 | $100,000 | $0 | $225,078 | $225,078 |
| 2016 | $126,549 | $100,000 | $0 | $226,549 | $226,549 |
| 2015 | $132,470 | $65,000 | $0 | $197,470 | $197,470 |
| 2014 | $135,088 | $65,000 | $0 | $200,088 | $200,088 |
| 2013 | $136,970 | $65,000 | $0 | $201,970 | $201,970 |
| 2012 | $139,587 | $66,400 | $0 | $205,987 | $205,987 |
| 2011 | $142,206 | $83,000 | $0 | $225,206 | $225,206 |
| 2010 | $147,187 | $83,000 | $0 | $230,187 | $230,187 |
| 2009 | $153,055 | $100,000 | $0 | $253,055 | $253,055 |
| 2008 | $155,195 | $113,000 | $0 | $268,195 | $268,195 |
| 2007 | $158,458 | $101,000 | $0 | $259,458 | $259,458 |
Deed and Sales History
| 1 | 06/01/2022 | WD | Warranty Deed | HORN JR, LAWRENCE W | BARNES, THOMAS | | | $410,000.00 | 53311 | 4546094 |
| 2 | 01/01/1900 | OTHER | Other - Misc. Documents | Unknown | HORN, LAWRENCE W | | | $0.00 | 0 | 0 |
Payout Agreement
| No payout information available.. |