Property
Account |
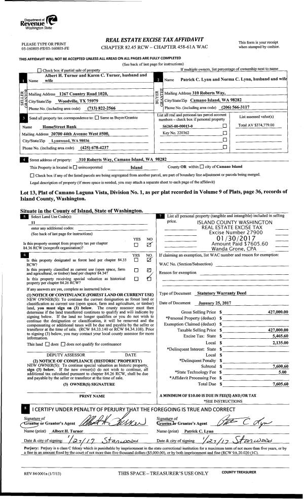
| Property ID: | 220362 | Abbreviated Legal Description: | CAM LAGUNA VISTA 1 LOT 13 |
| Geographic ID: | S6265-00-00013-0 | Agent Code: | |
| Type: | Real | | |
| Tax Area: | 510 - APPRAISER-Stan/Cam Schl Dist, improved & 1 acre or less | Land Use Code | 11 |
| Open Space: | N | DFL | N |
| Historic Property: | N | Remodel Property: | N |
| Multi-Family Redevelopment: | N | | |
| Township: | | Section: | |
| Range: | |
Location |
| Address: | 310 ROBERTS WAY CAMANO ISLAND, WA 98282 | Mapsco: | |
| Neighborhood: | North Camano | Map ID: | 574 |
| Neighborhood CD: | 06-C |
Owner |
| Name: | LYNN, PATRICK C | Owner ID: | 278387 |
| Mailing Address: | NORMA C LYNN 310 ROBERTS WAY CAMANO ISLAND, WA 98282 | % Ownership: | 100.0000000000% |
| | | Exemptions: | |
Taxes and Assessment Details
Values
| (+) Improvement Homesite Value: | + | $0 | |
| (+) Improvement Non-Homesite Value: | + | $443,972 | |
| (+) Land Homesite Value: | + | $0 | |
| (+) Land Non-Homesite Value: | + | $400,000 | |
| (+) Curr Use (HS): | + | $0 | $0 |
| (+) Curr Use (NHS): | + | $0 | $0 |
| | | -------------------------- | |
| (=) Market Value: | = | $843,972 | |
| (–) Productivity Loss: | – | $0 | |
| | | -------------------------- | |
| (=) Subtotal: | = | $843,972 | |
| (+) Senior Appraised Value: | + | $0 | |
| (+) Non-Senior Appraised Value: | + | $843,972 | |
| | | -------------------------- | |
| (=) Total Appraised Value: | = | $843,972 | |
| (–) Senior Exemption Loss: | – | $0 | |
| (–) Exemption Loss: | – | $0 | |
| | | -------------------------- | |
| (=) Taxable Value: | = | $843,972 | |
Taxing Jurisdiction
| Owner: | LYNN, PATRICK C | | |
| % Ownership: | 100.0000000000% | | |
| Total Value: | $843,972 | | |
| Tax Area: | 510 - APPRAISER-Stan/Cam Schl Dist, improved & 1 acre or less |
| CF | Conservation Futures | 0.0313996660 | $843,972 | $843,972 | $26.50 | | |
| EMS1 | Fire & Rescue Dist #1 Camano GEN (EMS) | 0.4998471806 | $843,972 | $843,972 | $421.86 | | |
| FIRE1 | Fire & Rescue Dist #1 Camano GEN | 1.2496603404 | $843,972 | $843,972 | $1,054.68 | | |
| FIRE1BOND | Fire & Rescue Dist #1 Camano BOND | 0.1630371212 | $843,972 | $843,972 | $137.60 | | |
| CE | County Current Expense | 0.3674210519 | $843,972 | $843,972 | $310.09 | | |
| CR | County Roads | 0.4614296361 | $843,972 | $843,972 | $389.43 | | |
| LIB | Library Sno-Isle GEN | 0.3039084203 | $843,972 | $843,972 | $256.49 | | |
| SCH205_401 | School 205-401 Enrichment | 1.3697998934 | $843,972 | $843,972 | $1,156.07 | | |
| SCH205BOND | School 205-401 BOND | 0.9354199323 | $843,972 | $843,972 | $789.47 | | |
| ST | State School | 1.4761226122 | $843,972 | $843,972 | $1,245.81 | | |
| ST2 | State School Part 2 | 0.7953803475 | $843,972 | $843,972 | $671.28 | | |
| | Total Tax Rate: | 7.6534262019 | | | | | |
| | | | | Taxes w/Current Exemptions: | $6,459.28 | | |
| | | | | Taxes w/o Exemptions: | $6,459.28 | | |
Improvement / Building
| Improvement #1: | RESIDENTIAL | State Code: | Y | 2624.0 sqft | Value: | $443,972 |
| Bathrooms: | 2.5 | Bedrooms: | 2 | | Ceiling: | DRYWALL PAINTED | Cooling: | HEAT PUMP/CONV/V | | Exterior Wall/Cover: | STUCCO | Floor Covering: | HARDWOOD/CARP 20-80 | | Floor Structure: | WOOD W/SUBFLOOR | Foundation: | SLAB/CONCRETE | | Interior Finish: | DRYWALL PAINT | Plumbing Fixture Cnt: | 14 | | Roof Slope: | 5" IN 12" | Roof Structure/Cover: | CJ CONCRETE TILE |
|
| | Type | Description | Class CD | Sub Class CD | Year Built | Area |
| | BAS | BASE/MAIN FLOOR | 4 | 0 | 1986 | 1774.0 |
| | OP4 | OPEN PORCH W/CEILING-ROOF | 4 | 0 | 1986 | 400.0 |
| | AGR | ATTACHED GARAGE | 4 | 0 | 1986 | 562.5 |
| | UTY | STORAGE/UTILITY | 4 | 0 | 1986 | 64.0 |
| | OWP | OPEN WOOD PORCH W/STEPS | 4 | 0 | 1986 | 752.0 |
| | OWC | OPEN WOOD PORCH W/STEPS/ROOF/C | 4 | 0 | 1986 | 181.0 |
| | DWN | DOWNSTAIRS LIVING AREA | 4 | 0 | 1986 | 850.0 |
Sketch
Property Image
Land
| 1 | 15 | SQ (12001-21780) | 0.0000 | 0.00 | 0.00 | 0.00 | 1.00 | $400,000 | $0 |
Roll Value History
| 2026 | N/A | N/A | N/A | N/A | N/A |
| 2025 | $443,972 | $400,000 | $0 | $843,972 | $843,972 |
| 2024 | $449,873 | $400,000 | $0 | $849,873 | $849,873 |
| 2023 | $455,773 | $400,000 | $0 | $855,773 | $855,773 |
| 2022 | $407,367 | $360,000 | $0 | $767,367 | $767,367 |
| 2021 | $358,874 | $350,000 | $0 | $708,874 | $708,874 |
| 2020 | $350,216 | $200,000 | $0 | $550,216 | $550,216 |
| 2019 | $263,262 | $230,000 | $0 | $493,262 | $493,262 |
| 2018 | $264,091 | $210,000 | $0 | $474,091 | $474,091 |
| 2017 | $265,740 | $150,000 | $0 | $415,740 | $415,740 |
| 2016 | $244,779 | $130,000 | $0 | $374,779 | $374,779 |
| 2015 | $248,087 | $92,800 | $0 | $340,887 | $340,887 |
| 2014 | $251,394 | $92,800 | $0 | $344,194 | $344,194 |
| 2013 | $254,702 | $92,800 | $0 | $347,502 | $347,502 |
| 2012 | $258,009 | $92,800 | $0 | $350,809 | $350,809 |
| 2011 | $261,318 | $116,000 | $0 | $377,318 | $377,318 |
| 2010 | $260,863 | $116,000 | $0 | $376,863 | $376,863 |
| 2009 | $272,033 | $200,000 | $0 | $472,033 | $472,033 |
| 2008 | $273,566 | $200,000 | $0 | $473,566 | $473,566 |
| 2007 | $262,271 | $214,586 | $0 | $476,857 | $476,857 |
Deed and Sales History
| 1 | 01/25/2017 | WD | Warranty Deed | TURNER, ALBERT H | LYNN, PATRICK C | | | $427,000.00 | 27900 | 4416118 |
| 2 | 08/20/2012 | WD | Warranty Deed | CEDERBLOM, CARROLL D | TURNER, ALBERT H | | | $300,000.00 | 8744 | 4322387 |
Payout Agreement
| No payout information available.. |