Property
Account |
| Property ID: | 220558 | Abbreviated Legal Description: | CAM LAG VISTA 2 LOT 27 |
| Geographic ID: | S6265-02-00027-0 | Agent Code: | |
| Type: | Real | | |
| Tax Area: | 512 - APPRAISER-Stan/Cam Schl Dist, improved, greater than 1 acre | Land Use Code | 11 |
| Open Space: | N | DFL | N |
| Historic Property: | N | Remodel Property: | N |
| Multi-Family Redevelopment: | N | | |
| Township: | | Section: | |
| Range: | |
Location |
| Address: | 862 VISTA DR CAMANO ISLAND, WA 98282 | Mapsco: | |
| Neighborhood: | North Camano | Map ID: | 574 |
| Neighborhood CD: | 06-C |
Owner |
| Name: | ABBOTT, CYNTHIA C | Owner ID: | 300420 |
| Mailing Address: | DARREN R ABBOTT 862 VISTA DR CAMANO ISLAND, WA 98282 | % Ownership: | 100.0000000000% |
| | | Exemptions: | |
Taxes and Assessment Details
Values
| (+) Improvement Homesite Value: | + | $0 | |
| (+) Improvement Non-Homesite Value: | + | $441,229 | |
| (+) Land Homesite Value: | + | $0 | |
| (+) Land Non-Homesite Value: | + | $250,000 | |
| (+) Curr Use (HS): | + | $0 | $0 |
| (+) Curr Use (NHS): | + | $0 | $0 |
| | | -------------------------- | |
| (=) Market Value: | = | $691,229 | |
| (–) Productivity Loss: | – | $0 | |
| | | -------------------------- | |
| (=) Subtotal: | = | $691,229 | |
| (+) Senior Appraised Value: | + | $0 | |
| (+) Non-Senior Appraised Value: | + | $691,229 | |
| | | -------------------------- | |
| (=) Total Appraised Value: | = | $691,229 | |
| (–) Senior Exemption Loss: | – | $0 | |
| (–) Exemption Loss: | – | $0 | |
| | | -------------------------- | |
| (=) Taxable Value: | = | $691,229 | |
Taxing Jurisdiction
| Owner: | ABBOTT, CYNTHIA C | | |
| % Ownership: | 100.0000000000% | | |
| Total Value: | $691,229 | | |
| Tax Area: | 512 - APPRAISER-Stan/Cam Schl Dist, improved, greater than 1 acre |
| CF | Conservation Futures | 0.0313996660 | $691,229 | $691,229 | $21.70 | | |
| EMS1 | Fire & Rescue Dist #1 Camano GEN (EMS) | 0.4998471806 | $691,229 | $691,229 | $345.51 | | |
| FIRE1 | Fire & Rescue Dist #1 Camano GEN | 1.2496603404 | $691,229 | $691,229 | $863.80 | | |
| FIRE1BOND | Fire & Rescue Dist #1 Camano BOND | 0.1630371212 | $691,229 | $691,229 | $112.70 | | |
| CE | County Current Expense | 0.3674210519 | $691,229 | $691,229 | $253.97 | | |
| CR | County Roads | 0.4614296361 | $691,229 | $691,229 | $318.95 | | |
| LIB | Library Sno-Isle GEN | 0.3039084203 | $691,229 | $691,229 | $210.07 | | |
| SCH205_401 | School 205-401 Enrichment | 1.3697998934 | $691,229 | $691,229 | $946.85 | | |
| SCH205BOND | School 205-401 BOND | 0.9354199323 | $691,229 | $691,229 | $646.59 | | |
| ST | State School | 1.4761226122 | $691,229 | $691,229 | $1,020.34 | | |
| ST2 | State School Part 2 | 0.7953803475 | $691,229 | $691,229 | $549.79 | | |
| | Total Tax Rate: | 7.6534262019 | | | | | |
| | | | | Taxes w/Current Exemptions: | $5,290.27 | | |
| | | | | Taxes w/o Exemptions: | $5,290.27 | | |
Improvement / Building
| Improvement #1: | RESIDENTIAL | State Code: | Y | 2099.1 sqft | Value: | $441,229 |
| Bathrooms: | 2.5 | Bedrooms: | 3 | | Ceiling: | DRYWALL PAINTED | Cooling: | HEAT PUMP/CONV/V | | Exterior Wall/Cover: | WOOD SIDING | Floor Covering: | VINYL/HARDWOOD 20-80 | | Floor Structure: | SLAB ABOVE GRADE | Foundation: | SLAB/CONCRETE | | Interior Finish: | DRYWALL PAINT | Plumbing Fixture Cnt: | 12 | | Roof Slope: | 12" IN 12" | Roof Structure/Cover: | CJ ASPHALT |
|
| | Type | Description | Class CD | Sub Class CD | Year Built | Area |
| | BAS | BASE/MAIN FLOOR | 4 | 0 | 1974 | 1195.1 |
| | OP1 | OPEN PORCH SLAB | 4 | 0 | 1974 | 396.0 |
| | OP4 | OPEN PORCH W/CEILING-ROOF | 4 | 0 | 1974 | 10.2 |
| | OP4 | OPEN PORCH W/CEILING-ROOF | 4 | 0 | 1974 | 30.0 |
| | UPH | HALF STORY | 4 | 0 | 1974 | 904.0 |
| | OP4 | OPEN PORCH W/CEILING-ROOF | 4 | 0 | 1974 | 320.0 |
| | UTY | STORAGE/UTILITY | 4 | 0 | 1974 | 648.0 |
Sketch
Property Image
Land
| 1 | 17 | AC (01.01-02.00) | 1.3400 | 58370.40 | 0.00 | 0.00 | 1.00 | $250,000 | $0 |
Roll Value History
| 2026 | N/A | N/A | N/A | N/A | N/A |
| 2025 | $441,229 | $250,000 | $0 | $691,229 | $691,229 |
| 2024 | $447,093 | $250,000 | $0 | $697,093 | $697,093 |
| 2023 | $452,955 | $250,000 | $0 | $702,955 | $702,955 |
| 2022 | $415,461 | $230,000 | $0 | $645,461 | $645,461 |
| 2021 | $305,501 | $220,000 | $0 | $525,501 | $525,501 |
| 2020 | $298,122 | $180,000 | $0 | $478,122 | $478,122 |
| 2019 | $221,630 | $200,000 | $0 | $421,630 | $421,630 |
| 2018 | $222,347 | $180,000 | $0 | $402,347 | $402,347 |
| 2017 | $223,787 | $120,000 | $0 | $343,787 | $343,787 |
| 2016 | $195,107 | $130,000 | $0 | $325,107 | $325,107 |
| 2015 | $197,644 | $74,400 | $0 | $272,044 | $272,044 |
| 2014 | $200,180 | $74,400 | $0 | $274,580 | $274,580 |
| 2013 | $202,716 | $74,400 | $0 | $277,116 | $277,116 |
| 2012 | $205,252 | $74,400 | $0 | $279,652 | $279,652 |
| 2011 | $207,786 | $93,000 | $0 | $300,786 | $300,786 |
| 2010 | $215,055 | $93,000 | $0 | $308,055 | $308,055 |
| 2009 | $221,357 | $100,000 | $0 | $321,357 | $321,357 |
| 2008 | $190,230 | $100,000 | $0 | $290,230 | $290,230 |
| 2007 | $192,767 | $100,000 | $0 | $292,767 | $292,767 |
Deed and Sales History
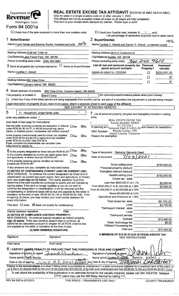
| 1 | 07/23/2021 | WD | Warranty Deed | RENLIE, FRANK | ABBOTT, CYNTHIA C | | | $750,000.00 | 49405 | 4525691 |
| 2 | 05/20/2009 | WD | Warranty Deed | STROHECKER TTEE, FRANKLIN M | RENLIE, FRANK | | | $342,500.00 | 91133 | 4252068 |
| 3 | 12/06/2004 | 5 | DNU - Marriage License/Name Change | JONES, JAMES | STROHECKER TTEE, FRANKLIN M | | | $0.00 | 45776 | 4120543 |
| 4 | 09/01/1979 | CD | DNU - Correction Deed | STROHECKER, FRANKLIN M | JONES, JAMES | | | $0.00 | 9471800 | 3593330 |
| 5 | 09/01/1979 | EZ | Easement | STROHECKER, FRANKLIN M | STROHECKER, FRANKLIN M | | | $0.00 | 94593 | 358902 |
| 6 | 06/01/1979 | EXECUTORD | Executor Deed | SCHLOSSER, TERRY J | STROHECKER, FRANKLIN M | | | $76,500.00 | 928970 | 3540050 |
| 7 | 01/01/1900 | OTHER | Other - Misc. Documents | Unknown | SCHLOSSER, TERRY J | | | $0.00 | 0 | 0 |
Payout Agreement
| No payout information available.. |