Property
Account |
| Property ID: | 220674 | Abbreviated Legal Description: | CAM LAG VISTA 2 LOTS 37-1, 37-2 & 37-3 |
| Geographic ID: | S6265-02-00037-1 | Agent Code: | |
| Type: | Real | | |
| Tax Area: | 512 - APPRAISER-Stan/Cam Schl Dist, improved, greater than 1 acre | Land Use Code | 11 |
| Open Space: | N | DFL | N |
| Historic Property: | N | Remodel Property: | N |
| Multi-Family Redevelopment: | N | | |
| Township: | | Section: | |
| Range: | |
Location |
| Address: | 381 EVERGREEN PARK RD CAMANO ISLAND, WA 98282 | Mapsco: | |
| Neighborhood: | North Camano | Map ID: | 577 |
| Neighborhood CD: | 06-C |
Owner |
| Name: | CHITTICK, MICHAEL L | Owner ID: | 312636 |
| Mailing Address: | 11720 60TH AVE SE SNOHOMISH, WA 98296 | % Ownership: | 100.0000000000% |
| | | Exemptions: | |
Taxes and Assessment Details
Values
| (+) Improvement Homesite Value: | + | $0 | |
| (+) Improvement Non-Homesite Value: | + | $245,493 | |
| (+) Land Homesite Value: | + | $0 | |
| (+) Land Non-Homesite Value: | + | $250,000 | |
| (+) Curr Use (HS): | + | $0 | $0 |
| (+) Curr Use (NHS): | + | $0 | $0 |
| | | -------------------------- | |
| (=) Market Value: | = | $495,493 | |
| (–) Productivity Loss: | – | $0 | |
| | | -------------------------- | |
| (=) Subtotal: | = | $495,493 | |
| (+) Senior Appraised Value: | + | $0 | |
| (+) Non-Senior Appraised Value: | + | $495,493 | |
| | | -------------------------- | |
| (=) Total Appraised Value: | = | $495,493 | |
| (–) Senior Exemption Loss: | – | $0 | |
| (–) Exemption Loss: | – | $0 | |
| | | -------------------------- | |
| (=) Taxable Value: | = | $495,493 | |
Taxing Jurisdiction
| Owner: | CHITTICK, MICHAEL L | | |
| % Ownership: | 100.0000000000% | | |
| Total Value: | $495,493 | | |
| Tax Area: | 512 - APPRAISER-Stan/Cam Schl Dist, improved, greater than 1 acre |
| CF | Conservation Futures | 0.0313996660 | $495,493 | $495,493 | $15.56 | | |
| EMS1 | Fire & Rescue Dist #1 Camano GEN (EMS) | 0.4998471806 | $495,493 | $495,493 | $247.67 | | |
| FIRE1 | Fire & Rescue Dist #1 Camano GEN | 1.2496603404 | $495,493 | $495,493 | $619.20 | | |
| FIRE1BOND | Fire & Rescue Dist #1 Camano BOND | 0.1630371212 | $495,493 | $495,493 | $80.78 | | |
| CE | County Current Expense | 0.3674210519 | $495,493 | $495,493 | $182.05 | | |
| CR | County Roads | 0.4614296361 | $495,493 | $495,493 | $228.64 | | |
| LIB | Library Sno-Isle GEN | 0.3039084203 | $495,493 | $495,493 | $150.58 | | |
| SCH205_401 | School 205-401 Enrichment | 1.3697998934 | $495,493 | $495,493 | $678.73 | | |
| SCH205BOND | School 205-401 BOND | 0.9354199323 | $495,493 | $495,493 | $463.49 | | |
| ST | State School | 1.4761226122 | $495,493 | $495,493 | $731.41 | | |
| ST2 | State School Part 2 | 0.7953803475 | $495,493 | $495,493 | $394.11 | | |
| | Total Tax Rate: | 7.6534262019 | | | | | |
| | | | | Taxes w/Current Exemptions: | $3,792.22 | | |
| | | | | Taxes w/o Exemptions: | $3,792.22 | | |
Improvement / Building
| Improvement #1: | MANUFACTURED HOME | State Code: | Y | 1436.9 sqft | Value: | $185,070 |
| Bathrooms: | 2 | Bedrooms: | 3 | | Ceiling: | PLASTER PAINTED | Cooling: | EVAP NO DUCT | | Exterior Wall/Cover: | VINYL | Floor Covering: | CARPET 100% | | Floor Structure: | SLAB ON GRADE | Foundation: | SLAB | | Heating: | FHA ELECTRIC | Interior Finish: | PLASTER | | Plumbing Fixture Cnt: | 9 | Roof Slope: | FLAT | | Roof Structure/Cover: | CJ ALUMINIUM HEAVY |   |   |
|
| | Type | Description | Class CD | Sub Class CD | Year Built | Area |
| | BAS | BASE/MAIN FLOOR | 5 | 0 | 2000 | 1436.9 |
| | OP2 | OPEN PORCH W/STEPS | 5 | 0 | 2000 | 1154.4 |
| | OWC | OPEN WOOD PORCH W/STEPS/ROOF/C | 5 | 0 | 2000 | 204.0 |
| | OWP | OPEN WOOD PORCH W/STEPS | 5 | 0 | 2000 | 120.0 |
| Improvement #2: | RESIDENTIAL | State Code: | Y | 0.0 sqft | Value: | $60,423 |
| | Type | Description | Class CD | Sub Class CD | Year Built | Area |
| | oGAR | GARAGE | 3 | 0 | 2000 | 576.0 |
| | oUTI | UTILITY | 3 | 0 | 2000 | 224.0 |
| | oUTI | UTILITY | 3 | 0 | 2000 | 787.0 |
Sketch
Property Image
Land
| 1 | 17 | AC (01.01-02.00) | 1.1100 | 48351.60 | 0.00 | 0.00 | 1.00 | $250,000 | $0 |
Roll Value History
| 2026 | N/A | N/A | N/A | N/A | N/A |
| 2025 | $245,493 | $250,000 | $0 | $495,493 | $495,493 |
| 2024 | $127,540 | $250,000 | $0 | $377,540 | $377,540 |
| 2023 | $113,707 | $250,000 | $0 | $363,707 | $363,707 |
| 2022 | $102,873 | $230,000 | $0 | $332,873 | $332,873 |
| 2021 | $91,783 | $220,000 | $0 | $311,783 | $311,783 |
| 2020 | $91,359 | $180,000 | $0 | $271,359 | $271,359 |
| 2019 | $73,744 | $200,000 | $0 | $273,744 | $273,744 |
| 2018 | $75,523 | $180,000 | $0 | $255,523 | $255,523 |
| 2017 | $76,624 | $120,000 | $0 | $196,624 | $196,624 |
| 2016 | $69,442 | $130,000 | $0 | $199,442 | $199,442 |
| 2015 | $70,934 | $74,400 | $0 | $145,334 | $145,334 |
| 2014 | $72,426 | $74,400 | $0 | $146,826 | $146,826 |
| 2013 | $55,332 | $74,400 | $0 | $129,732 | $129,732 |
| 2012 | $55,332 | $74,400 | $0 | $129,732 | $129,732 |
| 2011 | $55,332 | $93,000 | $0 | $148,332 | $148,332 |
| 2010 | $62,966 | $93,000 | $0 | $155,966 | $155,966 |
| 2009 | $66,358 | $100,000 | $0 | $166,358 | $166,358 |
| 2008 | $67,979 | $100,000 | $0 | $167,979 | $167,979 |
| 2007 | $87,137 | $100,000 | $0 | $187,137 | $187,137 |
Deed and Sales History
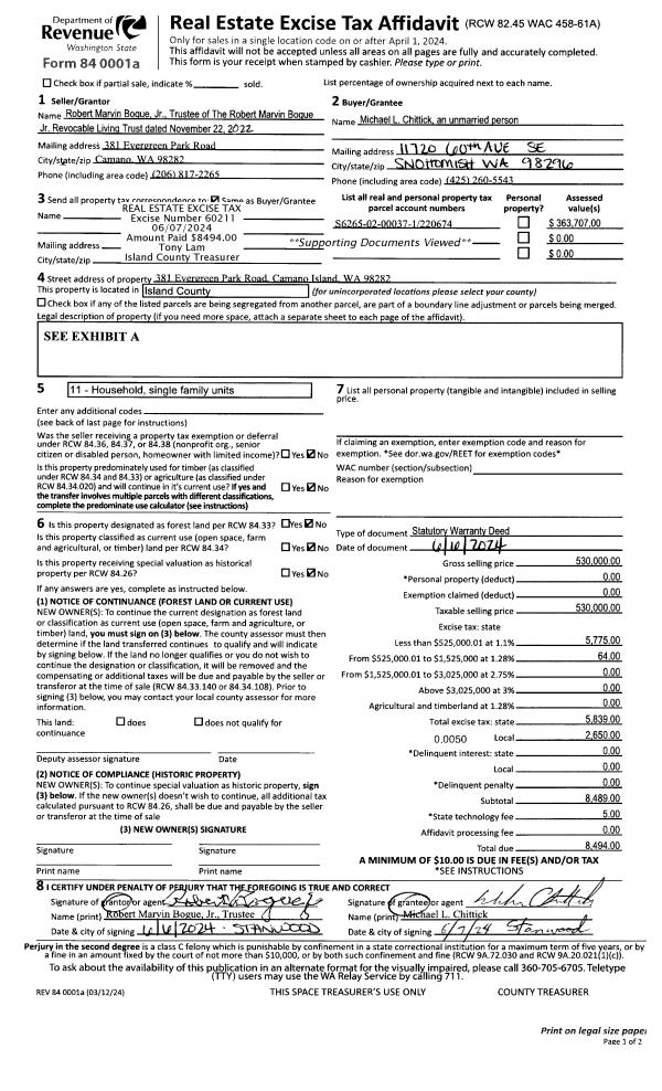
| 1 | 06/06/2024 | WD | Warranty Deed | BOGUE JR TTEE, ROBERT M. | CHITTICK, MICHAEL L | | | $530,000.00 | 60211 | 4573156 |
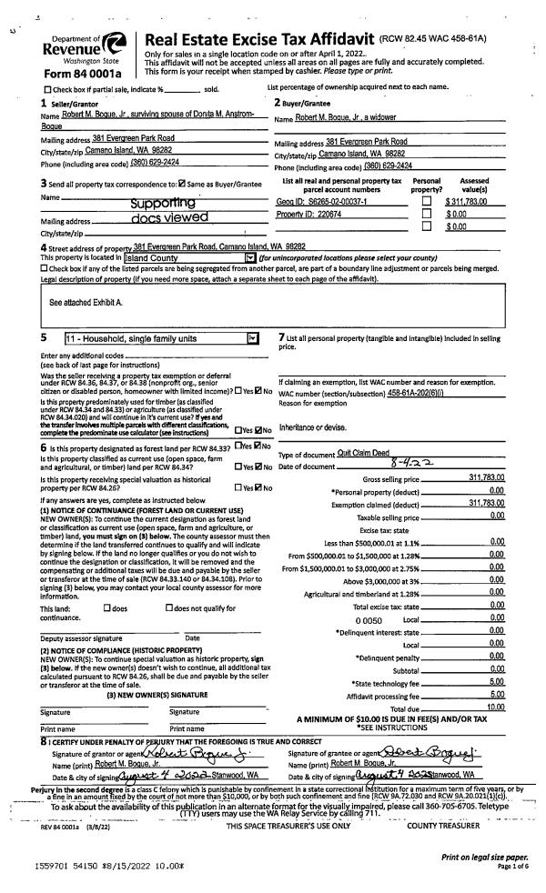
| 2 | 08/04/2022 | QCD | Quit Claim Deed | BOGUE JR, ROBERT M | BOGUE JR, ROBERT M | | | $0.00 | 54150 | |
| 3 | 11/22/2022 | QCD | Quit Claim Deed | BOGUE JR, ROBERT M. | BOGUE JR TTEE, ROBERT M. | | | $0.00 | 55280 | 4554392 |
| 4 | 05/25/2016 | WD | Warranty Deed | GOOD, JUSTIN | BOGUE JR, ROBERT M | | | $170,000.00 | 24550 | 4400294 |
| 5 | 12/14/2006 | TRUSTEED | Trustee's Deed | OLYMPUS SAVING LP FKA CALMCO S | GOOD, JUSTIN | | | $182,000.00 | 65291 | 4189794 |
| 6 | 08/24/2006 | SHERIFFD | Sheriff Deed | LP FKA CALMCO SERVICING, OLYMP | OLYMPUS SAVING LP FKA CALMCO S | | | $209,579.00 | 65290 | 0 |
| 7 | 08/27/2002 | TRUSTEED | Trustee's Deed | HOLMES, STEVE C | LP FKA CALMCO SERVICING, OLYMP | | | $0.00 | 23434 | 4029872 |
| 8 | 02/23/2000 | WD | Warranty Deed | RIPLEY, JAMES D | HOLMES, STEVE C | | | $48,000.00 | 613 | 20003274 |
| 9 | 09/01/1993 | OTHER | Other - Misc. Documents | RIPLEY, JAMES D | RIPLEY, JAMES D | | | $0.00 | 65572 | 93017166 |
| 10 | 02/01/1992 | QCD | Quit Claim Deed | RIPLEY, EDWARD J | RIPLEY, JAMES D | | | $0.00 | 20384 | 92001754 |
| 11 | 01/01/1900 | OTHER | Other - Misc. Documents | Unknown | RIPLEY, EDWARD J | | | $0.00 | 0 | 0 |
Payout Agreement
| No payout information available.. |