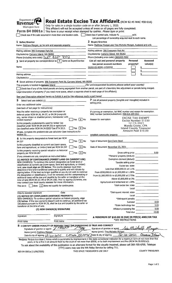
Property
Account |
| Property ID: | 220745 | Abbreviated Legal Description: | CAM LAG VISTA 2 LOT 41 EX S67.77' OF W127' |
| Geographic ID: | S6265-02-00041-1 | Agent Code: | |
| Type: | Real | | |
| Tax Area: | 510 - APPRAISER-Stan/Cam Schl Dist, improved & 1 acre or less | Land Use Code | 11 |
| Open Space: | N | DFL | N |
| Historic Property: | N | Remodel Property: | N |
| Multi-Family Redevelopment: | N | | |
| Township: | | Section: | |
| Range: | |
Location |
| Address: | 396 EVERGREEN PARK RD CAMANO ISLAND, WA 98282 | Mapsco: | |
| Neighborhood: | North Camano | Map ID: | 577 |
| Neighborhood CD: | 06-C |
Owner |
| Name: | MORGAN, MATTHEW | Owner ID: | 302363 |
| Mailing Address: | TINA MICHELLE MORGAN 396 EVERGREEN PARK RD CAMANO ISLAND, WA 98282 | % Ownership: | 100.0000000000% |
| | | Exemptions: | |
Taxes and Assessment Details
Values
| (+) Improvement Homesite Value: | + | $0 | |
| (+) Improvement Non-Homesite Value: | + | $173,798 | |
| (+) Land Homesite Value: | + | $0 | |
| (+) Land Non-Homesite Value: | + | $250,000 | |
| (+) Curr Use (HS): | + | $0 | $0 |
| (+) Curr Use (NHS): | + | $0 | $0 |
| | | -------------------------- | |
| (=) Market Value: | = | $423,798 | |
| (–) Productivity Loss: | – | $0 | |
| | | -------------------------- | |
| (=) Subtotal: | = | $423,798 | |
| (+) Senior Appraised Value: | + | $0 | |
| (+) Non-Senior Appraised Value: | + | $423,798 | |
| | | -------------------------- | |
| (=) Total Appraised Value: | = | $423,798 | |
| (–) Senior Exemption Loss: | – | $0 | |
| (–) Exemption Loss: | – | $0 | |
| | | -------------------------- | |
| (=) Taxable Value: | = | $423,798 | |
Taxing Jurisdiction
| Owner: | MORGAN, MATTHEW | | |
| % Ownership: | 100.0000000000% | | |
| Total Value: | $423,798 | | |
| Tax Area: | 510 - APPRAISER-Stan/Cam Schl Dist, improved & 1 acre or less |
| CF | Conservation Futures | 0.0313996660 | $423,798 | $423,798 | $13.31 | | |
| EMS1 | Fire & Rescue Dist #1 Camano GEN (EMS) | 0.4998471806 | $423,798 | $423,798 | $211.83 | | |
| FIRE1 | Fire & Rescue Dist #1 Camano GEN | 1.2496603404 | $423,798 | $423,798 | $529.60 | | |
| FIRE1BOND | Fire & Rescue Dist #1 Camano BOND | 0.1630371212 | $423,798 | $423,798 | $69.09 | | |
| CE | County Current Expense | 0.3674210519 | $423,798 | $423,798 | $155.71 | | |
| CR | County Roads | 0.4614296361 | $423,798 | $423,798 | $195.55 | | |
| LIB | Library Sno-Isle GEN | 0.3039084203 | $423,798 | $423,798 | $128.80 | | |
| SCH205_401 | School 205-401 Enrichment | 1.3697998934 | $423,798 | $423,798 | $580.52 | | |
| SCH205BOND | School 205-401 BOND | 0.9354199323 | $423,798 | $423,798 | $396.43 | | |
| ST | State School | 1.4761226122 | $423,798 | $423,798 | $625.58 | | |
| ST2 | State School Part 2 | 0.7953803475 | $423,798 | $423,798 | $337.08 | | |
| | Total Tax Rate: | 7.6534262019 | | | | | |
| | | | | Taxes w/Current Exemptions: | $3,243.50 | | |
| | | | | Taxes w/o Exemptions: | $3,243.50 | | |
Improvement / Building
| Improvement #1: | MANUFACTURED HOME | State Code: | Y | 1814.0 sqft | Value: | $173,798 |
| Bathrooms: | 0 | Bedrooms: | 0 | | Ceiling: | PLASTER PAINTED | Cooling: | EVAP NO DUCT | | Exterior Wall/Cover: | VINYL | Floor Covering: | CARPET 100% | | Floor Structure: | SLAB ON GRADE | Foundation: | SLAB | | Heating: | FHA ELECTRIC | Interior Finish: | PLASTER | | Plumbing Fixture Cnt: | 1 | Roof Slope: | FLAT | | Roof Structure/Cover: | CJ ALUMINIUM HEAVY |   |   |
|
| | Type | Description | Class CD | Sub Class CD | Year Built | Area |
| | BAS | BASE/MAIN FLOOR | 4 | 0 | 1978 | 1814.0 |
| | OWP | OPEN WOOD PORCH W/STEPS | 4 | 0 | 1978 | 740.0 |
| | OWR | OPEN WOOD PORCH W/STEPS/ROOF | 4 | 0 | 1978 | 32.0 |
| | BIG | BUILT IN GARAGE | 4 | 0 | 1978 | 1656.0 |
Sketch
Property Image
Land
| 1 | 16 | AC (00.51-01.00) | 0.9967 | 43416.25 | 0.00 | 0.00 | 1.00 | $250,000 | $0 |
Roll Value History
| 2026 | N/A | N/A | N/A | N/A | N/A |
| 2025 | $173,798 | $250,000 | $0 | $423,798 | $423,798 |
| 2024 | $94,152 | $250,000 | $0 | $344,152 | $344,152 |
| 2023 | $21,619 | $250,000 | $0 | $271,619 | $271,619 |
| 2022 | $4,500 | $210,000 | $0 | $214,500 | $214,500 |
| 2021 | $4,500 | $180,000 | $0 | $184,500 | $184,500 |
| 2020 | $4,500 | $180,000 | $0 | $184,500 | $184,500 |
| 2019 | $4,500 | $200,000 | $0 | $204,500 | $204,500 |
| 2018 | $4,500 | $130,000 | $0 | $134,500 | $134,500 |
| 2017 | $4,500 | $120,000 | $0 | $124,500 | $124,500 |
| 2016 | $18,099 | $100,000 | $0 | $118,099 | $118,099 |
| 2015 | $19,267 | $66,400 | $0 | $85,667 | $85,667 |
| 2014 | $20,435 | $66,400 | $0 | $86,835 | $86,835 |
| 2013 | $22,187 | $66,400 | $0 | $88,587 | $88,587 |
| 2012 | $23,355 | $66,400 | $0 | $89,755 | $89,755 |
| 2011 | $24,522 | $83,000 | $0 | $107,522 | $107,522 |
| 2010 | $35,252 | $83,000 | $0 | $118,252 | $118,252 |
| 2009 | $36,275 | $100,000 | $0 | $136,275 | $136,275 |
| 2008 | $36,576 | $100,000 | $0 | $136,576 | $136,576 |
| 2007 | $37,464 | $100,000 | $0 | $137,464 | $137,464 |
Deed and Sales History
| 1 | 11/23/2021 | QCD | Quit Claim Deed | MORGAN, MATTHEW | MORGAN, MATTHEW | | | $0.00 | 51330 | 4535982 |
| 2 | 10/07/2020 | QCD | Quit Claim Deed | MORGAN, TINA M | MORGAN, MATTHEW | | | $0.00 | 45164 | 4498993 |
| 3 | 10/03/2020 | WD | Warranty Deed | BRYANT, JULIE | MORGAN, MATTHEW | | | $185,000.00 | 45163 | 4498992 |
| 4 | 02/06/2017 | ESTSEPPROP | Establish Separate Property | BRYANT, JULIE | BRYANT, JULIE | | | $0.00 | 27991 | 4416640 |
| 5 | 02/06/2017 | WD | Warranty Deed | KUTROVICS, CSABA | BRYANT, JULIE | | | $71,000.00 | 27988 | 4416639 |
| 6 | 09/12/2014 | SPLTDWARDE | Special Limited Warranty Deed | FEDERAL NATIONAL MORTGAGE ASSOCIATION | KUTROVICS, CSABA | | | $47,000.00 | 16857 | 4365746 |
| 7 | 05/31/2013 | TRUSTEED | Trustee's Deed | HOPKINS, BRYAN L | FEDERAL NATIONAL MORTGAGE ASSOCIATION | | | $76,492.00 | 11498 | 4341129 |
| 8 | 03/26/2003 | QCD | Quit Claim Deed | HOPKINS, BRYAN L | HOPKINS, BRYAN L | | | $0.00 | 31448 | 4054369 |
| 9 | 12/01/1992 | OTHER | Other - Misc. Documents | HOPKINS, BRYAN L | HOPKINS, BRYAN L | | | $18,000.00 | 11111111 | 0 |
| 10 | 02/01/1990 | QCD | Quit Claim Deed | HOPKINS, BRYAN L | HOPKINS, BRYAN L | | | $0.00 | 1061 | 90003543 |
| 11 | 05/01/1989 | WD | Warranty Deed | LILGREEN, ROBERTA L | HOPKINS, BRYAN L | | | $7,500.00 | 91801 | 89006251 |
| 12 | 05/01/1989 | QCD | Quit Claim Deed | BUNN, SAM C | LILGREEN, ROBERTA L | | | $0.00 | 93318 | 89011161 |
Payout Agreement
| No payout information available.. |