Property
Account |
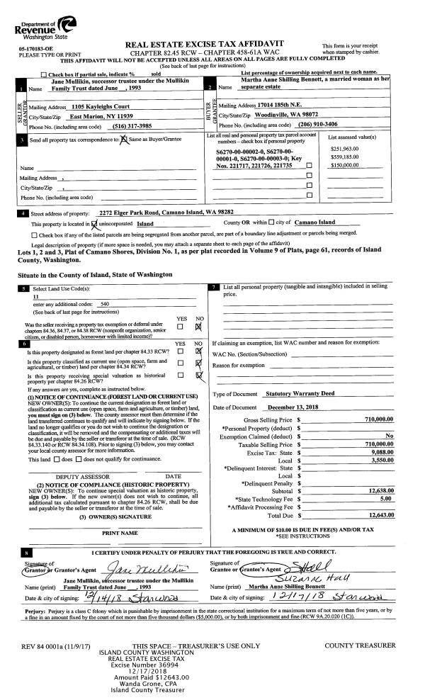
| Property ID: | 221717 | Abbreviated Legal Description: | CAMANO SHORES 1 LOT 1 |
| Geographic ID: | S6270-00-00001-0 | Agent Code: | |
| Type: | Real | | |
| Tax Area: | 549 - APPRAISER-Stan/Cam Schl Dist, Special Dist, vacant & 50 acres or less | Land Use Code | 99 |
| Open Space: | N | DFL | N |
| Historic Property: | N | Remodel Property: | N |
| Multi-Family Redevelopment: | N | | |
| Township: | | Section: | |
| Range: | |
Location |
| Address: | | Mapsco: | |
| Neighborhood: | Cycle 5 | Map ID: | 941 |
| Neighborhood CD: | 5 |
Owner |
| Name: | BENNETT, MARTHA ANN SHILLING | Owner ID: | 288232 |
| Mailing Address: | 17014 185TH NE WOODINVILLE, WA 98072 | % Ownership: | 100.0000000000% |
| | | Exemptions: | |
Taxes and Assessment Details
Values
| (+) Improvement Homesite Value: | + | N/A | |
| (+) Improvement Non-Homesite Value: | + | N/A | |
| (+) Land Homesite Value: | + | N/A | |
| (+) Land Non-Homesite Value: | + | N/A | Ag / Timber Use Value |
| (+) Curr Use (HS): | + | N/A | N/A |
| (+) Curr Use (NHS): | + | N/A | N/A |
| | | -------------------------- | |
| (=) Market Value: | = | N/A | |
| (–) Productivity Loss: | – | N/A | |
| | | -------------------------- | |
| (=) Subtotal: | = | N/A | |
| (+) Senior Appraised Value: | + | N/A | |
| (+) Non-Senior Appraised Value: | + | N/A | |
| | | -------------------------- | |
| (=) Total Appraised Value: | = | N/A | |
| (–) Senior Exemption Loss: | – | N/A | |
| (–) Exemption Loss: | – | N/A | |
| | | -------------------------- | |
| (=) Taxable Value: | = | N/A | |
Taxing Jurisdiction
| Owner: | BENNETT, MARTHA ANN SHILLING | | |
| % Ownership: | 100.0000000000% | | |
| Total Value: | N/A | | |
| Tax Area: | 549 - APPRAISER-Stan/Cam Schl Dist, Special Dist, vacant & 50 acres or less |
| CF | Conservation Futures | N/A | N/A | N/A | N/A | | |
| CCD | Camano Conservation District | N/A | N/A | N/A | N/A | | |
| EMS1 | Fire & Rescue Dist #1 Camano GEN (EMS) | N/A | N/A | N/A | N/A | | |
| CE | County Current Expense | N/A | N/A | N/A | N/A | | |
| CR | County Roads | N/A | N/A | N/A | N/A | | |
| LCIB | Library Sno-Isle BOND (Camano Island) | N/A | N/A | N/A | N/A | | |
| LIB | Library Sno-Isle GEN | N/A | N/A | N/A | N/A | | |
| SCH205_401 | School 205-401 Enrichment | N/A | N/A | N/A | N/A | | |
| SCH205BOND | School 205-401 BOND | N/A | N/A | N/A | N/A | | |
| ST | State School | N/A | N/A | N/A | N/A | | |
| ST2 | State School Part 2 | N/A | N/A | N/A | N/A | | |
| PTMBNAREG | Port of Mabana Regular Levy | N/A | N/A | N/A | N/A | | |
| | Total Tax Rate: | N/A | | | | | |
| | | | | Taxes w/Current Exemptions: | N/A | | |
| | | | | Taxes w/o Exemptions: | N/A | | |
Improvement / Building
Sketch
| No sketches available for this property. |
Property Image
Land
| 1 | HB | HIGH BLUFF | 0.0000 | 0.00 | 60.00 | 0.00 | 1.00 | N/A | N/A |
Roll Value History
| 2026 | N/A | N/A | N/A | N/A | N/A |
| 2025 | $0 | $250,000 | $0 | $250,000 | $250,000 |
| 2024 | $0 | $250,000 | $0 | $250,000 | $250,000 |
| 2023 | $0 | $250,000 | $0 | $250,000 | $250,000 |
| 2022 | $0 | $225,000 | $0 | $225,000 | $225,000 |
| 2021 | $1,963 | $200,000 | $0 | $201,963 | $201,963 |
| 2020 | $1,963 | $175,000 | $0 | $176,963 | $176,963 |
| 2019 | $1,963 | $175,000 | $0 | $176,963 | $176,963 |
| 2018 | $1,963 | $250,000 | $0 | $251,963 | $251,963 |
| 2017 | $1,963 | $250,000 | $0 | $251,963 | $251,963 |
| 2016 | $1,963 | $250,000 | $0 | $251,963 | $251,963 |
| 2015 | $1,963 | $250,000 | $0 | $251,963 | $251,963 |
| 2014 | $1,963 | $250,000 | $0 | $251,963 | $251,963 |
| 2013 | $1,963 | $132,265 | $0 | $134,228 | $134,228 |
| 2012 | $1,963 | $132,265 | $0 | $134,228 | $134,228 |
| 2011 | $1,963 | $165,331 | $0 | $167,294 | $167,294 |
| 2010 | $1,963 | $165,331 | $0 | $167,294 | $167,294 |
| 2009 | $2,107 | $177,428 | $0 | $179,535 | $179,535 |
| 2008 | $2,281 | $104,037 | $0 | $106,318 | $106,318 |
| 2007 | $2,452 | $125,885 | $0 | $128,337 | $128,337 |
Deed and Sales History
| 1 | 04/11/2019 | QCD | Quit Claim Deed | BENNETT, TERRY KELLER | BENNETT, MARTHA ANN SHILLING | | | $0.00 | 36995 | 4456620 |
| 2 | 04/11/2019 | WD | Warranty Deed | MULLIKIN, WALTER H / MARIE S | BENNETT, MARTHA ANN SHILLING | | | $710,000.00 | 36994 | 4456619 |
|   | |
| 3 | 06/01/1993 | QCD | Quit Claim Deed | MULLIKIN, WALTER H | MULLIKIN, WALTER H | | | $0.00 | 32271 | 93011749 |
| 4 | 01/01/1983 | WD | Warranty Deed | STRANDIN, CARL R | MULLIKIN, WALTER H | | | $35,000.00 | 30182 | 405134 |
| 5 | 01/01/1900 | OTHER | Other - Misc. Documents | Unknown | STRANDIN, CARL R | | | $0.00 | 0 | 0 |
Payout Agreement
| No payout information available.. |